Ludvikplassen 5B
5 900 000 kr
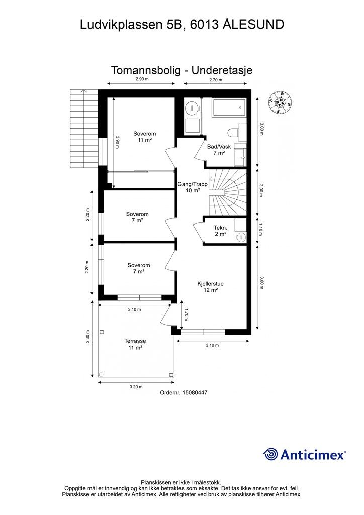
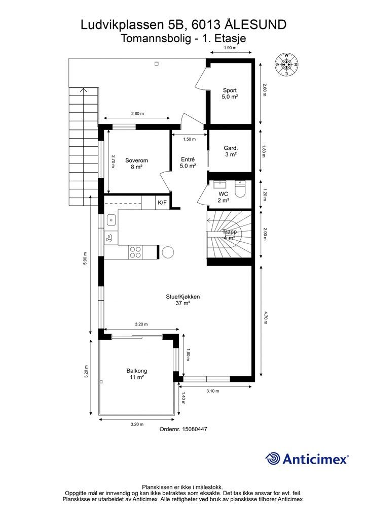
124 m²
4 soverom
Solgt

Emblemsvågen
BUD MOTTATT Nyere moderne og tiltalende vertikaldelt tomannsbolig i endegate | 4 soverom | Dobbel carport | Flott utsikt
Prisantydning
5 900 000 krOmkostninger
168 490 krTotalpris
6 068 490 kr
Pris
Bruksareal
129 m²BRA-I (internt bruksareal)
124 m²BRA-E (eksternt bruksareal)
5 m²TBA (terrasse-balkongareal)
22 m²
Areal
Etasje
2Byggeår
2020Soverom
4 soveromBad
1 badTomteareal
351 m² (eiet)Type
Halvpart vertikaldelt boligEierform
EietFasiliteter
Garasje/P-plass og Balkong/TerrasseEnergimerke
Oransje B
Nøkkelinfo
Unngå doble boligrenter
Vi tilbyr gunstig forsikring.
Vurderer du utleie?
Få et tilbud fra Utleie KrogsveenHva koster lånet?
Sjekk estimert lånekostnadDette liker selger best ved boligen
Plassering og utsikt! Eiendommen ligger i enden av blindvei, dermed ingen trafikk. Det er ingen bebyggelse foran huset, og det kommer det heller ikke til å bli pga funn av en viking e.l. Så utsikten er uhindret flott. Naturnær beliggenhet med gangavstand til strand og bademuligheter, samt Emblemsfjellet med turmuligheter. Det er sau på beitet året rundt. 8 min til Moa, 20 min til Ålesund Sentrum. Huset er "nytt" og lettstelt, flott enstavs eikeparkett i hovedetasje, trestavs ellers. Moderne kjøkken fra HTH med flott kompositt-benkeplate. Det er sentralstøvsuger, balansert ventilasjon, dobbel carport m/ elbillader. Både carport, bod ute og bod inne har spesialbygget hylleløsning. 2,5m under tak i begge etasjer.
Beskrivelse
Kort om eiendommen
Krogsveen Sunnmøre v/Daglig leder/Eiendomsmegler Preben Willmann har gleden av å presentere en flott tiltalende og nyere vertikaldelt tomannsbolig beliggende i et attraktivt boligområde på Flisnes/Emblemsvågen. Innholdsrik bolig over to etasjer med god planløsning. Carport. Gode sol og utsiktsforhold. Barnevennlig boligområde med flere lekeplasser. Boligen ligger i en endegate uten gjennomgangstrafikk.
Gangavstand til barnehage og barneskole og dagligvarebutikker. Til Moa Amfi kjøpesenter med alle sine fasiliteter er det ca. 8 km. Flotte tur- og friluftsterreng i nærområdet, både ved sjø og til fjells. Det er også kort vei til flere flotte badeplasser i området, Emblemsanden få minutters gange unna.
Område
Legg til steder som er viktige for deg
På flyttefot? Tenk kjøp og salg samtidig.
Få din egen rådgiver gjennom hele kjøps- og salgsprosessen. Det starter med en verdivurdering.
Unngå doble boligrenter
Vi tilbyr gunstig forsikring.
Vurderer du utleie?
Få et tilbud fra Utleie KrogsveenHva koster lånet?
Sjekk estimert lånekostnadVil du varsles om lignende boliger?
Ved å lagre ditt boligsøk hos oss får du beskjed når vi har en bolig som ligner denne, før den legges ut på markedet!





















































