Vitåsen 8
7 890 000 kr
197 m²
4 soverom
Komplett salgsoppgave

Garderåsen / Fetsund
Familievennlig enebolig m/ 4 sov og flere stuer | Solrik terrasse og dobbelgarasje m/ loft | Markanært på Garderåsen
Prisantydning
7 890 000 krOmkostninger
218 240 krTotalpris
8 108 240 kr
Pris
Bruksareal
251 m²BRA-I (internt bruksareal)
197 m²BRA-E (eksternt bruksareal)
54 m²TBA (terrasse-balkongareal)
60 m²
Areal
Byggeår
1989Soverom
4 soveromBad
1 badTomteareal
904 m² (eiet)Type
Enebolig - FrittliggendeEierform
EietFasiliteter
Garasje/P-plass og Balkong/TerrasseEnergimerke
Gul D
Nøkkelinfo
Unngå doble boligrenter
Vi tilbyr gunstig forsikring.
Vurderer du utleie?
Få et tilbud fra Utleie KrogsveenHva koster lånet?
Sjekk estimert lånekostnadBeskrivelse
Kort om eiendommen
Innhold og byggemåte
Innhold og byggemåte
Eiendommen
Vitåsen 8, 1900 FETSUND
Kommunenummer 3205, gårdsnummer 418, bruksnummer 376, ideell andel 1/1
Innhold
Totalt bruksareal BRA: 251 kvm
BRA-i:
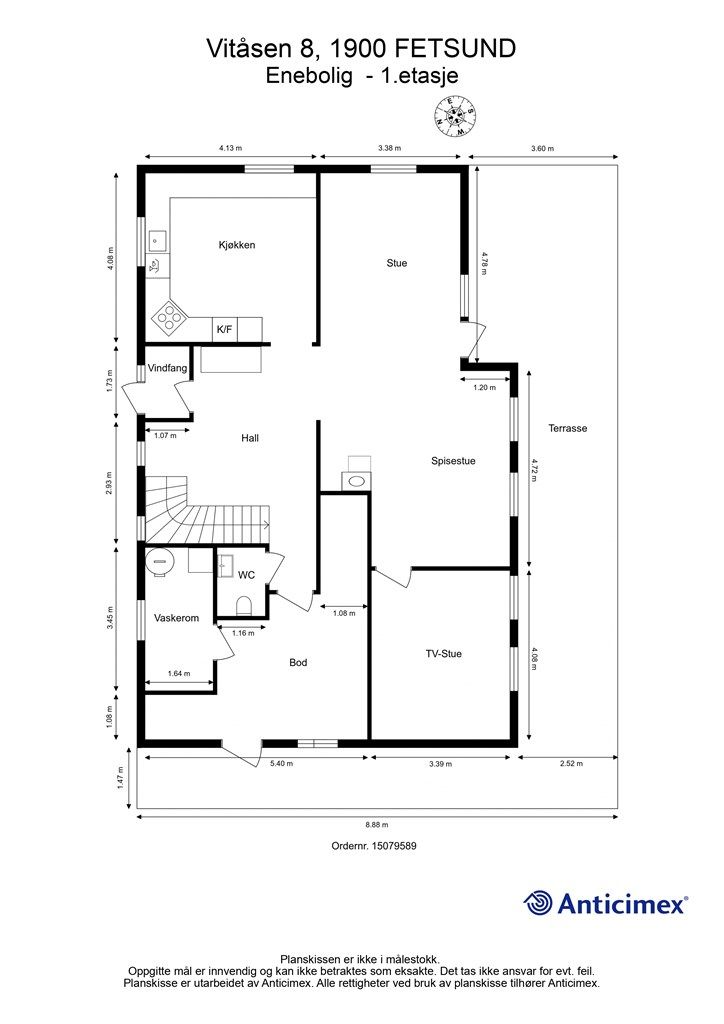
1. etasje 116 kvm: Vindfang, hall, wc-rom, vaskerom, bod, stue, tv -stue, spisestue og kjøkken.
2. etasje/loftsetasje 81 kvm: Bad, bod, loftstue og 4 soverom.
BRA-e:
1. etasje 40 kvm: Garasje.
2. etasje/loftsetasje 14 kvm: Loftsrom.
Terrasse- og balkongareal (TBA):
1. etasje 55 kvm: Terrasse.
2. etasje/loftsetasje 5 kvm: Balkong.
Loftsetasjen i eneboligen har et totalt gulvareal (GUA) på 90 kvm, men grunnet skråtak/lav takhøyde er kun 81 kvm av arealet måleverdig som bruksareal. De delene av arealene som har lav himlingshøyde (ALH) utgjør 9 kvm.
Loftsetasjen på garasjen har et totalt gulvareal (GUA) på 22 kvm, men grunnet skråtak/lav takhøyde er kun 14 kvm av arealet måleverdig som bruksareal. De delene av arealene som har lav himlingshøyde (ALH) utgjør 8 kvm.
Vedlagte plantegninger er ikke målbare. De oppgitte arealer er hentet fra rapport med befaringsdato 24.02.2026 utført av Anticimex AS v/Thomas Nordby.
Byggemåte
Selger har fått utarbeidet en tilstandsrapport, dvs. en teknisk gjennomgang av boligen hvor eventuelle avvik, risiko for kjøper og prisoverslag for hva som bør gjøres av oppgradering, er skissert. Se særskilt TGIU (tilstandsgrad ikke undersøkt), samt TG2 og TG3 som viser hva som er boligens normale slitasje, alder og type, hva som er avvik fra dette og hva som bør/må utbedres. Rapporten og selgers egenerklæring er en del av salgsoppgaven og må leses nøye før bud inngis. Kjøper overtar ansvaret for de opplysninger som fremkommer av salgsdokumentasjonen, og kan ikke gjøre gjeldende som mangel noe som burde vært kjent eller som ikke kan anses å ha betydning for avtalen.
Bygningen er iht. tilstandsrapport en enebolig oppført i 1989 over to plan med kaldtloft. Boligen har støpt betongplate på mark med krypekjeller under deler av boligen, og grunnmur av betong. Yttervegger er av bindingsverk utvendig kledd med liggende trepanel fra byggeår, og etasjeskillene er av trekonstruksjoner. Yttertaket er en saltakskonstruksjon utvendig tekket med takstein fra byggeår, med undertak av sutaksplater. Boligen har vinduer og takvindu med karmer av tre og to-lags glass fra byggeår. Ytterdøren har elektrisk kodelås, og terrassedør og balkongdør har karmer av tre og to-lags glass fra byggeår. Innvendige dører er hvite i profilert utførelse. I tillegg er det en frittstående garasje fra 1995 med innredet loftsrom.
Det gjøres spesielt oppmerksom på at følgende bygningsdeler er gitt Tilstandsgrad 3 (TG3) — Store eller alvorlige avvik:
Baderom
- Vanntett sjikt / membran i gulv og vegger: Vanntett sjikt har en alder som erfaringsmessig tilsier at fremtidig funksjon er svært usikker (gjelder for produkter/løsninger etablert før år 2000). Bygningsdelen er skjult, så den faktiske tilstanden/dagens tettefunksjon er ukjent. TG3 er satt i henhold til NS 3600.
Vaskerom
- Overflater gulv: Gulvbelegg viser tegn til slitasje, utettheter i overganger og lignende tegn til aldersrelatert funksjonsnedsettelse. Levetiden vurderes til å være passert.
- Vanntett sjikt / membran i gulv og vegger: Vanntett sjikt har en alder som erfaringsmessig tilsier at fremtidig funksjon er svært usikker (gjelder for produkter/løsninger etablert før år 2000). Bygningsdelen er skjult, så den faktiske tilstanden/dagens tettefunksjon er ukjent. TG3 er satt i henhold til NS 3600.
Følgende bygningsdeler er gitt Tilstandsgrad 2 (TG2) — Avvik som kan kreve tiltak:
Baderom
- Overflater vegger: Det er registrert bruk av materialer i våtsonen (rundt dusj/servanter) som vurderes å ikke være fuktbestandige. Mykfuger har i enkelte områder løsnet fra underlaget. Forholdet vurderes i hovedsak til å være et mindre avvik av estetisk betydning, uten nevneverdige konsekvenser utover dette.
- Overgang mellom sluk og vanntett sjikt er uoversiktlig.
- Vannrør av kobber (og tilhørende komponenter) har en alder som tilsier at fremtidig funksjon er usikker. Bygningsdelen er skjult, så den faktiske tilstanden er ukjent.
Vaskerom
- Overflater vegger: Det er registrert bruk av materialer som vurderes å ikke være fuktbestandige (malte mdf-plater).
- Fallforhold rundt sluk: Lokalfallet i sluksonen er mindre enn anbefalt.
- Vannrør av kobber (og tilhørende komponenter) har en alder som tilsier at fremtidig funksjon er usikker. Bygningsdelen er skjult, så den faktiske tilstanden er ukjent.
- Tilluftsspalte eller lignende er ikke etablert. Våtrommet har kun naturlig ventilasjon. Tilstandsgrad er satt i henhold til NS3600.
Toalettrom
- Vannrør av kobber (og tilhørende komponenter) har en alder som tilsier at fremtidig funksjon er usikker. Bygningsdelen er skjult, så den faktiske tilstanden er ukjent.
Loft - innredet - 2.etasje
- Etasjens skråtak er en lukket konstruksjon. Slike konstruksjoner betraktes erfaringsmessig som fuktrisikokonstruksjoner. Det gjøres oppmerksom på at det ikke er observert symptomer på fuktskader.
Loft - uinnredet / kaldt loft
- Misfarging observeres stedvis rundt pipe og rundt ventilasjonsrør, noe som tyder på negativ påvirkning av fukt. Materialet er ikke egnet for fuktmåling, så overflatesøk med fuktindikasjonsinstrument ble gjennomført i stedet (stikkprøveprinsippet er benyttet). Det ble ikke registrert indikasjoner på forhøyede fuktnivåer.
Etasjeskiller og gulv på grunn
- 2.etasje/loftsetasje: I loftstue er det på tilfeldige punkter målt lokale høydeforskjeller opptil 17 mm, og 3 mm i soverom 3. Stikkprøvene som er utført har avdekket stedvise vesentlige skjevheter. Eksakt årsak er ikke kjent, men det anses som lite sannsynlig at forholdet skyldes strukturelle skader i etasjeskilleren.
Krypkjeller
- Tilsig av vann og fuktsperre mot grunn: Det observeres tegn på kalk/saltutslag. Forholdet tyder på at fukt transporteres inn i krypkjelleren fra utsiden.
- Det er begrenset ventilasjon i krypkjelleren.
- Det er observert lagring av organiske materialer i krypkjelleren. Slike materialer kan trekke til seg fukt, noe som kan føre til mugg- og sopputvikling, samt tiltrekke skadedyr. Selv om det ikke er observert at dette har medført problemer.
Yttervegger inkl. fasader
- Det er vurdert å være begrenset spalte for lufting og drenering bak ytterkledningen. Det gjøres oppmerksom på at det ikke er observert synlige tegn på at forholdet har ført til skader på dette tidspunkt.
Vinduer og ytterdører
- Enkelte vinduer viser begynnende tegn til slitasje på overflatebehandling. Det er derimot ikke registrert synlige skader av vesentlig betydning.
- Takvindu viser begynnende tegn til slitasje og begynnende aldersrelaterte skader. Fremtidig funksjon vurderes som usikker.
Yttertak
- Inspeksjonsmulighet: Taket er ikke fysisk inspisert grunnet is og snø (sikkerhetsmessige forhold).
- Undertak (inkluderer sløyfer, lekter og innfestninger) med tilhørende komponenter har en alder som tilsier at fremtidig funksjon er usikker. Bygningsdelen er skjult, så den faktiske tilstanden er ukjent.
- Vindskier viser begynnende tegn til slitasje og stedvis noe råteskader. Det gjøres oppmerksom på at vurderingen er begrenset til det som er synlig fra bakkenivå.
- Snøfangerutstyr er ikke etablert. På grunn av oppføringstidspunktet vurderes det at kravet for snøfangerutstyr trolig ikke var gjeldende, men TG2 er valgt siden forholdet kan påvirke sikkerheten. Tilstandsgrad er satt i henhold til NS 3600.
Balkonger
- Terrassebordene viser tegn til slitasje.
Grunnmur, fundament
- Det registreres enkelte moderate tegn til riss i overflaten til grunnmuren. Eksakt årsak er ukjent.
Drenering
- Det er valgt å vurdere dreneringen med en samlet helhetsvurdering. Følgende hovedmomenter er lagt til grunn for vurderingen: Drenering har en alder som tilsier at fremtidig funksjon er usikker. Terrengfallet kan ikke undersøkes på tilstrekkelig måte, grunnet snøforhold. Det kan ikke verifiseres at grunnmuren har utvendig fuktsperre rundt hele boligen.
Følgende bygningsdeler er ikke undersøkt (TGIU):
Yttervegger inkl. fasader
- Gnagersikring: Det har ikke vært mulig å kontrollere om ytterkledningen er sikret mot inntrekk av gnagere. Det kan derfor ikke bekreftes om gnagersikringen er utført på korrekt måte.
Yttertak - Ikke besiktiget grunnet snø og is:
- Tekking (med tilhørende beslag)
- Takrenner og utvendige nedløp
- Takgjennomføringer (takhatter o.l.)
- Detaljer inn mot tilstøtende konstruksjoner
- Skorsteiner (over tak)
- Terrasse / platting - Konstruksjon og fundamenter
- Yttertak og takkonstruksjon
Innvendige forhold: Deler av overflater inne i bygget var ikke tilgjengelige for inspeksjon på grunn av inventar som var oppbevart i rommet på befaringsdagen.
Balkonger
- Rekkverkshøyder, lysåpninger og andre sikkerhetsmessige forhold er kontrollert opp mot dagens gjeldende byggtekniske forskrift, selv om denne ikke har tilbakevirkende kraft. Rekkverkshøyden er under 1,0 meter. Basert på ovennevnte forhold oppfyller ikke balkongen dagens krav til sikkerhet.
Terrasse / platting
- Rekkverkshøyden er under 1,0 meter. Basert på ovennevnte forhold oppfyller ikke rekkverket dagens krav til sikkerhet.
Innvendige trapper
- Trappen har ikke håndløper på begge sider i hele trapp. Åpninger i rekkverket på mer enn 0,10 meter. Basert på ovennevnte forhold oppfyller ikke trappen dagens krav til sikkerhet.
Se vedlagt tilstandsrapport for supplerende informasjon vedrørende boligens tilstand.
Moderniseringer og påkostninger
Følgende moderniseringer er foretatt de senere år:
2018:
- Ny varmtvannsbereder (194L) installert.
2007:
- Bad oppgradert med flis på flis og overflater, inkludert fliser på badgulv oppå eksisterende vinylbelegg.
Standard
Denne eneboligen fra 1989, beliggende på en stor tomt, strekker seg over to plan og byr på en tradisjonell rominndeling som legger til rette for et komfortabelt familieliv. Boligen har gjennom årene blitt ivaretatt og oppgradert, med blant annet et modernisert kjøkken fra 2012 og elektrisk gulvvarme i store deler av første etasje, samt på badet i andre etasje. Her får du en bolig med gode oppholdsrom og en romslig uteplass som inviterer til hyggelige stunder.
Entrè/hall
Du ønskes velkommen inn i en praktisk entrè som leder videre inn i boligens hall. Her er det varmekabler i gulv.
Den romslige hallen har gode bruksmuligheter, og her er det garderobeskap for praktisk oppbevaring av yttertøy.
Toalettrom
Toalettrom i 1.etg. som er utstyrt med vegghengt servant med to-greps armatur og speil på vegg over servant, samt et gulvmontert toalett.
Vaskerom
Boligen har et eget vaskerom med opplegg for vaskemaskin og tørketrommel, samt ett-greps armatur på vegg.
Rommet ble oppgradert i 2012 med plastlemmer og veggplater.
Varmtvannsberederen er fra 2018.
Bod (1.etasje)
En praktisk bod i første etasje tilbyr diverse hylleløsninger og har en egen sideinngang.
Kjøkken
Kjøkkenet, modernisert i 2012, presenterer en funksjonell løsning med hvite profilerte fronter og laminert benkeplate.
Her er det benkeskapsbelysning og stikkontakter under overskap, samt en nedfelt oppvaskkum av kompositt med ett-greps armatur.
Kjøkkenet er utstyrt med integrert komfyr og mikrobølgeovn i høyskap, nedfelt induksjonstopp, integrert kjøleskap og oppvaskmaskin.
En mekanisk kjøkkenventilator er tilkoblet avtrekkanal.
Stuer
Romslige oppholdsrom som stue, spisestue og TV-stue.
Stuene gir områdene god plass for både hverdagsliv og sosiale sammenkomster.
I stuen finner du en peisovn som bidrar til en lun atmosfære på kjølige dager.
Fra stuen er det utgang til en stor terrasse på 55 m² som strekker seg rundt to sider av boligen, perfekt for utendørsaktiviteter og avslapning.
Loftstue
I andre etasje er det loftstue, et fleksibelt rom som kan tilpasses ulike behov. Fra loftstuen er det utgang til en overbygget balkong på 5 m².
Soverom
Boligen har fire soverom i andre etasje.
To av soverommene er utstyrt med garderobeskap.
Baderom
Baderommet i andre etasje er fra byggeår, men ble oppgradert med flis på flis og nye overflater i 2007.
Det har vegghengt innredning med nedfelte servanter og ett-greps armaturer, overskap og speil med overlys.
Dusjkabinett med regnfallsdusj og dusjarmatur, og et gulvmontert toalett.
Bod (2. etasje)
En praktisk bod i den innredede loftsetasjen gir ekstra lagringsplass.
Lagring
Boligen tilbyr gode lagringsmuligheter med garderobeskap i hall og på to av soverommene.
I boden i første etasje er det diverse hylleløsninger.
I tillegg har eiendommen en frittstående garasje med et innredet loftsrom, som gir ytterligere lagringsplass.
Det er kun de integrerte hvitevarene som følger med. Kjøper må forvente slitasje som følge alder og normal bruk.
Oppvarming
Boligen er elektrisk oppvarmet kombinert med vedfyring. Det er elektrisk gulvvarme på baderom, vaskerom, kjøkken, toalettrom og i alle gulv i første etasje foruten boden. Peisovn i stue.
Dersom beboelsesrom ikke har vegg- eller fastmonterte varmekilder ved visning, følger dette heller ikke med.
Ferdigattest/brukstillatelse
Det er utstedt midlertidig brukstillatelse for Nybygg - Enebolig datert 11.08.1989. Det foreligger ikke ferdigattest. Denne kan fås ved henvendelse til megler.
Det gjøres oppmerksom på at det ikke lenger utstedes ferdigattest på tiltak det er søkt om før 1998 jf. plan- og bygningsloven § 21-10. Kommunen vil ikke kreve ferdigattest for disse tiltakene og vil avvise eventuelle søknader. Bestemmelsen innebærer ikke at tiltak med manglende søknad blir lovlige, men at man ikke trenger å avslutte gamle byggesaker. Normalt sett kreves ferdigattest for alle søknadspliktige tiltak som gjøres etter plan- og bygningsloven.
Det er utstedt ferdigattest for Nybygg - Garasje datert 04.07.1996. Denne kan fås ved henvendelse til megler.
Det foreligger godkjente og byggemeldte tegninger datert 20.06.1988. Disse kan fås ved henvendelse til megler.
Det er samsvar mellom faktisk bruk og romklassifiseringen som fremkommer på byggetegningene, med unntak av et kjølerom som aldri ble etablert.
Det er etablert en terrasse rundt deler av boligen, som ikke fremgår av godkjente tegninger.
Deler av terrassen har en høyde på mer en 1 meter fra eksisterende terreng, og er derfor søknadspliktig.
I reguleringsbestemmelsene for Garderåsen 3, FeltI2, J og K er det oppgitt at man kan bygge inntil 25% BYA eksklusiv garasje av tomtens nettoareal.
Dersom terrassen ikke blir godkjent ved søknad, kan konsekvens være riving av deler av eksisterende terrasse.
Kjøper overtar alt ansvar, kostnad og risiko for dette videre.
Tinglyste heftelser og rettigheter
Eiendommen overdras fri for pengeheftelser
Kommunen har legalpant i eiendommen for forfalte krav på eiendomsskatt og kommunale avgifter/gebyrer.
Følgende servitutter er tinglyst i eiendommen:
Dagboknr 105792, tinglyst 05.07.1988, type heftelse: Skjøte med flere bestemmelser.
Forkjøpsrett for Fet kommune gjeldene i 10 år fra da tomtene ble etablert.
Kommunen har vederlagsfri rett til å ha offentlige ledninger liggende over tomten, med tilhørende bygge- og beplantningsrestriksjoner.
Kjøperen har solidarisk vedlikeholdsplikt for alle ledningsanlegg.
Det er ikke tillatt å sette opp egen utvendig antenne, og tomten er begrenset til boligformål uten næringsvirksomhet.
Feltet er ikke uttømmende. Se velagt servitutt for mer informasjon.
Servituttene vil følge eiendommen. Kjøpers bank vil få prioritet etter ovennevnte heftelser og servitutter.
Eventuell adgang til utleie
Eiendommen har ikke separat utleieenhet. Det vil normalt være anledning til utleie av hele eiendommen eller enkeltrom, såfremt utleiearealet er bygningsmessig godkjent for varig opphold og har forsvarlige radonnivåer.
Beliggenhet og tomteforhold
Beliggenhet og tomteforhold
Beliggenhet
Boligen ligger i et attraktivt og barnevennlig boligområde på Garderåsen i Fetsund.
Eiendommen har nærhet til skogen, samt gangavstand til skoler, barnehager, offentlig kommunikasjon og gode servicetilbud.
Lillestrøm kommune har et rikt kulturliv og en vakker natur som innbyr til friluftsliv.
Kommunen har også et mangfoldig og variert tilbud innen kultur og idrett. Det er kort vei til Heia idrettspark. Fetsund lenser er i dag fredet som landets eneste gjenværende fløtningsanlegg.
Det er bevart som et enestående kulturminne med verksteder for tradisjonelt håndverk, kafé og museumsbutikk.
Fet Golfklubb har en 9-hulls golfbane som ligger i naturskjønne omgivelser nær Nordre Øyeren naturreservat.
Dagligvarehandelen kan gjøres ved bl.a. nærbutikken Joker, Spar, Rema 1000 og Coop i Fetsund sentrum.
Ytterligere servicetilbud slik som flere frisørsalonger, to legesentre flere spisesteder finnes også i Fetsund sentrum.
Fra boligen er det en kort kjøretur til Lillestrøm med bymessige fasiliteter, samt Strømmen Storsenter med over 200 butikker og tilknyttede virksomheter.
Oslo sentrum ligger også godt innen rekkevidde via offentlig kommunikasjon og bil.
Området gir mulighet for offentlig kommunikasjon via buss og tog. Busstopp kun 200 meter fra boligen og gangavstand til Fetsund stasjon på ca. 2 km.
Toget herfra bruker ca. 8 min til Lillestrøm og 20 minutter til Oslo S. Med bil fra Fetsund tar det ca. 12 min til Lillestrøm, 12 min til Sørumsand, 16 min til
Strømmen, 27 min til Oslo S og 33 min til Oslo lufthavn.
Eiendommen har kort vei til Garderåsen barneskole og Østersund ungdomsskole.
Høyskolen i Akershus har beliggenhet ved Kjeller ved Lillestrøm.
Kommunen har en aktiv kulturskole som tilbyr opplæring innen musikk, dans, drama og visuell kunst.
Barnehager, skoler og fritid
Hovinhøgda skole (1-7 kl.)
Garderåsen skole (1-7 kl.)
Riddersand skole (1-7 kl.)
Østersund ungdomsskole (8-10 kl.)
Lillestrøm videregående skole
Skedsmo videregående skole
Fetsund barnehage (1-5 år)
Sommerly barnehage (1-5 år)
Nerdrumshagen barnehage (1-5 år)
Informasjon om tilhørende skolekretser er hentet fra Prognosesenteret som dataleverandør, og tilhørigheten kan årlig endres av kommunen. Dersom skole- og barnehagetilbud er av betydning for kjøpet, ber vi om at det rettes en særskilt henvendelse til kommunen for oppdatert informasjon.
Beskrivelse av tomt
Eiertomt på 904 kvm. Tomten er opparbeidet med gressplen, hekk, trær, prydbusker og diverse beplantninger. Gårdsplassen er opparbeidet med belegningstein, og adkomstveien er asfaltert. Det er forstøtningsmurer av betongstein ved vei.
Parkering
Frittstående dobbelgarasje og biloppstillingsplasser på gårdsplassen.
Vei, vann og avløp
Eiendommen har adkomst via kommunal vei. Eiendommen er tilknyttet kommunalt ledningsnett via private stikkledninger. Eier er selv ansvarlig for private stikkledninger til boligen. Eiendommen har installert vannmåler.
Regulerings-og arealplaner
Eiendommen er regulert til boligformål i reguleringsplan Garderåsen III, vedtatt 22.06.1987, med tilhørende reguleringsbestemmelser. Formålet er frittliggende småhusbebyggelse.
Eiendommen omfattes av Kommuneplanens arealdel 2023–2035, vedtatt 14.06.2023. Arealbruken er i planen avsatt til boligbebyggelse.
I henhold til kommuneplanens § 1-2.1 gjelder reguleringsplaner foran kommuneplanen, men med unntak for utnyttelsesgrad. For eiendommen, som ligger i «ytre sone», er tillatt maksimum bebygd areal (BYA) 20 %. Dette kravet gjelder foran eldre reguleringsplaner. Planen stiller også krav til parkeringsdekning, hvor normen for småhus er maksimalt 2,0 bilplasser og minimum 2,0 sykkelplasser.
Eiendommen ligger i et område med moderat til lav aktsomhet for radon. Radon er en radioaktiv gass som kan sive inn i bygninger fra grunnen. Statens strålevern anbefaler radonmåling i alle boliger. Geologiske undersøkelser viser at eiendommen ligger i et område der det stort sett aldri finnes marin leire.
Utsnitt av plan med tilhørende bestemmelser kan fås ved henvendelse til megler.
Økonomi
Økonomi
Kommunale utgifter
Kommunale avgifter inkluderer avløp, feiing, renovasjon og vann.
Fakturert beløp i 2025:
- Avløp: kr 3 418,34,-
- Feiing: kr 555,96,-
- Renovasjon: kr 4 920,00,-
- Vann: kr 2 552,61,-
- Eiendomsskatt: kr 1 882,00,-
Totalt: kr 13 328,91,-
Årsprognose for 2026 er kr 10 716,81,-.
Eiendommen har installert vannmåler. Siste avlesning 24.11.2025 viste et forbruk på 28 m³ for 2025. Ifølge SSB er estimert gjennomsnittlig husholdningsforbruk pr. person 65 m³.
Eiendomsskatt for 2026 er ikke spesifisert, men var kr 1 882,- i 2025.
Øvrige driftskostnader opplyst av selger:
- Strømforbruk: ca. kr 29 400,- per år (22 600 kWh). Norgespris-avtale frem til 31.12.2026.
- Forsikring: ca. kr 10 400,- per år i Storebrand (bygningsforsikring, kjøper må tegne egen innboforsikring).
- TV/Internett: Privat abonnement hos Telia.
- Alarm: Eiendommen er tilknyttet alarm, men abonnement følger ikke med.
Utgiftene er basert på nåværende eiers forbruk og avtaler.
Formuesverdi
Ved hjelp av skatteetatens boligkalkulator er boligens formuesverdi beregnet til kr 1 784 548,- for fjoråret når boligen benyttes som primærbolig.
Formuesverdien er en gitt prosent av den beregnede markedsverdien. Beregnet markedsverdi er basert på Statistisk sentralbyrå (SSB) sine opplysninger om omsatte boliger. I beregningen tas det hensyn til boligens beliggenhet, areal, byggeår og boligtype.
Det er eier av boligen som fastsetter formuesverdien, jf. skatteforvaltningsloven § 9-1 første ledd, men skattemyndighetene kan kontrollere at verdien er satt riktig.
Fra 2026 har Stortinget vedtatt en oppdatert modell for beregning av formuesverdi for primærbolig, så avvik kan forekomme.
For mer informasjon se skatteetaten.no
Omkostninger
7 890 000,00 Prisantydning
Omkostninger
197 250,00 Dokumentavgift til staten (2,5% av kjøpesum)
19 900,00 Gjensidige Boligkjøperpakke (valgfri)
545,00 Tinglysing panterettsdokument
545,00 Tinglysing skjøte
--------------------------------------------------------
218 240,00 Omkostninger totalt
--------------------------------------------------------
8 108 240,00 Totalpris inkl. omkostninger
--------------------------------------------------------
Totalpris inkl. omkostninger forutsetter kjøp til prisantydning.
Det tas forbehold om endringer i avgifter og gebyrer.
Tilbud om lånefinansiering
Megler formidler gjerne kontakt med rådgiver hos Trøgstad Sparebank. De har konkurransedyktige betingelser samt rask og løsningsorientert behandling av din lånesøknad.
Betalingsbetingelser
Kjøpesum inkludert omkostninger, samt pantedokument tilknyttet eventuelt lån, skal være disponibelt hos megler 2 virkedager før overtagelsen.
Annen viktig informasjon
Annen viktig informasjon
Eier
Trude Aaltvedt
Overtakelse
Etter nærmere avtale.
Boligselgerforsikring
Selger har i forbindelse med salget tegnet boligselgerforsikring levert av Gjensidige.
Boligselgerforsikringen dekker selgers ansvar etter avhendingsloven begrenset oppad til kr 14 millioner. Dersom kjøper oppdager forhold ved eiendommen som hen mener utgjør en mangel ved eiendommen, vil Gjensidige behandle reklamasjonen på vegne av selger. Forsikringsvilkår kan fås ved henvendelse til megler.
Vedlagt salgsoppgaven følger selgers egenerklæringsskjema og tilstandsrapport. Interessenter må sette seg inn i dokumentene før bud inngis.
Boligkjøperforsikring
Innen kontraktsmøtet må kjøper ta stilling til om det ønskes å bestille Boligkjøperpakken gjennom Gjensidige. I denne gunstige pakken er boligen ferdig forsikret og inkluderer rettshjelpsforsikring, også kalt Boligkjøperforsikring. Rettshjelpsforsikring gir trygghet og tilgang på profesjonell juridisk hjelp dersom det oppdages uventede feil eller mangler det første året etter overtagelse. Forsikringsselskapet behandler i så fall ethvert mangelskrav kjøper måtte ha overfor selger.
Boligkjøperpakken inkluderer bygningsforsikring for hus og hytte, innboforsikring, flytteforsikring og dobbel rentedekning - i situasjoner hvor kjøper ikke får solgt nåværende primærbolig.
Kjøper mottar ingen særskilt faktura for Boligkjøperpakken da kostnaden det første året legges til kjøpesummen for boligen. Det gjøres oppmerksom på Krogsveen mottar et honorar for denne formidlingen.
Produktark for Boligkjøperpakken ligger vedlagt i salgsoppgaven.
Dersom ikke boligkjøperpakke ønskes kan kun rettshjelpsforsikring, også kalt boligkjøperforsikring, tegnes særskilt via megler. Rettshjelpsforsikringen varer i 5 år fra overtagelse og leveres gjennom Gjensidige. Ta kontakt med megler for ytterligere informasjon.
Selskap og privatpersoner som driver med kjøp/salg/utvikling som ledd i egen næringsvirksomhet kan ikke tegne boligkjøperpakke eller rettshjelpsforsikring.
Budgivning
Forbrukerinformasjon om budgivning er vedlagt denne salgsoppgaven og er også på vår hjemmeside Krogsveen.no. Alle bud og budforhøyelser må inngis skriftlig. I tillegg må legitimasjon være fremlagt sammen med signatur fra budgiver.
Vi oppfordrer til å gi bud elektronisk via GI BUD-knappen på eiendommens hjemmeside på Krogsveen.no. Da vil samtlige vilkår bli oppfylt.
Eventuelle forhøyelser eller endringer av budet kan bekreftes pr SMS eller på e-post. Vi oppfordrer alltid til å kontakte megler pr. telefon i tillegg da forsinkelser i SMS og e-post kan forekomme.
For at budene skal kunne bli behandlet og videreformidlet skriftlig til alle involverte parter, må alle bud ha en tilstrekkelig lang akseptfrist, jf. eiendomsmeglingsforskriften § 6-3.
Selger må også skriftlig akseptere budet før aksept kan formidles til budgiver. Akseptfrist bør derfor være på minimum 30 minutter, og budforhøyelser må derfor skje i god tid før fristens utløp.
Bud i forbrukerforhold kan uansett ikke settes med kortere frist enn kl. 12.00 første virkedag etter siste annonserte visning. I tillegg kan ikke budet ha forbehold om at det skal holdes hemmelig ovenfor øvrige interessenter. Megler har iht lov om eiendomsmegling ikke anledning til å videreformidle disse budene, og de vil dermed heller ikke bli journalført.
Etter at eiendommen er solgt vil kjøper og selger få tilsendt budjournal. Øvrige budgivere kan få utlevert kopi av budjournalen i anonymisert form.
Hvitvaskingsreglene
I henhold til lov om hvitvasking og terrorfinansiering har megler plikt til å gjennomføre kontrolltiltak overfor kunder, herunder fullmektiger. Dette innebærer bl.a. å bekrefte kunders og reelle rettighetshaveres identitet på bakgrunn av fremvist gyldig legitimasjon eller på annen godkjent måte, samt å innhente opplysninger om kundeforholdets formål og tilsiktede art.
Dersom slike kundetiltak ikke kan gjennomføres, kan megler ikke etablere kundeforholdet eller utføre transaksjonen.
Hvis kjøper ikke bidrar til gjennomføring av kundekontrollen og dette fører til at transaksjonen blir forsinket eller ikke kan gjennomføres, vil dette ansees som mislighold av avtalen og gi selger rettigheter etter avhendingslova kapittel 5. I tilfeller der selger ikke bidrar til gjennomføring av løpende kundekontroll underveis i oppdraget, er det selger som misligholder sine forpliktelser etter avtalen og gi kjøper rettigheter etter avhendingslovens kapittel 4. Partene er selv ansvarlige for eventuelle kostnader og ansvar dette kan medføre. Eiendomsmegleren eller eiendomsmeglingsforetaket kan ikke holdes ansvarlig for de konsekvenser dette vil kunne få for partene eller andre som har interesser i eiendomshandelen.
Kjøper oppfordres til å innbetale kjøpesummen som ikke kommer fra låneinstitusjon i én samlet innbetaling fra egen konto i norsk bank. Megler har plikt til å melde fra til Økokrim om eiendomshandler som fremstår som mistenkelige. Melding sendes Økokrim uten at partene varsles.
Personopplysningsloven
I henhold til personopplysningsloven gjør vi oppmerksom på at interessenter kan bli registrert for videre oppfølging.
Lovanvendelse
Generelle bestemmelser
Salgsoppgaven er basert på de opplysningene selger har gitt til megler, den bygningssakyndiges tilstandsrapport, samt opplysninger innhentet fra kommunen, Kartverket og andre tilgjengelige kilder. Det er viktig at kjøper setter seg grundig inn i alle salgsdokumentene, herunder salgsoppgave, tilstandsrapport og selgers egenerklæring. Kjøper anses kjent med forhold som er tydelig beskrevet i salgsdokumentene, og slike forhold kan ikke påberopes som mangler. Dette gjelder uavhengig av om kjøper har lest dokumentene. Alle interessenter oppfordres til å undersøke eiendommen nøye, gjerne sammen med fagkyndig før bud inngis. Kjøper som velger å kjøpe usett kan ikke gjøre gjeldende som mangel noe han burde blitt kjent med ved undersøkelsen.
Dersom det er behov for avklaringer, anbefaler vi at interessenter rådfører seg med eiendomsmegler eller egne rådgivere før det legges inn bud.
En bolig som har blitt brukt i en viss tid, har vanligvis blitt utsatt for slitasje og skader kan ha oppstått. Slik bruksslitasje må kjøper regne med, og det kan avdekkes enkelte forhold etter overtakelse som nødvendiggjør utbedringer. Normal slitasje og skader som nødvendiggjør utbedring, er innenfor hva kjøper må forvente og vil ikke utgjøre en mangel.
Kjøper og selgers rettigheter og plikter reguleres av avtalen mellom partene, samt informasjonen som har vært tilgjengelig for kjøperen i forbindelse med handelen. Avtalen utfylles av avhendingsloven, og det gjelder ulike avtalevilkår avhengig av om kjøper er forbrukerkjøper eller ikke. Dette er nærmere beskrevet nedenfor.
På grunn av ulike avtalevilkår kan selger vurdere bud fra en som ikke er forbruker, ulikt fra en forbrukers bud. Dersom kjøper ikke er forbruker, er selger sitt mulige mangelsansvar begrenset fordi eiendommen selges "som den er". Selger kan ikke ta «som den er»- forbehold overfor en forbrukerkjøper. Selv et lavere bud fra en som ikke er forbruker kan foretrekkes fordi begrensningen i mulig mangelsansvar kan ha egenverdi for selger. Selger står fritt til å forkaste eller akseptere ethvert bud, og er for eksempel ikke forpliktet til å akseptere høyeste bud.
Budgiver skal i budskjema avgi egenerklæring om budgiver er forbruker eller næringsdrivende/ person som hovedsakelig handler som ledd i næringsvirksomhet. Budgivere får informasjon dersom andre bud er inngitt av en som ikke er forbruker.
Forbrukerkjøp - definisjon
Med forbrukerkjøp menes kjøp av eiendom når kjøperen er en fysisk person som ikke hovedsakelig handler som ledd i næringsvirksomhet.
Forbruker – avtalevilkår
Eiendommen har en mangel dersom den ikke er i samsvar med kravene som følger av avtalen, eller det foreligger brudd på bestemmelsene i avhendingsloven §§ 3-2 til 3-8. Hvis eiendommen ikke er i samsvar med det kjøperen må kunne forvente ut ifra alder, type og synlig tilstand, kan det være grunnlag for mangelskrav. Det samme gjelder hvis det er holdt tilbake eller gitt uriktige opplysninger om eiendommen. Dette gjelder likevel bare dersom man kan gå ut ifra at det virket inn på avtalen at opplysningen ikke ble gitt eller at mangelskravet ikke blir rettet i tide på en tydelig måte.
Boligen kan ha en mangel etter avhendingsloven § 3-3 andre ledd, dersom det er avvik mellom opplyst og faktisk innvendig areal, forutsatt at avviket er på 2% eller mer og minimum 1 kvm.
Ved beregning av et eventuelt prisavslag eller erstatning må kjøper selv dekke tap/kostnader opptil et beløp på kr 10 000 (egenandel).
Ikke-forbruker (næringsdrivende) – definisjon
Hvis kjøper er en juridisk person, eller en fysisk person som hovedsakelig handler som ledd i næringsvirksomhet, vil kjøpet ikke anses som et forbrukerkjøp.
Ikke-forbruker – avtalevilkår
Eiendommen har en mangel dersom den ikke er i samsvar med kravene som følger av avtalen.
Eiendommen selges «som den er», og selgers ansvar utover det konkret avtalte er da begrenset etter avhendingsloven § 3-9, første ledd andre setning.
Avhendingsloven § 3-3 andre ledd fravikes, og hvorvidt boligens arealsvikt utgjør en mangel vurderes etter avhendingsloven § 3-8.
Informasjon om kjøpers undersøkelsesplikt, herunder oppfordringen om å undersøke eiendommen nøye, gjelder også for kjøpere som ikke anses som forbrukere.
Det forutsettes at hjemmel overføres til kjøper. Hvis kjøper ikke ønsker hjemmelsoverføring av eiendommen, må det tas forbehold om dette i budet.
Meglers vederlag
Meglers vederlag betales av selger og er avtalt til:
Vederlag: 0,80 % av salgssummen inkl. eventuell fellesgjeld. Minimumsprovisjon er kr 60 000,00
Vederlag:
Kontroll av hjemmel og heftelser kr 4 500,-
Markedsføringspakke kr 29 900,-
Oppgjør kr 8 900,-
Tilrettelegging kr 17 500,-
Visninger / Overtagelse kr 2 900,- pr stk. 2.inkl.
Utlegg:
Innhenting av offentlig opplysninger fra Lillestrøm kommune kr 4 477,-
Tinglysing sikring kr 545,-
Andre utgifter:
AX tilstandsrapport enebolig kr 20 625,-
Boligselgerforsikring Gjensidige Eiet - regnes av prisantydning kr 45 680,-
Foto Dag og drone bilder kr 5 000,-
Vi er opptatt av verdiskapning, og har knyttet til oss samarbeidspartnere som skal sikre våre kunder de beste produkter og tjenester;
• I forbindelse med forberedelse av salget, innhenter vi informasjon om eiendommen hovedsakelig fra vår samarbeidspartner Amibita.
• Gjensidige leverer boligselgerforsikring og tilbyr bygningsforsikring
• Boligkjøperforsikring leveres av Hiscox og med Sedgwick som skadebehandler, og er formidlet gjennom Gjensidige.
• BN bank tilbyr finansieringsløsninger
• Vår avdeling Krogsveen Pluss tilbyr flyttetjenester som utvask, visningsvask, lager, tømming og transport av flyttelass, i tillegg til å formidle kontakt med Flip for overflateoppussing.
• I forbindelse med overtagelse av eiendommen tilbyr Overo avtale om strøm, alarm og bredbånd.
• Krogsveen er, sammen med øvrige bransjeaktører, medeier i Bomega AS som tilbyr den digitale annonseringsplattformen Hjem.
Opplysninger om oppdraget
Oppdragsnummer 60-0115/26
Eiendomsmegler Krogsveen AS, avd. Lillestrøm
Adolph Tidemands gate 38, 2000, LILLESTRØM
950 007 613
Oppdragets KR-kode KR60.26115
Dato
Sist oppdatert: 16. mars 2026 kl. 15:06
Dokumenter
Dokumenter
PDF – 943 KB
PDF – 167 KB
PDF – 2 MB
PDF – 1 MB
PDF – 848 KB
PDF – 4 MB
PDF – 5 MB
PDF – 312 KB
PDF – 29 KB
PDF – 127 KB
PDF – 392 KB
Område
Legg til steder som er viktige for deg
Visning
Unngå doble boligrenter
Vi tilbyr gunstig forsikring.
Vurderer du utleie?
Få et tilbud fra Utleie KrogsveenHva koster lånet?
Sjekk estimert lånekostnadVil du varsles om lignende boliger?
Ved å lagre ditt boligsøk hos oss får du beskjed når vi har en bolig som ligner denne, før den legges ut på markedet!

