Finnholtvegen 179
1 800 000 kr
101 m²
3 soverom
Solgt
DISENÅ - Enebolig med alt på en flate | 3 sov| Solrik tomt| Garasje| Oppgraderingsbehov!
Prisantydning
1 800 000 krTotalpris
1 800 000 kr
Pris
Bruksareal
130 m²BRA-I (internt bruksareal)
101 m²BRA-E (eksternt bruksareal)
29 m²TBA (terrasse-balkongareal)
22 m²
Areal
Etasje
1Byggeår
1983Soverom
3 soveromBad
1 badTomteareal
1 165 m² (eiet)Type
Enebolig - FrittliggendeEierform
EietFasiliteter
Garasje/P-plass og Balkong/TerrasseEnergimerke
Oransje F
Nøkkelinfo
Unngå doble boligrenter
Vi tilbyr gunstig forsikring.
Vurderer du utleie?
Få et tilbud fra Utleie KrogsveenHva koster lånet?
Sjekk estimert lånekostnadBeskrivelse
Kort om eiendommen
Velkommen til Finnholtvegen 179 – en koselig enebolig på ett plan, beliggende i naturskjønne og landlige omgivelser.
Boligen ligger idyllisk til på Disenå i Sør-Odal kommune, omgitt av et rolig boligområde. Her bor du bare 11 minutters kjøretur (ca. 9 km) fra Skarnes, kommunesenteret med alle nødvendige fasiliteter. Eneboligen har en sjarmerende beliggenhet langs Finnholtvegen og kombinerer landlig ro med kort avstand til både service og transport.
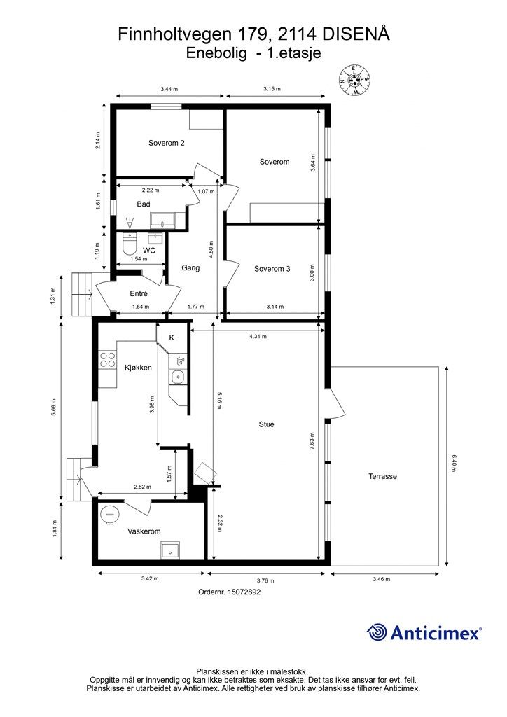
Med kun 2 km til Disenå barnehage, er dette et perfekt sted for barnefamilier som ønsker trygg og praktisk hverdagslogistikk – midt i naturen. Inne i boligen finner du entré, toalettrom, bad, stor stue med plass til sofa og spisegruppe, kjøkken, vaskerom, oppbevaringsrom og 3 soverom, samt garasje utendørs. Boligen har behov for oppgradering.
Område
Legg til steder som er viktige for deg
På flyttefot? Tenk kjøp og salg samtidig.
Få din egen rådgiver gjennom hele kjøps- og salgsprosessen. Det starter med en verdivurdering.
Unngå doble boligrenter
Vi tilbyr gunstig forsikring.
Vurderer du utleie?
Få et tilbud fra Utleie KrogsveenHva koster lånet?
Sjekk estimert lånekostnadVil du varsles om lignende boliger?
Ved å lagre ditt boligsøk hos oss får du beskjed når vi har en bolig som ligner denne, før den legges ut på markedet!




