Dag Hammarskjölds vei 163
3 890 000 kr
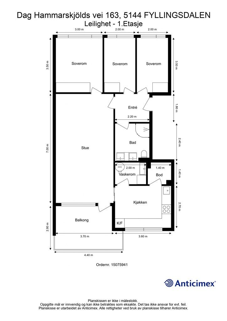
80 m²
3 soverom
Solgt

Presenteres av
Henriette MuriFin og moderne 4-roms leilighet med gangavstand til bybane & Oasen senter! | Balkong | Rehabilitert fasade og rør i brl.
Prisantydning
3 890 000 krOmkostninger
11 040 krTotalpris
3 901 040 kr
Pris
Bruksareal
84 m²BRA-I (internt bruksareal)
80 m²BRA-E (eksternt bruksareal)
4 m²
Areal
Etasje
1Byggeår
1969Soverom
3 soveromBad
1 badType
AndelsleilighetEierform
AndelFasiliteter
Balkong/TerrasseFellesutgifter
6 054 krEnergimerke
Rød F
Nøkkelinfo
Unngå doble boligrenter
Vi tilbyr gunstig forsikring.
Vurderer du utleie?
Få et tilbud fra Utleie KrogsveenHva koster lånet?
Sjekk estimert lånekostnadBeskrivelse
Kort om eiendommen
Sentral leilighet, midt i kjernen av Fyllingsdalen. I umiddelbar nærhet finner man Oasen senter/Bybane. Det er også svært gode bussforbindelser like utenfor bygningen og ellers på Fyllingsdalen terminal.
Høydepunkter:
Nytt, slitesterkt vinylgulv fra 2021 gjennomgående i leiligheten.
Rehabilitert fasaden (inkl. byttet alle vinduer), samt nyisolert fra utsiden og nyoppusset terrassen i 2025 i regi av brl.
Rørfornying på kjøkkenet i 2023 i regi av brl.
Fantastisk morgensol.
Eget vaskerom.
Ingen dokumentavgift
Kort avstand til Oasen senter med alle daglige servicetilbud, samt Bybane/buss.
Skoler, barnehage, idrettsanlegg og butikker i umiddelbar nærhet.
Fine turmuligheter på Løvstakken og Kanadaskogen.
Område
Legg til steder som er viktige for deg
På flyttefot? Tenk kjøp og salg samtidig.
Få din egen rådgiver gjennom hele kjøps- og salgsprosessen. Det starter med en verdivurdering.
Unngå doble boligrenter
Vi tilbyr gunstig forsikring.
Vurderer du utleie?
Få et tilbud fra Utleie KrogsveenHva koster lånet?
Sjekk estimert lånekostnadVil du varsles om lignende boliger?
Ved å lagre ditt boligsøk hos oss får du beskjed når vi har en bolig som ligner denne, før den legges ut på markedet!
På flyttefot? Slik gjør vi det enklere for deg
Skreddersydd flyttepakke
Vi fikser håndverkere, vask, pakking, lagring og transport, og legger ut for utgiftene underveis.
Hjelp med både kjøp og salg
Hos oss har du din egen rådgiver gjennom hele kjøps- og salgsprosessen.
Hjelp til finansiering
Vårt samarbeid med BN Bank sikrer deg rask og løsningsorientert hjelp, til konkurransedyktige betingelser.

