Bjerkelundsveien 62B
12 900 000 kr
221 m²
4 soverom
Solgt

Grav/Jar
Usjenert enebolig over to plan med store vinduer. Hybel, hage og garasje. Attraktivt boområde ved Grav skole. Oppussing
Prisantydning
12 900 000 krOmkostninger
343 490 krTotalpris
13 243 490 kr
Pris
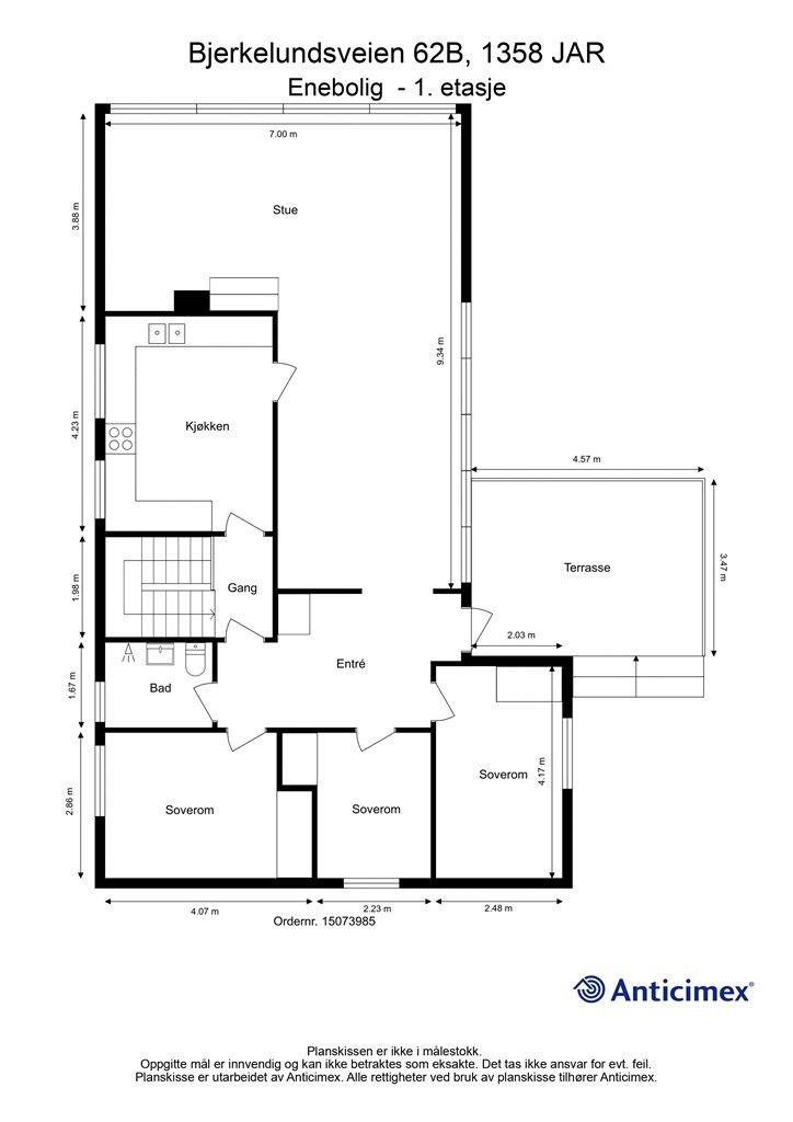
Bruksareal
238 m²BRA-I (internt bruksareal)
221 m²BRA-E (eksternt bruksareal)
17 m²TBA (terrasse-balkongareal)
21 m²
Areal
Etasje
2Byggeår
1968Soverom
4 soveromBad
2 badTomteareal
957 m² (eiet)Type
Enebolig - FrittliggendeEierform
EietFasiliteter
Garasje/P-plass og Balkong/TerrasseEnergimerke
Rød G
Nøkkelinfo
Unngå doble boligrenter
Vi tilbyr gunstig forsikring.
Vurderer du utleie?
Få et tilbud fra Utleie KrogsveenHva koster lånet?
Sjekk estimert lånekostnadBeskrivelse
Kort om eiendommen
Velkommen til Bjerkelundsveien 62B – en sjelden mulighet til å forme din egen drømmebolig i et av områdets mest attraktive og barnevennlige nabolag!
Eneboligen har en gjennomtenkt planløsning over to etasjer med store, lyse oppholdsrom, og store vindusflater i begge etasjer. Det er hybel i underetasjen som gir fleksibel mulighet enten som ekstra inntekt eller ekstra oppholdsrom. Boligen omkranses av en nydelig hage med solrike uteplasser. Det følger med garasje samt egen carport. Eiendommen har en fantastisk beliggenhet med gangavstand til både barnehager, skoler, buss og T-bane. Potensiale for påbygg. Se avsnitt "Regulerings- og arealplaner" i salgsoppgaven.
Et hjem med stort potensial – perfekt for deg som vil skape noe eget i et veletablert nabolag!
Må oppleves!
Område
Legg til steder som er viktige for deg
På flyttefot? Tenk kjøp og salg samtidig.
Få din egen rådgiver gjennom hele kjøps- og salgsprosessen. Det starter med en verdivurdering.
Unngå doble boligrenter
Vi tilbyr gunstig forsikring.
Vurderer du utleie?
Få et tilbud fra Utleie KrogsveenHva koster lånet?
Sjekk estimert lånekostnadVil du varsles om lignende boliger?
Ved å lagre ditt boligsøk hos oss får du beskjed når vi har en bolig som ligner denne, før den legges ut på markedet!

