Havreveien 40
4 490 000 kr
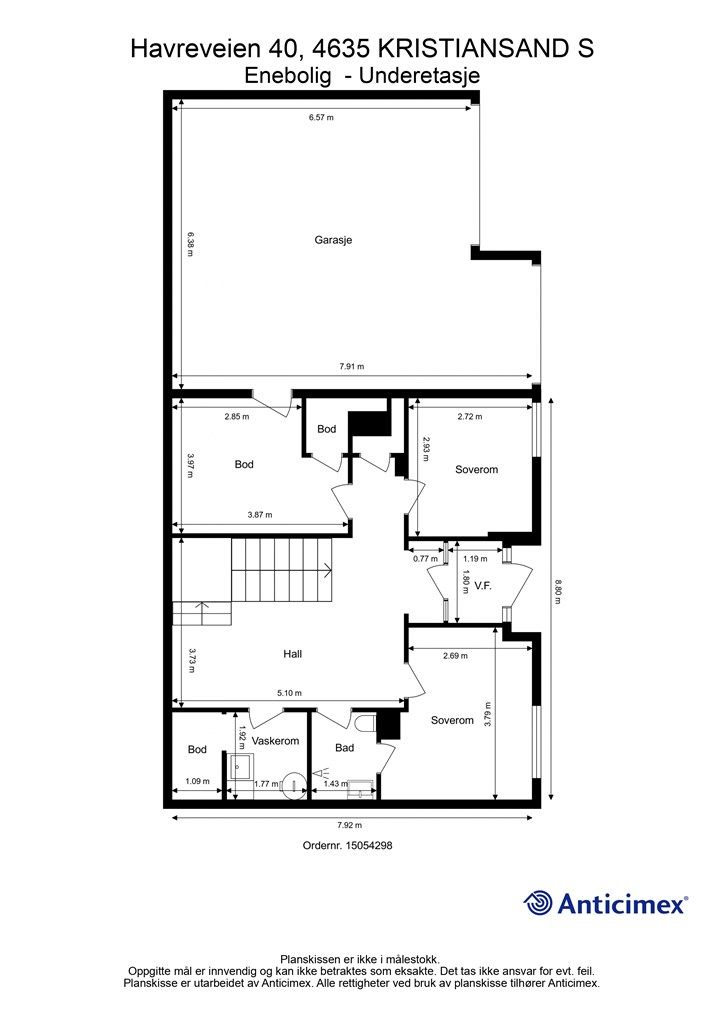
216 m²
3 soverom
Solgt

Romslig og familievennlig enebolig på Hånes i hyggelig botun- Solrikt og rolig området!
Prisantydning
4 490 000 krOmkostninger
133 240 krTotalpris
4 623 240 kr
Pris
Bruksareal
216 m²BRA-I (internt bruksareal)
216 m²TBA (terrasse-balkongareal)
36 m²
Areal
Etasje
2Byggeår
1977Soverom
3 soveromBad
2 badTomteareal
516 m² (eiet)Type
Enebolig - FrittliggendeEierform
EietEnergimerke
Rød G
Nøkkelinfo
Unngå doble boligrenter
Vi tilbyr gunstig forsikring.
Vurderer du utleie?
Få et tilbud fra Utleie KrogsveenHva koster lånet?
Sjekk estimert lånekostnadBeskrivelse
Kort om eiendommen
Eiendommen i Havreveien 40 er en frittliggende enebolig, beliggende i et etablert boligområde på Hånes i Kristiansand. Boligen ligger i et rolig og familievennlig nabolag med flere eneboliger i nærheten, kort avstand til turområder og gode hverdagsfasiliteter på Hånes.
Området er meget barnevennlig med stort plenareal, leke plass like ved, sol fra tidlig morgen til sene kvelden. Botunet er stille og rolig.
Eiendommen er pent opparbeidet med hagearealer som gir gode uteplasser. Boligen har også en praktisk planløsning som passer godt for familier.
Velkommen til visning!
Område
Legg til steder som er viktige for deg
På flyttefot? Tenk kjøp og salg samtidig.
Få din egen rådgiver gjennom hele kjøps- og salgsprosessen. Det starter med en verdivurdering.
Unngå doble boligrenter
Vi tilbyr gunstig forsikring.
Vurderer du utleie?
Få et tilbud fra Utleie KrogsveenHva koster lånet?
Sjekk estimert lånekostnadVil du varsles om lignende boliger?
Ved å lagre ditt boligsøk hos oss får du beskjed når vi har en bolig som ligner denne, før den legges ut på markedet!

