Flyveien 13
4 000 000 kr
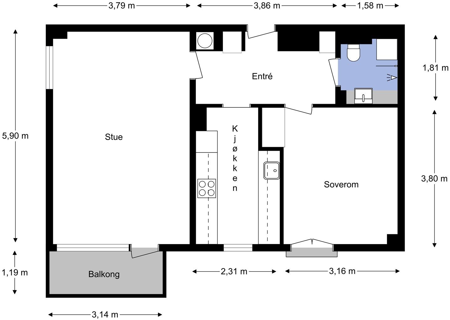
56 m²
1 soverom
Solgt

Vestre Holmen
Romslig leilighet med separat kjøkken og luftig, vestvendt balkong. Heis -parkering*- Nært t-bane, butikker og marka
Prisantydning
4 000 000 krAndel fellesgjeld
154 026 krOmkostninger
114 890 krTotalpris
4 268 916 kr
Pris
Bruksareal
63,5 m²BRA-I (internt bruksareal)
56 m²BRA-E (eksternt bruksareal)
7,5 m²TBA (terrasse-balkongareal)
4 m²
Areal
Etasje
2Byggeår
1947Soverom
1 soveromBad
1 badType
EierleilighetEierform
EierseksjonFasiliteter
Garasje/P-plass, Heis og Balkong/TerrasseFellesutgifter
3 991 krEnergimerke
Rød F
Nøkkelinfo
Unngå doble boligrenter
Vi tilbyr gunstig forsikring.
Vurderer du utleie?
Få et tilbud fra Utleie KrogsveenHva koster lånet?
Sjekk estimert lånekostnadBeskrivelse
Kort om eiendommen
Velkommen til Flyveien 13 – en lys og trivelig 2-roms hjørneleilighet med heis. Her får du et separat kjøkken, et romslig soverom med fransk balkong, flislagt bad fra 2009 og en stor stue med utgang til vestvendt balkong. Hele leiligheten er overflatebehandlet i 2025 og fremstår meget velholdt. Boligen ligger i et rolig og veletablert boligområde på Vestre Holmen, skjermet innerst i blindvei. Her har du store og velstelte grøntområder som omkranser bebyggelsen, flotte tur- og rekreasjonsmuligheter og kort vei til offentlig kommunikasjon.
Hjørneleilighet med godt lysinnslipp
Heis
Vestvendt balkong
Godt med bodplass fordelt på tre boder
Lademuligheter (i sameiet og kommunalt) - Parkering utendørs etter "førstemann til mølla", eller i garasje etter venteliste*
Nærhet til Røa sentrum
Område
Legg til steder som er viktige for deg
På flyttefot? Tenk kjøp og salg samtidig.
Få din egen rådgiver gjennom hele kjøps- og salgsprosessen. Det starter med en verdivurdering.
Unngå doble boligrenter
Vi tilbyr gunstig forsikring.
Vurderer du utleie?
Få et tilbud fra Utleie KrogsveenHva koster lånet?
Sjekk estimert lånekostnadVil du varsles om lignende boliger?
Ved å lagre ditt boligsøk hos oss får du beskjed når vi har en bolig som ligner denne, før den legges ut på markedet!

