Rollsløkkvegen 13
7 500 000 kr
273 m²
5 soverom
Komplett salgsoppgave
Hamar
Hel tomannsbolig innredet med 2 boenheter og 3 hybler. Sentrumsnær beliggenhet med gangavstand til "alt".
Prisantydning
7 500 000 krOmkostninger
208 490 krTotalpris
7 708 490 kr
Pris
Bruksareal
273 m²BRA-I (internt bruksareal)
273 m²
Areal
Byggeår
1952Soverom
5 soveromBad
4 badTomteareal
814 m² (eiet)Type
Hel 2-mannsboligEierform
EietEnergimerke
Rød G
Nøkkelinfo
Unngå doble boligrenter
Vi tilbyr gunstig forsikring.
Vurderer du utleie?
Få et tilbud fra Utleie KrogsveenHva koster lånet?
Sjekk estimert lånekostnadBeskrivelse
Kort om eiendommen
Velkommen til Rollsløkkvegen 13!
Hel 2-mannsbolig med 3 hybler i sokkeletasjen. Gode muligheter for utleie.
Boligen fremstår som romslig og velholdt, med gode lysforhold. Det er en funksjonell og god planløsning i begge etasjene. Begge leilighetene har hver sin inngang i første etasje. Hyblene i sokkeletasjen er tilknyttet leiligheten i 1. etasje. Hyblene deler inngang i sokkeletasjen.
Meget sentral og god beliggenhet i attraktivt og barnevennlig område. Kort vei til barnehager, skoler, butikker og Hamar.
Innhold og byggemåte
Innhold og byggemåte
Eiendommen
Rollsløkkvegen 13, 2318 HAMAR
Kommunenummer 3403, gårdsnummer 1, bruksnummer 2307, ideell andel 1/1
Innhold
Totalt bruksareal BRA: 273 kvm
BRA-i:
Hel tomannsbolig:
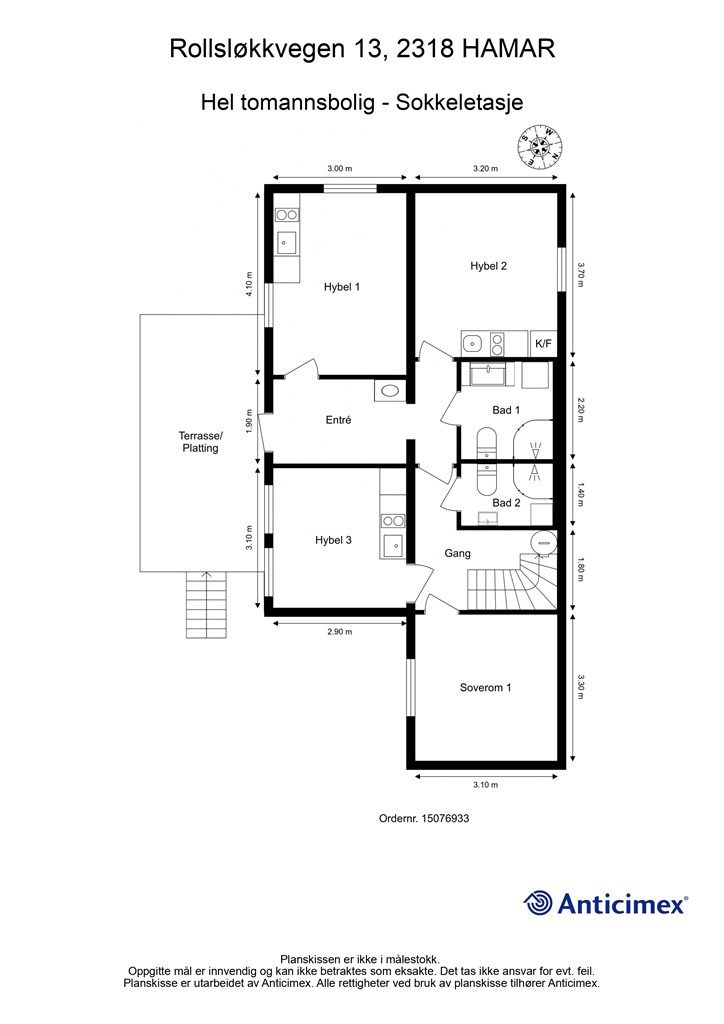
Kjeller: 76 kvm: Entré, gang, tre hybler med kjøkkeninnredning, to bad og et soverom.
1. etasje 89 kvm: Entré/trappegang, entré, gang, bod, bad, to soverom, kjøkken og stue.
2. etasje 75 kvm: Gang, bad, to soverom, kjøkken og stue.
3. etasje 33 kvm: Kaldtloft.
Deler av arealene på kaldtloftet oppfyller vilkår for måleverdighet og er derfor medregnet som en del av boligens bruksarealer. Kaldtloftet har et totalt gulvareal (GUA) på 76 kvm, men grunnet skråtak/lav takhøyde er kun 33 kvm av arealet måleverdig som bruksareal. De delene av arealene som har lav himlingshøyde (ALH) utgjør 43 kvm.
Vedlagte plantegninger er ikke målbare. De oppgitte arealer er hentet fra rapport med befaringsdato 06.11.2025 utført av Anticimex v/Pål Granseth Aasbakken. Arealene er beregnet og rom er definert etter dagens faktiske bruk, uavhengig av hva som er godkjent av bygningsmyndighetene.
Byggemåte
Selger har fått utarbeidet en tilstandsrapport, dvs. en teknisk gjennomgang av boligen hvor eventuelle avvik, risiko for kjøper og prisoverslag for hva som bør gjøres av oppgradering, er skissert. Se særskilt TGIU (tilstandsgrad ikke undersøkt), samt TG2 og TG3 som viser hva som er boligens normale slitasje, alder og type, hva som er avvik fra dette og hva som bør/må utbedres. Rapporten og selgers egenerklæring er en del av salgsoppgaven og må leses nøye før bud inngis. Kjøper overtar ansvaret for de opplysninger som fremkommer av salgsdokumentasjonen, og kan ikke gjøre gjeldende som mangel noe som burde vært kjent eller som ikke kan anses å ha betydning for avtalen.
Bygningen er iht. tilstandsrapporten:
Boligbygg oppført i 1952, med tilbygg fra ukjent årstall. Grunnmur av betong. Fundamentert på ukjent byggegrunn. Bygget er oppført med støpt gulv mot grunn. Yttervegger av trekonstruksjoner. Fasaden er kledd med stående trekledning. Etasjeskillere av trekonstruksjoner. Saltak i trekonstruksjoner. Yttertak er utvendig tekket med takstein. Entrédører med glassfelter. Vinduer i forskjellig utførelse, fra forskjellige årstall. Elektrisk oppvarming. Ventilasjon med naturlig tilluft kombinert med stedvis mekanisk avtrekk.
Det gjøres spesielt oppmerksom på at følgende bygningsdeler er gitt tilstandsgrad 3 (TG3):
- Rom under terreng (kjeller, underetasje, sokkeletasje) - Underetasje: Helhetsvurdering
- Loft - uinnredet / råloft: Helhetsvurdering
- Yttertak: Helhetsvurdering
Flere bygningsdeler er gitt tilstandsgrad 2 (TG2).
Se supplerende tekst i tilstandsrapporten. Kjøper overtar ansvar og risiko for dette.
Iht. tilstandsrapporten: Kre observeres på i hybel 1 (ukjent om observerte insekter er sølv- eller skjeggkre).
Skjeggkre kan ifølge skadedyrfirmaene bekjempes ved sanering av skadedyrfirmaer, bruk av limfeller samt regelmessig støvsuging/rengjøring. Kjøper overtar risikoen for dette forholdet. Konferer med megler for ytterligere informasjon.
Standard
LEILIGHET - 1. ETASJE
Bad:
Baderom fra ukjent eksakt årstall med gulvflate belagt med gulvbelegg, baderomsplater på vegger og takplater i himling. Vegghengt servantinnredning, dusjhjørne med forheng og gulvstående toalett. Det er opplegg for vaskemaskin.
Kjøkken:
Åpen kjøkkenløsning med innredningen fra ukjent årstall. Innredning med profilerte fronter, benkeplate av tre og nedfelt oppvaskkum med kjøkkenarmatur. Benkeskapsbelysning og stikkontakter over kjøkkenbenk. Integrert stekeovn, platetopp, oppvaskmaskin og kjøleskap med fryser. Vegghengt ventilator. Komfyrvakt. Gulvflater belagt med parkett, vegg- og himlingsflater i malt panel og fliser mellom kjøkkenbenk og overskap.
Øvrige rom:
Gulvflater belagt med parkett og vegg- og himlingsflater i malt panel/panelplater og malt murpuss. Profilerte innerdører. Naturlig ventilasjon via ventiler.
LEILIGHET - 2. ETASJE
Bad:
Baderom fra ukjent eksakt årstall, vurdert til å være delvis oppgradert i 2013 (basert på datomerking på avløpsrør for servant). Flislagt gulv med gulvvarme, Flislagte vegger og
malte flater i himling. Vegghengt servantinnredning, vegghengt baderomsmøbel, dusjkabinett, og gulvstående toalett. Det er opplegg for vaskemaskin og varmtvannsbereder er plassert i hjørne.
Kjøkken:
Åpen kjøkkenløsning med innredningen er fra ukjent årstall. Innredning med profilerte fronter, benkeplate av tre og nedfelt oppvaskkum med kjøkkenarmatur. Benkeskapsbelysning og stikkontakter over kjøkkenbenk. Integrert stekeovn, platetopp, oppvaskmaskin og kjøleskap med fryser. Vegghengt ventilator. Komfyrvakt. Gulvflater belagt med parkett, vegg- og himlingsflater i malt panel og fliser mellom kjøkkenbenk og overskap.
Øvrige rom:
Gulvflater belagt med parkett og vegg- og himlingsflater i malt panel/panelplater og malt murpuss. Profilerte innerdører. Naturlig ventilasjon via ventiler.
HYBEL 1 - SOKKELETASJE
Bad (deles med hybel 2):
Baderom fra ukjent eksakt årstall med flislagt gulv med gulvvarme, flislagte vegger og malte flater i himling. Vegghengt servantinnredning, dusjhjørne med dører og gulvstående toalett. Det er opplegg for vaskemaskin og varmtvannsbereder er plassert i hjørne.
Kjøkken:
Kompakt hybelkjøkken (kun vurdert innredning, hybler er ellers vurdert under avsnitt "rom under terreng"). Innredningen er fra ukjent årstall, innredning med glatte fronter og benkeplate av rustfritt stål med nedfelt oppvaskkum med kjøkkenarmatur. Integrerte kokeplater og kjøleskap, ventilator i overskap. Det er kun de hvitevarene som er listet opp som følger med. Disse hvitevarene følger med:
HYBEL 2 - SOKKELETASJE
Bad:
Se info under "Hybel 1" da disse to deler baderom.
Kjøkken:
Kompakt hybelkjøkken (kun vurdert innredning, hybler er ellers vurdert under avsnitt "rom under terreng"). Innredningen er fra ukjent årstall, innredning med glatte fronter og benkeplate av rustfritt stål med nedfelt oppvaskkum med kjøkkenarmatur. Integrert koketoppog kjøleskap, ventilator i overskap. Det er kun de hvitevarene som er listet opp som følger med. Disse hvitevarene følger med:
HYBEL 3 - SOKKELETASJE
Bad:
Baderom fra ukjent eksakt årstall med flislagt gulv med gulvvarme, flislagte vegger og malte flater i himling. Vegghengt servantinnredning, dusjhjørne med dører og gulvstående toalett. Det er opplegg for vaskemaskin.
Kjøkken:
(Kun vurdert innredning, hybler er ellers vurdert under avsnitt "rom under terreng"). Innredningen er fra ukjent årstall, innredning med glatte fronter og benkeplate av tre og rustfritt stål med nedfelt oppvaskkum med kjøkkenarmatur. Stikkontakt over kjøkkenbenk. Integrert stekeovn, platetopp og kjøleskap, ventilator i overskap. Metallplate mellom kjøkkenbenk og overskap. Det er kun de hvitevarene som er listet opp som følger med. Disse hvitevarene følger med:
GENERELT SOKKELETASJE
Gulvflater belagt med parkett, laminat og fliser. Vegg- og himlingsflater i malte flater, malt mur og panelplater. Profilerte innerdører. Mekanisk avtrekksventilasjon i deler av underetasjen med tilluftsventiler i vegger.
LOFT
Uinnredet kaldtloft med adkomst via trapp. Synlige taksperrer og isolasjon (sagflis) mot underliggende etasje. Brorparten av gulvet er belagt med heltre plank.
Løsøre og tilbehør
Vi viser til liste fra Norges Eiendomsmeglerforbund som gjelder fra 01.01.2020 angående løsøre og tilbehør.
Oppvarming
Boligen varmes opp via elektrisk oppvarming.
Dersom beboelsesrom ikke har vegg- eller fastmonterte varmekilder ved visning, følger dette heller ikke med.
Ferdigattest/brukstillatelse
Eiendommen har vært brukt til boligformål siden 1952.
Kommunen opplyser at det ikke foreligger ferdigattest eller midlertidig brukstillatelse for eiendommen. Det finnes av den grunn ikke dokumentasjon over eiendommens lovlighet. Kjøper overtar eiendommen slik den fremstår på visning med risiko og ansvaret for eventuelle pålegg fra kommunen og kostnader forbundet med dette.
Det gjøres oppmerksom på at det ikke lenger utstedes ferdigattest på tiltak det er søkt om før 1998 jf. plan- og bygningsloven § 21-10. Kommunen vil ikke kreve ferdigattest for disse tiltakene og vil avvise eventuelle søknader. Bestemmelsen innebærer ikke at tiltak med manglende søknad blir lovlige, men at man ikke trenger å avslutte gamle byggesaker. Normalt sett kreves ferdigattest for alle søknadspliktige tiltak som gjøres etter plan- og bygningsloven.
Det foreligger ferdigattest på bruksendring av kjeller til boligformål på eiendommen datert 19.05.2021. Denne kan fås ved henvendelse til megler.
Kjøper overtar eiendommen slik den framstår på visning.
Tinglyste heftelser og rettigheter
Det er tinglyst følgende servitutter på eiendommen.
Dagboknr. 101656, tinglyst 27.06.1952, type heftelse: Rettigheter iflg. skjøte. Bestemmelse om bebyggelse. Bestemmelse om vann/kloakkledning.
Dagboknr. 958411, tinglyst 06.11.2013, type heftelse: Bestemmelse om vann/kloakkledning. Rett for kommunen til å anlegge og vedlikeholde ledninger m.m.
Servituttene vil følge eiendommen. Kjøpers bank vil få prioritet etter ovennevnte heftelser og servitutter. Kopi av servituttene kan fås ved henvendelse til megler.
Eventuell adgang til utleie
Tomannsboligen er godkjent som 2 separate boenheter, og 3 godkjente hybler i kjelleren, og kan lovlig leies ut. Hyblene i sokkeletasjen er tilknyttet leiligheten i 1. etasje, men har inngang fra sokkeletasjen.
Hyblene deler bad, med inngang fra felles gang, mens hybelleiligheten har to rom og eget bad.
Det gjøres oppmerksom på at det er krav til forsvarlige radonnivåer ved utleie. Det er ikke gjennomført radonmåling på denne boligen.
Beliggenhet og tomteforhold
Beliggenhet og tomteforhold
Beliggenhet
Sentrumsnær beliggenhet med gangavstand til alt av Hamars byfasiliteter. Hamar har et rikt kulturliv, aktivitetsmuligheter og fine tur- og bademuligheter langs Mjøsa. Kjøpesenteret CC Hamar er en kort spasertur fra eiendommen og har en rekke butikker, spisesteder, matbutikk, apotek og treningssenter. En ypperlig beliggenhet om man ønsker å benytte seg og ha de urbane tilbudene innen en kort rekkevidde. Ca. 15 minutters gange til togstasjonen. Se ellers vedlagt nabolagsprofil for avstander til diverse fasiliteter.
Adkomst
Se kart for adkomst.
Det vil bli skiltet med Krogsveen visningsskilt ved fellesvisninger.
Beskrivelse av tomt
Eiertomt på ca. 814 kvm som er opparbeidet med grus, steinheller, diverse beplantninger, plenareal og biloppstillingsplass.
Parkering
Parkering på egen gårdsplass.
Vei, vann og avløp
Eiendommen har adkomst via kommunal vei.
Eiendommen er tilknyttet kommunalt ledningsnett via private stikkledninger. Eier er selv ansvarlig for private stikkledninger til boligen.
Regulerings-og arealplaner
Eiendommen er regulert til boligbebyggelse i henhold til Kommuneplanens arealdel 2018-2030 datert 30.05.2018 med tilhørende reguleringsbestemmelser.
Eiendommen ligger under hensynssone H410 Krav vedrørende infrastruktur og hensynssone H330 Radon.
Selv om eiendommen ligger innenfor planområde for kulturminneplan så ligger eiendommen verken i hensynssone eller gul liste i planen.
Utsnitt av plan med tilhørende bestemmelser kan fås ved henvendelse til megler.
Økonomi
Økonomi
Kommunale utgifter
Kommunale avgifter er kr. 55 035 for inneværende år. I dette inngår gebyr for vann, avløp, renovasjon og feiing/tilsyn.
Nåværende eier har ikke opplyst om boligens strømforbruk.
Boligen har en årlig forsikringspremie på kr. 30 000.
Boligen er tilknyttet Altibox som leverandør av kabel-tv og internett.
Utgiftene er basert på nåværende eiers forbruk og avtaler.
Formuesverdi
Formuesverdi for 2023 var kr. 1 756 362 ifølge selger/skatteetaten. Beløpet forutsetter at eier bor fast i boligen (primærbolig).
Ved eventuell øvrig bruk av eiendommen (f.eks. fritidsbolig, pendlerbolig, utleieobjekt) var formuesverdien for 2023 kr. 7 025 447.
Formuesverdien justeres normalt årlig. Se skatteetaten.no for mer informasjon om fastsettelse av formuesverdien.
Eiendomsskatt
Eiendomsskatten utgjør kr. 17 590 pr år.
Omkostninger
7 500 000,00 Prisantydning
Omkostninger
187 500,00 Dokumentavgift til staten (2,5% av kjøpesum)
19 900,00 Gjensidige Boligkjøperpakke (valgfri)* (valgfritt)
545,00 Tinglysing panterettsdokument
545,00 Tinglysing skjøte
--------------------------------------------------------
188 590,00 (Omkostninger totalt (uten Gjensidige Boligkjøperpakke (valgfri)))
208 490,00 Omkostninger totalt (med Gjensidige Boligkjøperpakke (valgfri)))
--------------------------------------------------------
7 688 590,00 Totalpris inkl. omkostninger
7 708 490,00 Totalpris inkl. omkostninger (med Gjensidige Boligkjøperpakke (valgfri))
--------------------------------------------------------
Totalpris inkl. omkostninger forutsetter kjøp til prisantydning.
Det tas forbehold om endringer i avgifter og gebyrer.
Betalingsbetingelser
Kjøpesum inkludert omkostninger, samt pantedokument tilknyttet eventuelt lån, skal være disponibelt hos megler 2 virkedager før overtagelsen.
Annen viktig informasjon
Annen viktig informasjon
Eier
W & R Eiendom AS
Overtakelse
Etter nærmere avtale. Vennligst oppgi ønsket overtagelse i budskjema.
Boligselgerforsikring
Det gjøres oppmerksom på at selger ikke har tegnet boligselgerforsikring som dekker selgers ansvar etter avhendingsloven. Likevel foreligger selgers egenerklæring og godkjent tilstandsrapport som interessenter må sette seg inn i før bud inngis. Eventuelle reklamasjoner må rettes direkte til selger.
Boligkjøperforsikring
Innen kontraktsmøtet må kjøper ta stilling til om det ønskes å bestille Boligkjøperpakken gjennom Gjensidige. I denne gunstige pakken er boligen ferdig forsikret og inkluderer rettshjelpsforsikring, også kalt Boligkjøperforsikring. Rettshjelpsforsikring gir trygghet og tilgang på profesjonell juridisk hjelp dersom det oppdages uventede feil eller mangler det første året etter overtagelse. Forsikringsselskapet behandler i så fall ethvert mangelskrav kjøper måtte ha overfor selger.
Boligkjøperpakken inkluderer bygningsforsikring for hus og hytte, innboforsikring, flytteforsikring og dobbel rentedekning - i situasjoner hvor kjøper ikke får solgt nåværende primærbolig.
Kjøper mottar ingen særskilt faktura for Boligkjøperpakken da kostnaden det første året legges til kjøpesummen for boligen. Det gjøres oppmerksom på Krogsveen mottar et honorar for denne formidlingen.
Produktark for Boligkjøperpakken ligger vedlagt i salgsoppgaven.
Dersom ikke boligkjøperpakke ønskes kan kun rettshjelpsforsikring, også kalt boligkjøperforsikring, tegnes særskilt via megler. Rettshjelpsforsikringen varer i 5 år fra overtagelse og leveres gjennom Gjensidige. Ta kontakt med megler for ytterligere informasjon.
Selskap og privatpersoner som driver med kjøp/salg/utvikling som ledd i egen næringsvirksomhet kan ikke tegne boligkjøperpakke eller rettshjelpsforsikring.
Budgivning
Forbrukerinformasjon om budgivning er vedlagt denne salgsoppgaven og er også på vår hjemmeside Krogsveen.no. Alle bud og budforhøyelser må inngis skriftlig. I tillegg må legitimasjon være fremlagt sammen med signatur fra budgiver.
Vi oppfordrer til å gi bud elektronisk via GI BUD-knappen på eiendommens hjemmeside på Krogsveen.no. Da vil samtlige vilkår bli oppfylt.
Eventuelle forhøyelser eller endringer av budet kan bekreftes pr SMS eller på e-post. Vi oppfordrer alltid til å kontakte megler pr. telefon i tillegg da forsinkelser i SMS og e-post kan forekomme.
For at budene skal kunne bli behandlet og videreformidlet skriftlig til alle involverte parter, må alle bud ha en tilstrekkelig lang akseptfrist, jf. eiendomsmeglingsforskriften § 6-3.
Selger må også skriftlig akseptere budet før aksept kan formidles til budgiver. Akseptfrist bør derfor være på minimum 30 minutter, og budforhøyelser må derfor skje i god tid før fristens utløp.
Bud i forbrukerforhold kan uansett ikke settes med kortere frist enn kl. 12.00 første virkedag etter siste annonserte visning. I tillegg kan ikke budet ha forbehold om at det skal holdes hemmelig ovenfor øvrige interessenter. Megler har iht lov om eiendomsmegling ikke anledning til å videreformidle disse budene, og de vil dermed heller ikke bli journalført.
Etter at eiendommen er solgt vil kjøper og selger få tilsendt budjournal. Øvrige budgivere kan få utlevert kopi av budjournalen i anonymisert form.
Hvitvaskingsreglene
I henhold til lov om hvitvasking og terrorfinansiering har megler plikt til å gjennomføre kontrolltiltak overfor kunder, herunder fullmektiger. Dette innebærer bl.a. å bekrefte kunders og reelle rettighetshaveres identitet på bakgrunn av fremvist gyldig legitimasjon eller på annen godkjent måte, samt å innhente opplysninger om kundeforholdets formål og tilsiktede art.
Dersom slike kundetiltak ikke kan gjennomføres, kan megler ikke etablere kundeforholdet eller utføre transaksjonen.
Hvis kjøper ikke bidrar til gjennomføring av kundekontrollen og dette fører til at transaksjonen blir forsinket eller ikke kan gjennomføres, vil dette ansees som mislighold av avtalen og gi selger rettigheter etter avhendingslova kapittel 5. I tilfeller der selger ikke bidrar til gjennomføring av løpende kundekontroll underveis i oppdraget, er det selger som misligholder sine forpliktelser etter avtalen og gi kjøper rettigheter etter avhendingslovens kapittel 4. Partene er selv ansvarlige for eventuelle kostnader og ansvar dette kan medføre. Eiendomsmegleren eller eiendomsmeglingsforetaket kan ikke holdes ansvarlig for de konsekvenser dette vil kunne få for partene eller andre som har interesser i eiendomshandelen.
Kjøper oppfordres til å innbetale kjøpesummen som ikke kommer fra låneinstitusjon i én samlet innbetaling fra egen konto i norsk bank. Megler har plikt til å melde fra til Økokrim om eiendomshandler som fremstår som mistenkelige. Melding sendes Økokrim uten at partene varsles.
Personopplysningsloven
I henhold til personopplysningsloven gjør vi oppmerksom på at interessenter kan bli registrert for videre oppfølging.
Lovanvendelse
Generelle bestemmelser
Salgsoppgaven er basert på de opplysningene selger har gitt til megler, den bygningssakyndiges tilstandsrapport, samt opplysninger innhentet fra kommunen, Kartverket og andre tilgjengelige kilder. Det er viktig at kjøper setter seg grundig inn i alle salgsdokumentene, herunder salgsoppgave, tilstandsrapport og selgers egenerklæring. Kjøper anses kjent med forhold som er tydelig beskrevet i salgsdokumentene, og slike forhold kan ikke påberopes som mangler. Dette gjelder uavhengig av om kjøper har lest dokumentene. Alle interessenter oppfordres til å undersøke eiendommen nøye, gjerne sammen med fagkyndig før bud inngis. Kjøper som velger å kjøpe usett kan ikke gjøre gjeldende som mangel noe han burde blitt kjent med ved undersøkelsen.
Dersom det er behov for avklaringer, anbefaler vi at interessenter rådfører seg med eiendomsmegler eller egne rådgivere før det legges inn bud.
En bolig som har blitt brukt i en viss tid, har vanligvis blitt utsatt for slitasje og skader kan ha oppstått. Slik bruksslitasje må kjøper regne med, og det kan avdekkes enkelte forhold etter overtakelse som nødvendiggjør utbedringer. Normal slitasje og skader som nødvendiggjør utbedring, er innenfor hva kjøper må forvente og vil ikke utgjøre en mangel.
Kjøper og selgers rettigheter og plikter reguleres av avtalen mellom partene, samt informasjonen som har vært tilgjengelig for kjøperen i forbindelse med handelen. Avtalen utfylles av avhendingsloven, og det gjelder ulike avtalevilkår avhengig av om kjøper er forbrukerkjøper eller ikke. Dette er nærmere beskrevet nedenfor.
På grunn av ulike avtalevilkår kan selger vurdere bud fra en som ikke er forbruker, ulikt fra en forbrukers bud. Dersom kjøper ikke er forbruker, er selger sitt mulige mangelsansvar begrenset fordi eiendommen selges "som den er". Selger kan ikke ta «som den er»- forbehold overfor en forbrukerkjøper. Selv et lavere bud fra en som ikke er forbruker kan foretrekkes fordi begrensningen i mulig mangelsansvar kan ha egenverdi for selger. Selger står fritt til å forkaste eller akseptere ethvert bud, og er for eksempel ikke forpliktet til å akseptere høyeste bud.
Budgiver skal i budskjema avgi egenerklæring om budgiver er forbruker eller næringsdrivende/ person som hovedsakelig handler som ledd i næringsvirksomhet. Budgivere får informasjon dersom andre bud er inngitt av en som ikke er forbruker.
Forbrukerkjøp - definisjon
Med forbrukerkjøp menes kjøp av eiendom når kjøperen er en fysisk person som ikke hovedsakelig handler som ledd i næringsvirksomhet.
Forbruker – avtalevilkår
Eiendommen har en mangel dersom den ikke er i samsvar med kravene som følger av avtalen, eller det foreligger brudd på bestemmelsene i avhendingsloven §§ 3-2 til 3-8. Hvis eiendommen ikke er i samsvar med det kjøperen må kunne forvente ut ifra alder, type og synlig tilstand, kan det være grunnlag for mangelskrav. Det samme gjelder hvis det er holdt tilbake eller gitt uriktige opplysninger om eiendommen. Dette gjelder likevel bare dersom man kan gå ut ifra at det virket inn på avtalen at opplysningen ikke ble gitt eller at mangelskravet ikke blir rettet i tide på en tydelig måte.
Boligen kan ha en mangel etter avhendingsloven § 3-3 andre ledd, dersom det er avvik mellom opplyst og faktisk innvendig areal, forutsatt at avviket er på 2% eller mer og minimum 1 kvm.
Ved beregning av et eventuelt prisavslag eller erstatning må kjøper selv dekke tap/kostnader opptil et beløp på kr 10 000 (egenandel).
Ikke-forbruker (næringsdrivende) – definisjon
Hvis kjøper er en juridisk person, eller en fysisk person som hovedsakelig handler som ledd i næringsvirksomhet, vil kjøpet ikke anses som et forbrukerkjøp.
Ikke-forbruker – avtalevilkår
Eiendommen har en mangel dersom den ikke er i samsvar med kravene som følger av avtalen.
Eiendommen selges «som den er», og selgers ansvar utover det konkret avtalte er da begrenset etter avhendingsloven § 3-9, første ledd andre setning.
Avhendingsloven § 3-3 andre ledd fravikes, og hvorvidt boligens arealsvikt utgjør en mangel vurderes etter avhendingsloven § 3-8.
Informasjon om kjøpers undersøkelsesplikt, herunder oppfordringen om å undersøke eiendommen nøye, gjelder også for kjøpere som ikke anses som forbrukere.
Det forutsettes at hjemmel overføres til kjøper. Hvis kjøper ikke ønsker hjemmelsoverføring av eiendommen, må det tas forbehold om dette i budet.
Meglers vederlag
Meglers vederlag betales av selger og er avtalt til:
Fastpris: 50 000,-
Vederlag:
Kontroll av hjemmel og heftelser kr 2 900,00
Markedsføringspakke Ekstra kr 28 000,00
Oppgjør kr 7 500,00
Tilrettelegging kr 17 000,00
Utlegg:
Innhenting av offentlig opplysninger Hamar, inkl tegninger kr 4 663,00
Tinglysing sikring kr 500,00
Andre utgifter:
Foto inkl. drone kr 6 250,00
Opplysninger om oppdraget
Oppdragsnummer 65-0179/24
Eiendomsmegler Krogsveen AS, avd. Hamar
Strandgata 31, 2308, HAMAR
950 007 613
Oppdragets KR-kode KR65.24179
Dato
Sist oppdatert: 10. april 2026 kl. 10:37
Dokumenter
Dokumenter
PDF – 745 KB
PDF – 746 KB
PDF – 926 KB
PDF – 752 KB
PDF – 312 KB
PDF – 29 KB
PDF – 127 KB
PDF – 392 KB
Område
Legg til steder som er viktige for deg
Visning
For å delta på visning, ber vi om at du melder deg på. Da sikrer vi at du får nødvendig informasjon og at det er satt av tilstrekkelig med tid. Husk å lese salgsoppgaven før visningen, så du stiller forberedt.
Ønsker du kun å bli holdt orientert, kan du fra eiendommens hjemmeside få varsel om solgtpris, eller kontakte megler.
Lurer du på noe?
Unngå doble boligrenter
Vi tilbyr gunstig forsikring.
Vurderer du utleie?
Få et tilbud fra Utleie KrogsveenHva koster lånet?
Sjekk estimert lånekostnadVil du varsles om lignende boliger?
Ved å lagre ditt boligsøk hos oss får du beskjed når vi har en bolig som ligner denne, før den legges ut på markedet!




