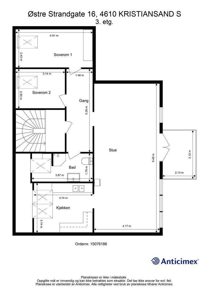
Østre Strandgate 16
3 990 000 kr
79 m²
2 soverom
Solgt

Kvadraturen
Lys og innholdsrik leilighet med 89m2 gulvareal. Super sentralt og med 2 soverom- balkong.
Prisantydning
3 990 000 krAndel fellesgjeld
95 335 krOmkostninger
113 160 krTotalpris
4 198 495 kr
Pris
Bruksareal
91 m²BRA-I (internt bruksareal)
79 m²BRA-E (eksternt bruksareal)
12 m²TBA (terrasse-balkongareal)
7 m²
Areal
Etasje
3Byggeår
1934Soverom
2 soveromBad
1 badType
EierleilighetEierform
EierseksjonFasiliteter
Balkong/TerrasseFellesutgifter
5 776 krEnergimerke
Oransje G
Nøkkelinfo
Unngå doble boligrenter
Vi tilbyr gunstig forsikring.
Vurderer du utleie?
Få et tilbud fra Utleie KrogsveenHva koster lånet?
Sjekk estimert lånekostnadBeskrivelse
Kort om eiendommen
Østre Strandgate 16
Her får du en svært sentral, stor og innflytningsklar 3-roms selveierleilighet med solrik balkong. Pent opparbeidet bakgård med sittegrupper og hage.
Prima beliggenhet noen skritt fra Markens gate med alle butikker og servicetilbud man trenger i hverdagen. Østre Strandgate er en rolig og en av de mest populære gatene å bosette seg i Kvadraturen blant annet på grunn av sin nærhet til havet, promenade, Nupen parken, Fiskebrygga, Odderøya, Kanalbyen og Bystranda. I tillegg til å bo strategisk plassert til handlegate, shopping og bussforbindelser.
Boligen er velholdt og fremstår med lite bruksslitasje, så her kan du flytte rett inn.
Velkommen!
Område
Legg til steder som er viktige for deg
På flyttefot? Tenk kjøp og salg samtidig.
Få din egen rådgiver gjennom hele kjøps- og salgsprosessen. Det starter med en verdivurdering.
Unngå doble boligrenter
Vi tilbyr gunstig forsikring.
Vurderer du utleie?
Få et tilbud fra Utleie KrogsveenHva koster lånet?
Sjekk estimert lånekostnadVil du varsles om lignende boliger?
Ved å lagre ditt boligsøk hos oss får du beskjed når vi har en bolig som ligner denne, før den legges ut på markedet!

