Lintjernvegen 25
7 500 000 kr
212 m²
3 soverom
Komplett salgsoppgave

Fjellstad
Gjennomgående oppgradert enebolig med hybel | To garasjer og stor sørvendt terrasse | Familievennlig beliggenhet
Prisantydning
7 500 000 krOmkostninger
208 490 krTotalpris
7 708 490 kr
Pris
Bruksareal
260 m²BRA-I (internt bruksareal)
212 m²BRA-E (eksternt bruksareal)
48 m²TBA (terrasse-balkongareal)
67 m²
Areal
Byggeår
1980Soverom
3 soveromBad
3 badTomteareal
686 m² (eiet)Type
Enebolig - FrittliggendeEierform
EietFasiliteter
Garasje/P-plass og Balkong/Terrasse
Nøkkelinfo
Unngå doble boligrenter
Vi tilbyr gunstig forsikring.
Vurderer du utleie?
Få et tilbud fra Utleie KrogsveenHva koster lånet?
Sjekk estimert lånekostnadBeskrivelse
Kort om eiendommen
Innhold og byggemåte
Innhold og byggemåte
Eiendommen
Lintjernvegen 25, 2009 NORDBY
Kommunenummer 3224, gårdsnummer 80, bruksnummer 74, ideell andel 1/1
Innhold
Totalt bruksareal BRA: 260 kvm
BRA-i:
Enebolig:
Underetasje 98 kvm: Kjellerstue, to kontorer, vaskerom, bad, badstue, entré, soverom, bad og stue/kjøkken.
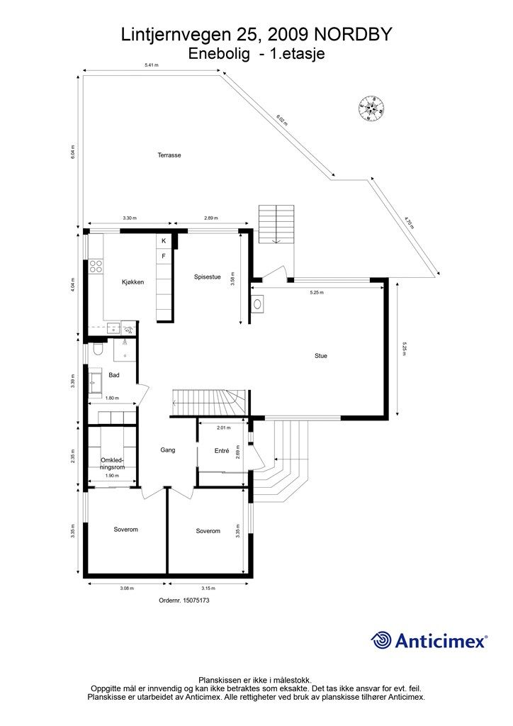
1. etasje 114 kvm: Entré, gang, to soverom, omkledningsrom, bad, kjøkken, spisestue og stue.
BRA-e:
Garasje:
1. etasje 19 kvm: Garasje.
Dobbelgarasje:
1. etasje 29 kvm: Dobbelgarasje.
Åpent areal:
1. etasje 67 kvm: Terrasse.
Vedlagte plantegninger er ikke målbare. De oppgitte arealer er hentet fra rapport med befaringsdato 27.10.2025 utført av Anticimex AS v/Henrik Huso. Arealene er beregnet og rom er definert etter dagens faktiske bruk, uavhengig av hva som er godkjent av bygningsmyndighetene.
Byggemåte
Moderniseringer og påkostninger
Standard
Dette er en enebolig som har gjennomgått en omfattende oppgradering siden 2022, og som i dag tilbyr en tidsriktig standard i hoveddelen og en nybygd hybel i underetasjen. Boligen er praktisk tilrettelagt for en familie, med store sosiale soner, flere soverom og en fleksibel underetasje. Fra stuen er det utgang til en stor, sørvendt markterrasse på 67 m² som binder boligen sammen med hagen.
Entré:
Inngangspartiet i første etasje gir et godt førsteinntrykk av boligens oppgraderte standard. I gangen finner du en god skyvedørs garderobe. Herfra leder en gang videre til etasjens øvrige rom.
Stue og spisestue:
Stuen er et lyst og åpent rom med store vindusflater som slipper dagslyset inn. En vegg med spilepanel gir rommet en lun karakter, og en varmepumpe sørger for effektiv oppvarming. Det er god plass til sofagruppe, og rommet glir naturlig over i en romslig spisestue. Fra stuen er det direkte utgang til den store markterrassen.
Kjøkken:
Kjøkkenet fra 2022 har en moderne innredning med slette fronter og laminatbenkeplate. Alle hvitevarer er integrerte: kjøleskap, fryseskap, stekeovn i høyskap, platetopp og oppvaskmaskin. Rommet er praktisk utformet og har godt med skap- og benkeplass.
Soverom og omkledningsrom:
Første etasje inneholder to soverom. Hovedsoverommet har god plass til dobbeltseng og tilhørende møblement. I tilknytning til soverommet har man et praktisk omkledningsrom.
Bad 1. etasje:
Badet ble bygget nytt i 2022 og har en gjennomført moderne stil. Rommet er helfliset med gulvvarme, og innredet med en vegghengt servantinnredning med skuffer, speil med belysning, oppvarming, høyttalere og et vegghengt toalett. Dusjhjørnet har glassdører og både hånddusj og regnfallsdusj.
Terrasse:
Den sørvendte markterrassen er en flott utvidelse av boligens sosiale arealer. Her er det rikelig med plass for både sittegrupper, grill og solsenger. Terrassen har trapp ned til hagen.
Underetasje - Hoveddel:
En innvendig trapp fører ned til underetasjen. Her finner du en romslig kjellerstue, to kontorer, et bad, et praktisk vaskerom og en badstue.
Kjellerstue:
Kjellerstuen er et hyggelig oppholdsrom, perfekt som en ekstra TV-stue eller lekerom. En peisovn med glassdør gir både varme og en lun atmosfære på kalde dager.
Kontorer:
Underetasjen har to rom som i dag benyttes som kontorer. Disse rommene gir fleksibilitet og kan innredes etter behov, for eksempel som gjesterom eller hobbyrom.
Bad underetasje:
Dette badet ble delvis oppgradert i 2022 med blant annet ny innredning. Det har gulvvarme, vegghengt servantinnredning, vegghengt toalett og et badekar. Badet er av eldre dato, og ytterligere modernisering bør påregnes.
Vaskerom:
Vaskerommet fra 2022 er et funksjonelt rom med støpt gulv, benkeplate med utslagsvask og opplegg for vaskemaskin og tørketrommel. Her er også boligens ene varmtvannsbereder og aggregatet for balansert ventilasjon plassert.
Badstue:
Fra byggeåret har boligen en klassisk badstue med panel på vegger og tak, samt en elektrisk ovn.
Hybel:
I underetasjen er det en nybygd hybel med egen inngang. Denne enheten består av entré, stue med åpen kjøkkenløsning, soverom og bad.
Stue og kjøkken i hybel:
Den åpne løsningen gir et lyst og sosialt rom. Kjøkkeninnredningen fra 2022 har profilerte fronter, laminatbenkeplate, integrert komfyr og platetopp, samt frittstående oppvaskmaskin og kjøleskap.
Soverom i hybel:
Soverommet har plass til seng og oppbevaringsmøbler.
Bad i hybel:
Badet er fra 2022 og har en moderne standard med flislagt gulv med gulvvarme, og flislagte vegger. Innredningen består av servant med skuff, speilskap, vegghengt toalett og et dusjhjørne med glassdører. Det er også opplegg for vaskemaskin og en elektrisk håndkletørker.
Overflater:
Gulv: Høy kvalitet laminat i 1.etasje. Laminat i underetasjen og i hybelen. Fliser på badene. Støpt gulv på vaskerom og i badstue.
Vegger: Malte flater og spilepanel i 1. etasje. Malt panel i underetasjen og i hybelen. Fliser på badene. Ubehandlet panel i badstue.
Himling: Nedsenket himling med downlights og malte flater i 1. etasje. Malte flater med downlights og takplater i underetasjen og i hybelen.
Lagring:
Skyvedørs garderobe med god oppbevaringsplass i entréen og et romslig omkledningsrom i tilknytning til det ene soverommet. Lagringsloft finnes i dobbelgarasjen. Kjellerstua og kontoret i underetasjen har store skap for oppbevaring.
For fullstendig teknisk informasjon om boligen, se punktet Byggemåte i salgsoppgaven.
Det er kun de integrerte hvitevarene som følger med.
Løsøre og tilbehør
Vi viser til liste fra Norges Eiendomsmeglerforbund som gjelder fra 01.01.2020 angående løsøre og tilbehør.
Oppvarming
Boligen varmes opp med elektrisitet, varmepumpe og vedfyring. Varmepumpen er plassert i stue. Det er gulvvarme på bad i 1. etasje, på bad i underetasje og på bad i hybel. I badstuen er det elektrisk ovn. Peisovn med glassdør finnes i kjellerstue med fordeling av varme til 1.etasje. Varmefolie finnes i entréen, kjøkkenet, spiserommet i 1.etasje og i kjellerstuen. Kjelleren har panelovner.
Dersom beboelsesrom ikke har vegg- eller fastmonterte varmekilder ved visning, følger dette heller ikke med.
Ferdigattest/brukstillatelse
Det foreligger ikke ferdigattest for oppføringen av eneboligen, men det ble utstedt en Midlertidig Brukstillatelse datert 21.10.1981 og godkjente og byggemeldte tegninger av eneboligen, godkjent 30.03.1981. Brukstillatelsen ble gitt på følgende vilkår:
1. Resterende arbeid i kjeller.
2. Terrasse. Dør ut til denne skal sikres.
Frist for ferdigstillelse var satt til juni 1982. Selger opplyser at disse anmerkingene er utført.
Det er avvik fra de opprinnelige byggetegningene hvor det i dag er et kontor i kjeller, opprinnelig byggemeldt som bod på 5,7 kvm.
Det gjøres oppmerksom på at det ikke lenger utstedes ferdigattest på tiltak det er søkt om før 1998 jf. plan- og bygningsloven § 21-10. Kommunen vil ikke kreve ferdigattest for disse tiltakene og vil avvise eventuelle søknader. Bestemmelsen innebærer ikke at tiltak med manglende søknad blir lovlige, men at man ikke trenger å avslutte gamle byggesaker. Normalt sett kreves ferdigattest for alle søknadspliktige tiltak som gjøres etter plan- og bygningsloven.
Det foreligger en ferdigattest datert 14.02.2025 for en senere byggesak (søknad fra 2022). Denne gjelder bruksendring fra tilleggsdel til hoveddel( planløsningen hvor det i dag er hybel: soverom, entre, stue/kjøkken og bad), fasadeendring og endringer med bærende konstruksjoner. Det foreligger godkjente byggetegninger for denne bruksendringen og dokumentene kan fås ved henvendelse til megler.
Garasjer:
Det foreligger godkjente og byggemeldte tegninger for garasjer/carport datert i 1990. Det er ikke funnet ferdigattest eller midlertidig brukstillatelse i kommunens arkiver.
Selger fikk i 22.05.2024 tillatelse av kommunen til å bygge om carporten/garasje om til dobbelt garasje, slik den fremstår i dag. Det kreves at tiltaket ferdig meldes til kommune inne 3 år fra vedtaksdato. Dette skal selger sende inn i 2026.
På den frittstående enkelgarasjen skulle det i følge byggetegningene være en dør på nord-øst siden av konstruksjonen, men ble aldri etablert.
Det er observert enkelte avvik mellom tomtens fysiske grenser og det som fremgår av grunn kartet:
-På den sør-øst delen av tomta, mot fellesareal er hekken plassert utenfor tomte grensen og inn på kommunal grunn.
-Etter dialog med naboen og kommunen er det satt opp gjerde i oppkjørsel til eiendommen. Dette gjerdet tilhører eiendommen og det er enighet mellom partene at gjerde skal stå slik den nå er plassert og skal ikke stå på tomte grensen.
Kjøper overtar alt ansvar, kostnad og risiko for dette videre.
Tinglyste heftelser og rettigheter
Eventuell adgang til utleie
Hybelen har vært utleid siden 2024 for kr 9 500,- per måned.
Det er foretatt måling av radon og det dokumenteres at verdiene er innenfor statens anbefalte grenseverdi.
Beliggenhet og tomteforhold
Beliggenhet og tomteforhold
Beliggenhet
Velkommen til Lintjernvegen 25, en eiendom som kombinerer rolige, naturnære omgivelser med nærhet til hverdagens nødvendigheter. Boligen ligger i et veletablert boligfelt på Fjellstad, med skogen som nærmeste nabo. Herfra starter turstier rett utenfor døren og en ti minutters spasertur til Myrdammen badeplass. Boligen ligger i enden av en rolig blindvei, noe som gir lav trafikk og god sikkerhet for barn.
Hverdagslogistikken er enkel med trygg gangavstand til både Tomter FUS barnehage og Nordby skole. For de eldre barna er det skolebussordning til Marikollen ungdomsskole. Nabolaget består hovedsakelig av eneboliger, noe som skaper et stabilt og trygt miljø for oppvekst.
For dagligvarehandel er det en kort kjøretur til Joker Hektnersletta. Større handel og servicetilbud finnes på Marikollen Torg, Strømmen Storsenter og i Lillestrøm, alt innenfor en kjøretur på 13 til 20 minutter. For pendlere er det bussholdeplass en kort spasertur unna, og Lillestrøm stasjon, et sentralt knutepunkt for tog, nås på omtrent 17 minutter med bil. Oslo lufthavn Gardermoen ligger 45 minutter unna.
Adkomst
Veibeskrivelse
Se Google Maps – det er enkelt å finne frem i kartet.
Barnehager, skoler og fritid
Skoler
Nordby skole (1-7 kl.)
Marikollen ungdomsskole (8-10 kl.)
Rælingen videregående skole
Strømmen videregående skole
Barnehager
Tomter FUS barnehage (0-5 år)
Hektneråsen Fus barnehage (1-5 år)
Smestadtoppen barnehage (1-5 år)
Informasjon om tilhørende skolekretser er hentet fra Prognosesenteret som dataleverandør, og tilhørigheten kan årlig endres av kommunen. Dersom skole- og barnehagetilbud er av betydning for kjøpet, ber vi om at det rettes en særskilt henvendelse til kommunen/bydelsadministrasjonen for oppdatert informasjon.
Beskrivelse av tomt
Eiertomt på 686 kvm. Tomten er pent opparbeidet med asfaltert gårdsplass, plen og diverse beplantning. Eiendommen har gode solforhold.
Parkering
Eiendommen disponerer én frittstående garasje og en dobbelgarasje tilknyttet huset; en enkelgarasje på 19 m² og en dobbelgarasje på 29 m². Begge garasjene er utstyrt med elektrisk leddport og fastmontert elbillader. I tillegg er det gode parkeringsmuligheter på egen asfaltert innkjørsel med varmekabler.
Vei, vann og avløp
Eiendommen har adkomst via offentlig vei.
Eiendommen er tilknyttet kommunalt ledningsnett via private stikkledninger. Eier er selv ansvarlig for private stikkledninger til boligen.
Regulerings-og arealplaner
Eiendommen er regulert til boliger i reguleringsplan 069, «Regplan for Fjellstad mot tilliggende områder», vedtatt 26.04.1978, med tilhørende reguleringsbestemmelser.
Eiendommen omfattes av Kommuneplanens arealdel 2022-2033 (ID: 247), vedtatt 15.02.2023. I planen er hele eiendommen på 686 m² avsatt til boligbebyggelse, nåværende.
Kommuneplanens arealdel gjelder foran eldre reguleringsplaner ved motstrid, i henhold til planens § 1.2.1. Dette innebærer at kommuneplanen har forrang dersom dens bestemmelser er i konflikt med reguleringsplanen fra 1978.
Utsnitt av plan med tilhørende bestemmelser kan fås ved henvendelse til megler.
Økonomi
Økonomi
Kommunale utgifter
Kommunale avgifter er kr 24 790,32 for 2024. I dette inngår gebyr for vann, avløp, renovasjon og feiing. Årsprognosen for 2025 ligger på kr 29 756,86.
Formuesverdi
Formuesverdi for 2024 var kr 1 513 390,- ifølge Skatteetaten. Beløpet forutsetter at eier bor fast i boligen (primærbolig).
Ved eventuell øvrig bruk av eiendommen (f.eks. fritidsbolig, pendlerbolig, utleieobjekt) var formuesverdien for 2024 kr 6 053 559,-/6 053 560,-.
Fra 2026 har Stortinget vedtatt en oppdatert modell for beregning av formuesverdi for primærbolig, så avvik kan forekomme.
For mer informasjon se skatteetaten.no
Eiendomsskatt
Det er p.t ikke vedtatt eiendomsskatt for eiendommer i kommunen.
Omkostninger
7 500 000,00 Prisantydning
Omkostninger
187 500,00 Dokumentavgift til staten (2,5% av kjøpesum)
19 900,00 Gjensidige Boligkjøperpakke* (valgfritt)
545,00 Tinglysing panterettsdokument
545,00 Tinglysing skjøte
--------------------------------------------------------
188 590,00 (Omkostninger totalt (uten Gjensidige Boligkjøperpakke))
208 490,00 Omkostninger totalt (med Gjensidige Boligkjøperpakke))
--------------------------------------------------------
7 688 590,00 Totalpris inkl. omkostninger
7 708 490,00 Totalpris inkl. omkostninger (med Gjensidige Boligkjøperpakke)
--------------------------------------------------------
Totalpris inkl. omkostninger forutsetter kjøp til prisantydning.
Det tas forbehold om endringer i avgifter og gebyrer.
Tilbud om lånefinansiering
Megler formidler gjerne kontakt med rådgiver hos Trøgstad Sparebank. De har konkurransedyktige betingelser samt rask og løsningsorientert behandling av din lånesøknad.
Betalingsbetingelser
Kjøpesum inkludert omkostninger, samt pantedokument tilknyttet eventuelt lån, skal være disponibelt hos megler 2 virkedager før overtagelsen.
Annen viktig informasjon
Annen viktig informasjon
Eier
Anna Kokoszko og Krzysztof Lukasz Kokoszko
Overtakelse
Etter nærmere avtale.
Boligselgerforsikring
Selger har i forbindelse med salget tegnet boligselgerforsikring levert av Gjensidige.
Boligselgerforsikringen dekker selgers ansvar etter avhendingsloven begrenset oppad til kr 14 millioner. Dersom kjøper oppdager forhold ved eiendommen som hen mener utgjør en mangel ved eiendommen, vil Gjensidige behandle reklamasjonen på vegne av selger. Forsikringsvilkår kan fås ved henvendelse til megler.
Vedlagt salgsoppgaven følger selgers egenerklæringsskjema og tilstandsrapport. Interessenter må sette seg inn i dokumentene før bud inngis.
Boligkjøperforsikring
Innen kontraktsmøtet må kjøper ta stilling til om det ønskes å bestille Boligkjøperpakken gjennom Gjensidige. I denne gunstige pakken er boligen ferdig forsikret og inkluderer rettshjelpsforsikring, også kalt Boligkjøperforsikring. Rettshjelpsforsikring gir trygghet og tilgang på profesjonell juridisk hjelp dersom det oppdages uventede feil eller mangler det første året etter overtagelse. Forsikringsselskapet behandler i så fall ethvert mangelskrav kjøper måtte ha overfor selger.
Boligkjøperpakken inkluderer bygningsforsikring for hus og hytte, innboforsikring, flytteforsikring og dobbel rentedekning - i situasjoner hvor kjøper ikke får solgt nåværende primærbolig.
Kjøper mottar ingen særskilt faktura for Boligkjøperpakken da kostnaden det første året legges til kjøpesummen for boligen. Det gjøres oppmerksom på Krogsveen mottar et honorar for denne formidlingen.
Produktark for Boligkjøperpakken ligger vedlagt i salgsoppgaven.
Dersom ikke boligkjøperpakke ønskes kan kun rettshjelpsforsikring, også kalt boligkjøperforsikring, tegnes særskilt via megler. Rettshjelpsforsikringen varer i 5 år fra overtagelse og leveres gjennom Gjensidige. Ta kontakt med megler for ytterligere informasjon.
Selskap og privatpersoner som driver med kjøp/salg/utvikling som ledd i egen næringsvirksomhet kan ikke tegne boligkjøperpakke eller rettshjelpsforsikring.
Budgivning
Forbrukerinformasjon om budgivning er vedlagt denne salgsoppgaven og er også på vår hjemmeside Krogsveen.no. Alle bud og budforhøyelser må inngis skriftlig. I tillegg må legitimasjon være fremlagt sammen med signatur fra budgiver.
Vi oppfordrer til å gi bud elektronisk via GI BUD-knappen på eiendommens hjemmeside på Krogsveen.no. Da vil samtlige vilkår bli oppfylt.
Eventuelle forhøyelser eller endringer av budet kan bekreftes pr SMS eller på e-post. Vi oppfordrer alltid til å kontakte megler pr. telefon i tillegg da forsinkelser i SMS og e-post kan forekomme.
For at budene skal kunne bli behandlet og videreformidlet skriftlig til alle involverte parter, må alle bud ha en tilstrekkelig lang akseptfrist, jf. eiendomsmeglingsforskriften § 6-3.
Selger må også skriftlig akseptere budet før aksept kan formidles til budgiver. Akseptfrist bør derfor være på minimum 30 minutter, og budforhøyelser må derfor skje i god tid før fristens utløp.
Bud i forbrukerforhold kan uansett ikke settes med kortere frist enn kl. 12.00 første virkedag etter siste annonserte visning. I tillegg kan ikke budet ha forbehold om at det skal holdes hemmelig ovenfor øvrige interessenter. Megler har iht lov om eiendomsmegling ikke anledning til å videreformidle disse budene, og de vil dermed heller ikke bli journalført.
Etter at eiendommen er solgt vil kjøper og selger få tilsendt budjournal. Øvrige budgivere kan få utlevert kopi av budjournalen i anonymisert form.
Hvitvaskingsreglene
I henhold til lov om hvitvasking og terrorfinansiering har megler plikt til å gjennomføre kontrolltiltak overfor kunder, herunder fullmektiger. Dette innebærer bl.a. å bekrefte kunders og reelle rettighetshaveres identitet på bakgrunn av fremvist gyldig legitimasjon eller på annen godkjent måte, samt å innhente opplysninger om kundeforholdets formål og tilsiktede art.
Dersom slike kundetiltak ikke kan gjennomføres, kan megler ikke etablere kundeforholdet eller utføre transaksjonen.
Hvis kjøper ikke bidrar til gjennomføring av kundekontrollen og dette fører til at transaksjonen blir forsinket eller ikke kan gjennomføres, vil dette ansees som mislighold av avtalen og gi selger rettigheter etter avhendingslova kapittel 5. I tilfeller der selger ikke bidrar til gjennomføring av løpende kundekontroll underveis i oppdraget, er det selger som misligholder sine forpliktelser etter avtalen og gi kjøper rettigheter etter avhendingslovens kapittel 4. Partene er selv ansvarlige for eventuelle kostnader og ansvar dette kan medføre. Eiendomsmegleren eller eiendomsmeglingsforetaket kan ikke holdes ansvarlig for de konsekvenser dette vil kunne få for partene eller andre som har interesser i eiendomshandelen.
Kjøper oppfordres til å innbetale kjøpesummen som ikke kommer fra låneinstitusjon i én samlet innbetaling fra egen konto i norsk bank. Megler har plikt til å melde fra til Økokrim om eiendomshandler som fremstår som mistenkelige. Melding sendes Økokrim uten at partene varsles.
Personopplysningsloven
I henhold til personopplysningsloven gjør vi oppmerksom på at interessenter kan bli registrert for videre oppfølging.
Lovanvendelse
Generelle bestemmelser
Salgsoppgaven er basert på de opplysningene selger har gitt til megler, den bygningssakyndiges tilstandsrapport, samt opplysninger innhentet fra kommunen, Kartverket og andre tilgjengelige kilder. Det er viktig at kjøper setter seg grundig inn i alle salgsdokumentene, herunder salgsoppgave, tilstandsrapport og selgers egenerklæring. Kjøper anses kjent med forhold som er tydelig beskrevet i salgsdokumentene, og slike forhold kan ikke påberopes som mangler. Dette gjelder uavhengig av om kjøper har lest dokumentene. Alle interessenter oppfordres til å undersøke eiendommen nøye, gjerne sammen med fagkyndig før bud inngis. Kjøper som velger å kjøpe usett kan ikke gjøre gjeldende som mangel noe han burde blitt kjent med ved undersøkelsen.
Dersom det er behov for avklaringer, anbefaler vi at interessenter rådfører seg med eiendomsmegler eller egne rådgivere før det legges inn bud.
En bolig som har blitt brukt i en viss tid, har vanligvis blitt utsatt for slitasje og skader kan ha oppstått. Slik bruksslitasje må kjøper regne med, og det kan avdekkes enkelte forhold etter overtakelse som nødvendiggjør utbedringer. Normal slitasje og skader som nødvendiggjør utbedring, er innenfor hva kjøper må forvente og vil ikke utgjøre en mangel.
Kjøper og selgers rettigheter og plikter reguleres av avtalen mellom partene, samt informasjonen som har vært tilgjengelig for kjøperen i forbindelse med handelen. Avtalen utfylles av avhendingsloven, og det gjelder ulike avtalevilkår avhengig av om kjøper er forbrukerkjøper eller ikke. Dette er nærmere beskrevet nedenfor.
På grunn av ulike avtalevilkår kan selger vurdere bud fra en som ikke er forbruker, ulikt fra en forbrukers bud. Dersom kjøper ikke er forbruker, er selger sitt mulige mangelsansvar begrenset fordi eiendommen selges "som den er". Selger kan ikke ta «som den er»- forbehold overfor en forbrukerkjøper. Selv et lavere bud fra en som ikke er forbruker kan foretrekkes fordi begrensningen i mulig mangelsansvar kan ha egenverdi for selger. Selger står fritt til å forkaste eller akseptere ethvert bud, og er for eksempel ikke forpliktet til å akseptere høyeste bud.
Budgiver skal i budskjema avgi egenerklæring om budgiver er forbruker eller næringsdrivende/ person som hovedsakelig handler som ledd i næringsvirksomhet. Budgivere får informasjon dersom andre bud er inngitt av en som ikke er forbruker.
Forbrukerkjøp - definisjon
Med forbrukerkjøp menes kjøp av eiendom når kjøperen er en fysisk person som ikke hovedsakelig handler som ledd i næringsvirksomhet.
Forbruker – avtalevilkår
Eiendommen har en mangel dersom den ikke er i samsvar med kravene som følger av avtalen, eller det foreligger brudd på bestemmelsene i avhendingsloven §§ 3-2 til 3-8. Hvis eiendommen ikke er i samsvar med det kjøperen må kunne forvente ut ifra alder, type og synlig tilstand, kan det være grunnlag for mangelskrav. Det samme gjelder hvis det er holdt tilbake eller gitt uriktige opplysninger om eiendommen. Dette gjelder likevel bare dersom man kan gå ut ifra at det virket inn på avtalen at opplysningen ikke ble gitt eller at mangelskravet ikke blir rettet i tide på en tydelig måte.
Boligen kan ha en mangel etter avhendingsloven § 3-3 andre ledd, dersom det er avvik mellom opplyst og faktisk innvendig areal, forutsatt at avviket er på 2% eller mer og minimum 1 kvm.
Ved beregning av et eventuelt prisavslag eller erstatning må kjøper selv dekke tap/kostnader opptil et beløp på kr 10 000 (egenandel).
Ikke-forbruker (næringsdrivende) – definisjon
Hvis kjøper er en juridisk person, eller en fysisk person som hovedsakelig handler som ledd i næringsvirksomhet, vil kjøpet ikke anses som et forbrukerkjøp.
Ikke-forbruker – avtalevilkår
Eiendommen har en mangel dersom den ikke er i samsvar med kravene som følger av avtalen.
Eiendommen selges «som den er», og selgers ansvar utover det konkret avtalte er da begrenset etter avhendingsloven § 3-9, første ledd andre setning.
Avhendingsloven § 3-3 andre ledd fravikes, og hvorvidt boligens arealsvikt utgjør en mangel vurderes etter avhendingsloven § 3-8.
Informasjon om kjøpers undersøkelsesplikt, herunder oppfordringen om å undersøke eiendommen nøye, gjelder også for kjøpere som ikke anses som forbrukere.
Det forutsettes at hjemmel overføres til kjøper. Hvis kjøper ikke ønsker hjemmelsoverføring av eiendommen, må det tas forbehold om dette i budet.
Meglers vederlag
Vi er opptatt av verdiskapning, og har knyttet til oss samarbeidspartnere som skal sikre våre kunder de beste produkter og tjenester;
• I forbindelse med forberedelse av salget, innhenter vi informasjon om eiendommen hovedsakelig fra vår samarbeidspartner Ambita.
• Gjensidige leverer boligselgerforsikring og tilbyr bygningsforsikring
• Boligkjøperforsikring leveres av Hiscox og med Sedgwick som skadebehandler, og er formidlet gjennom Gjensidige.
• BN bank tilbyr finansieringsløsninger
• Vår avdeling Krogsveen Pluss tilbyr flyttetjenester som utvask, visningsvask, lager, tømming og transport av flyttelass, i tillegg til å formidle kontakt med Flip for overflateoppussing.
• I forbindelse med overtagelse av eiendommen tilbyr Overo avtale om strøm, alarm og bredbånd.
• Krogsveen er, sammen med øvrige bransjeaktører, medeier i den digitale annonseringsplattformen Hjem som eies av Bomega AS.
Meglers vederlag betales av selger og er avtalt til:
Fastpris: 55 000,-
Vederlag:
Kontroll av hjemmel og heftelser kr 2 900,00
Kunderabatt SELGER; gjelder for avtalt: Rabatt eiendomsopplysninger: (belastes megler) kr -3 271,00
Markedsføringspakke kr 27 400,00
Oppgjør kr 7 500,00
Tilrettelegging kr 17 000,00
Visninger pr stk / Overtagelse - 2900 - 3 INK RABATT kr 0,00
Utlegg:
Innhenting av offentlig opplysninger kr 3 271,00
Tinglysing sikring kr 545,00
Andre utgifter:
Boligselgerforsikring Buysure inkl. tilstandsrapport Anticime (20.625 + 571 promille forsikring) kr 0,00
Foto - Sommerbilder utvendig + nye bilder inne og ute neste år (8000-9000) kr 8 000,00
Opplysninger om oppdraget
Oppdragsnummer 60-0286/25
Eiendomsmegler Krogsveen AS, avd. Lillestrøm
Adolph Tidemands gate 38, 2000, LILLESTRØM
950 007 613
Oppdragets KR-kode KR60.25286
Dato
Sist oppdatert: 24. april 2026 kl. 12:42
Dokumenter
Dokumenter
PDF – 973 KB
PDF – 312 KB
PDF – 29 KB
PDF – 127 KB
PDF – 392 KB
Område
Legg til steder som er viktige for deg
Visning
Unngå doble boligrenter
Vi tilbyr gunstig forsikring.
Vurderer du utleie?
Få et tilbud fra Utleie KrogsveenHva koster lånet?
Sjekk estimert lånekostnadVil du varsles om lignende boliger?
Ved å lagre ditt boligsøk hos oss får du beskjed når vi har en bolig som ligner denne, før den legges ut på markedet!

