Harald Hårfagres gate 2
6 500 000 kr
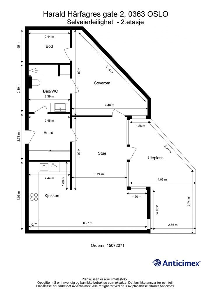
68 m²
1 soverom
Solgt

Majorstua
Flott og romslig eierseksjon i ettertraktet sameie I Garasje I Nydelig markterrasse I Lave felleskostnader I Sentralt!
Prisantydning
6 500 000 krOmkostninger
174 454 krTotalpris
6 674 454 kr
Pris
Bruksareal
72 m²BRA-I (internt bruksareal)
68 m²BRA-E (eksternt bruksareal)
4 m²TBA (terrasse-balkongareal)
20 m²
Areal
Etasje
2Byggeår
1990Soverom
1 soveromBad
1 badType
EierleilighetEierform
EierseksjonFasiliteter
Garasje/P-plass, Heis og Balkong/TerrasseFellesutgifter
2 697 krEnergimerke
Rød E
Nøkkelinfo
Unngå doble boligrenter
Vi tilbyr gunstig forsikring.
Vurderer du utleie?
Få et tilbud fra Utleie KrogsveenHva koster lånet?
Sjekk estimert lånekostnadBeskrivelse
Kort om eiendommen
Velkommen til Harald Hårfagres gate 2! Lys, tiltalende og romslig eierleilighet med praktisk planløsning og stor sydvest-vendt markterrasse på 20 kvm. Boligen ligger i 2. etasje med heisadkomst, og er utstyrt med et flott uteområdet med gode solforhold og garasjeplass med bod i byggets kjeller. Markterrassen vender mot sameiets rolige atrium. Denne leiligheten tilbyr en meget sentral og attraktivt beliggenhet i en tilbaketrukket gate på Majorstuen. Umiddelbar nærhet til kollektiv transport, parker, butikker og restauranter.
Innvendig har boligen stor og luftig stue med store vindusflater i delvis åpen løsning mot en velutstyrt kjøkken. Videre har leiligheten romslig bad med varmekabler og opplegg for vaskesøyle, stort soverom, entré med skyvedørsgarderobe og innebod/garderoberom.
Område
Legg til steder som er viktige for deg
På flyttefot? Tenk kjøp og salg samtidig.
Få din egen rådgiver gjennom hele kjøps- og salgsprosessen. Det starter med en verdivurdering.
Unngå doble boligrenter
Vi tilbyr gunstig forsikring.
Vurderer du utleie?
Få et tilbud fra Utleie KrogsveenHva koster lånet?
Sjekk estimert lånekostnadVil du varsles om lignende boliger?
Ved å lagre ditt boligsøk hos oss får du beskjed når vi har en bolig som ligner denne, før den legges ut på markedet!

