Furukollen 5
5 850 000 kr
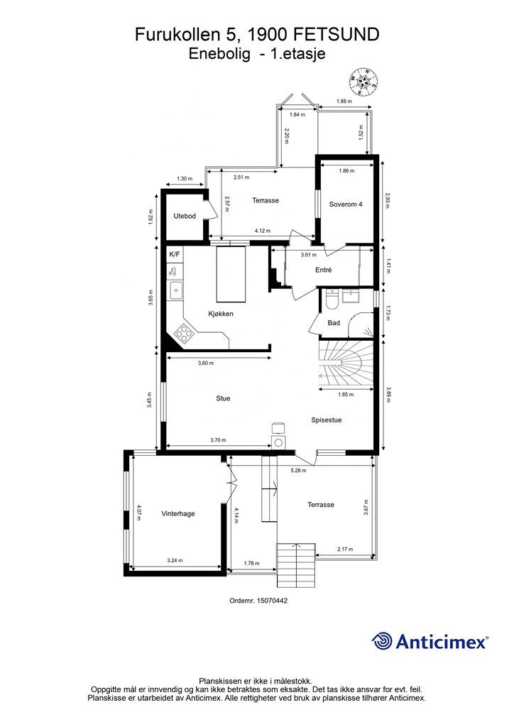
111 m²
4 soverom
Solgt
Garderåsen
Pen og innbydende enebolig med koselige uteplasser | Garasjeplass | 4 soverom | Hjørnetomt | Barnevennlig nabolag
Prisantydning
5 850 000 krOmkostninger
147 340 krTotalpris
5 997 340 kr
Pris
Bruksareal
146 m²BRA-I (internt bruksareal)
111 m²BRA-E (eksternt bruksareal)
35 m²TBA (terrasse-balkongareal)
37 m²
Areal
Byggeår
1984Soverom
4 soveromBad
2 badTomteareal
166 m² (eiet)Type
Enebolig - FrittliggendeEierform
EietFasiliteter
Garasje/P-plass og Balkong/TerrasseÅrlig velavgift
6 500 krEnergimerke
Oransje F
Nøkkelinfo
Unngå doble boligrenter
Vi tilbyr gunstig forsikring.
Vurderer du utleie?
Få et tilbud fra Utleie KrogsveenHva koster lånet?
Sjekk estimert lånekostnadBeskrivelse
Kort om eiendommen
Hyggelig enebolig med en idyllisk og fin beliggenhet på attraktive Garderåsen. Garderåsen er et familievennlig område nær skole og barnehager, samt gode turmuligheter tett på naturen.
Rundt boligen er det en hyggelig hage samt en flott terrasse med gode solforhold.
* Store deler av boligen er nyoppusset innvendig samt utvendig i perioden 2018-2024
* Stille og rolig nabolag med lite trafikk
* Hjørnetomt med romslig opparbeidet hage med lite innsyn
* Solrik beliggenhet
* Rikelig med lagring under boligen
Kontakt megler og bli med på en hyggelig visning!
Område
Legg til steder som er viktige for deg
Meglere
På flyttefot? Tenk kjøp og salg samtidig.
Få din egen rådgiver gjennom hele kjøps- og salgsprosessen. Det starter med en verdivurdering.
Unngå doble boligrenter
Vi tilbyr gunstig forsikring.
Vurderer du utleie?
Få et tilbud fra Utleie KrogsveenHva koster lånet?
Sjekk estimert lånekostnadVil du varsles om lignende boliger?
Ved å lagre ditt boligsøk hos oss får du beskjed når vi har en bolig som ligner denne, før den legges ut på markedet!




