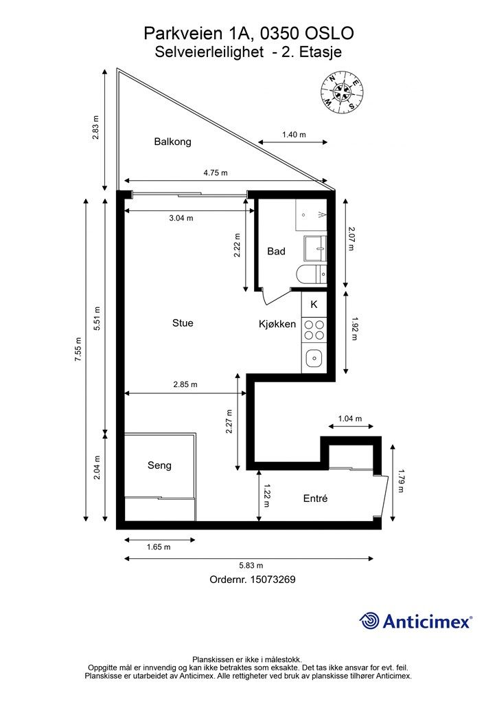
Parkveien 1A
4 190 000 kr
33 m²
Solgt

Stilig 1-roms med god planløsning. Praktisk hems. Balkong. God takhøyde. Felles takterrasse. Sentral beliggenhet.
Prisantydning
4 190 000 krAndel fellesgjeld
105 443 krOmkostninger
119 410 krTotalpris
4 414 853 kr
Pris
Bruksareal
6 m²BRA-E (eksternt bruksareal)
6 m²TBA (terrasse-balkongareal)
7 m²
Areal
Etasje
2Byggeår
1892Bad
1 badType
EierleilighetEierform
EierseksjonFellesutgifter
2 921 krEnergimerke
Rød F
Nøkkelinfo
Unngå doble boligrenter
Vi tilbyr gunstig forsikring.
Vurderer du utleie?
Få et tilbud fra Utleie KrogsveenHva koster lånet?
Sjekk estimert lånekostnadBeskrivelse
Kort om eiendommen
Velkommen til Parkveien 1 A presentert v/ Therese Ekeli Berg i Krogsveen.
En superpraktisk 1-roms med attraktivt beliggenhet midt på Bislett, samtidig helt skjermet for støy og sjenanse da boligen vender i sin helhet inn mot bakgård.
Supert førstegangskjøp, pendlerbolig eller utleieobjekt med nærhet til alt og med gode kollektivforbindelser til alle retninger av byen.
- Meget god takhøyde
- Godt med lagringsplass. To eksterne boder.
- Lave fellesutgifter
- Romslig balkong
- Felles takterrasse
- Heis i bygget
- Veldig god planløsning med soveplass på hems
- Luftig og lys
Område
Legg til steder som er viktige for deg
På flyttefot? Tenk kjøp og salg samtidig.
Få din egen rådgiver gjennom hele kjøps- og salgsprosessen. Det starter med en verdivurdering.
Unngå doble boligrenter
Vi tilbyr gunstig forsikring.
Vurderer du utleie?
Få et tilbud fra Utleie KrogsveenHva koster lånet?
Sjekk estimert lånekostnadVil du varsles om lignende boliger?
Ved å lagre ditt boligsøk hos oss får du beskjed når vi har en bolig som ligner denne, før den legges ut på markedet!

