Hønsveien 31
10 600 000 kr
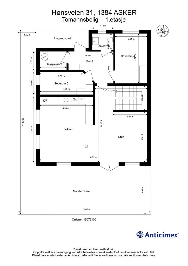
153 m²
5 soverom
Solgt

Presenteres av
Terje TveitHØN
Innholdsrik bolig fra 2019. 5 soverom. Barnevennlig i stille blindvei, stor solrik terrasse og hage. Garasje m/ el-lader
Prisantydning
10 600 000 krOmkostninger
285 990 krTotalpris
10 885 990 kr
Pris
Bruksareal
185 m²BRA-I (internt bruksareal)
153 m²BRA-E (eksternt bruksareal)
32 m²TBA (terrasse-balkongareal)
59 m²
Areal
Etasje
2Byggeår
2019Soverom
5 soveromBad
1 badType
Halvpart vertikaldelt boligEierform
EierseksjonFasiliteter
Garasje/P-plass og Balkong/TerrasseÅrlig velavgift
1 250 krEnergimerke
Lysegrønn C
Nøkkelinfo
Unngå doble boligrenter
Vi tilbyr gunstig forsikring.
Vurderer du utleie?
Få et tilbud fra Utleie KrogsveenHva koster lånet?
Sjekk estimert lånekostnadBeskrivelse
Kort om eiendommen
Velkommen til Hønsveien 31, presentert av Terje Tveit i Krogsveen.
Her kan du flytte rett inn i en nyere vertikaldelt halvpart av tomannsbolig med familievennlig planløsning. Den åpne stue- og kjøkkenløsningen har utgang til en stor markterrasse og en nydelig hage, perfekt for sosiale lag. Boligen ligger i et etablert og rolig villaområde med kort vei til Høn stasjon, skoler, barnehager og flotte rekreasjonsområder. Dette er en trygg og fredelig base for familien.
Kort fortalt:
Nyere bolig fra 2019 med ferdigattest
5 soverom og god planløsning
Stor markterrasse på 59 m²
Lekkert bad med både dusj og badekar
Peisovn i stuen for ekstra hygge
Gulvvarme i hele 1. etasje og på bad
Garasje med elbillader
Velkommen til visning!
Område
Legg til steder som er viktige for deg
På flyttefot? Tenk kjøp og salg samtidig.
Få din egen rådgiver gjennom hele kjøps- og salgsprosessen. Det starter med en verdivurdering.
Unngå doble boligrenter
Vi tilbyr gunstig forsikring.
Vurderer du utleie?
Få et tilbud fra Utleie KrogsveenHva koster lånet?
Sjekk estimert lånekostnadVil du varsles om lignende boliger?
Ved å lagre ditt boligsøk hos oss får du beskjed når vi har en bolig som ligner denne, før den legges ut på markedet!
På flyttefot? Slik gjør vi det enklere for deg
Skreddersydd flyttepakke
Vi fikser håndverkere, vask, pakking, lagring og transport, og legger ut for utgiftene underveis.
Hjelp med både kjøp og salg
Hos oss har du din egen rådgiver gjennom hele kjøps- og salgsprosessen.
Hjelp til finansiering
Vårt samarbeid med BN Bank sikrer deg rask og løsningsorientert hjelp, til konkurransedyktige betingelser.



















































