Korpåsen 59B
6 390 000 kr
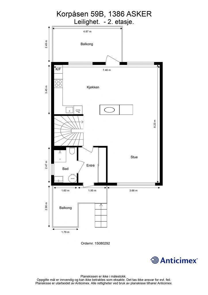
121 m²
3 soverom
Solgt

Presenteres av
Terje TveitGULLHELLA
Flott 4-roms ende- og toppleilighet. 2 balkonger m. sjøutsikt. Garasjeplass. Barnevennlig. Tog og buss i nærheten.
Prisantydning
6 390 000 krAndel fellesgjeld
16 809 krOmkostninger
171 190 krTotalpris
6 577 999 kr
Pris
Bruksareal
126 m²BRA-I (internt bruksareal)
121 m²BRA-E (eksternt bruksareal)
5 m²TBA (terrasse-balkongareal)
19 m²
Areal
Etasje
2Byggeår
2002Soverom
3 soveromBad
2 badType
EierleilighetEierform
EierseksjonFasiliteter
Garasje/P-plass og Balkong/TerrasseFellesutgifter
4 639 krEnergimerke
Gul D
Nøkkelinfo
Unngå doble boligrenter
Vi tilbyr gunstig forsikring.
Vurderer du utleie?
Få et tilbud fra Utleie KrogsveenHva koster lånet?
Sjekk estimert lånekostnadBeskrivelse
Kort om eiendommen
Velkommen til Korpåsen 59B, presentert av Terje Tveit i Krogsveen.
Her får du en flott 4-roms leilighet på Korpåsen. Dette er et attraktivt og populært område på Gullhella i Asker. Her bor du med nærhet til marka, skoler, barnehager, fjorden, slalåmbakke og lysløyper. Det er en kort kjøretur til både Rema 1000 og Kiwi. Det tar rundt 14 min å gå til Gullhella stasjon med direkte forbindelse mot Oslo og 10 min gange til bussholdeplass langs Røykenveien.
Kort fortalt:
3 soverom, 2 bad
P-plass i lukket garasjeanlegg med mulighet for lader
Flott sjøutsikt fra begge balkongene
Gasspeis i stuen
God lagringsplass i bodene
Nærhet til buss, tog, barneskole, barnehage og matbutikk
Hyggelig nabolag
Barnevennlig område
Velkommen til visning!
Område
Legg til steder som er viktige for deg
På flyttefot? Tenk kjøp og salg samtidig.
Få din egen rådgiver gjennom hele kjøps- og salgsprosessen. Det starter med en verdivurdering.
Unngå doble boligrenter
Vi tilbyr gunstig forsikring.
Vurderer du utleie?
Få et tilbud fra Utleie KrogsveenHva koster lånet?
Sjekk estimert lånekostnadVil du varsles om lignende boliger?
Ved å lagre ditt boligsøk hos oss får du beskjed når vi har en bolig som ligner denne, før den legges ut på markedet!
På flyttefot? Slik gjør vi det enklere for deg
Skreddersydd flyttepakke
Vi fikser håndverkere, vask, pakking, lagring og transport, og legger ut for utgiftene underveis.
Hjelp med både kjøp og salg
Hos oss har du din egen rådgiver gjennom hele kjøps- og salgsprosessen.
Hjelp til finansiering
Vårt samarbeid med BN Bank sikrer deg rask og løsningsorientert hjelp, til konkurransedyktige betingelser.


































