Skogfaret 60E
7 800 000 kr
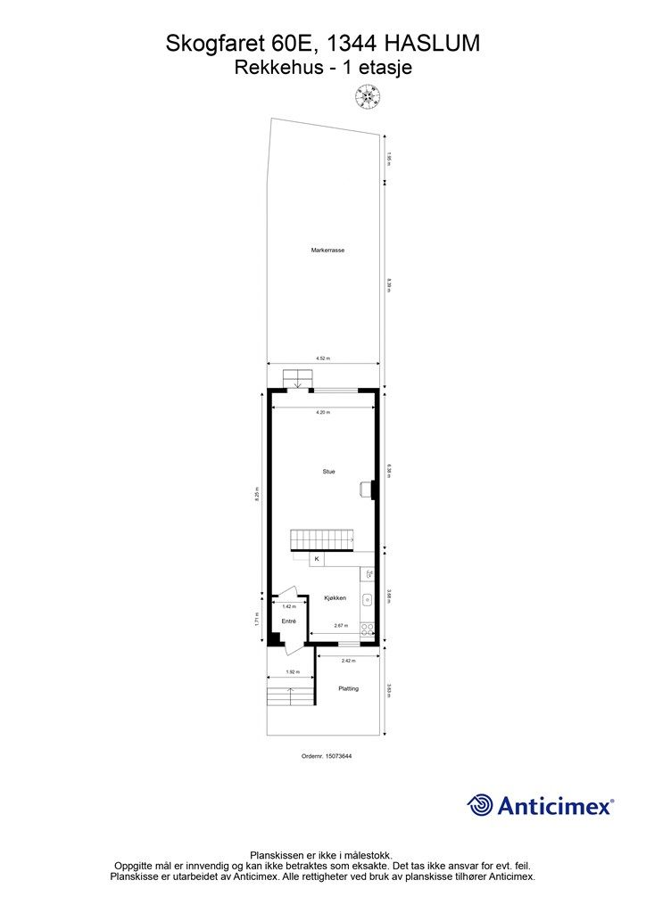
125 m²
3 soverom
Solgt

Barnevennlig og attraktivt rekkehus i blindvei – usjenert uteplass, garasje og kort vei til skole, t-bane og natur
Prisantydning
7 800 000 krOmkostninger
215 990 krTotalpris
8 015 990 kr
Pris
Bruksareal
125 m²BRA-I (internt bruksareal)
125 m²TBA (terrasse-balkongareal)
64 m²
Areal
Byggeår
1960Soverom
3 soveromBad
2 badTomteareal
95 m² (festet)Type
RekkehusEierform
EietFasiliteter
Garasje/P-plass og Balkong/TerrasseÅrlig velavgift
15 300 krFellesutgifter
1 275 krEnergimerke
Rød G
Nøkkelinfo
Unngå doble boligrenter
Vi tilbyr gunstig forsikring.
Vurderer du utleie?
Få et tilbud fra Utleie KrogsveenHva koster lånet?
Sjekk estimert lånekostnadBeskrivelse
Kort om eiendommen
Velkommen til Skogfaret 60 E – et sjarmerende rekkehus med nydelig, usjenert uteplass og garasje, innerst i en blindvei på populære Haslum/Løkeberg.
Boligen har en svært god intern beliggenhet – med hage som grenser mot åpent grøntområde uten boliger foran, og svært gode solforhold med både morgen- og kveldssol. Området er rolig, barnevennlig og fritt for gjennomkjøring, med trygg bilfri gangvei til Løkeberg skole.
Her bor du i et aktivt og sosialt nabolag, med barnehager, lekeplasser, fritidstilbud og kollektivtransport i nærheten. I tillegg er det kort vei til Sandvika, Bekkestua og flotte turområder.
Velkommen til visning!
Område
Legg til steder som er viktige for deg
På flyttefot? Tenk kjøp og salg samtidig.
Få din egen rådgiver gjennom hele kjøps- og salgsprosessen. Det starter med en verdivurdering.
Unngå doble boligrenter
Vi tilbyr gunstig forsikring.
Vurderer du utleie?
Få et tilbud fra Utleie KrogsveenHva koster lånet?
Sjekk estimert lånekostnadVil du varsles om lignende boliger?
Ved å lagre ditt boligsøk hos oss får du beskjed når vi har en bolig som ligner denne, før den legges ut på markedet!

