Brevikveien 15
4 990 000 kr
108 m²
3 soverom
Komplett salgsoppgave

Nyere, energieffektiv bolig med moderne design og høy kvalitet i Thermomur - Sydvendt terrasse - Tre soverom - Carport
Prisantydning
4 990 000 krOmkostninger
145 740 krTotalpris
5 135 740 kr
Pris
Bruksareal
116 m²BRA-I (internt bruksareal)
108 m²BRA-E (eksternt bruksareal)
8 m²TBA (terrasse-balkongareal)
30 m²
Areal
Etasje
2Byggeår
2023Soverom
3 soveromBad
1 badTomteareal
973 m² (eiet)Type
Enebolig - FrittliggendeEierform
EietFasiliteter
Balkong/TerrasseEnergimerke
Rød B
Nøkkelinfo
Unngå doble boligrenter
Vi tilbyr gunstig forsikring.
Vurderer du utleie?
Få et tilbud fra Utleie KrogsveenHva koster lånet?
Sjekk estimert lånekostnadBeskrivelse
Kort om eiendommen
- Stilfullt kjøkken fra Mesterkjøkken med integrere hvitevarer
- Stort flislagt bad med skyvedører mot vaskerom/teknisk
- Hovedsoverom med plass til skyvedørsgarderobe
- Solrik og vestvendt takterrasse på ca. 30 kvm
- Totalt tre soverom
- Luft-til-luft varmepumpe
- Elektriske varmekabler på bad og i gang/hall
- Balansert ventilasjonsanlegg
- Tilhørende carport med bod
- Montert elbillader i carport
- Boligen er bygget i Jackon Thermomur
- Gangavstand til Tunejordet handelsområde
- Sentrumsnær beliggenhet og enkel adkomst til E6
Innhold og byggemåte
Innhold og byggemåte
Eiendommen
Brevikveien 15, 1711 SARPSBORG
Kommunenummer 3105, gårdsnummer 2083, bruksnummer 76, seksjonsnummer 3, ideell andel 1/1
Innhold
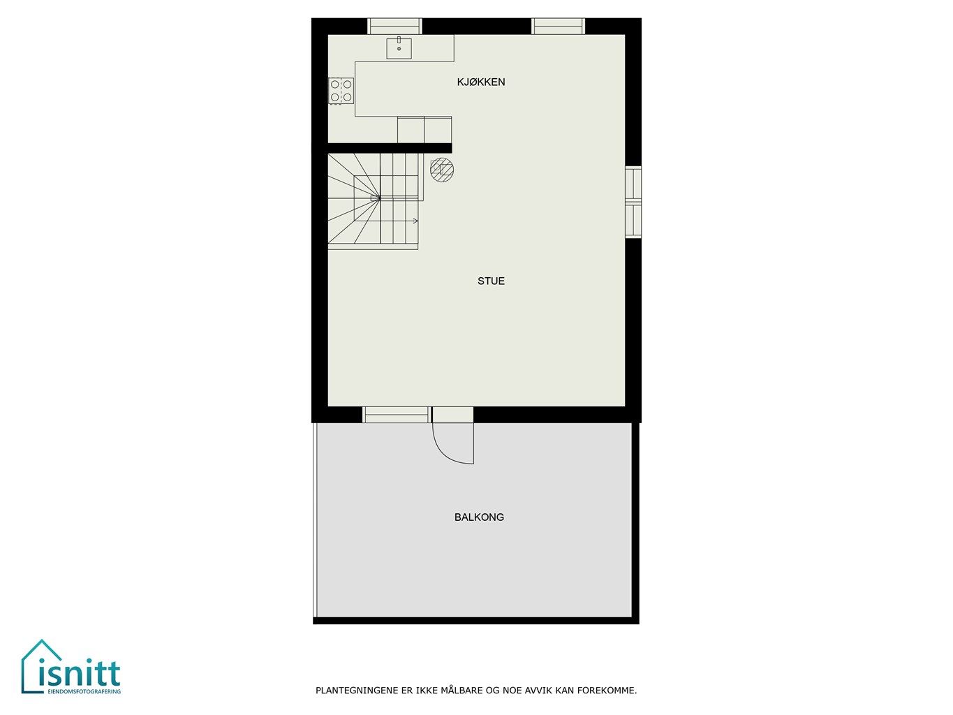
Totalt bruksareal BRA: 108 kvm
BRA-i:
1. etasje - 54 kvm: Gang/hall, bad/vaskerom, toalettrom og tre soverom.
2. etasje - 54 kvm: Kjøkken og stue.
Åpent areal:
2. etasje - 30 kvm: Takterrasse over carport
Vedlagte plantegninger er ikke målbare. De oppgitte arealer er hentet fra rapport med befaringsdato 10.03.2025 utført av Nedre Glomma Takst AS. Arealene er beregnet og rom er definert etter dagens faktiske bruk, uavhengig av hva som er godkjent av bygningsmyndighetene.
Byggemåte
Selger har fått utarbeidet en tilstandsrapport, dvs. en teknisk gjennomgang av boligen hvor eventuelle avvik, risiko for kjøper og prisoverslag for hva som bør gjøres av oppgradering, er skissert. Se særskilt TGIU (tilstandsgrad ikke undersøkt), samt TG2 og TG3 som viser hva som er boligens normale slitasje, alder og type, hva som er avvik fra dette og hva som bør/må utbedres. Rapporten og selgers egenerklæring er en del av salgsoppgaven og må leses nøye før bud inngis. Kjøper overtar ansvaret for de opplysninger som fremkommer av salgsdokumentasjonen, og kan ikke gjøre gjeldende som mangel noe som burde vært kjent eller som ikke kan anses å ha betydning for avtalen.
Bygningen er iht. tilstandsrapporten oppført i tre/mur/betong. Les forøvrig mer om byggemåte og den tekniske tilstanden i rapporten.
Huset står sannsynligvis på oppfylte masser. Betongdekke i hele 1.etg. Sannsynligvis element ringmur, denne er ikke synlig. Saltak. Jeg hadde ikke tilgang til konstruksjon så den er ikke sjekket. Taket er tekket med papp. Renner og nedløp i stål. Helbeslag på pipe. En luftehatt. Byggemåte er Thermomur* eller lignende. Systempuss utvendig, gipsplater på vegger innvendig. Noe trekledning oppe i gavler. Vinduer med trelags isolerglass. Aluminiumsbeslått ute. Malt inngangsdør med trelags isolerglass. Terrassedør med trelags isolerglass, denne er aluminiumsbeslått ute.
Takterrasse over carport på ca. 30 m2. Rekkverk med stående kledning og spiler.
Treplatting ved inngang. Rekkverk med spiler.
Vannrør innvendig i plast (rør i rør). Fordelerskap med avrenning bak skyvedører på bad/vaskerom. Stoppekran og vannmåler ved inntak bak skyvedører på bad/vaskerom. Innvendige avløpsrør i plast. Stakemuligheter fra sluk. Varmtvannstank på 200 liter bad skyvedører på bad/vaskerom. Det er sluk her.
Flexit ventilasjon med varmegjenvinner.
Varmekabler i deler av gulver.
Varmepumpe.
El.skapet står i gang/hall 1.et. 50 amp. hovedsikring. 16 kurser. Automatsikringer med jordfeilbrytere. Kurser er merket. Utførende må sørge for dokumentasjon, anbefaler at dokumentasjon settes inn i el.skapet.
6 kg brannslukningsapparat. Røykvarsler er i orden.
Det gjøres spesielt oppmerksom på:
Det er gitt tilstandsgrad 2 (TG 2) på bygningselementer i: Toalettrom. Det må fuges på nytt under toalettet og ordne noe med avrenningen til sisternen.
- Selger opplyser at dette forholdet er utbedret.
Selger opplyser:
- Deler av rekkverk på takterrassen er skiftet ut fra rekkverk i tett trekledning til rekkverk med glassflater. Tiltaket er ikke søkt fasadeendret.
*Beskrivelse av Jackon Thermomur fra produsentens hjemmesider (https://www.jackon.no/bygg/jackon-thermomur/):
Jackon Thermomur® er et grunnmur- og byggesystem som består av lette blokker i Jackopor® (EPS) som stables som byggeklosser og fylles med betong. Etter støping framstår grunnmuren og veggene som en solid og ferdig isolert konstruksjon. Det ferdige bygget får ekstraordinære kvaliteter som byggherren kan glede seg over i hele husets levetid. Systemet har vært på markedet i snart 40 år, er gjennomprøvd og kontinuerlig videreutviklet sammen med brukerne og i takt med endringer i byggeforskriftene. Jackon Thermomur er utviklet og produseres i Norge, og er derfor skreddersydd det norske klimaet. Jackon Thermomur® er blitt et begrep i bransjen og er ensbetydende med lavenergi, kvalitet, trygghet og brukervennlighet
Fellesnevneren er at byggesystemene gir beste forutsetning for energieffektive bygg. Det er lett å la seg begeistre!
Standard
Nyere, energieffektiv enebolig, oppført i Jackon Thermomur, som er utvendig pusset og malt. Boligen holder en gjennomgående god standard og har fine materialvalg.
Boligens andreetasje er på hele 54 kvm og inneholder en åpen stue- og kjøkkenløsning med utgang til solrik vestvendt takterrasse på ca. 30 kvm. Kjøkkeninnredning er levert av Mesterkjøkken og har tidsriktige slette mørke fronter med håndtak. Kjøkkenet er praktisk plassert uten innsyn fra stuen, og har fin plass til stor spisestue ved siden av. Mellom stuen og kjøkkenet er det klargjort for installasjon av vedovn, samt at det er montert luft-til-luft varmepumpe som er plassert ved spisestuen. På kjøkkenet og over trappen er det innfelte downlights.
I førsteetasje finner man boligens tre soverom, hvorav hovedsoverommet har god plass til eventuell skyvedørsgarderobe. I tilknytning til gangen er det bygget et fint flislagt bad med store gulv- og veggfliser. Himlingen er hvitmalt og har innfelte downlights. Vaskerom og tekniske installasjoner er skjult med skyvedører med speilfronter. I tillegg er det bygget separat toalettrom, samt at det er praktisk lagringsrom under trappen.
Videre har boligen carport med bod under takterrassen. I carporten er det montert elbillader.
Overflater og innredninger:
Gulv: Fliser på bad/vaskerom/teknisk rom, toalettrom og i gang/hall, for øvrig enstavs laminat.
Innervegger: Fliser på bad, for øvrig malte glatte flater.
Himlinger: Malte glatte flater. Downlights på bad, kjøkken, trappeløp og i hall/gang.
Kjøkken: Skapinnredning med glatte mørke fronter med sorte håndtak. Laminerte lyse benkeplater. Nedfelt vask i sort kompositt med ett-greps blandebatteri. Integrert platetopp, stekeovn, oppvaskmaskin, mikrobølgeovn og kombiskap. Vegghengt sort avtrekksventilator.
Bad: Servantskap med glatte hvite fronter med håndtak og heldekkende servant med ett-greps blandebatteri. Speilskap med belysning. Dusjnisje med glassvegger. Toalett montert på innbygget sisterne.
Toalettrom: Servantskap med glatte hvite fronter med håndtak og heldekkende servant med ett-greps blandebatteri. Veggspeil. Toalett montert på innbygget sisterne.
Løsøre og tilbehør
Vi viser til liste fra Norges Eiendomsmeglerforbund som gjelder fra 01.01.2020 angående løsøre og tilbehør.
Oppvarming
Luft-til-luft varmepumpe. Varmekabler på bad og i gang/hall. Klargjort for installasjon av ildsted.
Ferdigattest/brukstillatelse
Det foreligger ferdigattest på riving av uthus og oppføring av 2 eneboliger datert 23.05.2023 Denne kan fås ved henvendelse til megler.
Tinglyste heftelser og rettigheter
Eiendommen overdras fri for pengeheftelser. Det er ingen tinglyste servitutter på eiendommen.
Eventuell adgang til utleie
Eiendommen har ikke separat utleieenhet. Det vil normalt være anledning til utleie av hele eiendommen eller enkeltrom, såfremt utleiearealet er bygningsmessig godkjent for varig opphold og har forsvarlige radonnivåer.
Diverse
Vi er opptatt av verdiskapning, og har knyttet til oss samarbeidspartnere som skal sikre våre kunder de beste produkter og tjenester;
• Gjensidige leverer boligselgerforsikring og tilbyr bygningsforsikring
• Boligkjøperforsikring leveres av Hiscox og med Sedgwick som skadebehandler, og er formidlet gjennom Gjensidige.
• BN bank tilbyr finansieringsløsninger
• Vår avdeling Krogsveen Pluss tilbyr flyttetjenester som utvask, visningsvask, lager, tømming og transport av flyttelass, i tillegg til å formidle kontakt med Flip for overflateoppussing.
• I forbindelse med overtagelse av eiendommen tilbyr Overo avtale om strøm, alarm og bredbånd.
• Krogsveen er, sammen med øvrige bransjeaktører, medeier i den digitale annonseringsplattformen Hjem.
Selger har ikke bebodd eiendommen og har derfor ikke kunnskap om eiendommens tilstand. Kjøper må derfor kunne påregne at det kan være flere feil og mangler som normalt oppdages ved bruk av boligen, men som selger ikke har mulighet å vite. Kjøper overtar derfor all risiko for denne type feil og mangler.
Beliggenhet og tomteforhold
Beliggenhet og tomteforhold
Beliggenhet
Brevik er et veletablert og utpreget familievennlig boligområde. I nabolaget finnes både rekkehusbebyggelse og lavblokker som alle er omgitt av store felles grøntarealer. Sistnevnte inkluderer også flere løkker og naturlige møteplasser for barna i nabolaget, og setter i tillegg et frodig, nærmest landlig preg på omgivelsene.
For en familie med små barn vil det oppleves som et praktisk pluss i hverdagen at de nærmeste to barnehagene er kun få hundre meter unna. Kort avstand og reell gangavstand er det også til både barneskole og ungdomsskoler.
Hverdagslige innkjøp er enkle å gjennomføre i handelsområdet på nærliggende Tunejordet. Her finnes både dagligvareforretninger og et bredt utvalg av store varehus.
Til sentrumskjernen tar det kun fem minutter med sykkel, bil eller buss fra holdeplass på Tunejordet ca. 400 meters gange unna boligen. Det er for øvrig også mulig å ta buss til sentrum fra Torsbekkdalen, gode 800 meter unna.
I en mer utvidet omkrets finnes en rekke familie-orienterte tilbud og fasiliteter, blant annet badeland og opplevelsessenter på Grålum, samt Tunevannet med bademuligheter sommerstid og skøyteis når forholdene tillater vinterstid. Mer omfangsrike friluftsområder finnes ved Kurland like nord for sentrum, blant annet lysløype med preparerte skispor ved snø vinterstid.
Barnehager, skoler og fritid
Skoler
Childrens Intern. School Sarpsborg (1-10 kl.), 18 min 268 elever, 14 klasser 1.5 km
Alvimhaugen barneskole (1-7 kl.) 149 elever, 7 klasser, 20 min 1.6 km
Lande barneskole (1-7 kl.) 420 elever, 21 klasser, 22 min 1.9 km
Sandesundsveien barneskole (1-7 kl.) 434 elever, 24 klasser, 6 min 2.5 km
Kruseløkka ungdomsskole (8-10 kl.) 600 elever, 33 klasser, 6 min 2.3 km
St. Olav videregående skole 860 elever, 42 klasser, 22 min 1.8 km
Seiersborg videregående skole 52 elever, 9 min 6.4 km
Barnehager
Askeladden barnehage Borg (0-5 år) 82 barn, 6 min 0.5 km
Snarveien Fus barnehage (0-5 år) 82 barn, 8 min 0.7 km
Valaskjold barnehage (1-5 år) 69 barn, 13 min 1.1 km
Beskrivelse av tomt
Felles tomt for alle tre husene. Gruset gårdsplass. Noe plen og hekk rundt den enkelte bolig. Rundstein rundt deler av huset. Alle tre boligene har eksklusiv bruksrett til uteoppholdsarealer.
Parkering
Carport og én biloppstillingsplass. Det er montert elbillader i carport.
Vei, vann og avløp
Eiendommen har adkomst via kommunal vei. Eiendommen har felles eiet gårdsplass med felles vedlikeholdsansvar.
Eiendommen er tilknyttet kommunalt ledningsnett via private stikkledninger. Eier er selv ansvarlig for private stikkledninger til boligen.
Regulerings-og arealplaner
Eiendommen er regulert til konsentrert småhusbebyggelse i henhold til reguleringsplan Hundskinn datert 28.10.2010 med tilhørende reguleringsbestemmelser.
Utsnitt av plan med tilhørende bestemmelser kan fås ved henvendelse til megler.
Økonomi
Økonomi
Kommunale utgifter
Kommunale avgifter er kr 18 674,- for inneværende år. I dette inngår gebyr for vann, avløp, renovasjon
I tillegg kommer eiendomsskatt som utgjør årlig kr 8 535,-. Blir fakturert sammen med kommunale avgifter.
Boligen er ikke tilknyttet kabel-tv/internett. Kjøper må selve koste tilkobling og abonnement. Eier har fått opplyst at HomeNett muligens kan levere fiber/TV til eiendommen. Kjøper må selv undersøke dette nærmere.
Kjøper må selv tegne fullverdiforsikring.
Formuesverdi
Da boligen selges som nyoppført og formuesverdien ikke fastsatt på nåværende tidspunkt.
Formuesverdi fastsettes med utgangspunkt i en formel for kvadratmeterpris som fastsettes av SSB. Den estimerte kvadratmeterprisen er fastsatt ut fra flere kriterier (beliggenhet, alder, areal og boligtype) som danner markedsverdien i området. Boligens faktiske markedspris vil derfor ikke være Skatteetatens grunnlag for den første fastsettelsen av formuesverdi.
Det første året boligeiendommen skal formues verdsettes, må skatteyter påse å gi tilstrekkelig med opplysninger om boligen til skattemyndighetene slik at korrekt estimert markedsverdi og formuesverdi kan beregnes. Formuesverdien vil senere automatisk justeres i takt med prisutviklingen på boliger og beregnet formuesverdi vil fremgå av forhåndsutfylt skattemelding.
Formuesverdien for boligeiendommer for inntektsåret 2021 skal ikke overstige 25 % av dokumentert markedsverdi for primærbolig (der man bor fast). Formuesverdien for sekundærboliger (øvrig bruk av eiendommen, f.eks. fritidsbolig, pendlerbolig, utleieobjekt) skal for inntektsåret 2021 ikke overstige 90% av dokumentert markedsverdi. For nærmere opplysninger om formuesverdi kontakt skatteetaten.
Omkostninger
4 990 000,00 Prisantydning
Omkostninger
124 750,00 Dokumentavgift til staten (2,5% av tomteverdi kr 500 000)
545,00 Tinglysing panterettsdokument
545,00 Tinglysing skjøte
19 900,00 Tryg Boligkjøperpakke (valgfri)
--------------------------------------------------------
145 740,00 Omkostninger totalt
--------------------------------------------------------
5 135 740,00 Totalpris inkl. omkostninger
--------------------------------------------------------
Totalpris inkl. omkostninger forutsetter kjøp til prisantydning.
Det tas forbehold om endringer i avgifter og gebyrer.
Tilbud om lånefinansiering
Megler formidler gjerne kontakt med rådgiver hos vår samarbeidspartner BN bank. De har konkurransedyktige betingelser samt rask og løsningsorientert behandling av din lånesøknad. Krogsveen mottar et honorar av BN Bank for denne formidlingen.
Betalingsbetingelser
Kjøpesum inkludert omkostninger, samt pantedokument tilknyttet eventuelt lån, skal være disponibelt hos megler 2 virkedager før overtagelsen.
Annen viktig informasjon
Annen viktig informasjon
Eier
Vestengveien Eiendomsutvikling AS
Overtakelse
Etter nærmere avtale.
Boligselgerforsikring
Selger kan ikke tegne boligselgerforsikring i henhold til vilkår og eventuelle reklamasjoner må rettes direkte til selger. Selgers egenerklæringsskjema følger som bilag til denne salgsoppgaven i tillegg til tilstandsrapport. Interessenter må sette seg inn i dokumentene før bud inngis.
Boligkjøperforsikring
Innen kontraktsmøtet må kjøper ta stilling til om det ønskes å bestille Boligkjøperpakken gjennom Gjensidige. I denne gunstige pakken er boligen ferdig forsikret og inkluderer rettshjelpsforsikring, også kalt Boligkjøperforsikring. Rettshjelpsforsikring gir trygghet og tilgang på profesjonell juridisk hjelp dersom det oppdages uventede feil eller mangler det første året etter overtagelse. Forsikringsselskapet behandler i så fall ethvert mangelskrav kjøper måtte ha overfor selger.
Boligkjøperpakken inkluderer bygningsforsikring for hus og hytte, innboforsikring, flytteforsikring og dobbel rentedekning - i situasjoner hvor kjøper ikke får solgt nåværende primærbolig.
Kjøper mottar ingen særskilt faktura for Boligkjøperpakken da kostnaden det første året legges til kjøpesummen for boligen. Det gjøres oppmerksom på Krogsveen mottar et honorar for denne formidlingen.
Produktark for Boligkjøperpakken ligger vedlagt i salgsoppgaven.
Dersom ikke boligkjøperpakke ønskes kan kun rettshjelpsforsikring, også kalt boligkjøperforsikring, tegnes særskilt via megler. Rettshjelpsforsikringen varer i 5 år fra overtagelse og leveres gjennom Gjensidige. Ta kontakt med megler for ytterligere informasjon.
Selskap og privatpersoner som driver med kjøp/salg/utvikling som ledd i egen næringsvirksomhet kan ikke tegne boligkjøperpakke eller rettshjelpsforsikring.
Budgivning
Forbrukerinformasjon om budgivning er vedlagt denne salgsoppgaven og er også på vår hjemmeside Krogsveen.no. Alle bud og budforhøyelser må inngis skriftlig. I tillegg må legitimasjon være fremlagt sammen med signatur fra budgiver.
Vi oppfordrer til å gi bud elektronisk via GI BUD-knappen på eiendommens hjemmeside på Krogsveen.no. Da vil samtlige vilkår bli oppfylt.
Eventuelle forhøyelser eller endringer av budet kan bekreftes pr SMS eller på e-post. Vi oppfordrer alltid til å kontakte megler pr. telefon i tillegg da forsinkelser i SMS og e-post kan forekomme.
For at budene skal kunne bli behandlet og videreformidlet skriftlig til alle involverte parter, må alle bud ha en tilstrekkelig lang akseptfrist, jf. eiendomsmeglingsforskriften § 6-3.
Selger må også skriftlig akseptere budet før aksept kan formidles til budgiver. Akseptfrist bør derfor være på minimum 30 minutter, og budforhøyelser må derfor skje i god tid før fristens utløp.
Bud i forbrukerforhold kan uansett ikke settes med kortere frist enn kl. 12.00 første virkedag etter siste annonserte visning. I tillegg kan ikke budet ha forbehold om at det skal holdes hemmelig ovenfor øvrige interessenter. Megler har iht lov om eiendomsmegling ikke anledning til å videreformidle disse budene, og de vil dermed heller ikke bli journalført.
Etter at eiendommen er solgt vil kjøper og selger få tilsendt budjournal. Øvrige budgivere kan få utlevert kopi av budjournalen i anonymisert form.
Hvitvaskingsreglene
I henhold til lov om hvitvasking og terrorfinansiering har megler plikt til å gjennomføre kontrolltiltak overfor kunder, herunder fullmektiger. Dette innebærer bl.a. å bekrefte kunders og reelle rettighetshaveres identitet på bakgrunn av fremvist gyldig legitimasjon eller på annen godkjent måte, samt å innhente opplysninger om kundeforholdets formål og tilsiktede art.
Dersom slike kundetiltak ikke kan gjennomføres, kan megler ikke etablere kundeforholdet eller utføre transaksjonen.
Hvis kjøper ikke bidrar til gjennomføring av kundekontrollen og dette fører til at transaksjonen blir forsinket eller ikke kan gjennomføres, vil dette ansees som mislighold av avtalen og gi selger rettigheter etter avhendingslova kapittel 5. I tilfeller der selger ikke bidrar til gjennomføring av løpende kundekontroll underveis i oppdraget, er det selger som misligholder sine forpliktelser etter avtalen og gi kjøper rettigheter etter avhendingslovens kapittel 4. Partene er selv ansvarlige for eventuelle kostnader og ansvar dette kan medføre. Eiendomsmegleren eller eiendomsmeglingsforetaket kan ikke holdes ansvarlig for de konsekvenser dette vil kunne få for partene eller andre som har interesser i eiendomshandelen.
Kjøper oppfordres til å innbetale kjøpesummen som ikke kommer fra låneinstitusjon i én samlet innbetaling fra egen konto i norsk bank. Megler har plikt til å melde fra til Økokrim om eiendomshandler som fremstår som mistenkelige. Melding sendes Økokrim uten at partene varsles.
Personopplysningsloven
I henhold til personopplysningsloven gjør vi oppmerksom på at interessenter kan bli registrert for videre oppfølging.
Lovanvendelse
Generelle bestemmelser
Salgsoppgaven er basert på de opplysningene selger har gitt til megler, den bygningssakyndiges tilstandsrapport, samt opplysninger innhentet fra kommunen, Kartverket og andre tilgjengelige kilder. Det er viktig at kjøper setter seg grundig inn i alle salgsdokumentene, herunder salgsoppgave, tilstandsrapport og selgers egenerklæring. Kjøper anses kjent med forhold som er tydelig beskrevet i salgsdokumentene, og slike forhold kan ikke påberopes som mangler. Dette gjelder uavhengig av om kjøper har lest dokumentene. Alle interessenter oppfordres til å undersøke eiendommen nøye, gjerne sammen med fagkyndig før bud inngis. Kjøper som velger å kjøpe usett kan ikke gjøre gjeldende som mangel noe han burde blitt kjent med ved undersøkelsen.
Dersom det er behov for avklaringer, anbefaler vi at interessenter rådfører seg med eiendomsmegler eller egne rådgivere før det legges inn bud.
En bolig som har blitt brukt i en viss tid, har vanligvis blitt utsatt for slitasje og skader kan ha oppstått. Slik bruksslitasje må kjøper regne med, og det kan avdekkes enkelte forhold etter overtakelse som nødvendiggjør utbedringer. Normal slitasje og skader som nødvendiggjør utbedring, er innenfor hva kjøper må forvente og vil ikke utgjøre en mangel.
Kjøper og selgers rettigheter og plikter reguleres av avtalen mellom partene, samt informasjonen som har vært tilgjengelig for kjøperen i forbindelse med handelen. Avtalen utfylles av avhendingsloven, og det gjelder ulike avtalevilkår avhengig av om kjøper er forbrukerkjøper eller ikke. Dette er nærmere beskrevet nedenfor.
På grunn av ulike avtalevilkår kan selger vurdere bud fra en som ikke er forbruker, ulikt fra en forbrukers bud. Dersom kjøper ikke er forbruker, er selger sitt mulige mangelsansvar begrenset fordi eiendommen selges "som den er". Selger kan ikke ta «som den er»- forbehold overfor en forbrukerkjøper. Selv et lavere bud fra en som ikke er forbruker kan foretrekkes fordi begrensningen i mulig mangelsansvar kan ha egenverdi for selger. Selger står fritt til å forkaste eller akseptere ethvert bud, og er for eksempel ikke forpliktet til å akseptere høyeste bud.
Budgiver skal i budskjema avgi egenerklæring om budgiver er forbruker eller næringsdrivende/ person som hovedsakelig handler som ledd i næringsvirksomhet. Budgivere får informasjon dersom andre bud er inngitt av en som ikke er forbruker.
Forbrukerkjøp - definisjon
Med forbrukerkjøp menes kjøp av eiendom når kjøperen er en fysisk person som ikke hovedsakelig handler som ledd i næringsvirksomhet.
Forbruker – avtalevilkår
Eiendommen har en mangel dersom den ikke er i samsvar med kravene som følger av avtalen, eller det foreligger brudd på bestemmelsene i avhendingsloven §§ 3-2 til 3-8. Hvis eiendommen ikke er i samsvar med det kjøperen må kunne forvente ut ifra alder, type og synlig tilstand, kan det være grunnlag for mangelskrav. Det samme gjelder hvis det er holdt tilbake eller gitt uriktige opplysninger om eiendommen. Dette gjelder likevel bare dersom man kan gå ut ifra at det virket inn på avtalen at opplysningen ikke ble gitt eller at mangelskravet ikke blir rettet i tide på en tydelig måte.
Boligen kan ha en mangel etter avhendingsloven § 3-3 andre ledd, dersom det er avvik mellom opplyst og faktisk innvendig areal, forutsatt at avviket er på 2% eller mer og minimum 1 kvm.
Ved beregning av et eventuelt prisavslag eller erstatning må kjøper selv dekke tap/kostnader opptil et beløp på kr 10 000 (egenandel).
Ikke-forbruker (næringsdrivende) – definisjon
Hvis kjøper er en juridisk person, eller en fysisk person som hovedsakelig handler som ledd i næringsvirksomhet, vil kjøpet ikke anses som et forbrukerkjøp.
Ikke-forbruker – avtalevilkår
Eiendommen har en mangel dersom den ikke er i samsvar med kravene som følger av avtalen.
Eiendommen selges «som den er», og selgers ansvar utover det konkret avtalte er da begrenset etter avhendingsloven § 3-9, første ledd andre setning.
Avhendingsloven § 3-3 andre ledd fravikes, og hvorvidt boligens arealsvikt utgjør en mangel vurderes etter avhendingsloven § 3-8.
Informasjon om kjøpers undersøkelsesplikt, herunder oppfordringen om å undersøke eiendommen nøye, gjelder også for kjøpere som ikke anses som forbrukere.
Det forutsettes at hjemmel overføres til kjøper. Hvis kjøper ikke ønsker hjemmelsoverføring av eiendommen, må det tas forbehold om dette i budet.
Meglers vederlag
Meglers vederlag betales av selger og er avtalt til:
Vederlag: 1,25% av salgssummen inkl. eventuell fellesgjeld.
Oppgjør: kr 7.500,-
Markedspakke: kr 15 000
Oppslag eiendomsregister: kr 2.900,-
Megler har i tillegg krav på dekning av følgende utlegg:
Foto - Profesjonell fotograf fra Oh Shots - pr enhet: kr. 4 800,-
Innhenting av offentlig opplysninger Sarpsborg komm. inkl tegn - en gang for alle enheter: kr. 4 071,-
Tinglysing e-sikring - selveier - pr enhet: kr. 540,-
Opplysninger om oppdraget
Oppdragsnummer 67-0088/23
Eiendomsmegler Krogsveen AS, avd. Fredrikstad og Sarpsborg
Dikeveien 14, 1661, ROLVSØY
950 007 613
Oppdragets KR-kode KR67.2388
Dato
Sist oppdatert: 18. desember 2025 kl. 21:15
Dokumenter
Dokumenter
PDF – 239 KB
PDF – 1 MB
PDF – 8 MB
PDF – 312 KB
PDF – 29 KB
PDF – 127 KB
PDF – 392 KB
Område
Legg til steder som er viktige for deg
Visning
Det er ingen planlagte visninger. Meld deg på for å avtale en tid som passer.
Lurer du på noe?
Unngå doble boligrenter
Vi tilbyr gunstig forsikring.
Vurderer du utleie?
Få et tilbud fra Utleie KrogsveenHva koster lånet?
Sjekk estimert lånekostnadVil du varsles om lignende boliger?
Ved å lagre ditt boligsøk hos oss får du beskjed når vi har en bolig som ligner denne, før den legges ut på markedet!

