Nedre Toppenhaug 162
6 590 000 kr
112 m²
3 soverom
Solgt
BÆRUMS VERK
Lyst&pent rekkehus i barnevennlig og rolig område -2 stuer og 3 sov - Garasje m/lader - Nytt tak - Ny peisovn- Markanært
Prisantydning
6 590 000 krOmkostninger
175 790 krTotalpris
6 765 790 kr
Pris
Bruksareal
123 m²BRA-I (internt bruksareal)
112 m²BRA-E (eksternt bruksareal)
11 m²TBA (terrasse-balkongareal)
28 m²
Areal
Etasje
2Byggeår
1985Soverom
3 soveromBad
1 badType
RekkehusEierform
EierseksjonFasiliteter
Garasje/P-plass og Balkong/TerrasseFellesutgifter
3 051 krEnergimerke
Oransje F
Nøkkelinfo
Unngå doble boligrenter
Vi tilbyr gunstig forsikring.
Vurderer du utleie?
Få et tilbud fra Utleie KrogsveenHva koster lånet?
Sjekk estimert lånekostnadBeskrivelse
Kort om eiendommen
Attraktivt og og luftig beliggende rekkehus over to plan i grønne og barnevennlige omgivelser på Bærums Verk. Området er trygt, det er barnehager, flere lekeplasser og skoler i nærområdet og passer ypperlig for barnefamilier.
Boligen inneholder:
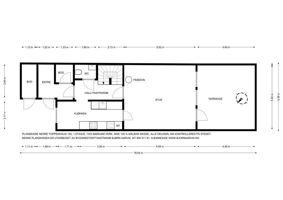
1. etasje 58 kvm: Entré, bod, kjøkken, stue, toalettrom og trapperom
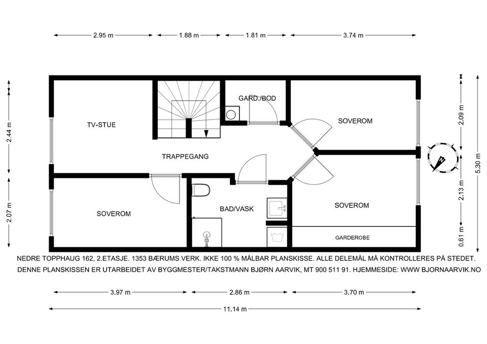
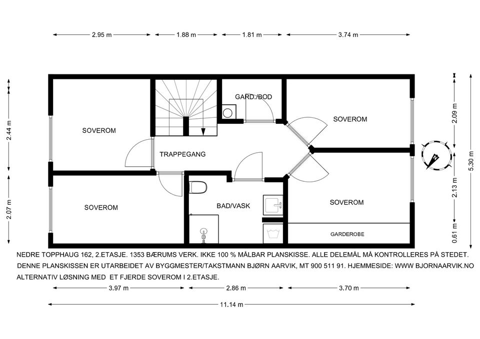
2. etasje 54 kvm: Trapperom / TV-stue, gang, 3 soverom, bad og garderobe / walk-in
Høydepunkter:
Romslig familiebolig med god planløsning
Alle soverom og bad på samme plan
To stuer
Nydelig vestvendt terrasse på 28 kvm med mye sol
Nytt tak i 2023
Garasjeplass med lader
God lagringsplass i flere boder
Barnevennlig og rolig beliggenhet
Gangavstand til barnehage, buss, marka og Bærums Verk
Område
Legg til steder som er viktige for deg
På flyttefot? Tenk kjøp og salg samtidig.
Få din egen rådgiver gjennom hele kjøps- og salgsprosessen. Det starter med en verdivurdering.
Unngå doble boligrenter
Vi tilbyr gunstig forsikring.
Vurderer du utleie?
Få et tilbud fra Utleie KrogsveenHva koster lånet?
Sjekk estimert lånekostnadVil du varsles om lignende boliger?
Ved å lagre ditt boligsøk hos oss får du beskjed når vi har en bolig som ligner denne, før den legges ut på markedet!
På flyttefot? Slik gjør vi det enklere for deg
Skreddersydd flyttepakke
Vi fikser håndverkere, vask, pakking, lagring og transport, og legger ut for utgiftene underveis.
Hjelp med både kjøp og salg
Hos oss har du din egen rådgiver gjennom hele kjøps- og salgsprosessen.
Hjelp til finansiering
Vårt samarbeid med BN Bank sikrer deg rask og løsningsorientert hjelp, til konkurransedyktige betingelser.




