Willy Moes veg 89
3 990 000 kr
120 m²
4 soverom
Solgt

Pen og innholdsrik halvpart tomannsbolig med god beliggenhet | 4 sov | 3 uteplasser | 1 garasjeplass | Flotte omgivelser
Prisantydning
3 990 000 krOmkostninger
120 740 krTotalpris
4 110 740 kr
Pris
Bruksareal
150 m²BRA-I (internt bruksareal)
120 m²BRA-E (eksternt bruksareal)
30 m²TBA (terrasse-balkongareal)
58 m²
Areal
Byggeår
2006Soverom
4 soveromBad
1 badType
Halvpart vertikaldelt boligEierform
EierseksjonFasiliteter
Garasje/P-plass og Balkong/TerrasseÅrlig velavgift
300 krEnergimerke
Rød D
Nøkkelinfo
Unngå doble boligrenter
Vi tilbyr gunstig forsikring.
Vurderer du utleie?
Få et tilbud fra Utleie KrogsveenHva koster lånet?
Sjekk estimert lånekostnadDette liker selger best ved boligen
Kort gangavstand til butikk, skole, barnehager, buss.
Beskrivelse
Kort om eiendommen
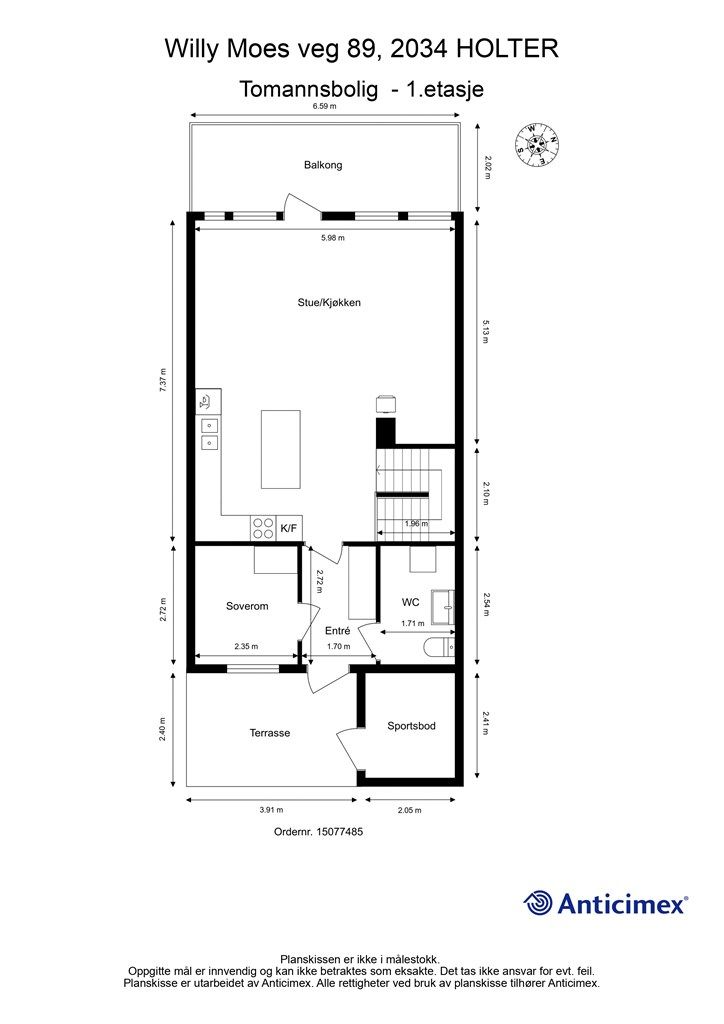
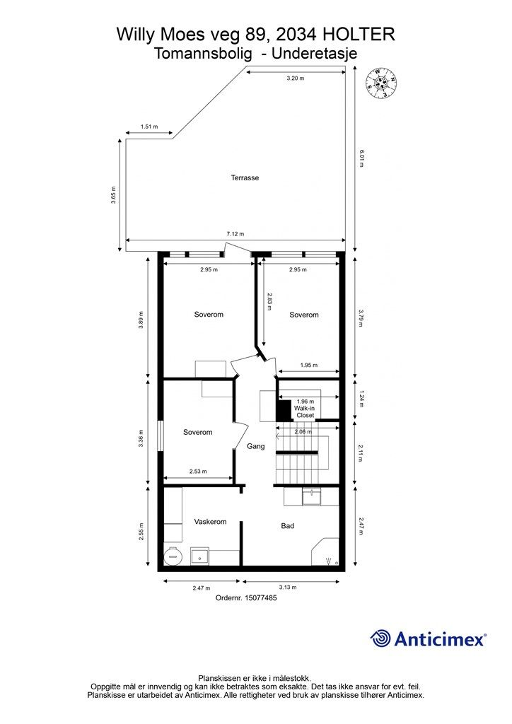
Pen halvpart av tomannsbolig som går over to plan. Det er enkel adkomst via hyggelig overbygget inngangsparti, og boligen består av 1.etasje med entré, soverom, wc-rom og stue/kjøkken. Underetasjen inneholder gang, tre soverom, vaskerom, bad og walk in closet. Det er utgang fra stue/kjøkken til balkong, utgang fra soverom i underetasje til flott terrasseområde, og utgang fra entré til hyggelig terrasse. Boligen har i tillegg sportsbod.
Eiendommen ligger i et etablert boligområde på Eltonåsen i Holter. Boligen har god intern beliggenhet, og området er et populært sted - barnevennlig boområde med kort vei til barnehager og barneskole. Det er kort vei til Coop Extra, Kiwi, gårdsbutikk, frisør og bussholdeplass med offentlig kommunikasjon inn til hovedstaden og Gardermoen.
Område
Legg til steder som er viktige for deg
På flyttefot? Tenk kjøp og salg samtidig.
Få din egen rådgiver gjennom hele kjøps- og salgsprosessen. Det starter med en verdivurdering.
Unngå doble boligrenter
Vi tilbyr gunstig forsikring.
Vurderer du utleie?
Få et tilbud fra Utleie KrogsveenHva koster lånet?
Sjekk estimert lånekostnadVil du varsles om lignende boliger?
Ved å lagre ditt boligsøk hos oss får du beskjed når vi har en bolig som ligner denne, før den legges ut på markedet!

