Lerpeveien 405
5 490 000 kr
199 m²
5 soverom
Komplett salgsoppgave

Tuft/Stillerud
Pen, innholdsrik og velholdt enebolig med 3 etasjer. Vannbåren gulvvarme. Veranda og terrasse. Gårdsplass m/el-billader.
Prisantydning
5 490 000 krOmkostninger
158 240 krTotalpris
5 648 240 kr
Pris
Bruksareal
199 m²BRA-I (internt bruksareal)
199 m²TBA (terrasse-balkongareal)
84 m²
Areal
Etasje
3Byggeår
1989Soverom
5 soveromBad
2 badTomteareal
597 m² (eiet)Type
Enebolig - FrittliggendeEierform
EietFasiliteter
Balkong/TerrasseEnergimerke
Oransje E
Nøkkelinfo
Unngå doble boligrenter
Vi tilbyr gunstig forsikring.
Vurderer du utleie?
Få et tilbud fra Utleie KrogsveenHva koster lånet?
Sjekk estimert lånekostnadBeskrivelse
Kort om eiendommen
Innhold og byggemåte
Innhold og byggemåte
Eiendommen
Lerpeveien 405, 3074 SANDE I VESTFOLD
Kommunenummer 3903, gårdsnummer 378, bruksnummer 51
Innhold
BRA-i (internt bruksareal)
Kjeller:
75 kvm: Gang, bad, kjellerstue, kontor, soverom, 2 boder og teknisk rom.
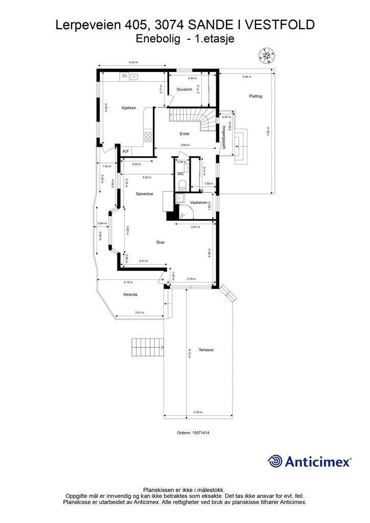
1. etasje:
83 kvm: Stue, spisestue, kjøkken, vaskerom, wc-rom, soverom og entré.
2. etasje:
41 kvm: Loftstue, 2 soverom og bad.
TBA (terrasse- og balkongareal)
1. etasje:
84 kvm: Inngangsparti/platting, veranda og terrasse.
2. etasjen/loftsetasjen har et totalt gulvareal (GUA) på 62 kvm, men grunnet skråtak/lav takhøyde er kun 41 kvm av arealet måleverdig som bruksareal. De delene av arealene som har lav himlingshøyde (ALH) utgjør 21 kvm.
De oppgitte arealer er hentet fra rapport utført av Sverre Alexander Enersen. Arealene er beregnet og rom er definert etter dagens faktiske bruk, uavhengig av hva som er godkjent av bygningsmyndighetene.
Byggemåte
Bygningen er iht. tilstandsrapport, oppført på støpt gulv mot grunn og grunnmur i betong/murkonstruksjoner. Bærende konstruksjoner og etasjeskiller i trekonstruksjoner. Yttervegger med stående og liggende trekledning (sist overflatebehandlet i 2024). Tak med halvvalmet takform tekket med takstein. Boligen har profilert ytterdør i tre med kodelås og 2-lags glassfelt fra 2013. Verandadør i tre med 2-lags glassfelt fra byggeår. Vinduer med karmer av tre og 3-lags glass fra byggeår. Vinduer med karmer av tre, utvendig beslått med metall og 3-lags glass fra 2013 (2.etasje). Takvinduer med karmer av plast og 3-lags glass fra ukjent årstall. Les forøvrig mer om byggemåte og den tekniske tilstanden i rapporten.
Tilstandsrapporten og selgers egenerklæring er vedlagt salgsoppgaven. Interessenter må sette seg inn i dokumentene før bud inngis.
Standard
Fra gårdsplassen er det trappeadkomst til boligens overbygde inngangsparti i 1. etasje. Sydvestvendt platting på ca. 27 kvm med utvendig belysning og strømuttak, i tilknytning til inngangspartiet.
1. etasje
Stue/spisestue: Vinkelstue med sofaområde og spiseplass. Godt med vindusflater som gir mye lysinnslipp. Flott gasspeisinnsats. Luft-til-luft varmepumpe. Vannbåren gulvvarme. 3-stavs parkett på gulv, malt tapet på vegger og plater i himling. Utgang til delvis overbygget nordvestvendt veranda på ca. 22 kvm med markise, utvendig belysning og strømuttak. Videre er det trappeadkomst ned til en tilstøtende terrasse på ca. 35 kvm, langs vestsiden av boligen. Fra denne terrassen er det trappeadkomst til hageområder.
Kjøkken: Profilert kjøkkeninnredning i seksjoner. Over- og underskap samt vitrineskap og høyskap i hvit utførelse. Flislagte felt på vegg over laminerte benkeplater. Lysarmaturer under overskap. Videre er kjøkkenet utstyrt med nedfelt dobbeloppvaskkum av kompositt, ventilator og komfyrvakt (2017). Opplegg for oppvaskmaskin, komfyr og frittstående kjøleskap. Mulighet for spiseplass ved vinduene. Vannbåren gulvvarme. Laminat på gulv, tapet samt brystningspanel på vegger og plater i himling.
Vaskerom: Rommet ble oppgradert i 2020 med nye overflater og innredning. To skap i hvit og glatt utførelse. Vegghengt utslagsvask. Speil over vask. Dusjkabinett. Opplegg for vaskemaskin og tørketrommel. Vannbåren gulvvarme. Belegg på gulv, våtromsplater på vegger og plater i himling.
Wc-rom: Rommet ble oppgradert i 2019. Heldekkende servant over servantskap i hvit og glatt utførelse. Speil, hylle og lysarmatur over servant. Gulvstående toalett. Downlights i tak og vannbåren gulvvarme. 3-stavs parkett på gulv, tapet på vegger og malt himling.
Soverom: Plassbygget skyvedørsgarderobe i hvit og glatt utførelse. Vannbåren gulvvarme. 3-stavs parkett på gulv, malt tapet på vegger og plater i himling.
Entré: Trappegang til 2. etasje og kjeller. Vannbåren gulvvarme. 3-stavs parkett på gulv, tapet på vegger og plater i himling. Tilgang til mellomgang med plassbygget skyvedørsgarderobe som har speilfronter.
2. etasje
Loftstue: Loftstue med sofaområde og kontorplass. Trappegang til 1. etasje. 3-stavs parkett på gulv, malt panel på vegger og malt panel i himling. Tilgang til kneloft.
Soverom: Plassbygget skyvedørsgarderobe i hvit og glatt utførelse samt speilfronter. 3-stavs på gulv, malt tapet på vegger og malt himling. Tilgang til kneloft.
Soverom: 3-stavs parkett på gulv, tapet på vegger og malt himling. Tilgang til kneloft.
Bad: Pent og delikat bad fra 2019. Heldekkende servant over servantskap i glatt utførelse. Speilskap og lysarmatur over servant. Videre er badet utstyrt med gulvstående toalett og dusj i hjørne med dusjdører-/vegger av glass samt veggmontert dusjarmatur. Downlights i tak og varmekabler i gulv. Fliser på gulv, fliser på vegger og panel i himling.
Kjeller
Gang: Trappegang til 1. etasje. Vannbåren gulvvarme. 3-stavs parkett på gulv, malte vegger og plater i himling. Tilgang til bod.
Bad: Badet ble betydelig oppgradert i 2019. Toppmontert servant på benkeplate av glass over servantskap i glatt utførelse samt frostet glass. Tilsvarende utførelse på høyskap. Speil, hylle og lysarmatur over servant. Innfliset speil i vegg. Videre er badet utstyrt med vegghengt toalett, dusjkabinett og hjørneboblebadekar med hånddusj. Downlights i tak og vannbåren gulvvarme. Fliser på gulv, fliser på vegger og panel i himling.
Kjellerstue: Kjellerstue med sofaområde. Vannbåren gulvvarme. Fliser på gulv, malt panel på vegger og panel i himling.
Kontor: Vannbåren gulvvarme. Fliser på gulv, panel samt malte vegger og panel i himling. Tilgang til bod, videre adkomst til teknisk rom.
Soverom: Åpen garderobeløsning med hyller, skuffer og klesskinne i hvit samt glatt utførelse. Vannbåren gulvvarme. 3-stavs parkett på gulv, tapet samt malte vegger og plater i himling.
Generelt om boligen: Boligen ble innvendig malt i 2025 iflg. selger. Vannbåren gulvvarme i alle rom i 1. etasje og kjeller (unntatt boder). Ca. 300 liters varmtvannsbereder, plassert i teknisk rom. Varmekolbe til vannbåren gulvvarme er plassert i teknisk rom. Avtrekksvifte er plassert på bad (2. etasje), motor ble skiftet i 2025. Radonpumpe fra 2017, plassert i kjellerbod. Sikringsskap med automatsikringer, plassert i kjellerbod. Sikringsskap med automatsikringer, plasser i teknisk rom. Det har blitt utført el-tilsyn i boligen i 2022, registrerte avvik ble utbedret og lukket i 2022.
Selger har fått utarbeidet en tilstandsrapport for eiendommen, dvs. en teknisk gjennomgang av boligen hvor eventuelle avvik, risiko for kjøper og prisoverslag for hva som bør gjøres av oppgradering, er skissert. Se særskilt TGIU (tilstandsgrad ikke undersøkt), samt TG2 og TG3 som viser hva som er avvik fra boligens normale slitasje, alder og type, eller som bør/må utbedres. Rapporten og selgers egenerklæring er en del av salgsoppgaven og må leses nøye før bud inngis. Kjøper overtar ansvaret for de opplysninger som fremkommer av salgsdokumentasjonen, og kan ikke gjøre gjeldende som mangel noe som burde vært kjent eller som ikke kan anses å ha betydning for avtalen.
I rapporten fremkommer det som takstmannen mener kjøper må være særskilt oppmerksom på, dette gjelder blant annet (se utfyllende tekst i rapporten):
Følgende kontrollpunkter/forhold har blitt tildelt TG2:
- Bad (2. etasje): Tilluftsspalte er mindre enn anbefalt, glassdør til dusjsone har kontakt med gulvet når den åpnes/lukkes og fordelerskap for rør-i-rør system er plassert i dusjsone (uheldig plassering).
- Bad (kjeller): For liten tilluftsspalte, manglende drenering fra sisterne, uoversiktlig bruk av slukmansjett samt tettesjikt, usikker restlevetid på avløpsrør/sluk og ikke fremlagt dokumentasjon på faglig utførelse.
- Vaskerom (1. etasje): Våtromsplater er ikke montert med tilstrekkelig fugemasse i hjørner og ikke tilfredsstillende tettedetaljer ved rørgjennomføring samt inspeksjonsluke - vegg vil ikke tåle direkte/høy fuktpåkjenning og lekkasjesikkerheten kan ikke verifiseres.
- Kjøkken: Usikker restlevetid på vann- og avløpsrør.
- Loft (innredet/2. etasje): Stedvis ikke tilfredsstillende ventilasjon (ikke registrert ventiler på soverommene), deler av konstruksjonen er lukket (ukjent konstruksjonsoppbygging) og deler av isolasjon mellom taksperrer/takstoler i kneloft har falt ned.
- Tekniske anlegg, VVS anlegg: Usikker restlevetid på deler av vannrør, usikker tilstand på koblinger bak varmekolbe, anlegg til vannbåren varme pga. alder, usikker restlevetid på stoppekran og usikker restlevetid på avløpsrør.
- Yttervegger inkl. fasader og konstruksjon: Manglende musesperre bak kledning.
- Dører og vinduer: Vinduer pga. alder, rester etter teip på flere vinduer, preg av noe alder/slitasje på verandadør og verandadør har kontakt med terskel/karm (stue).
- Yttertak: Taktekking pga. alder og manglende snøfangerutstyr.
- Veranda (1. etasje): For lav rekkverkshøyde iht. dagens krav.
- Terrasser/platting på terreng: Noe skjevheter samt svai i konstruksjonen og fundamentene bærer preg av ikke faglig god håndverksmessig utførelse.
- Drenering: Deler av terrengfall kan ikke undersøkes på tilstrekkelig måte pga. terrasse (ukjent fallforhold under terrasse), stedvis lite terrengfall vekk fra grunnmur og drenering pga. alder.
- Stikkledninger og tanker: Vann- og avløpsledninger pga. alder.
Følgende kontrollpunkter/forhold har blitt tildelt TG3:
Det er ingen punkter som har blitt tildelt TG3.
Følgende kontrollpunkter/forhold har blitt tildelt TGIU (tilstandsgrad ikke undersøkt):
- Bad (2. etasje), bad (kjeller): Ikke utført demontering av downlights eller besiktiget bakenforliggende konstruksjon.
- Tekniske anlegg, VVS anlegg: Gassinstallasjon er ikke kontrollert.
- Terrasser/platting på terreng (1. etasje): Fundamentene var ikke tilgjengelig for undersøkelser.
- Grunnmur, fundamenter: Fundamenter er naturgitt skjult og byggegrunnens beskaffenhet er ukjent.
Det anbefales ytterligere undersøkelser av disse punktene.
Se vedlagt tilstandsrapport for supplerende informasjon vedrørende boligens tilstand.
Løsøre og tilbehør
Hvitevarer på kjøkkenet medfølger ikke i handelen.
Videre vises det til liste fra Norges Eiendomsmeglerforbund angående løsøre og tilbehør. Produkter og installasjoner som medfølger overdras uten noen form for garantier, utover eventuell gjenværende leverandørgaranti.
Oppvarming
Gasspeis og luft-til-luft varmepumpe i stue (1. etasje). Vannbåren gulvvarme i alle rom i 1. etasje og kjeller (unntatt boder). Varmekabler i gulv på bad (2. etasje). Videre er boligen basert på elektrisk oppvarming ved evt. panelovner.
Det har blitt foretatt en kontroll av pipe og ildsted i 2021, utført av Vestfold Interkommunale Brannvesen IKS og alt er funnet i orden.
Dersom det ikke er vegg- eller fastmonterte varmekilder i beboelsesrom ved visning, følger dette heller ikke med.
Ferdigattest/brukstillatelse
Holmestrand kommune opplyser om at det ikke foreligger ferdigattest på eiendommen, men midlertidig brukstillatelse ble gitt for oppføring av enebolig datert 12.09.1989. I tillegg er det tilhørende godkjente byggetegninger datert 05.05.1987.
Det gjøres oppmerksom at det ikke lenger utstedes ferdigattest på tiltak det er søkt om før 1998 jf. plan- og bygningsloven §21-10. Kommunen vil ikke kreve ferdigattest for disse tiltakene og vil avvise eventuelle søknader. Bestemmelsen innebærer ikke at tiltak med manglende søknad blir lovlige, men at man ikke trenger å avslutte gamle byggesaker. Normalt sett kreves ferdigattest for alle søknadspliktige tiltak som gjøres etter plan - og bygningsloven.
Holmestrand kommune har utstedt tillatelse til tiltak uten ansvarsrett datert 04.07.2025. Tillatelsen innebærer bruksendring i underetasje/kjeller, 1. etasje samt loft og fasadeendring. Det er ingen avvik mellom de søkte tiltakene og utført bruksendring samt fasadeendring. Søknad om ferdigattest for tiltakene ble innsendt i første halvdel av juli 2025 og forventes å foreligge før overtakelse. Loven gir kommunen 3 ukers saksbehandlingstid for utstedelse av ferdigattest, før bygget kan tas i bruk. Selger bærer kostnaden for utstedelse av ferdigattesten.
Kjøper overtar eiendommen slik den framstår på visning.
Tinglyste heftelser og rettigheter
Eiendommen overdras fri for pengeheftelser.
Dagboknummer: 7465
Tinglysningsdato: 09.12.1988
Servitutten omhandler: Felles veirett, skal være åpen for fri ferdsel inn til de enkelte eiendommene. Snørydding og vedlikehold av veien deles likt på de 4 eiendommene. Eventuelle felles kabel, vann og kloakk som de 4 står ansvarlig for, skal vedlikeholds- og reparasjonskostnadene deles på 4. Avfallsdunker for gnr. 378/bnr. 53 og 26 skal stå på gnr. 378/bnr. 53 med videre bestemmelser om plassering. Avfallsdunker for gnr. 378/bnr. 52 og 51 skal stå på gnr. 378/bnr. 51 med videre bestemmelser om plassering. Stoppekran for gnr. 378/bnr. 26 står på gnr. 378/bnr. 78 og 53, eier av stoppekran skal ha tilgang til denne. Rettighetshaver er gnr. 378/bnr. 26, 52 og 53. Rettigheten hefter i gnr. 378/bnr. 26, 52 og 53.
Servitutten vil følge eiendommen. Kjøpers bank vil få pant etter ovennevnte heftelser og servitutter som ikke skal slettes ved overdragelse.
Eventuell adgang til utleie
Eiendommen har ikke separat utleieenhet. Det vil normalt være anledning til utleie av hele eiendommen eller enkeltrom, såfremt utleiearealet er bygningsmessig godkjent for varig opphold og har forsvarlige radonnivåer.
Det ble utført radonmåling i 2016-2017 og verdiene som ble målt var over angitt tiltaksverdi. Ifbm. dette ble det gjennomført radonreduserende tiltak i 2017 (installert radonpumpe i kjelleren). Videre ble det foretatt en ny radonmåling (etterkontroll) i 2017-2017, verdiene som ble målt var innenfor angitt tiltaksverdi.
Radonnivået i et bygg kan endre seg over tid. DSA (Direktoratet for strålevern og atomsikkerhet) anbefaler at det utføres jevnlig radonmåling ved større ombygginger samt bruksendringer, tidligere utført tiltak mot radon (ca. hvert 5. år), bygninger under tiltaksgrense ved tidligere utført måling (ca. hvert 10 år) og boliger som ligger i et kjent radonutsatt område.
Diverse
Vi er opptatt av verdiskapning, og har knyttet til oss samarbeidspartnere som skal sikre våre kunder de beste produkter og tjenester;
• Gjensidige leverer boligselgerforsikring og tilbyr bygningsforsikring
• Boligkjøperforsikring leveres av Hiscox og med Sedgwick som skadebehandler, og er formidlet gjennom Gjensidige.
• BN bank tilbyr finansieringsløsninger
• Vår avdeling Krogsveen Pluss tilbyr flyttetjenester som utvask, visningsvask, lager, tømming og transport av flyttelass, i tillegg til å formidle kontakt med Flip for overflateoppussing.
• I forbindelse med overtagelse av eiendommen tilbyr Overo avtale om strøm, alarm og bredbånd.
• Krogsveen er, sammen med øvrige bransjeaktører, medeier i den digitale annonseringsplattformen Hjem.
Energimerking
Komplett energiattest inkludert oppvarmingskarakter fås ved henvendelse til megler eller lastes ned fra www.krogsveen.no.
Beliggenhet og tomteforhold
Beliggenhet og tomteforhold
Beliggenhet
Beliggende i et attraktivt og meget rolig boligområde. Svært barnevennlig boligfelt med flere barnefamilier i nærmiljøet. Bredt utvalg av servicetilbud i Drammen sentrum og Sande sentrum, ca. 10-15 minutters kjøretur. Kort kjøreavstand til nærmeste dagligvarebutikk (Kiwi).
Fotballplass i nærområdet, innen få minutters gange. Nordre Sande IL med eget idrettsanlegg. Kort vei til marka og flott turterreng, sommer og vinter. Tuftdammen er en liten andedam, rett i nærheten av boligen. Det er et populært sted, spesielt om sommeren, for barnefamilier som kommer hit for å mate de mange endene som har dette som tilholdssted. Vinterstid brukes dammen ofte som skøytebane. Kort vei til flotte golfbaner se; www.sandegk.no og www.drammengk.no.
Kort gangavstand til bussholdeplass med bussruter mot Drammen og retning Sande, se www.brakar.no/www.vkt.no for rutetider. Ca. 10 minutters kjøreavstand til Drammen togstasjon med gode togforbindelser mot Kongsberg, Oslo og Sandefjord, tidsmessig tar det ca. 30 minutter til Oslo, se www.vy.no for avganger. Ca. 15 minutters kjøring til Sande togstasjon. Enkel adkomst til E-18.
Adkomst
Det vil bli skiltet med Krogsveen visningsskilt ved fellesvisninger. Se kart i nettannonse eller Google Maps for nærmere veibeskrivelse. Velkommen til visning!
Barnehager, skoler og fritid
Barnehager: Velle Kjeldås barnehage (3 km), Skoger barnehage (3,8 km), Espira Kniveåsen barnehage (4,4 km).
Skoler: Kjeldås barneskole (3,1 km), videre går elvene på ungdomsskole på Klokkerjordet (barne- og) ungdomsskole (10,6 km).
Det ligger flere videregående skoler i Drammen, Holmestrand og Sande.
Dersom skole- og barnehagetilbud er av betydning for kjøpet, ber vi om at det rettes en særskilt henvendelse til kommunen for oppdatert informasjon.
Beskrivelse av tomt
Eiertomt på 597 kvm. Svakt skrånende tomt som er pent opparbeidet med gjerde, gressplen, barkebed, blomsterbed, trær, prydbusker og diverse beplantninger. Gruset innkjørsel og gårdsplass.
Parkering
Godt med biloppstillingsplasser på egen gruset gårdsplass.
Montert Salto el-billader (3,6 kw) i 2018.
Vei, vann og avløp
Eiendommen har adkomst via privat vei med felles vedlikeholdsansvar.
Eiendommen er tilknyttet kommunalt avløp og privat vannverk (Tuft og omegn vannforsyning SA). Eier er selv ansvarlig for private stikkledninger til boligen.
Regulerings-og arealplaner
Eiendommen er regulert til boligformål, i henhold til reguleringsplan for Tuft datert 30.11.1983. Videre er eiendommen avsatt til boligbebyggelse ved kommuneplanen datert 03.03.2023. Utsnitt av planer med tilhørende bestemmelser kan fås ved henvendelse til megler.
Økonomi
Økonomi
Kommunale utgifter
Eiendommen er tilknyttet et privat vannverk, Tuft og Omegn Vannforsyning SA. Selger opplyser om en kostnad på ca. kr 3.000-4.000,- pr. år, kostnaden vil variere etter forbruk.
Kommunale avgifter (avløp): kr 11.243,- pr. år (4 terminer), kommunalt standardgebyr for eiendommen i 2025.
Renovasjonskostnader: kr 3.612,- pr. år (4 terminer), kommunalt standardgebyr for eiendommen i 2025.
Branntilsyn, feiing: kr 587,- pr. år (4 terminer), kommunalt standardgebyr for eiendommen i 2025.
Det må påregnes kostnader til strøm og nettleie, dette vil variere avhengig av strøm-/nettselskap. Nåværende eier har et strømforbruk som tilsvarer ca. 30.000 kWh pr. år.
Boligen har en årlig forsikringspremie via Fremtind på ca. kr 10.000,- pr. år.
Boligen er tilknyttet Viken Fiber Altibox som leverandør av tv/internett og har kostet ca. kr 1.339,- pr. mnd avhengig av kanalvalg.
Nåværende eier har installert alarm. Denne blir sagt opp og kjøper kan selv velge om alarm er ønskelig.
Det må påregnes kostnader til innboforsikring.
Ovenstående er basert på nåværende eier/husstands senere års forbruk/utgifter. Dette vil variere avhengig av antall beboere, ønsket innetemperatur, egne fordelsavtaler, kanalvalg, hastighet på bredbånd m.m.
Formuesverdi
Formuesverdi for 2023 var kr 1 534 867,- ifølge skatteetaten. Beløpet forutsetter at eier bor fast i boligen (primærbolig).
Ved eventuell øvrig bruk av eiendommen (f.eks. fritidsbolig, pendlerbolig, utleieobjekt) var formuesverdien for 2023 kr 6 139 468,-.
Formuesverdien justeres normalt årlig. Se skatteetaten.no for mer informasjon om fastsettelse av formuesverdien.
Eiendomsskatt
Eiendomsskatten er kr 9.891,- pr år, kommunalt standardgebyr for eiendommen i 2025.
Omkostninger
5 490 000,00 Prisantydning
Omkostninger
137 250,00 Dokumentavgift til staten (2,5% av kjøpesum)
19 900,00 Gjensidige Boligkjøperpakke (valgfri)
545,00 Tinglysing panterettsdokument
545,00 Tinglysing skjøte
--------------------------------------------------------
158 240,00 Omkostninger totalt
--------------------------------------------------------
5 648 240,00 Totalpris inkl. omkostninger
--------------------------------------------------------
Totalpris inkl. omkostninger forutsetter kjøp til prisantydning.
Det tas forbehold om endringer i avgifter og gebyrer.
Tilbud om lånefinansiering
Megler formidler gjerne kontakt med rådgiver hos vår samarbeidspartner BN Bank. De har konkurransedyktige betingelser samt rask og løsningsorientert behandling av din lånesøknad. Krogsveen mottar et honorar for denne formidlingen.
Betalingsbetingelser
Kjøpesum inkludert omkostninger, samt pantedokument tilknyttet eventuelt lån, skal være disponibelt hos megler 2 virkedager før overtagelsen.
Annen viktig informasjon
Annen viktig informasjon
Eier
Sol Vestad og Kristian Hem Fredriksen
Overtakelse
Etter nærmere avtale.
Boligselgerforsikring
Selger har i forbindelse med salget tegnet boligselgerforsikring levert av Gjensidige.
Boligselgerforsikringen dekker selgers ansvar etter avhendingsloven begrenset oppad til kr 14 millioner. Dersom kjøper oppdager forhold ved eiendommen som hen mener utgjør en mangel ved eiendommen, vil Gjensidige behandle reklamasjonen på vegne av selger. Forsikringsvilkår kan fås ved henvendelse til megler.
Vedlagt salgsoppgaven følger selgers egenerklæringsskjema og tilstandsrapport. Interessenter må sette seg inn i dokumentene før bud inngis.
Boligkjøperforsikring
Innen kontraktsmøtet må kjøper ta stilling til om det ønskes å bestille Boligkjøperpakken gjennom Gjensidige. I denne gunstige pakken er boligen ferdig forsikret og inkluderer rettshjelpsforsikring, også kalt Boligkjøperforsikring. Rettshjelpsforsikring gir trygghet og tilgang på profesjonell juridisk hjelp dersom det oppdages uventede feil eller mangler det første året etter overtagelse. Forsikringsselskapet behandler i så fall ethvert mangelskrav kjøper måtte ha overfor selger.
Boligkjøperpakken inkluderer bygningsforsikring for hus og hytte, innboforsikring, flytteforsikring og dobbel rentedekning - i situasjoner hvor kjøper ikke får solgt nåværende primærbolig.
Kjøper mottar ingen særskilt faktura for Boligkjøperpakken da kostnaden det første året legges til kjøpesummen for boligen. Det gjøres oppmerksom på Krogsveen mottar et honorar for denne formidlingen.
Produktark for Boligkjøperpakken ligger vedlagt i salgsoppgaven.
Dersom ikke boligkjøperpakke ønskes kan kun rettshjelpsforsikring, også kalt boligkjøperforsikring, tegnes særskilt via megler. Rettshjelpsforsikringen varer i 5 år fra overtagelse og leveres gjennom Gjensidige. Ta kontakt med megler for ytterligere informasjon.
Selskap og privatpersoner som driver med kjøp/salg/utvikling som ledd i egen næringsvirksomhet kan ikke tegne boligkjøperpakke eller rettshjelpsforsikring.
Budgivning
Forbrukerinformasjon om budgivning er vedlagt denne salgsoppgaven og er også på vår hjemmeside Krogsveen.no. Alle bud og budforhøyelser må inngis skriftlig. I tillegg må legitimasjon være fremlagt sammen med signatur fra budgiver.
Vi oppfordrer til å gi bud elektronisk via GI BUD-knappen på eiendommens hjemmeside på Krogsveen.no. Da vil samtlige vilkår bli oppfylt.
Eventuelle forhøyelser eller endringer av budet kan bekreftes pr SMS eller på e-post. Vi oppfordrer alltid til å kontakte megler pr. telefon i tillegg da forsinkelser i SMS og e-post kan forekomme.
For at budene skal kunne bli behandlet og videreformidlet skriftlig til alle involverte parter, må alle bud ha en tilstrekkelig lang akseptfrist, jf. eiendomsmeglingsforskriften § 6-3.
Selger må også skriftlig akseptere budet før aksept kan formidles til budgiver. Akseptfrist bør derfor være på minimum 30 minutter, og budforhøyelser må derfor skje i god tid før fristens utløp.
Bud i forbrukerforhold kan uansett ikke settes med kortere frist enn kl. 12.00 første virkedag etter siste annonserte visning. I tillegg kan ikke budet ha forbehold om at det skal holdes hemmelig ovenfor øvrige interessenter. Megler har iht lov om eiendomsmegling ikke anledning til å videreformidle disse budene, og de vil dermed heller ikke bli journalført.
Etter at eiendommen er solgt vil kjøper og selger få tilsendt budjournal. Øvrige budgivere kan få utlevert kopi av budjournalen i anonymisert form.
Hvitvaskingsreglene
I henhold til lov om hvitvasking og terrorfinansiering har megler plikt til å gjennomføre kontrolltiltak overfor kunder, herunder fullmektiger. Dette innebærer bl.a. å bekrefte kunders og reelle rettighetshaveres identitet på bakgrunn av fremvist gyldig legitimasjon eller på annen godkjent måte, samt å innhente opplysninger om kundeforholdets formål og tilsiktede art.
Dersom slike kundetiltak ikke kan gjennomføres, kan megler ikke etablere kundeforholdet eller utføre transaksjonen.
Hvis kjøper ikke bidrar til gjennomføring av kundekontrollen og dette fører til at transaksjonen blir forsinket eller ikke kan gjennomføres, vil dette ansees som mislighold av avtalen og gi selger rettigheter etter avhendingslova kapittel 5. I tilfeller der selger ikke bidrar til gjennomføring av løpende kundekontroll underveis i oppdraget, er det selger som misligholder sine forpliktelser etter avtalen og gi kjøper rettigheter etter avhendingslovens kapittel 4. Partene er selv ansvarlige for eventuelle kostnader og ansvar dette kan medføre. Eiendomsmegleren eller eiendomsmeglingsforetaket kan ikke holdes ansvarlig for de konsekvenser dette vil kunne få for partene eller andre som har interesser i eiendomshandelen.
Kjøper oppfordres til å innbetale kjøpesummen som ikke kommer fra låneinstitusjon i én samlet innbetaling fra egen konto i norsk bank. Megler har plikt til å melde fra til Økokrim om eiendomshandler som fremstår som mistenkelige. Melding sendes Økokrim uten at partene varsles.
Personopplysningsloven
I henhold til personopplysningsloven gjør vi oppmerksom på at interessenter kan bli registrert for videre oppfølging.
Lovanvendelse
Generelle bestemmelser
Salgsoppgaven er basert på de opplysningene selger har gitt til megler, den bygningssakyndiges tilstandsrapport, samt opplysninger innhentet fra kommunen, Kartverket og andre tilgjengelige kilder. Det er viktig at kjøper setter seg grundig inn i alle salgsdokumentene, herunder salgsoppgave, tilstandsrapport og selgers egenerklæring. Kjøper anses kjent med forhold som er tydelig beskrevet i salgsdokumentene, og slike forhold kan ikke påberopes som mangler. Dette gjelder uavhengig av om kjøper har lest dokumentene. Alle interessenter oppfordres til å undersøke eiendommen nøye, gjerne sammen med fagkyndig før bud inngis. Kjøper som velger å kjøpe usett kan ikke gjøre gjeldende som mangel noe han burde blitt kjent med ved undersøkelsen.
Dersom det er behov for avklaringer, anbefaler vi at interessenter rådfører seg med eiendomsmegler eller egne rådgivere før det legges inn bud.
En bolig som har blitt brukt i en viss tid, har vanligvis blitt utsatt for slitasje og skader kan ha oppstått. Slik bruksslitasje må kjøper regne med, og det kan avdekkes enkelte forhold etter overtakelse som nødvendiggjør utbedringer. Normal slitasje og skader som nødvendiggjør utbedring, er innenfor hva kjøper må forvente og vil ikke utgjøre en mangel.
Kjøper og selgers rettigheter og plikter reguleres av avtalen mellom partene, samt informasjonen som har vært tilgjengelig for kjøperen i forbindelse med handelen. Avtalen utfylles av avhendingsloven, og det gjelder ulike avtalevilkår avhengig av om kjøper er forbrukerkjøper eller ikke. Dette er nærmere beskrevet nedenfor.
På grunn av ulike avtalevilkår kan selger vurdere bud fra en som ikke er forbruker, ulikt fra en forbrukers bud. Dersom kjøper ikke er forbruker, er selger sitt mulige mangelsansvar begrenset fordi eiendommen selges "som den er". Selger kan ikke ta «som den er»- forbehold overfor en forbrukerkjøper. Selv et lavere bud fra en som ikke er forbruker kan foretrekkes fordi begrensningen i mulig mangelsansvar kan ha egenverdi for selger. Selger står fritt til å forkaste eller akseptere ethvert bud, og er for eksempel ikke forpliktet til å akseptere høyeste bud.
Budgiver skal i budskjema avgi egenerklæring om budgiver er forbruker eller næringsdrivende/ person som hovedsakelig handler som ledd i næringsvirksomhet. Budgivere får informasjon dersom andre bud er inngitt av en som ikke er forbruker.
Forbrukerkjøp - definisjon
Med forbrukerkjøp menes kjøp av eiendom når kjøperen er en fysisk person som ikke hovedsakelig handler som ledd i næringsvirksomhet.
Forbruker – avtalevilkår
Eiendommen har en mangel dersom den ikke er i samsvar med kravene som følger av avtalen, eller det foreligger brudd på bestemmelsene i avhendingsloven §§ 3-2 til 3-8. Hvis eiendommen ikke er i samsvar med det kjøperen må kunne forvente ut ifra alder, type og synlig tilstand, kan det være grunnlag for mangelskrav. Det samme gjelder hvis det er holdt tilbake eller gitt uriktige opplysninger om eiendommen. Dette gjelder likevel bare dersom man kan gå ut ifra at det virket inn på avtalen at opplysningen ikke ble gitt eller at mangelskravet ikke blir rettet i tide på en tydelig måte.
Boligen kan ha en mangel etter avhendingsloven § 3-3 andre ledd, dersom det er avvik mellom opplyst og faktisk innvendig areal, forutsatt at avviket er på 2% eller mer og minimum 1 kvm.
Ved beregning av et eventuelt prisavslag eller erstatning må kjøper selv dekke tap/kostnader opptil et beløp på kr 10 000 (egenandel).
Ikke-forbruker (næringsdrivende) – definisjon
Hvis kjøper er en juridisk person, eller en fysisk person som hovedsakelig handler som ledd i næringsvirksomhet, vil kjøpet ikke anses som et forbrukerkjøp.
Ikke-forbruker – avtalevilkår
Eiendommen har en mangel dersom den ikke er i samsvar med kravene som følger av avtalen.
Eiendommen selges «som den er», og selgers ansvar utover det konkret avtalte er da begrenset etter avhendingsloven § 3-9, første ledd andre setning.
Avhendingsloven § 3-3 andre ledd fravikes, og hvorvidt boligens arealsvikt utgjør en mangel vurderes etter avhendingsloven § 3-8.
Informasjon om kjøpers undersøkelsesplikt, herunder oppfordringen om å undersøke eiendommen nøye, gjelder også for kjøpere som ikke anses som forbrukere.
Det forutsettes at hjemmel overføres til kjøper. Hvis kjøper ikke ønsker hjemmelsoverføring av eiendommen, må det tas forbehold om dette i budet.
Meglers vederlag
Meglers vederlag betales av selger og er avtalt til:
Vederlag: kr 45.000,-
Tilrettelegging kr 17.000,-
Oppgjør: kr 7.500,-
Markedsføringspakke: kr 27.400,-
Visninger: kr 4.000,- pr. stk
Oppslag eiendomsregister: kr 2.900,-
Megler har i tillegg krav på dekning av følgende utlegg:
Innhenting av offentlig opplysninger Holmestrand med tegn. rfd: kr 3.652,-
Tinglysing sikring: kr 545,-
Boligselgerforsikring Buysure (Beregnes 5,52 promille av salgssum) ca kr. 30.912,-
Fotopakke hus: kr 4.490,-
Tilstandsrapport fra bygningssakkyndig - faktura til megler: kr 19.950,-
Opplysninger om oppdraget
Oppdragsnummer 20-0157/25
Eiendomsmegler Krogsveen AS, avd. Drammen
Nedre Storgate 16, 3015, DRAMMEN
950 007 613
Oppdragets KR-kode KR20.25157
Dato
Sist oppdatert: 14. januar 2026 kl. 01:54
Dokumenter
Dokumenter
PDF – 836 KB
PDF – 658 KB
PDF – 1 MB
PDF – 1006 KB
PDF – 312 KB
PDF – 29 KB
PDF – 127 KB
PDF – 392 KB
Område
Legg til steder som er viktige for deg
Visning
For å delta på visning, ber vi om at du melder deg på. Da sikrer vi at du får nødvendig informasjon og at det er satt av tilstrekkelig med tid. Kontakt megler dersom annet tidspunkt ønskes. Husk å lese salgsoppgaven før visningen, så du stiller forberedt.
Ønsker du kun å bli holdt orientert, kan du fra eiendommens hjemmeside få varsel om solgtpris, eller kontakte megler.
Lurer du på noe?
Unngå doble boligrenter
Vi tilbyr gunstig forsikring.
Vurderer du utleie?
Få et tilbud fra Utleie KrogsveenHva koster lånet?
Sjekk estimert lånekostnadVil du varsles om lignende boliger?
Ved å lagre ditt boligsøk hos oss får du beskjed når vi har en bolig som ligner denne, før den legges ut på markedet!

