Melgårdshagan 101
6 650 000 kr
269 m²
5 soverom
Solgt

Flateby / Melgårdshagan
Stor enebolig med leieinntekt kr. 90.000 pr. år. Nydelig og åpent beliggende med sol og utsikt. Stor dobbelgarasje.
Prisantydning
6 650 000 krOmkostninger
187 240 krTotalpris
6 837 240 kr
Pris
Bruksareal
279 m²BRA-I (internt bruksareal)
269 m²BRA-E (eksternt bruksareal)
10 m²TBA (terrasse-balkongareal)
96 m²
Areal
Etasje
3Byggeår
2000Soverom
5 soveromBad
3 badTomteareal
891 m² (eiet)Type
Enebolig med utleiedelEierform
EietFasiliteter
Garasje/P-plass og Balkong/TerrasseEnergimerke
Gul C
Nøkkelinfo
Unngå doble boligrenter
Vi tilbyr gunstig forsikring.
Vurderer du utleie?
Få et tilbud fra Utleie KrogsveenHva koster lånet?
Sjekk estimert lånekostnadBeskrivelse
Kort om eiendommen
Melgårdshagan 101 er en svært innholdsrik bolig over tre plan, med god plass for familien.
Høyt og fritt beliggende med utsikt mot Øyeren fra den store terrassen. Velholdt og frodig hage med flere koselige uteplasser. Deler av tomten er naturtomt med blåbær og tyttebærlyng. I tillegg er det kort vei til marka.
Det er dobbelgarasje og godt med biloppstillingsplasser på asfaltert gårdsplass.
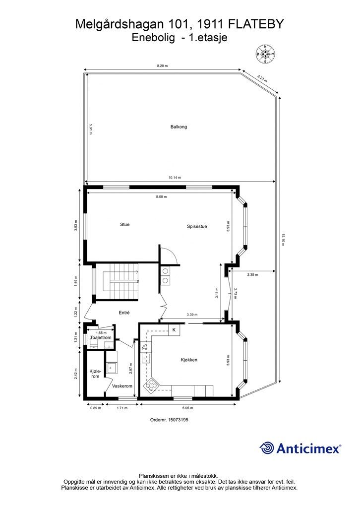
Boligen har en fin planløsning, med entré i 1.etasje. Stort kjøkken med god plass til spiseplass, stue med peis, store vindusflater og plass til spisestue. Videre har boligen to bad, et separat wc, separat vaskerom, kjølerom og fire gode soverom. Det er godkjent utleiedel / generasjonsbolig.
Utvendig redskapsbod.
Høyt og fritt i blindvei med gode solforhold.
Velkommen!
Område
Legg til steder som er viktige for deg
På flyttefot? Tenk kjøp og salg samtidig.
Få din egen rådgiver gjennom hele kjøps- og salgsprosessen. Det starter med en verdivurdering.
Unngå doble boligrenter
Vi tilbyr gunstig forsikring.
Vurderer du utleie?
Få et tilbud fra Utleie KrogsveenHva koster lånet?
Sjekk estimert lånekostnadVil du varsles om lignende boliger?
Ved å lagre ditt boligsøk hos oss får du beskjed når vi har en bolig som ligner denne, før den legges ut på markedet!

