Kastanjeveien 48
3 250 000 kr
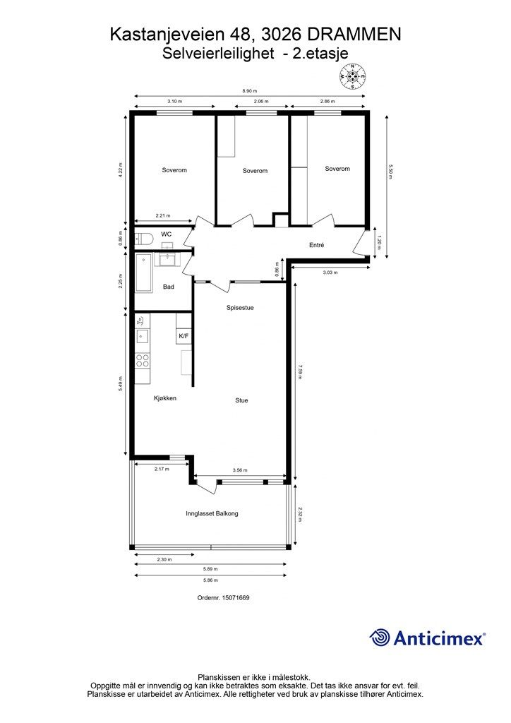
97 m²
3 soverom
Solgt

Presenteres av
Sondre Trøseng GjellumÅssiden
Pen 4-roms eierleilighet i 2. etasje. Fritt i høyden med flott utsikt. Innglasset balkong. Garasjeplass. Rett v/marka
Prisantydning
3 250 000 krOmkostninger
92 290 krTotalpris
3 342 290 kr
Pris
Bruksareal
115 m²BRA-I (internt bruksareal)
97 m²BRA-E (eksternt bruksareal)
3 m²
Areal
Etasje
2Byggeår
1977Soverom
3 soveromBad
1 badType
EierleilighetEierform
EierseksjonFasiliteter
Garasje/P-plass og Balkong/TerrasseFellesutgifter
6 697 krEnergimerke
Rød F
Nøkkelinfo
Unngå doble boligrenter
Vi tilbyr gunstig forsikring.
Vurderer du utleie?
Få et tilbud fra Utleie KrogsveenHva koster lånet?
Sjekk estimert lånekostnadBeskrivelse
Kort om eiendommen
Pen 4-roms eierleilighet i 2. etasje.
Stue med delåpen løsning mot kjøkkenet
Profilert kjøkken fra Herjedalskjøkken (delvis oppgradert i 2008)
Bad med badekar samt gulvvarme (flislagt i 2010) og separat wc-rom
Balkongdør og vinduer på bakside ble skiftet i 2023
Innglasset sydvendt balkong fra 2010 på ca. 15 kvm
Leiligheten ligger høyt og fritt med flott utsikt og sol til ca. kl. 21.00 (midtsommers)
Boligblokken er beliggende pent i høyden med marka som nærmeste nabo
Disponibel parkeringsplass i felles garasje (planlagt nytt garasjeanlegg med takhage)
Kort gange til bussholdeplass med forbindelser til Drammen sentrum
Ca. 10 min kjøreavstand til Drammen sentrum med togstasjon, bussknutepunkt og sentrumsfasiliteter
Velkommen til visning!
Område
Legg til steder som er viktige for deg
På flyttefot? Tenk kjøp og salg samtidig.
Få din egen rådgiver gjennom hele kjøps- og salgsprosessen. Det starter med en verdivurdering.
Unngå doble boligrenter
Vi tilbyr gunstig forsikring.
Vurderer du utleie?
Få et tilbud fra Utleie KrogsveenHva koster lånet?
Sjekk estimert lånekostnadVil du varsles om lignende boliger?
Ved å lagre ditt boligsøk hos oss får du beskjed når vi har en bolig som ligner denne, før den legges ut på markedet!
På flyttefot? Slik gjør vi det enklere for deg
Skreddersydd flyttepakke
Vi fikser håndverkere, vask, pakking, lagring og transport, og legger ut for utgiftene underveis.
Hjelp med både kjøp og salg
Hos oss har du din egen rådgiver gjennom hele kjøps- og salgsprosessen.
Hjelp til finansiering
Vårt samarbeid med BN Bank sikrer deg rask og løsningsorientert hjelp, til konkurransedyktige betingelser.

