Nedstrandsgata 32
4 390 000 kr
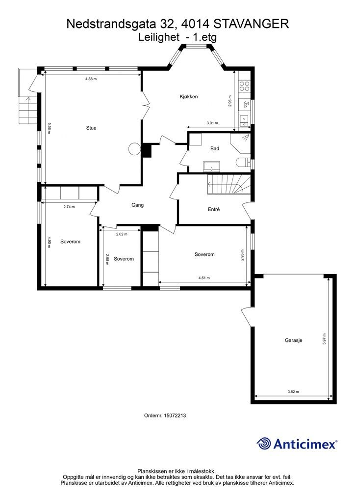
99 m²
3 soverom
Solgt
Storhaug
Visning avlyst - Stor leilighet med gode lysforhold beliggende i nydelig murvilla med tilgang til sjarmerende hage. Egen tilhørende garasje.
Prisantydning
4 390 000 krOmkostninger
120 790 krTotalpris
4 510 790 kr
Pris
Bruksareal
152 m²BRA-I (internt bruksareal)
99 m²BRA-E (eksternt bruksareal)
53 m²
Areal
Etasje
1Byggeår
1920Soverom
3 soveromBad
1 badType
EierleilighetEierform
EierseksjonEnergimerke
Oransje G
Nøkkelinfo
Unngå doble boligrenter
Vi tilbyr gunstig forsikring.
Vurderer du utleie?
Få et tilbud fra Utleie KrogsveenHva koster lånet?
Sjekk estimert lånekostnadBeskrivelse
Kort om eiendommen
- Direkte adkomst til solrik og pent beplantet felles hage med frukttrær og bærbusker.
- Egen garasje med eksklusiv bruksrett til gårdsrom med elbillader.
- Beliggende i høy første etasje med gode lysforhold i form av flere store vinduer i oppholdsrom.
- God planløsning med gjennomgående ekstra takhøyde gjennom leiligheten.
- Eldre fiskebens gulv, listverk og ekstra takhøyde gir leiligheten en historisk sjarm.
- Stort innredet kjellerrom til disposisjon (ikke omsøkt og godkjent til varig opphold).
Område
Legg til steder som er viktige for deg
På flyttefot? Tenk kjøp og salg samtidig.
Få din egen rådgiver gjennom hele kjøps- og salgsprosessen. Det starter med en verdivurdering.
Unngå doble boligrenter
Vi tilbyr gunstig forsikring.
Vurderer du utleie?
Få et tilbud fra Utleie KrogsveenHva koster lånet?
Sjekk estimert lånekostnadVil du varsles om lignende boliger?
Ved å lagre ditt boligsøk hos oss får du beskjed når vi har en bolig som ligner denne, før den legges ut på markedet!




