Bjørnemyr terrasse 13L
5 600 000 kr
105 m²
3 soverom
Solgt

Bjørnemyr
Påbygget, pent rekkehus med flott fjordutsikt og solrike uteområder. Beliggende særdeles barnevennlig og populært til!
Prisantydning
5 600 000 krAndel fellesgjeld
33 817 krOmkostninger
161 810 krTotalpris
5 795 627 kr
Pris
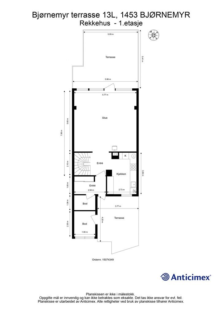
Bruksareal
116 m²BRA-I (internt bruksareal)
105 m²BRA-E (eksternt bruksareal)
11 m²TBA (terrasse-balkongareal)
56 m²
Areal
Byggeår
1970Soverom
3 soveromBad
1 badType
RekkehusEierform
EierseksjonFasiliteter
Balkong/TerrasseFellesutgifter
2 446 krEnergimerke
Rød E
Nøkkelinfo
Unngå doble boligrenter
Vi tilbyr gunstig forsikring.
Vurderer du utleie?
Få et tilbud fra Utleie KrogsveenHva koster lånet?
Sjekk estimert lånekostnadDette liker selger best ved boligen
Rekkehuset har påbygd stue (som den eneste i rekken) som gjør at det også er balkong i andre etasje. Svært sentral beliggenhet med umiddelbar nærhet til både butikk, treningssenter, kollektivtransport og ikke minst Nesoddens flotteste turområde med et vel av stier og turmuligheter som er tilgjengelig rett ut fra eiendommen. Det gjelder sommer som vinter. Eiendommen er også svært solrik, med uteplasser både foran og bak rekkehuset, noe som gir tilgang til mye sol, men også skygge når man ønsker det. Det er også en fin utsikt mot sjø fra terrasse mot vest. Kveldssol til kl 2230 om sommeren. Godt utbygd med gang og sykkelveier og både barnehager samt både barneskole og ungdomsskole i gangavstand. Også kort vei til flotte bademuligheter ved sjøen. Egen garasje samt god plass for gjesteparkering.
Beskrivelse
Kort om eiendommen
Påbygd, vestvendt beliggende bolig, med flott utsikt og sol fra tidlig morgen til sen kveld. Eiendommen byr på vestvendte terrasser med gode solforhold og flott utsikt.
Bjørnemyr terrasse er et ideelt sted for familier som ønsker å bo i et trygt og trivelig nabolag med lekeplass like ved boligen.
Få minutters gange til matbutikker, offentlig kommunikasjon, barnehager, skoler, flerbrukshall og kunstgressbane, legesenter, frisør, hud/fotpleie, treningssenter samt restaurant. umiddelbar nærhet til fine turmuligheter i Nesoddmarka med turstier og skiløyper. Gangavstand også til brygge og populær badestrand på Alværn.
Område
Legg til steder som er viktige for deg
På flyttefot? Tenk kjøp og salg samtidig.
Få din egen rådgiver gjennom hele kjøps- og salgsprosessen. Det starter med en verdivurdering.
Unngå doble boligrenter
Vi tilbyr gunstig forsikring.
Vurderer du utleie?
Få et tilbud fra Utleie KrogsveenHva koster lånet?
Sjekk estimert lånekostnadVil du varsles om lignende boliger?
Ved å lagre ditt boligsøk hos oss får du beskjed når vi har en bolig som ligner denne, før den legges ut på markedet!

