Marikollen 88
8 800 000 kr
269 m²
3 soverom
Solgt

Mjølkeråen
Innholdsrik enebolig med attraktiv beliggenhet | Solrikt med nydelig sjøutsikt | Stor dobbelgarasje | Meget barnevennlig
Prisantydning
8 800 000 krOmkostninger
240 990 krTotalpris
9 040 990 kr
Pris
Bruksareal
312 m²BRA-I (internt bruksareal)
269 m²BRA-E (eksternt bruksareal)
43 m²TBA (terrasse-balkongareal)
24 m²
Areal
Byggeår
1982Soverom
3 soveromBad
2 badTomteareal
1 033 m² (eiet)Type
Enebolig - FrittliggendeEierform
EietFasiliteter
Garasje/P-plass og Balkong/TerrasseEnergimerke
Oransje F
Nøkkelinfo
Unngå doble boligrenter
Vi tilbyr gunstig forsikring.
Vurderer du utleie?
Få et tilbud fra Utleie KrogsveenHva koster lånet?
Sjekk estimert lånekostnadBeskrivelse
Kort om eiendommen
Eiendommen har en høy og fri beliggenhet med nydelig sjøutsikt og meget gode solforhold. Svært barnevennlig gate, innerst i blindvei med trygg og kort skolevei til barne- og ungdomsskole, samt idrettsplass og nærmiljøanlegg med lekeplass og ballbinge.
Boligen er meget innholdsrik med følgende innhold:
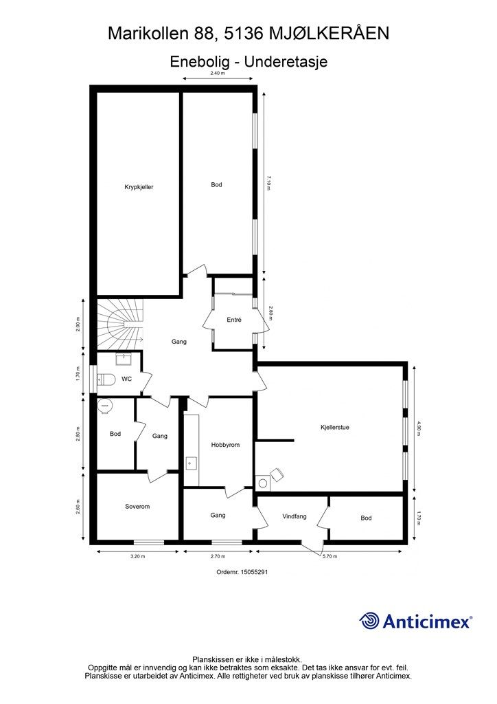
U. etg.: Entré, hall/trapperom, kjellerstue, bod/hobbyrom, wc-rom, mellomgang, soverom (ikke godkjent), bod, vindfang, gang, hobbyrom og redskapsbod.
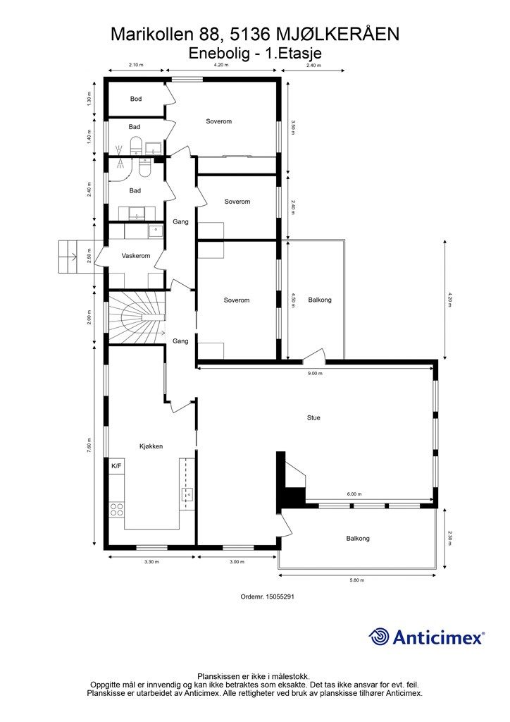
1. etg.: Stue, kjøkken, gang/trapperom, soveromsgang, 3 soverom (opprinnelig 4 soverom), 2 bad, vaskerom og bod/garderobe.
Kort fortalt:
- Stor u. etg. med biinngang og flere bruksmuligheter
- Nydelig utsikt over Byfjorden og Herdlefjorden
- Dobbel garasje med stort lagringsloft
- Kort vei til bussholdeplass og dagligvarebutikker
Område
Legg til steder som er viktige for deg
På flyttefot? Tenk kjøp og salg samtidig.
Få din egen rådgiver gjennom hele kjøps- og salgsprosessen. Det starter med en verdivurdering.
Unngå doble boligrenter
Vi tilbyr gunstig forsikring.
Vurderer du utleie?
Få et tilbud fra Utleie KrogsveenHva koster lånet?
Sjekk estimert lånekostnadVil du varsles om lignende boliger?
Ved å lagre ditt boligsøk hos oss får du beskjed når vi har en bolig som ligner denne, før den legges ut på markedet!

