Gamle Enebakkvei 115
4 300 000 kr
82 m²
2 soverom
Komplett salgsoppgave

Skullerud
Lys 3-roms eierleilighet med garasjeplass og elbillader | Innglasset veranda på 9 m² | Peis i stuen | Nær turterreng
Prisantydning
4 300 000 krAndel fellesgjeld
98 906 krOmkostninger
120 990 krTotalpris
4 519 896 kr
Pris
Bruksareal
96 m²BRA-I (internt bruksareal)
82 m²BRA-E (eksternt bruksareal)
5 m²
Areal
Etasje
2Byggeår
1989Soverom
2 soveromBad
1 badType
EierleilighetEierform
EierseksjonFasiliteter
Garasje/P-plass og Balkong/TerrasseFellesutgifter
4 912,98 kr
Nøkkelinfo
Unngå doble boligrenter
Vi tilbyr gunstig forsikring.
Vurderer du utleie?
Få et tilbud fra Utleie KrogsveenHva koster lånet?
Sjekk estimert lånekostnadDette liker selger best ved boligen
Fantastisk fint uteområde og gode naboer.
Beskrivelse
Kort om eiendommen
Velkommen til Gamle Enebakkvei 115! Eierleilighet i et etablert og rolig område, nær sentrum og turterreng.
Leiligheten ligger i 2. etasje med adkomst via svalegang. Stuen har plass til sofagruppe og spisebord, og peisovn gir ekstra varme. Utgang til innglasset veranda på 9 m², en naturlig forlengelse av stuen. Kjøkken med plass til liten spisegruppe. Beliggenheten på Skullerud gir kort vei til servicetilbud og offentlig transport. Beliggenhet på Skullerud med kort vei til servicetilbud, offentlig transport og rekreasjonsområder.
Høydepunkter:
- Garasjeplass med elbillader
- Bad med gulvvarme og opplegg for vaskemaskin (oppgraderingsbehov)
- To soverom
- TV og internett inkl. i felleskostnader
- God lagringsplass med to boder samt uinnredet kaldtloft
Leieestimat: 18 000 kr/mnd.
Innhold og byggemåte
Innhold og byggemåte
Eiendommen
Gamle Enebakkvei 115, 1188 OSLO
Kommunenummer 301, gårdsnummer 168, bruksnummer 94, seksjonsnummer 209, ideell andel 1/1
Innhold
Totalt bruksareal BRA: 96 kvm.
BRA-i:
Leilighet:
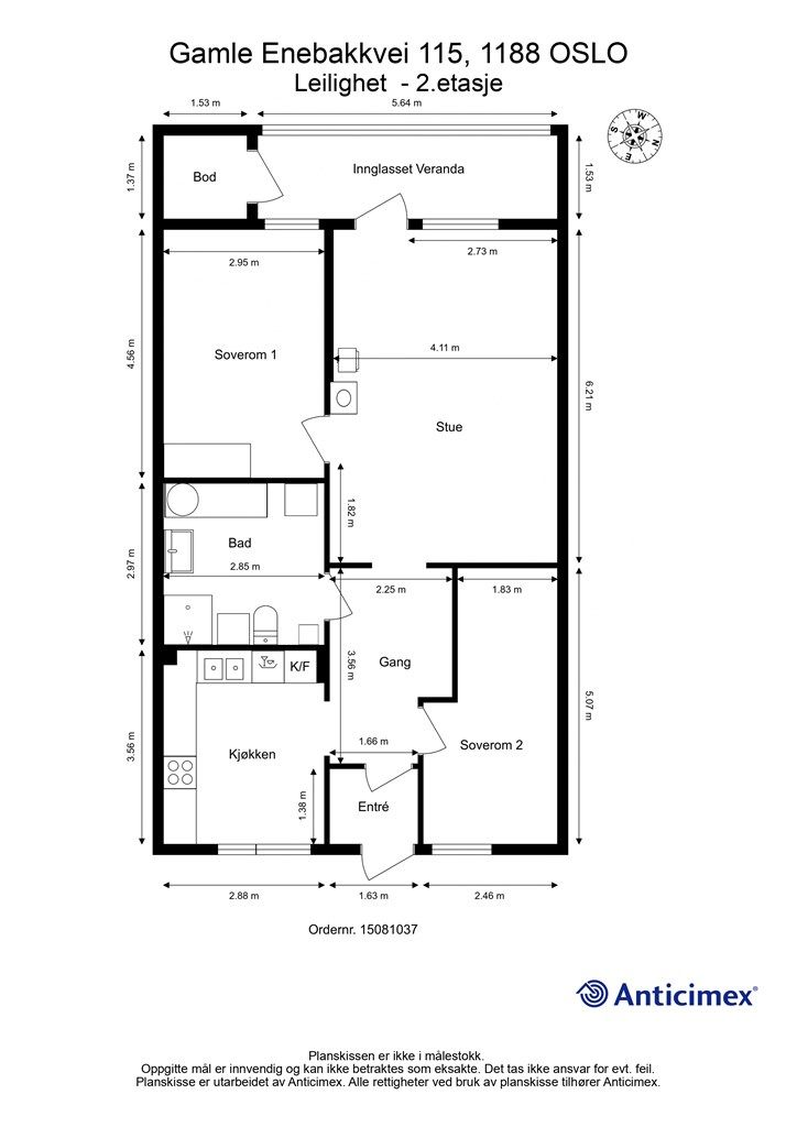
2. etasje, 82 kvm: Entré, gang, bad, stue, kjøkken og to soverom.
BRA-e:
Leilighet:
2. etasje, 2 kvm: Bod på veranda.
Felles bodbygg:
Bod, 3 kvm: Bod.
BRA-b:
Leilighet:
2. etasje, 9 kvm: Innglasset veranda.
I 2. etasje er det følgende avvik fra originale byggetegninger:
- Deler av soverom 2 er opprinnelig byggemeldt som bod.
Rommet nevnt ovenfor er ikke godkjent til varig opphold, se pkt. ferdigattest for utfyllende informasjon.
Det gjøres oppmerksom på at boligens eksterne bod i bodbygg tilhører sameiets fellesareal, og at boden således ikke eies av den enkelte sameier. Dette medfører at sameiet i fellesskap beslutter bruken, og at man ikke selv har eierrett og rettsvern for boden. Sameiet kan ved vedtak beslutte annet bruk av fellesarealet og disponering av bodarealet kan dermed opphøre.
Vedlagte plantegninger er ikke målbare. De oppgitte arealer er hentet fra rapport med befaringsdato 07.04.2026 utført av Anticimex AS v/Ståle Gran Skøien. Arealene er beregnet og rom er definert etter dagens faktiske bruk, uavhengig av hva som er godkjent av bygningsmyndighetene.
Byggemåte
Selger har innhentet en tilstandsrapport av boligen/eiendommen. Dersom det er registrert avvik, er disse klassifisert med tilstandsgrader (TGIU, TG2 og/eller TG3). Kjøper overtar ansvaret for de opplysninger som fremkommer av salgsdokumentasjonen, og kan ikke gjøre gjeldende som mangel noe som burde vært kjent eller som ikke kan anses å ha betydning for avtalen.
Bygningen er iht. tilstandsrapport oppført i 1989 som en selveierleilighet i et boligbygg over to etasjer samt parkeringskjeller og loft.
Bygningen har støpt gulv mot grunn, og grunnmur, bærende konstruksjoner og skillende dekker er av betong- og trekonstruksjoner. Fasadene er i liggende trepanel. Etasjeskiller er av betong. Yttertaket er en saltakskonstruksjon i tre, tekket med takstein fra byggeåret, med renner, nedløp og beslag av metall. Loftet er et uinnredet kaldtloft.
Leiligheten har vinduer med karmer av tre i 3-lags glass, entrédør med felt av glass, og balkongdør, alt fra byggeåret. Det er en elementpipe fra byggeår med ildsted i stuen. Til leiligheten hører en innglasset veranda på 9 m² med utgang fra stuen.
Det elektriske anlegget består av et sikringsskap med automatsikringer og strømmåler plassert i entré. Anlegget er hovedsakelig skjult.
Det er registrert forhold som tyder på behov for at en kvalifisert elektrofaglig person gjennomfører en utvidet kontroll av det elektriske anlegget. Det er kun en slik tilleggsundersøkelse som kan gi en fullstendig oversikt over tilstanden, eventuelle feil og mangler, og hvilke tiltak som kan være nødvendige.
Boligen har tilstrekkelig med røykvarslere, men mangler godkjent slokkeutstyr.
Det gjøres spesielt oppmerksom på at følgende bygningsdeler er gitt Tilstandsgrad 3 (TG3) - Store eller alvorlige avvik:
Våtrom - Bad
- Vanntett sjikt har en alder som erfaringsmessig tilsier at fremtidig funksjon er svært usikker (gjelder for produkter/løsninger etablert før år 2000). Fornying av tettesjikt krever i de fleste tilfeller tiltak som komplett utskiftning/renovering av våtrom. Den faktiske tilstanden/dagens tettefunksjon er ukjent. TG3 er satt i henhold til NS 3600.
Følgende bygningsdeler er gitt Tilstandsgrad 2 (TG2) - Avvik som kan kreve tiltak:
Våtrom - Bad
- Enkelte skruer i klemringen mangler. Forholdet fremstår ikke som fagmessig godt utført.
- Fordelerskap har ikke avrenning til rom med sluk, eller tilsvarende sikring mot fuktskader.
- Tilluftsspalte eller lignende er ikke etablert. Våtrommet har kun naturlig ventilasjon. Tilstandsgrad er satt i henhold til NS3600.
Tekniske anlegg
- Innvendig stoppekran er ikke funksjonstestet grunnet komponentens alder og lignende symptomer.
- På bakgrunn av varmtvannberederens alder vurderes det at fremtidig funksjon er usikker.
Andre rom
- Gulvoverflaten i soverom 2 fremstår ikke som fagmessig godt utført.
Loft - uinnredet / kaldt loft
- Misfarging/fuktmerker observeres stedvis på undertak, noe som tyder på negativ påvirkning av fukt. Materialet er ikke egnet for fuktmåling, så overflatesøk med fuktindikasjonsinstrument ble gjennomført i stedet (stikkprøveprinsippet er benyttet). Det ble ikke registrert indikasjoner på forhøyede fuktnivåer.
Vinduer og ytterdører (helhetsvurdering)
- Vinduer og ytterdører har en alder der fremtidig funksjon vurderes som usikker.
Yttertak (helhetsvurdering)
Taket er ikke fysisk inspisert grunnet sikkerhetsmessige forhold.
- Taktekkingen har nådd en alder og tilstand der fremtidig funksjon vurderes som usikker.
- Undertaket (inkluderer sløyfer, lekter, innfestninger og lignende) med tilhørende komponenter har en alder som tilsier at fremtidig funksjon er usikker. Bygningsdelen er skjult, så den faktiske tilstanden er ukjent.
- Takrenner og nedløp viser begynnende tegn til slitasje og elde.
Balkonger
- Rekkverk har symptomer på slitasje/elde.
Følgende bygningsdeler er ikke undersøkt (TGIU):
Våtrom - Bad
- På grunn av våtrommets utforming og bruk samt rørgjennomføringer i vegg mot kjøkken, er det ikke praktisk mulig å gjennomføre hulltaking og fuktmåling i et område som regelmessig utsettes for bruksvann, og som vurderes å være det området hvor skader erfaringsmessig forekommer. Det ble utført et overflatesøk med fuktindikator på utvalgte steder, uten funn som indikerer fuktskader, også i områdene hvor hulltaking ville vært mulig. Alle disse forholdene utgjør grunnlaget for vurderingen om at hulltaking var unødvendig, og undersøkelse av lukkede konstruksjoner er derfor ikke utført.
Tekniske anlegg
- Innvendig stakeluke er ikke påvist inne i boenheten. Det vurderes at boenheten likevel har tilgjengelige stakepunkter gjennom sluk og øvrige komponenter tilknyttet avløpssystemet, men hvordan disse vil fungere i en faktisk brukssituasjon er ikke kjent. TGIU er valgt fordi fullverdig kontroll av stakemuligheter forutsetter spesialkompetanse på rørsystemer.
Balkonger
- Fundamentene var ikke tilgjengelig for undersøkelser, siden de kun er synlige fra andre boenheter. Tilstanden lot seg derfor ikke kontrollere.
Helse, miljø og sikkerhet
Balkonger - Rekkverkshøyder, lysåpninger og andre sikkerhetsmessige forhold er kontrollert opp mot dagens gjeldende byggtekniske forskrift, selv om denne ikke har tilbakevirkende kraft. Det registreres følgende: Rekkverkshøyden er under 1,0 meter. Basert på ovennevnte forhold oppfyller ikke verandaen dagens krav til sikkerhet. Om verandaen oppfylte kravene som var gjeldende på oppføringstidspunktet eller ikke, er ikke tatt stilling til.
Tilstandsrapporten er inntatt i salgsoppgaven. Rapporten inneholder informasjon om eventuelle avvik og konsekvensen av disse. Dersom det er registrert avvik med TG3, har den bygningssakkyndige i tillegg gitt et anslag på hva det vil koste å utbedre disse. Ettersom kjøper regnes å være kjent med forhold som tydelig fremgår av tilstandsrapporten, oppfordres du til å sette deg grundig inn i rapporten i sin helhet.
Selger beskriver også i egenerklæringsskjema:
Selger opplyser at det har vært noe lekkasje fra yttertak. Det ble utført arbeid på bad i 1998 av faglærte, hvor vegger ble revet, rør-i-rør ble lagt, og det ble lagt nytt våtromsbelegg på vegg og gulv. Selger husker ikke hvilket firma som utførte jobben og har ikke dokumentasjon på arbeidet.
Moderniseringer og påkostninger
Følgende moderniseringer er foretatt:
2005:
- Enkelte oppgraderinger av kjøkken.
1998:
- Vegger revet og rør i rør ble lagt nytt våtromsbelegg på vegg og gulv på bad.
- Installert varmtvannsbereder.
Ukjent årstall:
- Tidligere bod omgjort til del av soverom 2.
- Installert elbillader på biloppstillingsplass nr. 209.
Vedlikeholdshistorikk sameiet:
2020:
- Installasjon av ny heis (merke KONE) i GE69.
2012:
- Installering av kamera- og videoovervåking av fellesarealer.
Ukjent årstall:
- Etablering av asfalterte fartshumper i garasjeanlegget.
- Forberedelse for lading av elbiler på samtlige garasjeplasser, samt etablering av 6 ladepunkter på gjesteparkeringen.
Standard
Dette er en leilighet i 2. etasje med praktisk planløsning og adkomst via svalegang. Boligen har separat kjøkken og stue. Stuen har peis og utgang til innglasset veranda på 9 m², som gir et ekstra oppholdsrom store deler av året. Standarden er i hovedsak fra byggeåret, og modernisering må påregnes, særlig på badet.
Entré:
Entré med plass til yttertøy og sko. Panelovn opplyst av eier å ikke fungere.
Gang:
Fra entréen ledes du videre inn i leiligheten via gang som binder rommene sammen. Loftsluke gir adkomst til uinnredet kaldtloft med god lagringsplass.
Bad:
Romslig og praktisk bad med dusjkabinett, toalett og baderomsinnredning med gode oppbevaringsmuligheter. Gulvvarme og opplegg for vaskemaskin. Badet er i hovedsak fra byggeåret, med enkelte oppgraderinger fra 1998, og har oppgraderingsbehov.
Kjøkken:
Separat kjøkken med plass til spisebord ved vinduet. Innredning fra byggeåret med profilerte fronter, god skap- og benkeplass og laminat benkeplate. Oppvaskkum i stål og plass til frittstående hvitevarer. Komfyr og kombiskap medfølger. Det gjøres oppmerksom på at hvitevarene er kjøpt for noen år tilbake, og kjøper må forvente slitasje som følge av alder og normal bruk.
Stue:
Stue med god plass til både sofagruppe og spisebord. Peis gir varme og atmosfære på kalde dager. Store vindusflater gir rikelig med lys, og det er utgang til innglasset veranda.
Innglasset veranda:
Vestvendt, innglasset veranda på 9 m² som fungerer som et lunt uterom store deler av året. Plass til sittegruppe samt praktisk bod i enden. Verandaen er i tillegg utstyrt med stikkontakt.
Soverom:
Hovedsoverom med god plass til dobbeltseng og garderobeløsninger.
Soverom 2 egner seg som barnerom, gjesterom eller kontor. Rommet er tidligere bod, og bruksendring er ikke dokumentert godkjent.
Overflater:
Gulv: Laminat, belegg på bad, teppe på veranda.
Vegger: Malte flater, MDF-panel, dekorstein og tapet på bad.
Himling: Malte flater og himlingsplater.
Teknisk:
- Sikringsskap med automatsikringer og strømmåler i entré (leiligheten har hovedsakelig skjult elektrisk anlegg).
- Fordelerskap (rør-i-rør) på bad.
- Hovedstoppekran i høyskap på bad.
- Varmtvannsbereder fra 1998 på bad.
- Ventilator under kjøkkenoverskap tilkoblet avtrekkskanal, for øvrig naturlig ventilasjon via tilluftsventiler i vinduer og vegger.
For fullstendig teknisk informasjon, se punktet Byggemåte.
Løsøre og tilbehør
Vi viser til liste fra Norges Eiendomsmeglerforbund som gjelder fra 01.01.2020 angående løsøre og tilbehør.
Oppvarming
Elektrisk oppvarming med punktoppvarming. Gulvvarme på bad. Ildsted i stue.
Panelovn i entré, opplyst av eier å ikke fungere som tiltenkt.
Dersom beboelsesrom ikke har vegg- eller fastmonterte varmekilder ved visning, følger dette heller ikke med.
Ferdigattest/brukstillatelse
Boligen er oppført i 1989. Det foreligger ferdigattest for rekkehus datert 06.03.1991. Denne kan fås ved henvendelse til megler.
Det foreligger godkjente og byggemeldte tegninger datert 21.04.1987. Det er avvik mellom de godkjente byggetegningene og dagens planløsning:
- En innvendig bod er slått sammen med et soverom. Dette er en bruksendring fra tilleggsdel til hoveddel, som normalt er søknadspliktig. Det er ikke fremlagt dokumentasjon på at endringen er omsøkt og godkjent. Konsekvensen ved søknad kan være at tiltaket må tilbakeføres til opprinnelig bruk som bod/tilleggsdel.
- Balkongen er innglasset. Dette er en fasadeendring som normalt er søknadspliktig. Det er ikke fremlagt dokumentasjon på at endringen er omsøkt og godkjent.
Kjøper overtar alt ansvar, kostnad og risiko for dette videre.
Tinglyste heftelser og rettigheter
Utover andel fellesgjeld overdras leiligheten fri for pengeheftelser.
Sameiet har legalpant for krav mot sameieren som følger av sameieforholdet iht. eierseksjonsloven § 31. Pantet er begrenset oppad til 2G (G = folketrygdens grunnbeløp).
Det er tinglyst 4 servitutter på sameiets eiendom. Disse omhandler blant annet bestemmelse om anlegg og vedlikehold av ledninger, trafostasjon/kiosk, adkomstrett, vann/kloakkledning og seksjonering.
Servituttene anses å være av generell karakter og vurderes ikke å ha praktisk betydning for kjøpers bruk av leiligheten.
Eiendommens rettigheter i annen eiendom:
Eiendommen har tinglyst rett til "Erklæring/avtale" som omhandler sambruk vedr. parkeringstomt.
Rettighet hefter i: KNR: 0301 GNR: 168 BNR: 89, dagboknr. 46459, tinglyst 09.09.1991.
Gjelder denne registerenheten med flere.
Servituttene vil følge eiendommen. Kjøpers bank vil få prioritet etter ovennevnte heftelser og servitutter.
Eventuell adgang til utleie
Leiligheten kan leies ut såfremt leiligheten har forsvarlige radonverdier. Leietaker må følge sameiets vedtekter og ordensregler på lik linje med eier.
I henhold til sameiets vedtekter skal utleie meldes til styret for registrering. Korttidsutleie kan ikke overstige 60 døgn i året. Det er ikke tillatt å bygge om eller tilrettelegge seksjonen slik at den kan brukes som bolig for flere personer enn det som er vanlig for tilsvarende bolig (hyblifisering). Det er forbudt med utleie av garasjeplasser/parkeringsplasser til personer som ikke eier eller bor i sameiet.
Energimerking
Denne boligen er energimerket. På en skala fra A til G, der A er best, har denne boligen oppnådd Rød G (en normalbolig vil gjerne ligge i området C-F). Kopi av energiattest ligger vedlagt i salgsoppgaven eller kan fås ved henvendelse til megler.
Beliggenhet og tomteforhold
Beliggenhet og tomteforhold
Beliggenhet
Med denne leiligheten på Skullerud har du Østmarka som nærmeste nabo. Turstier og skiløyper starter praktisk talt rett utenfor døren, og tar deg med inn i skogen for en løpetur etter jobb, eller lengre helgeturer til hytter som Skullerudstua og Rustadsaga. Beliggenheten kombinerer en sjelden ro med umiddelbar tilgang til naturen, samtidig som du bor sentralt i Oslo.
Hverdagen er enkel og effektiv herfra. De daglige innkjøpene kan gjøres til fots hos Coop Extra eller Rema 1000, begge en kort spasertur unna. Skullerud T-banestasjon ligger omtrent ti minutters gange fra leiligheten, og herfra tar linje 3 deg raskt til sentrum. For familier er det gangavstand til flere barnehager, som Skullerudhøgda, og skoler som Nyskolen og Rustad skole.
For et bredere utvalg av butikker og tjenester er det en kort kjøretur til både Lambertseter Senter og Bøler Senter, som har alt fra apotek og vinmonopol til diverse klesbutikker. Området byr også på gode treningsmuligheter, med Skullerud Sport Senter og EVO Bøler i umiddelbar nærhet. Bussholdeplassen Langerudhjemmet er kun noen minutters gange unna, og gir ytterligere fleksibilitet i hverdagsreisen.
Adkomst
Det vil bli skiltet med Krogsveen visningsskilt ved fellesvisninger.
Barnehager, skoler og fritid
Gamle Enebakkvei 115 sokner til Rustad skole (1.-7. trinn) og Skullerud skole (8.-10. trinn).
Det er flere barnehager i området som Skullerudhøgda barnehage, Gartnerboligen barnehage og Lopperud barnehage.
Dersom skole- og barnehagetilbud er av betydning for kjøpet, ber vi om at det rettes en særskilt henvendelse til kommunen/bydelsadministrasjonen for oppdatert informasjon.
Beskrivelse av tomt
Eiertomt på 32 628 kvm som tilhører sameiet. Fellesområdene er opparbeidet med asfalterte internveier, sittebenker, sykkelparkering, lekeapparater, plenarealer, trær, prydbusker og diverse beplantning.
Parkering
Det medfølger en biloppstillingsplass (nr. 209) i felles parkeringskjeller som tilhører leiligheten og er inkludert i fellesutgiftene. Plassen er utstyrt med elbillader. Det er mulighet til å leie ekstra parkeringsplass ved ledighet, og gjesteparkering er tilgjengelig for besøkende med gyldig parkeringstillatelse. I tillegg er det 6 ladepunkter for eiere/leietakere og gjester på gjesteparkeringen.
Fastmontert lader for EL-bil følger med.
Etter eierseksjonsloven § 26 kan styret, etter krav fra en seksjonseier med nedsatt funksjonsevne, pålegge en annen seksjonseier uten behov for en tilrettelagt plass å bytte parkeringsplass. Dette gjelder kun dersom seksjonseieren med nedsatt funksjonsevne allerede disponerer en parkeringsplass i sameiet.
Med samtykke fra styret kan en seksjonseier anlegge ladepunkt for elbil og ladbare hybrider ved parkeringsplassen som seksjonen disponerer, eller andre steder som styret anviser. Styret kan bare nekte å samtykke dersom det foreligger en saklig grunn, jf. eierseksjonsloven § 25.
Vei, vann og avløp
Eiendommen har adkomst via privat vei med felles vedlikeholdsansvar for Sameiet.
Eiendommen er tilknyttet kommunalt ledningsnett via private stikkledninger.
Sameiet er ansvarlig for private stikkledninger til bygningen.
Regulerings-og arealplaner
Eiendommen er regulert til boligformål i henhold til reguleringsplan S-2444 «Endret reguleringsplan med reguleringsbestemmelser for gnr. 168 bnr. 43, 55 m.fl. Skullerud», datert 04.01.1980. Planen åpner for boligbebyggelse med inntil 4 etasjer pluss garasjeetasje og utnyttelsesgrad (U) 0,4.
Eiendommen omfattes også av flere reguleringsplaner:
- S-1204 (12.04.1965): deler av området er regulert til offentlig kjørebane/veigrunn
- S-3071 (24.05.1989): deler regulert til boligformål, med tillatt blokkbebyggelse inntil 5 etasjer og BYA 16 %
- S-3698 (02.12.1998): deler regulert til bolig og allmennyttig formål, med BYA inntil 21 % og bebyggelse inntil 4 etasjer
Det foreligger en pågående plansak (saksnr. 202556015) som gjelder Enebakkveien 310, hvor det foreslås etablert driftsbase for Sporveien.
Eiendommen ligger i nærheten av området som omfattes av «Planprogram med veiledende plan for offentlige rom (VPOR) for Skullerud». Planen beskriver rammer for fremtidig utvikling av området og kvaliteter for offentlige rom. Mer informasjon: https://innsyn.pbe.oslo.kommune.no/saksinnsyn/casedet.asp?caseno=201411787
Det er per i dag ingen kjente byggesaker med direkte innvirkning på eiendommen.
Utsnitt av plan med tilhørende bestemmelser kan fås ved henvendelse til megler.
Økonomi
Økonomi
Boligens kostnader
Fellesutgiftene er kr 4 912,98 pr. mnd. og inkluderer: Biloppstillingsplass i parkeringskjeller, TV/Internett (grunnpakke), kommunale avgifter, felles bygningsforsikring, trappevask, drift og vedlikehold, styrehonorar og forretningsførsel samt nedbetaling andel fellesgjeld.
Fellesutgiftene justeres normalt en til to ganger årlig i forhold til sameiets faktiske utgifter.
Det tas forbehold om at felleskostnadene kan justeres fortløpende pga. renteøkninger.
Felleskostnadene fordeles slik:
- Felleskostnader: kr 3 978,98
- TV/internett: kr 526,-
- Vedlikeholdsfond: kr 408,-
Månedlige felleskostnader som ikke er spesifiserte, dekker boligselskapets driftskostnader.
Det er ikke utskrevet eiendomsskatt for seksjonen for inneværende år.
Nåværende eier har ikke kunnskap om årlig strømforbruk.
Ved elbil-lading; månedlig faktura på ladeabonnementet som inkluderer leie av lader, vedlikehold og drift, i tillegg til spotpris og nettleie på det du lader for.
Boligen er tilknyttet Telia som leverandør av TV/Internett, og er inkludert i felleskostnadene. TV-tuner/dekoder medfølger ikke.
Som ny kunde får du tilsendt utstyr til nærmeste postkontor. Meld innflytting på; www.telia.no/borettslag/beboer
Utgiftene er basert på nåværende eiers forbruk. Kjøper må selv tegne innboforsikring.
Kommunale utgifter
Kommunale avgifter faktureres sameiet og er dekket gjennom de månedlige felleskostnadene.
Formuesverdi
Formuesverdi for 2024 var kr 1 499 460,- ifølge selgers Skatteetaten. Beløpet forutsetter at eier bor fast i boligen (primærbolig).
Ved eventuell øvrig bruk av eiendommen (f.eks. fritidsbolig, pendlerbolig, utleieobjekt) var formuesverdien for 2024 kr 5 997 839,-.
Fra 2026 har Stortinget vedtatt en oppdatert modell for beregning av formuesverdi for primærbolig, så avvik kan forekomme.
For mer informasjon se skatteetaten.no
Opplysninger om fellesgjeld
Andel formue er kr 589,- pr. 31.12.2025.
Andel fellesgjeld er kr 98 905,90 pr. 07.04.2026.
Total fellesgjeld for sameiet er kr 21 615 393,- pr. 07.04.2026 og lånevilkårene er:
Bank: OBOS-banken AS
Lånenummer: 98207848255
Type: Annuitetslån, 12 terminer per år.
Restsaldo pr. 07.04.2026: kr 7 764 147,-
Andel av saldo: kr 35 527,30
Innfrielsesdato: 30.06.2037
Type Rente: Flytende rente
Rente: 6,44%
Bank: OBOS-banken AS
Lånenummer: 98208242644
Type: Annuitetslån, 12 terminer per år.
Restsaldo pr. 07.04.2026: kr 13 851 246,-
Andel av saldo: kr 63 378,60
Innfrielsesdato: 30.04.2054
Type Rente: Flytende rente
Rente: 6,44%
Mulighet for individuell nedbetaling på hele eller deler av fellesgjeld (IN-lån): Nei.
Omkostninger
4 300 000,00 Prisantydning
98 906,00 Andel av fellesgjeld
--------------------------------------------------------
4 398 906,00 Pris inkl. fellesgjeld
Omkostninger
109 950,00 Dokumentavgift til staten (2,5% av kjøpesum)
9 950,00 Gjensidige Boligkjøperpakke (valgfri)* (valgfritt)
545,00 Tinglysing panterettsdokument
545,00 Tinglysing skjøte
--------------------------------------------------------
111 040,00 (Omkostninger totalt (uten Gjensidige Boligkjøperpakke (valgfri)))
120 990,00 Omkostninger totalt (med Gjensidige Boligkjøperpakke (valgfri)))
--------------------------------------------------------
4 509 946,00 Totalpris inkl. omkostninger
4 519 896,00 Totalpris inkl. omkostninger (med Gjensidige Boligkjøperpakke (valgfri))
--------------------------------------------------------
Leilighetens andel av fellesgjelden vil komme i tillegg til kjøpesummen. Denne gjelden skal ikke innbetales i oppgjøret, men følger leiligheten.
Totalpris inkl. omkostninger forutsetter kjøp til prisantydning.
Det tas forbehold om endringer i avgifter og gebyrer.
Tilbud om lånefinansiering
Megler formidler gjerne kontakt med rådgiver hos vår samarbeidspartner BN Bank. De har konkurransedyktige betingelser samt rask og løsningsorientert behandling av din lånesøknad. Krogsveen mottar et honorar dersom lån opprettes.
Betalingsbetingelser
Kjøpesum inkludert omkostninger, samt pantedokument tilknyttet eventuelt lån, skal være disponibelt hos megler 2 virkedager før overtakelsen.
Annen viktig informasjon
Annen viktig informasjon
Eier
Ellen Marie Aasmundsen
Informasjon om sameiet
Eiendommen er seksjonert, og leiligheten er tilknyttet Skullerudhøgda II Boligsameie.
- Sameiet består av 255 boligseksjoner.
- Forretningsfører er OBOS Eiendomsforvaltning AS.
- Sameiet er forsikret i If Skadeforsikring Nuf, med polisenummer 2166392.
- Sameiets offisielle kommunikasjonskanal er Vibbo (https://vibbo.no/skullerudhogda-ii/om).
Dugnad må påregnes.
Dyrehold er tillatt, men underlagt regler. Lufting av kjæledyr skal skje utenfor boområdet, og eier plikter å rydde opp etter dyret. Dyr må ikke være til sjenanse for naboer eller gå løse på fellesarealer.
Grilling er kun tillatt med gass- og elektrisk grill.
Det er ikke tillatt å montere parabolantenner eller varmepumper.
Trappevask utføres ukentlig av rengjøringsfirma.
Beboere har årlig vedlikeholdsplikt for egen balkong/terrasse, og er ansvarlig for å holde avløp åpne.
Avtrekksviftene skal til enhver tid stå på. Dette for å forhindre sopp - og fuktskader. Ventiler i vindusrammene skal alltid være åpne.
Vedtak fra ordinært årsmøte 26.03.2026:
- Lån på kr 5 000 000 vedtatt for finansiering av nødvendig vedlikehold
- Tillatelse til frivillig innglassing av balkonger/terrasser etter felles løsning
- Tillatelse til utvendige screens (solskjerming) under gitte betingelser
- Ekstra renhold av fellesarealer to ganger årlig
Styret opplyser per 08.04.2026 at endelig effekt av låneopptaket på de enkelte seksjoners felleskostnader ennå ikke er fastsatt.
Planlagte tiltak:
- Fasadevask vurderes fortløpende
- Justering av lydnivå på heis i GE69 og eventuelt GE71
Megler har kopi av budsjett for 2026 og årsregnskap for 2025. Dette kan interessenter få oversendt. På årsmøtet i 2026 ble det informert om utfordringer med likviditeten. Årsregnskapet for 2025 ble godkjent med et underskudd som ble ført mot egenkapitalen.
I styrets innstilling til årsmøtet 2026 fremgår det at det foreligger en pågående konflikt med leverandør knyttet til tidligere takarbeider utført av Protan. Det opplyses om at arbeidene skal ha medført vannlekkasjer, og at flere leiligheter har vært midlertidig fraflyttet i en periode på 6–12 måneder. Forsikringen har dekket deler av kostnadene, mens sameiet selv har dekket ca. 5,5 millioner kroner. Sameiet er i konflikt med leverandøren knyttet til dette beløpet.
Iht. sameiets vedtekter må kjøper godkjennes av styret som ny sameier. Det er kjøpers ansvar at styregodkjenning blir gitt, men styret kan ikke nekte godkjenning uten saklig grunn.
Vi gjør videre oppmerksom på at det iht. eierseksjonsloven ikke er anledning å erverve mer enn 2 seksjoner i sameiet, her teller også eierskap via. firma, nærstående og familie. Kjøper har risikoen for at overskjøting på denne bakgrunn kan nektes av Statens Kartverk. I så fall vil kjøper uansett være forpliktet til å gjennomføre handelen, og oppgjør til selger vil finne sted tross manglende overskjøting.
Konferer med megler for mer informasjon.
Dokumenter for sameiet og kopi av seksjonsbegjæringen kan fås ved henvendelse til megler.
Overtakelse
Etter nærmere avtale. Overtakelse kan tidligst skje etter at styrets godkjennelse er avklart.
Boligselgerforsikring
Selger har i forbindelse med salget tegnet Boligselgerforsikring levert av Gjensidige.
Boligselgerforsikringen dekker selgers ansvar etter avhendingsloven begrenset oppad til kr 14 millioner. Dersom kjøper oppdager forhold ved eiendommen som hen mener utgjør en mangel ved eiendommen, vil Gjensidige behandle reklamasjonen på vegne av selger. Forsikringsvilkår kan fås ved henvendelse til megler.
Vedlagt salgsoppgaven følger selgers egenerklæringsskjema og tilstandsrapport. Interessenter må sette seg inn i dokumentene før bud inngis.
Boligkjøperforsikring
Innen kontraktsmøtet må kjøper ta stilling til om det ønskes å bestille Boligkjøperpakken gjennom Gjensidige. I denne gunstige pakken er boligen ferdig forsikret og inkluderer rettshjelpsforsikring, også kalt Boligkjøperforsikring. Rettshjelpsforsikring gir trygghet og tilgang på profesjonell juridisk hjelp dersom det oppdages uventede feil eller mangler det første året etter overtakelse. Forsikringsselskapet behandler i så fall ethvert mangelskrav kjøper måtte ha overfor selger.
Boligkjøperpakken inkluderer bygningsforsikring for hus og hytte, innboforsikring, flytteforsikring og dobbel rentedekning - i situasjoner hvor kjøper ikke får solgt nåværende primærbolig.
Kjøper mottar ingen særskilt faktura for Boligkjøperpakken da kostnaden det første året legges til kjøpesummen for boligen. Det gjøres oppmerksom på Krogsveen mottar et honorar for denne formidlingen.
Produktark for Boligkjøperpakken ligger vedlagt i salgsoppgaven.
Dersom ikke Boligkjøperpakke ønskes kan kun rettshjelpsforsikring, også kalt Boligkjøperforsikring, tegnes særskilt via megler. Rettshjelpsforsikringen varer i 5 år fra overtakelse og leveres gjennom Gjensidige. Ta kontakt med megler for ytterligere informasjon.
Selskap og privatpersoner som driver med kjøp/salg/utvikling som ledd i egen næringsvirksomhet kan ikke tegne Boligkjøperpakke eller rettshjelpsforsikring.
Budgivning
Forbrukerinformasjon om budgivning er vedlagt denne salgsoppgaven og er også på vår hjemmeside Krogsveen.no. Alle bud og budforhøyelser må inngis skriftlig. I tillegg må legitimasjon være fremlagt sammen med signatur fra budgiver.
Vi oppfordrer til å gi bud elektronisk via GI BUD-knappen på eiendommens hjemmeside på Krogsveen.no. Da vil samtlige vilkår bli oppfylt.
Eventuelle forhøyelser eller endringer av budet kan bekreftes pr. SMS eller på e-post. Vi oppfordrer alltid til å kontakte megler pr. telefon i tillegg, da forsinkelser i SMS og e-post kan forekomme.
For at budene skal kunne bli behandlet og videreformidlet skriftlig til alle involverte parter, må alle bud ha en tilstrekkelig lang akseptfrist, jf. eiendomsmeglingsforskriften § 6-3.
Selger må også skriftlig akseptere budet før aksept kan formidles til budgiver. Akseptfrist bør derfor være på minimum 30 minutter, og budforhøyelser må derfor skje i god tid før fristens utløp.
Bud i forbrukerforhold kan uansett ikke settes med kortere frist enn kl. 12.00 første virkedag etter siste annonserte visning. I tillegg kan ikke budet ha forbehold om at det skal holdes hemmelig ovenfor øvrige interessenter. Megler har iht. lov om eiendomsmegling ikke anledning til å videreformidle disse budene, og de vil dermed heller ikke bli journalført.
Etter at eiendommen er solgt vil kjøper og selger få tilsendt budjournal. Øvrige budgivere kan få utlevert kopi av budjournalen i anonymisert form.
Hvitvaskingsreglene
I henhold til lov om hvitvasking og terrorfinansiering har megler plikt til å gjennomføre kontrolltiltak overfor kunder, herunder fullmektiger. Dette innebærer bl.a. å bekrefte kunders og reelle rettighetshaveres identitet på bakgrunn av fremvist gyldig legitimasjon eller på annen godkjent måte, samt å innhente opplysninger om kundeforholdets formål og tilsiktede art.
Dersom slike kundetiltak ikke kan gjennomføres, kan megler ikke etablere kundeforholdet eller utføre transaksjonen.
Hvis kjøper ikke bidrar til gjennomføring av kundekontrollen og dette fører til at transaksjonen blir forsinket eller ikke kan gjennomføres, vil dette ansees som mislighold av avtalen og gi selger rettigheter etter avhendingslova kapittel 5. I tilfeller der selger ikke bidrar til gjennomføring av løpende kundekontroll underveis i oppdraget, er det selger som misligholder sine forpliktelser etter avtalen og gi kjøper rettigheter etter avhendingslovens kapittel 4. Partene er selv ansvarlige for eventuelle kostnader og ansvar dette kan medføre. Eiendomsmegleren eller eiendomsmeglingsforetaket kan ikke holdes ansvarlig for de konsekvenser dette vil kunne få for partene eller andre som har interesser i eiendomshandelen.
Kjøper oppfordres til å innbetale kjøpesummen som ikke kommer fra låneinstitusjon i én samlet innbetaling fra egen konto i norsk bank. Megler har plikt til å melde fra til Økokrim om eiendomshandler som fremstår som mistenkelige. Melding sendes Økokrim uten at partene varsles.
Personopplysningsloven
I henhold til personopplysningsloven gjør vi oppmerksom på at interessenter kan bli registrert for videre oppfølging.
Lovanvendelse
Generelle bestemmelser
Salgsoppgaven er basert på de opplysningene selger har gitt til megler, den bygningssakyndiges tilstandsrapport, samt opplysninger innhentet fra kommunen, Kartverket og andre tilgjengelige kilder. Det er viktig at kjøper setter seg grundig inn i alle salgsdokumentene, herunder salgsoppgave, tilstandsrapport og selgers egenerklæring. Kjøper anses kjent med forhold som er tydelig beskrevet i salgsdokumentene, og slike forhold kan ikke påberopes som mangler. Dette gjelder uavhengig av om kjøper har lest dokumentene. Alle interessenter oppfordres til å undersøke eiendommen nøye, gjerne sammen med fagkyndig før bud inngis. Kjøper som velger å kjøpe usett kan ikke gjøre gjeldende som mangel noe han burde blitt kjent med ved undersøkelsen.
Dersom det er behov for avklaringer, anbefaler vi at interessenter rådfører seg med eiendomsmegler eller egne rådgivere før det legges inn bud.
En bolig som har blitt brukt i en viss tid, har vanligvis blitt utsatt for slitasje og skader kan ha oppstått. Slik bruksslitasje må kjøper regne med, og det kan avdekkes enkelte forhold etter overtakelse som nødvendiggjør utbedringer. Normal slitasje og skader som nødvendiggjør utbedring, er innenfor hva kjøper må forvente og vil ikke utgjøre en mangel.
Kjøper og selgers rettigheter og plikter reguleres av avtalen mellom partene, samt informasjonen som har vært tilgjengelig for kjøperen i forbindelse med handelen. Avtalen utfylles av avhendingsloven, og det gjelder ulike avtalevilkår avhengig av om kjøper er forbrukerkjøper eller ikke. Dette er nærmere beskrevet nedenfor.
På grunn av ulike avtalevilkår kan selger vurdere bud fra en som ikke er forbruker, ulikt fra en forbrukers bud. Dersom kjøper ikke er forbruker, er selger sitt mulige mangelsansvar begrenset fordi eiendommen selges "som den er". Selger kan ikke ta «som den er»- forbehold overfor en forbrukerkjøper. Selv et lavere bud fra en som ikke er forbruker kan foretrekkes fordi begrensningen i mulig mangelsansvar kan ha egenverdi for selger. Selger står fritt til å forkaste eller akseptere ethvert bud, og er for eksempel ikke forpliktet til å akseptere høyeste bud.
Budgiver skal i budskjema avgi egenerklæring om budgiver er forbruker eller næringsdrivende/ person som hovedsakelig handler som ledd i næringsvirksomhet. Budgivere får informasjon dersom andre bud er inngitt av en som ikke er forbruker.
Forbrukerkjøp - definisjon
Med forbrukerkjøp menes kjøp av eiendom når kjøperen er en fysisk person som ikke hovedsakelig handler som ledd i næringsvirksomhet.
Forbruker – avtalevilkår
Eiendommen har en mangel dersom den ikke er i samsvar med kravene som følger av avtalen, eller det foreligger brudd på bestemmelsene i avhendingsloven §§ 3-2 til 3-8. Hvis eiendommen ikke er i samsvar med det kjøperen må kunne forvente ut ifra alder, type og synlig tilstand, kan det være grunnlag for mangelskrav. Det samme gjelder hvis det er holdt tilbake eller gitt uriktige opplysninger om eiendommen. Dette gjelder likevel bare dersom man kan gå ut ifra at det virket inn på avtalen at opplysningen ikke ble gitt eller at mangelskravet ikke blir rettet i tide på en tydelig måte.
Boligen kan ha en mangel etter avhendingsloven § 3-3 andre ledd, dersom det er avvik mellom opplyst og faktisk innvendig areal, forutsatt at avviket er på 2% eller mer og minimum 1 kvm.
Ved beregning av et eventuelt prisavslag eller erstatning må kjøper selv dekke tap/kostnader opptil et beløp på kr 10 000 (egenandel).
Ikke-forbruker (næringsdrivende) – definisjon
Hvis kjøper er en juridisk person, eller en fysisk person som hovedsakelig handler som ledd i næringsvirksomhet, vil kjøpet ikke anses som et forbrukerkjøp.
Ikke-forbruker – avtalevilkår
Eiendommen har en mangel dersom den ikke er i samsvar med kravene som følger av avtalen.
Eiendommen selges «som den er», og selgers ansvar utover det konkret avtalte er da begrenset etter avhendingsloven § 3-9, første ledd andre setning.
Avhendingsloven § 3-3 andre ledd fravikes, og hvorvidt boligens arealsvikt utgjør en mangel vurderes etter avhendingsloven § 3-8.
Informasjon om kjøpers undersøkelsesplikt, herunder oppfordringen om å undersøke eiendommen nøye, gjelder også for kjøpere som ikke anses som forbrukere.
Det forutsettes at hjemmel overføres til kjøper. Hvis kjøper ikke ønsker hjemmelsoverføring av eiendommen, må det tas forbehold om dette i budet.
Meglers vederlag
Meglers vederlag betales av selger og er avtalt til:
Vederlag: 1,00 % av salgssummen inkl. andel fellesgjeld. Minimumsprovisjon er kr 40 000,00.
Vederlag:
Kontroll av hjemmel og heftelser kr 4 500,00
Markedsføringspakke kr 30 900,00
Oppgjør kr 8 900,00
Tilrettelegging kr 17 900,00
Visninger pr. stk. / overtakelse kr 3 000,00
Utlegg:
Eierskiftegebyr forretningsfører kr 6 725,00
Innhenting av informasjon forretningsfører kr 4 950,00
Innhenting av offentlige opplysninger Oslo kommune kr 135,50
Tinglysing sikring kr 545,00
Andre utgifter:
Tilstandsrapport kr 9 950,00
Boligens visittkort kr 800,00
Boligselgerforsikring Gjensidige Snr. kr 21 526,00
Foto kr 4 700,00
Vi er opptatt av verdiskapning, og har knyttet til oss samarbeidspartnere som skal sikre våre kunder de beste produkter og tjenester;
• I forbindelse med forberedelse av salget, innhenter vi informasjon om eiendommen hovedsakelig fra vår samarbeidspartner Ambita.
• Gjensidige leverer Boligselgerforsikring og tilbyr bygningsforsikring.
• Boligkjøperforsikring leveres av Hiscox og med Sedgwick som skadebehandler, og er formidlet gjennom Gjensidige.
• BN bank tilbyr finansieringsløsninger.
• Vår avdeling Krogsveen Pluss tilbyr flyttetjenester som utvask, visningsvask, lager, tømming og transport av flyttelass, i tillegg til å formidle kontakt med Flip for overflateoppussing.
• I forbindelse med overtakelse av eiendommen tilbyr Overo avtale om strøm, alarm og bredbånd.
• Krogsveen er, sammen med øvrige bransjeaktører, medeier i Bomega AS som tilbyr den digitale annonseringsplattformen Hjem.
Opplysninger om oppdraget
Oppdragsnummer 45-0028/26
Eiendomsmegler Krogsveen AS, avd. Oppsal
Haakon Tveters vei 27, 0682, OSLO
950 007 613
Oppdragets KR-kode KR45.2628
Dato
Sist oppdatert: 17. april 2026 kl. 20:36
Dokumenter
Dokumenter
PDF – 915 KB
PDF – 3 MB
PDF – 2 MB
PDF – 640 KB
PDF – 1 MB
PDF – 62 KB
PDF – 312 KB
PDF – 29 KB
PDF – 127 KB
PDF – 392 KB
Område
Legg til steder som er viktige for deg
Visning
For å delta på visning, ber vi om at du melder deg på. Da sikrer vi at du får nødvendig informasjon og at det er satt av tilstrekkelig med tid. Kontakt megler dersom annet tidspunkt ønskes. Husk å lese salgsoppgaven før visningen, så du stiller forberedt.
Ønsker du kun å bli holdt orientert, kan du fra eiendommens hjemmeside få varsel om solgtpris, eller kontakte megler.
Lurer du på noe?
Unngå doble boligrenter
Vi tilbyr gunstig forsikring.
Vurderer du utleie?
Få et tilbud fra Utleie KrogsveenHva koster lånet?
Sjekk estimert lånekostnadVil du varsles om lignende boliger?
Ved å lagre ditt boligsøk hos oss får du beskjed når vi har en bolig som ligner denne, før den legges ut på markedet!










































