Olympiaveien 21A
3 425 000 kr
122 m²
3 soverom
Komplett salgsoppgave

Bugården
Familievennlig enderekkehus med perfekt beliggenhet i Bugården -3 soverom -gode solforhold -hage
Prisantydning
3 425 000 krOmkostninger
106 610 krTotalpris
3 531 610 kr
Pris
Bruksareal
125 m²BRA-I (internt bruksareal)
122 m²BRA-E (eksternt bruksareal)
3 m²TBA (terrasse-balkongareal)
25 m²
Areal
Etasje
3Byggeår
1962Soverom
3 soveromBad
1 badType
RekkehusEierform
EierseksjonFasiliteter
Balkong/TerrasseFellesutgifter
2 600 krEnergimerke
F
Nøkkelinfo
Unngå doble boligrenter
Vi tilbyr gunstig forsikring.
Vurderer du utleie?
Få et tilbud fra Utleie KrogsveenHva koster lånet?
Sjekk estimert lånekostnadBeskrivelse
Kort om eiendommen
Velkommen til Olympiaveien 21A – en innbydende og familievennlig bolig beliggende i hjertet av populære Bugården. Her får du en gjennomført og praktisk bolig med god planløsning, fine utearealer og en attraktiv beliggenhet med kort vei til både natur og sentrum. Et perfekt valg for barnefamilier, førstegangskjøpere eller deg som ønsker en lettstelt bolig i et trygt og hyggelig nabolag med lite gjennomgangstrafikk.
Plasseringen i Bugården gjør hverdagen smidig og effektiv. Med kort vei til nærbutikker, skoler, barnehager, idrettsanlegg og flotte turområder finner du det meste du trenger i umiddelbar nærhet.
-3 soverom
-Vaskerom
-Vestvendt uteplass med gode solforhold
-Parkeringsplass med mulighet for elbillader
Ta kontakt for en hyggelig visning
Innhold og byggemåte
Innhold og byggemåte
Eiendommen
Olympiaveien 21A, 3224 SANDEFJORD
Kommunenummer 3907, gårdsnummer 42, bruksnummer 359, seksjonsnummer 15, ideell andel 1/1
Innhold
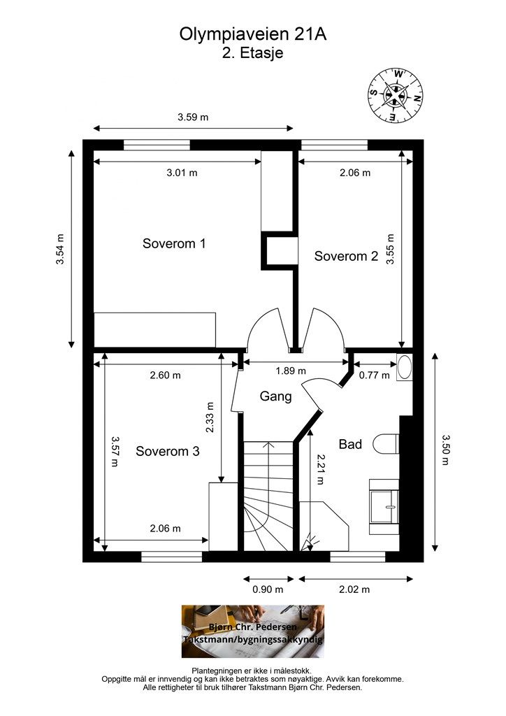
Totalt bruksareal BRA: 125 kvm
BRA-i:
1. etasje 42 kvm: Entre, stue og kjøkken.
2. etasje 42 kvm: Gang, bad og tre soverom
Kjeller: 38 kvm: Gang, kjellerstue og vaskekjeller
BRA-e:
1. etasje 3 kvm: Bod med utvendig adkomst
Åpent areal:
1. etasje 25 kvm: Terrasse
Vedlagte plantegninger er ikke målbare. De oppgitte arealer er hentet fra rapport med befaringsdato 09.03.2026 utført av Takstmann Bjørn Chr. Pedersen. Arealene er beregnet og rom er definert etter dagens faktiske bruk, uavhengig av hva som er godkjent av bygningsmyndighetene. Se punkt om ferdigattest for ytterligere informasjon.
Byggemåte
Selger har innhentet en tilstandsrapport av boligen/eiendommen. Av rapporten fremgår det at flere bygningsdeler har fått tilstandsgrad ikke undersøkt/ikke tilgjengelig for undersøkelse (TG IU), 2 (TG2) og/eller 3 (TG3). Rapporten beskriver også avvik på undersøkte bygningsdeler uten tilstandsgrad. Kjøper overtar ansvaret for de opplysninger som fremkommer av salgsdokumentasjonen, og kan ikke gjøre gjeldende som mangel noe som burde vært kjent eller som ikke kan anses å ha betydning for avtalen.
Bygningen er ihht. tilstandsrapporten oppført på støpt betong mot grunn og grunnmur i betongkonstruksjon. Yttervegger, etasjeskiller og tak i trekonstruksjoner, fasader med
stående trekledning og saltak tekket med asfaltbelegg. Les for øvrig mer om byggemåte og den tekniske tilstanden i rapporten.
Det gjøres spesielt oppmerksom på boligens tg2. Drenering er fra byggeåret og med bakgrunn i alder kan det ikke gis noen garanti for dreneringens tilstand. Det registreres riss/ sprekker i grunnmuren. På innvendig side er det observert riss/sprekker i vaskekjeller. Etasjen har utlektede vegger under terreng, noe som er en risikokonstruksjon med tanke på fukt og kondensproblematikk, det ble ikke registrert forhøyede fuktverdier. Utvendig terrasse: Det registreres noe skjevheter i konstruksjonen. Fundamenter er skjult av konstruksjonen og derfor ikke inspisert. Det registreres råteskader i rekkverket. Boddør er av eldre dato, og utskifting bør påregnes. Ytterdør er noe slitt og har behov for justering. Utvendig kledning: Sprekker i endeveden. Deler av kledningen har behov for overflatebehandling. Det registreres stedvis råteskader i trekledning og vindskier/dekkbord, samt dør- og vindusomramming. Manglende lufting gir økt risiko for fuktskader i konstruksjonen. Musetetting mangler enkelte steder. Takkonstruksjonen er en lukket konstruksjon. Inspeksjon ikke mulig. Skjulte skader kan ikke utelukkes. TG 2 er satt for å belyse risiko. Taktekking med ukjent alder. Usikker fremtidig funksjon. Etasjeskiller skjevhet: Det er målt avvik på i stue i første etasje og på soverom 1 i andre etasje. Kjøkken: Det registreres fukt/skader rundt oppvaskmaskin. Kjøkkeninnredningen har skader. Det er etablert kullfiltervifte. Det er observert drypplekkasje fra hovedstoppekran i kjellergang. Det registreres vanndrypp fra vannrør i vaskekjeller. Generell ventilering er vurdert å være mangelfull. Det er ikke etablert lufteventiler i yttervegg eller vinduer. Bad: Det registreres "bom" i gulvflis. Deler av våtrommet bærer preg av ufagmessig utførelse med den risiko dette innebærer. Det er ikke tilfredsstillende høydeforskjell mellom topp sluk og topp tettesjikt ved dør, det kan ikke verifiseres om det er etablert membranoppkant ved dør. Det er stedvis motfall rundt sluk, forutsetter fortsatt bruk av dusjkabinett. Skader på servant. Det er ikke etablert noen drensåpning for synliggjøring av eventuell lekkasje fra innebygget sisterne. Øvrige overflater: Det er registrert bomlyd i gulvfliser, og enkelte løse flisfuger. Det er registrert knirk i gulvet enkelte steder. Det er observert sprekker i skjøter mellom himlingsplater. Enkelte innerdører har skader/slitasje. Vaskekjeller: Generelt bør det påregnes oppgraderinger av vaskerommet. Det er flere bygningsdeler som gis tg2 grunnet alder. Disse punktene bør leses i sin helhet i rapporten. Se utfyllende tekst i rapporten.
Tilstandsrapporten er inntatt i salgsoppgaven. Rapporten inneholder informasjon om avvikene og konsekvensen av disse. For avvik som er gitt TG3 har den bygningssakkyndige i tillegg gitt et anslag på hva det vil koste å utbedre disse avvikene. Ettersom kjøper regnes å være kjent med forhold som tydelig fremgår av tilstandsrapporten, oppfordres du til å sette deg grundig inn i rapporten i sin helhet.
Standard
Velkommen til Olympiaveien 21A – en innbydende og familievennlig bolig beliggende i hjertet av populære Bugården. Her får du en gjennomført og praktisk bolig med god planløsning, fine utearealer og en attraktiv beliggenhet med kort vei til både natur og sentrum. Et perfekt valg for barnefamilier, førstegangskjøpere eller deg som ønsker en lettstelt bolig i et trygt og hyggelig nabolag.
Boligen ligger i et etablert og rolig boligområde med lite gjennomgangstrafikk og gode bokvaliteter. Her kan du nyte grønne omgivelser, nærhet til Bugårdsparken og et miljø som innbyr til både aktivitet og avslapning. Uteområdene gir gode muligheter for lek, sosiale sammenkomster og hverdagsliv i det fri.
Innvendig møter du en smart og funksjonell planløsning som passer godt både for par og familier. Med 3 soverom samlet i 2. etasje får du fleksibilitet – enten du trenger barnerom, gjesterom eller et praktisk hjemmekontor. Lyse overflater og gode romstørrelser gir en behagelig atmosfære. Badet fremstår med løsninger som gir en fin kombinasjon av funksjonalitet og komfort.
Boligens stue er et naturlig samlingspunkt – et lyst og åpent oppholdsrom med god plass til både sofagruppe og spisebord. Store vindusflater gir rikelig lysinnslipp og bidrar til en varm og hyggelig romfølelse. Fra stuen har du utgang til et av boligens store fortrinn: de romslige utearealene. Her ligger alt til rette for å skape dine egne soner for grilling, avslapning, lek eller beplantning.
Boligen tilbyr også gode parkeringsmuligheter på egen tomt, noe som gjør hverdagen enkel og praktisk. Ekstra utebod gir rom for lagring av sesongutstyr, sykler og det du ellers ønsker å oppbevare.
Plasseringen i Bugården gjør hverdagen smidig og effektiv. Med kort vei til nærbutikker, skoler, barnehager, idrettsanlegg og flotte turområder finner du det meste du trenger i umiddelbar nærhet. Bugårdsparken, med sine turstier, lekeplasser og aktivitetsmuligheter, ligger som et naturlig samlingspunkt rett i nærheten. Sandefjord sentrum ligger også kun en kort sykkeltur unna – perfekt for handel, kaféliv og kulturtilbud.
Denne boligen kombinerer praktiske løsninger, hyggelig bomiljø og en særdeles attraktiv beliggenhet. Et hjem med alt som skal til for et komfortabelt og trivelig hverdagsliv.
Oppvarming
Peisovn i stuen, varmekabler på bad og gang i kjelleren ellers elektrisk oppvarming. Dersom beboelsesrom ikke har vegg- eller fastmonterte varmekilder ved visning, følger dette heller ikke med.
Selger har avtalt Norgespris på strøm på eiendommen for perioden ut 2026, og denne er pt. på 50 øre inkl mva. Nettleie, avgifter og påslag fra kraftleverandøren kommer i tillegg. Er det fjernvarme vil det også komme kostnader i tillegg.
Denne avtalen vil følge eiendommen i den avtalte perioden.
Les mer om Norgespris her: https://www.regjeringen.no/no/aktuelt/legg-fram-lov-om-norgespris-pa-straum-og-fjernvarme/id3102642/
Ferdigattest/brukstillatelse
Det foreligger ferdigattest på eiendommen datert 17.09.1962. Denne kan fås ved henvendelse til megler. Ferdigattesten gjelder 3-mannsbolig med 4 rom, kjøkken, bad og W.C. pr. leilighet.
Innredning av kjellerstuen til bruk for varig opphold er ikke bruksendret/omsøkt. Rømningsvidu fra rom under terreng har ikke tilstrekkelig størrelse iht forskriftskrav, godkjent rømningsvei må etableres for bruk av rom til varig opphold. Konsekvensen ved søknad om ferdigattest kan være at rommene ikke godkjennes som varig opphold. Kjøper overtar alt ansvar, kostnad og risiko for dette videre.
Det gjøres oppmerksom på at det ikke lenger utstedes ferdigattest på tiltak det er søkt om før 1998 jf. plan- og bygningsloven § 21-10. Kommunen vil ikke kreve ferdigattest for disse tiltakene og vil avvise eventuelle søknader. Bestemmelsen innebærer ikke at tiltak med manglende søknad blir lovlige, men at man ikke trenger å avslutte gamle byggesaker. Normalt sett kreves ferdigattest for alle søknadspliktige tiltak som gjøres etter plan- og bygningsloven.
Tinglyste heftelser og rettigheter
Leiligheten overdras fri for pengeheftelser med unntak av:
Dagboknr 990113, tinglyst 27.02.1967, type heftelse: Elektriske kraftlinjer, bestemmelse om trafostasjon/kiosk.
Dagboknr 5535, tinglyst 29.09.1972, type heftelse: Erklæring/avtale. Elektriske kraftlinjer. Med flere bestemmelser om bl.a. om at eiendommen påheftes byggeforbudsbelte og skogrydningsbelte.
Dagboknr 11046, tinglyst 17.12.1985, type heftelse: Erklæring/avtale. Pant til sameiet.
Sameiet har legalpant for krav mot sameieren som følger av sameieforholdet iht. eierseksjonsloven § 31. Pantet er begrenset oppad til 2G, (G = folketrygdens grunnbeløp).
Servituttene vil følge eiendommen. Kjøpers bank vil få prioritet etter ovennevnte heftelser og servitutter.
Eventuell adgang til utleie
Leiligheten kan leies ut såfremt leiligheten har forsvarlige radonverdier. Leietaker må følge sameiets vedtekter og ordensregler på lik linje som eier.
Diverse
Taklampene i stuen vil ikke medfølge om annet ikke blir avtalt.
Beliggenhet og tomteforhold
Beliggenhet og tomteforhold
Beliggenhet
Meget attraktiv beliggenhet ved Bugården, rett i nærheten av velkjente Bugårdsparken. Området er meget populært hos barnefamilier, mye grunnet alle fasilitetene som finnes i nærområdet. Barnehager, barneskole, ungdomsskole og videregående skole ligger alle i gangavstand slik at hente og bringe tjenesten for foreldrene blir minimal!
En av de største fordelene ved beliggenheten er den umiddelbare nærheten til Bugårdsparken, et av Sandefjords mest populære rekreasjonsområder med turstier, grøntområder, svømmehall, frisbeebane, tennisbaner, ishall, lekeplasser og øvrige idrettsanlegg. Her får du et perfekt sted for både rolige turer, joggerunder og familieaktiviteter, og nærheten til parken gir hverdagen et stort tilskudd av frisk luft og natur.
I nærheten ligger Metro bowling hvor man kan utfordre seg i toppmoderne bowlingbaner, biljard, air hockey og underholdningsmaskiner. Ønsker man å finne på noe til de små, finner du i samme bygg Metro Lekeland. Dette er et stort innendørs aktivitetssenter for barn og barnefamilier.
For de som helst vil se på fotball, ligger Sandefjord Fotball stadion, Jotun arena, rett i nærheten. Anlegget inneholder også treningssenter og dagligvareforretning. På Pindsle er det også mange butikker med alt for hus og hjem med lange åpningstider. Til tross for den grønne og rolige beliggenheten er det kort vei inn til Sandefjord sentrum, hvor du finner handel, restauranter, kultur og servicetilbud. Området har også gode kollektivforbindelser.
Vi ønsker velkommen til en hyggelig visning!
Adkomst
Boligen er skiltet med Krogsveen "til salgs skilt". For enkel veibeskrivelse, Se Google maps -det er enkelt å finne frem i kartet. Det vil bli skiltet med Krogsveen visningsskilt ved fellesvisninger.
Beskrivelse av tomt
Eiet tomt på 13.187 kvm som tilhører sameiet. Tomten er fellesareal. Hver enkelt disponerer den del som er naturlig til sin bolig.
Tomten er opparbeidet med asfaltert vei inn til boligen og stor vestvendt uteplass med hage. Det er satt opp hekk i tomtegrensen mot veien. Det er varslet regulerings start for å etablere gang-/ sykkelvei langs Krokemoveien fra Sportsveien til Ringveien. Strekningen er på ca. 1,2 km, og det må påregnes eiendomsinngrep langs/mot hovedveien innerst i rekken.
Parkering
2 parkeringsplasser mot kortsiden av boligen på sameiets felles tomt. Ellers gateparkering etter områdets beskrivelser.
Vei, vann og avløp
Eiendommen har adkomst via kommunal vei.
Eiendommen er tilknyttet kommunalt ledningsnett via private stikkledninger. Sameiet er ansvarlig for private stikkledninger til bygningen.
Regulerings-og arealplaner
Eiendommen er regulert til boligbebyggelse, hensyn friluftsliv, høyspenningsanlegg, støysone (gul og rød) i henhold til kommuneplanens arealdel datert 21.09.2023 med tilhørende reguleringsbestemmelser.
Det er varslet reguelringsstart for å etablere gang-/ sykkelvei langs Krokemoveien fra Sportsveien til Ringveien. Strekningen er på ca. 1,2 km, og det må påregnes eiendomsinngrep i tilgrensende eiendommer langs veien.
Det foreligger vedtatt reguleringsplan (områdeplan) for eiendommen Sørby, gnr 121/1 m.fl. Planområdet er på ca. 300 daa og ligger ca. 100 m sør for den aktuelle eiendommen. Hensikten med det overordnede planarbeidet har vært å utforme rammene for utvikling av boligområdet med tilhørende funksjoner. Det legges til rette for at området får en høy utnyttelse (4 boliger per daa), noe som tilsvarer ca. 800 boenheter. Byggingen på dette området er i gang pr i dag.
Utsnitt av plan med tilhørende bestemmelser kan fås ved henvendelse til megler.
Økonomi
Økonomi
Boligens kostnader
Kommunale avgifter er kr 15.540,- for inneværende år. I dette inngår gebyr for vann, avløp, renovasjon og feiing/tilsyn.
Fellesutgiftene er kr 2.600,- pr. mnd. og inkluderer: Brøyting, TV og internett (Sandefjord bredbånd), utvendig forsikring, styrer- og adm. honorar, felles vedlikehold
Fellesutgiftene justeres normalt en til to ganger årlig i forhold til sameiets faktiske utgifter.
Nåværende eier har et strømforbruk som tilsvarer ca. 20.000 kwh. pr. år.
Boligen er tilknyttet Sandefjord Bredbånd som leverandør av tv og internett. Grunnpakke er inkludert i felleskostnadene. Tv-tuner/dekoder medfølger ikke.
Utgiftene er basert på nåværende eiers forbruk. Kjøper må selv tegne innboforsikring.
Selger har avtalt Norgespris på strøm på eiendommen for perioden ut 2026, og denne er pt. på 50 øre inkl. mva. Nettleie, avgifter og påslag fra kraftleverandøren kommer i tillegg.
Denne avtalen vil følge eiendommen i den avtalte perioden.
Les mer om Norgespris her: https://www.regjeringen.no/no/aktuelt/legg-fram-lov-om-norgespris-pa-straum-og-fjernvarme/id3102642/
Formuesverdi
Formuesverdi for 2024 var kr 868.412,- ifølge selgers skatteetaten. Beløpet forutsetter at eier bor fast i boligen (primærbolig).
Ved eventuell øvrig bruk av eiendommen (f.eks. fritidsbolig, pendlerbolig, utleieobjekt) var formuesverdien for 2024 kr 3.473.646,-
Fra 2026 har Stortinget vedtatt en oppdatert modell for beregning av formuesverdi for primærbolig, så avvik kan forekomme.
For mer informasjon se skatteetaten.no
Omkostninger
3 425 000,00 Prisantydning
Omkostninger
85 620,00 Dokumentavgift til staten (2,5% av kjøpesum)
19 900,00 Gjensidige Boligkjøperpakke (valgfri)
545,00 Tinglysing panterettsdokument
545,00 Tinglysing skjøte
--------------------------------------------------------
106 610,00 Omkostninger totalt
--------------------------------------------------------
3 531 610,00 Totalpris inkl. omkostninger
--------------------------------------------------------
Betalingsbetingelser
Kjøpesum inkludert omkostninger, samt pantedokument tilknyttet eventuelt lån, skal være disponibelt hos megler 2 virkedager før overtagelsen.
Annen viktig informasjon
Annen viktig informasjon
Eier
Silje Isaksen
Informasjon om sameiet
Eiendommen er seksjonert, og rekkehuset er tilknyttet Moa boligsameie.
Sameiet består av 34 leiligheter.
Forretningsfører er Bauta regnskap.
Styrets leder er Bjørn Reidar Grønnevold.
Dyrehold må søkes til styret.
Dugnad må påregnes.
Planlagte påkostninger: Det undersøkes og kartlegges om fornyelse av tak i hele sameiet. Det er planlagt å grave opp vannledningen inn til denne boligen for å utbedre problemet rundt dette på kortsiden av boligen. Dette er planlagt at skal gjøres i løpet av sommermånedene i år.
info fra styre: Det er ikke avholdt årsmøte i 2026 enda, det er derfor ikke avklart om det planlegges noen oppgraderinger.
Det har vært en konflikt med naboen i 21B om blant annet parkeringsplassene på utsiden. Rettsforliket i sin helhet kan fåes ved henvendelse til megler.
Vi gjør videre oppmerksom på at det iht. eierseksjonsloven ikke er anledning å erverve mer enn 2 seksjoner i sameiet. I tillegg følger det av sameiets vedtekter at kjøp av bolig med formål for utleie ikke er tillatt. Dokumenter for sameiet og kopi av seksjonsbegjæringen kan fås ved henvendelse til megler.
Overtakelse
Etter nærmere avtale.
Boligselgerforsikring
Selger har i forbindelse med salget tegnet boligselgerforsikring levert av Gjensidige.
Boligselgerforsikringen dekker selgers ansvar etter avhendingsloven begrenset oppad til kr 14 millioner. Dersom kjøper oppdager forhold ved eiendommen som hen mener utgjør en mangel ved eiendommen, vil Gjensidige behandle reklamasjonen på vegne av selger. Forsikringsvilkår kan fås ved henvendelse til megler.
Vedlagt salgsoppgaven følger selgers egenerklæringsskjema og tilstandsrapport. Interessenter må sette seg inn i dokumentene før bud inngis.
Boligkjøperforsikring
Innen kontraktsmøtet må kjøper ta stilling til om det ønskes å bestille Boligkjøperpakken gjennom Gjensidige. I denne gunstige pakken er boligen ferdig forsikret og inkluderer rettshjelpsforsikring, også kalt Boligkjøperforsikring. Rettshjelpsforsikring gir trygghet og tilgang på profesjonell juridisk hjelp dersom det oppdages uventede feil eller mangler det første året etter overtagelse. Forsikringsselskapet behandler i så fall ethvert mangelskrav kjøper måtte ha overfor selger.
Boligkjøperpakken inkluderer bygningsforsikring for hus og hytte, innboforsikring, flytteforsikring og dobbel rentedekning - i situasjoner hvor kjøper ikke får solgt nåværende primærbolig.
Kjøper mottar ingen særskilt faktura for Boligkjøperpakken da kostnaden det første året legges til kjøpesummen for boligen. Det gjøres oppmerksom på Krogsveen mottar et honorar for denne formidlingen.
Produktark for Boligkjøperpakken ligger vedlagt i salgsoppgaven.
Dersom ikke boligkjøperpakke ønskes kan kun rettshjelpsforsikring, også kalt boligkjøperforsikring, tegnes særskilt via megler. Rettshjelpsforsikringen varer i 5 år fra overtagelse og leveres gjennom Gjensidige. Ta kontakt med megler for ytterligere informasjon.
Selskap og privatpersoner som driver med kjøp/salg/utvikling som ledd i egen næringsvirksomhet kan ikke tegne boligkjøperpakke eller rettshjelpsforsikring.
Budgivning
Forbrukerinformasjon om budgivning er vedlagt denne salgsoppgaven og er også på vår hjemmeside Krogsveen.no. Alle bud og budforhøyelser må inngis skriftlig. I tillegg må legitimasjon være fremlagt sammen med signatur fra budgiver.
Vi oppfordrer til å gi bud elektronisk via GI BUD-knappen på eiendommens hjemmeside på Krogsveen.no. Da vil samtlige vilkår bli oppfylt.
Eventuelle forhøyelser eller endringer av budet kan bekreftes pr SMS eller på e-post. Vi oppfordrer alltid til å kontakte megler pr. telefon i tillegg da forsinkelser i SMS og e-post kan forekomme.
For at budene skal kunne bli behandlet og videreformidlet skriftlig til alle involverte parter, må alle bud ha en tilstrekkelig lang akseptfrist, jf. eiendomsmeglingsforskriften § 6-3.
Selger må også skriftlig akseptere budet før aksept kan formidles til budgiver. Akseptfrist bør derfor være på minimum 30 minutter, og budforhøyelser må derfor skje i god tid før fristens utløp.
Bud i forbrukerforhold kan uansett ikke settes med kortere frist enn kl. 12.00 første virkedag etter siste annonserte visning. I tillegg kan ikke budet ha forbehold om at det skal holdes hemmelig ovenfor øvrige interessenter. Megler har iht lov om eiendomsmegling ikke anledning til å videreformidle disse budene, og de vil dermed heller ikke bli journalført.
Etter at eiendommen er solgt vil kjøper og selger få tilsendt budjournal. Øvrige budgivere kan få utlevert kopi av budjournalen i anonymisert form.
Hvitvaskingsreglene
I henhold til lov om hvitvasking og terrorfinansiering har megler plikt til å gjennomføre kontrolltiltak overfor kunder, herunder fullmektiger. Dette innebærer bl.a. å bekrefte kunders og reelle rettighetshaveres identitet på bakgrunn av fremvist gyldig legitimasjon eller på annen godkjent måte, samt å innhente opplysninger om kundeforholdets formål og tilsiktede art.
Dersom slike kundetiltak ikke kan gjennomføres, kan megler ikke etablere kundeforholdet eller utføre transaksjonen.
Hvis kjøper ikke bidrar til gjennomføring av kundekontrollen og dette fører til at transaksjonen blir forsinket eller ikke kan gjennomføres, vil dette ansees som mislighold av avtalen og gi selger rettigheter etter avhendingslova kapittel 5. I tilfeller der selger ikke bidrar til gjennomføring av løpende kundekontroll underveis i oppdraget, er det selger som misligholder sine forpliktelser etter avtalen og gi kjøper rettigheter etter avhendingslovens kapittel 4. Partene er selv ansvarlige for eventuelle kostnader og ansvar dette kan medføre. Eiendomsmegleren eller eiendomsmeglingsforetaket kan ikke holdes ansvarlig for de konsekvenser dette vil kunne få for partene eller andre som har interesser i eiendomshandelen.
Kjøper oppfordres til å innbetale kjøpesummen som ikke kommer fra låneinstitusjon i én samlet innbetaling fra egen konto i norsk bank. Megler har plikt til å melde fra til Økokrim om eiendomshandler som fremstår som mistenkelige. Melding sendes Økokrim uten at partene varsles.
Personopplysningsloven
I henhold til personopplysningsloven gjør vi oppmerksom på at interessenter kan bli registrert for videre oppfølging.
Lovanvendelse
Generelle bestemmelser
Salgsoppgaven er basert på de opplysningene selger har gitt til megler, den bygningssakyndiges tilstandsrapport, samt opplysninger innhentet fra kommunen, Kartverket og andre tilgjengelige kilder. Det er viktig at kjøper setter seg grundig inn i alle salgsdokumentene, herunder salgsoppgave, tilstandsrapport og selgers egenerklæring. Kjøper anses kjent med forhold som er tydelig beskrevet i salgsdokumentene, og slike forhold kan ikke påberopes som mangler. Dette gjelder uavhengig av om kjøper har lest dokumentene. Alle interessenter oppfordres til å undersøke eiendommen nøye, gjerne sammen med fagkyndig før bud inngis. Kjøper som velger å kjøpe usett kan ikke gjøre gjeldende som mangel noe han burde blitt kjent med ved undersøkelsen.
Dersom det er behov for avklaringer, anbefaler vi at interessenter rådfører seg med eiendomsmegler eller egne rådgivere før det legges inn bud.
En bolig som har blitt brukt i en viss tid, har vanligvis blitt utsatt for slitasje og skader kan ha oppstått. Slik bruksslitasje må kjøper regne med, og det kan avdekkes enkelte forhold etter overtakelse som nødvendiggjør utbedringer. Normal slitasje og skader som nødvendiggjør utbedring, er innenfor hva kjøper må forvente og vil ikke utgjøre en mangel.
Kjøper og selgers rettigheter og plikter reguleres av avtalen mellom partene, samt informasjonen som har vært tilgjengelig for kjøperen i forbindelse med handelen. Avtalen utfylles av avhendingsloven, og det gjelder ulike avtalevilkår avhengig av om kjøper er forbrukerkjøper eller ikke. Dette er nærmere beskrevet nedenfor.
På grunn av ulike avtalevilkår kan selger vurdere bud fra en som ikke er forbruker, ulikt fra en forbrukers bud. Dersom kjøper ikke er forbruker, er selger sitt mulige mangelsansvar begrenset fordi eiendommen selges "som den er". Selger kan ikke ta «som den er»- forbehold overfor en forbrukerkjøper. Selv et lavere bud fra en som ikke er forbruker kan foretrekkes fordi begrensningen i mulig mangelsansvar kan ha egenverdi for selger. Selger står fritt til å forkaste eller akseptere ethvert bud, og er for eksempel ikke forpliktet til å akseptere høyeste bud.
Budgiver skal i budskjema avgi egenerklæring om budgiver er forbruker eller næringsdrivende/ person som hovedsakelig handler som ledd i næringsvirksomhet. Budgivere får informasjon dersom andre bud er inngitt av en som ikke er forbruker.
Forbrukerkjøp - definisjon
Med forbrukerkjøp menes kjøp av eiendom når kjøperen er en fysisk person som ikke hovedsakelig handler som ledd i næringsvirksomhet.
Forbruker – avtalevilkår
Eiendommen har en mangel dersom den ikke er i samsvar med kravene som følger av avtalen, eller det foreligger brudd på bestemmelsene i avhendingsloven §§ 3-2 til 3-8. Hvis eiendommen ikke er i samsvar med det kjøperen må kunne forvente ut ifra alder, type og synlig tilstand, kan det være grunnlag for mangelskrav. Det samme gjelder hvis det er holdt tilbake eller gitt uriktige opplysninger om eiendommen. Dette gjelder likevel bare dersom man kan gå ut ifra at det virket inn på avtalen at opplysningen ikke ble gitt eller at mangelskravet ikke blir rettet i tide på en tydelig måte.
Boligen kan ha en mangel etter avhendingsloven § 3-3 andre ledd, dersom det er avvik mellom opplyst og faktisk innvendig areal, forutsatt at avviket er på 2% eller mer og minimum 1 kvm.
Ved beregning av et eventuelt prisavslag eller erstatning må kjøper selv dekke tap/kostnader opptil et beløp på kr 10 000 (egenandel).
Ikke-forbruker (næringsdrivende) – definisjon
Hvis kjøper er en juridisk person, eller en fysisk person som hovedsakelig handler som ledd i næringsvirksomhet, vil kjøpet ikke anses som et forbrukerkjøp.
Ikke-forbruker – avtalevilkår
Eiendommen har en mangel dersom den ikke er i samsvar med kravene som følger av avtalen.
Eiendommen selges «som den er», og selgers ansvar utover det konkret avtalte er da begrenset etter avhendingsloven § 3-9, første ledd andre setning.
Avhendingsloven § 3-3 andre ledd fravikes, og hvorvidt boligens arealsvikt utgjør en mangel vurderes etter avhendingsloven § 3-8.
Informasjon om kjøpers undersøkelsesplikt, herunder oppfordringen om å undersøke eiendommen nøye, gjelder også for kjøpere som ikke anses som forbrukere.
Det forutsettes at hjemmel overføres til kjøper. Hvis kjøper ikke ønsker hjemmelsoverføring av eiendommen, må det tas forbehold om dette i budet.
Meglers vederlag
Meglers vederlag betales av selger og er avtalt til: kr 35.000. Vederlag: Fotopakke kr 4.800. Kontroll av hjemmel og heftelser kr 3.900. Markedsføringspakke kr 29.900. Oppgjør kr 8.900. Tilrettelegging kr 19.900. Visninger pr. stk. kr 1.500. Utlegg: Innhenting av offentlig opplysninger kr 3.504. Tinglysing sikring kr 545.
Vi er opptatt av verdiskapning, og har knyttet til oss samarbeidspartnere som skal sikre våre kunder de beste produkter og tjenester;
• I forbindelse med forberedelse av salget, innhenter vi informasjon om eiendommen hovedsakelig fra vår samarbeidspartner Ambita.
• Gjensidige leverer boligselgerforsikring og tilbyr bygningsforsikring
• Boligkjøperforsikring leveres av Hiscox og med Sedgwick som skadebehandler, og er formidlet gjennom Gjensidige.
• BN bank tilbyr finansieringsløsninger
• Vår avdeling Krogsveen Pluss tilbyr flyttetjenester som utvask, visningsvask, lager, tømming og transport av flyttelass, i tillegg til å formidle kontakt med Flip for overflateoppussing.
• I forbindelse med overtagelse av eiendommen tilbyr Overo avtale om strøm, alarm og bredbånd.
• Krogsveen er, sammen med øvrige bransjeaktører, medeier i den digitale annonseringsplattformen Hjem som eies av Bomega AS.
Opplysninger om oppdraget
Oppdragsnummer 22-0068/26
Eiendomsmegler Krogsveen AS, avd. Sandefjord
Jernbanealléen 13, 3210, SANDEFJORD
950 007 613
Oppdragets KR-kode KR22.2668
Dato
Sist oppdatert: 11. mai 2026 kl. 13:19
Dokumenter
Dokumenter
PDF – 168 KB
PDF – 918 KB
PDF – 4 MB
PDF – 312 KB
PDF – 29 KB
PDF – 127 KB
PDF – 392 KB
Område
Legg til steder som er viktige for deg
Visning
Vi legger til rette for gode visninger med tid til alle. Kontakt megler på 41603938 eller via linken «visningspåmelding» for å avtale tidspunkt. Husk også å lese salgsoppgaven før visningen.
Lurer du på noe?
Unngå doble boligrenter
Vi tilbyr gunstig forsikring.
Vurderer du utleie?
Få et tilbud fra Utleie KrogsveenHva koster lånet?
Sjekk estimert lånekostnadVil du varsles om lignende boliger?
Ved å lagre ditt boligsøk hos oss får du beskjed når vi har en bolig som ligner denne, før den legges ut på markedet!

