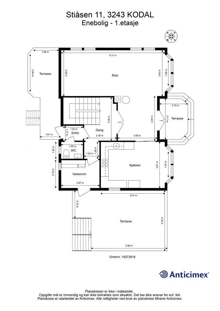
Stiåsen 11
5 650 000 kr
221 m²
3 soverom
Solgt

Kodal
Stor familiebolig i et attraktivt område - 2 Stuer - 3 Soverom - 2 Bad - Hybel i kjeller - Stor garasje
Prisantydning
5 650 000 krOmkostninger
162 240 krTotalpris
5 812 240 kr
Pris
Bruksareal
280 m²BRA-I (internt bruksareal)
221 m²BRA-E (eksternt bruksareal)
59 m²TBA (terrasse-balkongareal)
58 m²
Areal
Etasje
3Byggeår
1999Soverom
3 soveromBad
2 badTomteareal
1 665 m² (eiet)Type
Enebolig - FrittliggendeEierform
EietFasiliteter
Garasje/P-plass og Balkong/Terrasse
Nøkkelinfo
Unngå doble boligrenter
Vi tilbyr gunstig forsikring.
Vurderer du utleie?
Få et tilbud fra Utleie KrogsveenHva koster lånet?
Sjekk estimert lånekostnadBeskrivelse
Kort om eiendommen
Er dette ditt drømmehjem? Perfekt bolig for en stor familie som ønsker en romslig tomt.
Her kan du trygt slippe barna ut for å utforske det populære og barnevennlige nabolaget, mens du nyter solrike dager på en av de flotte uteplassene på eiendommen!
Eiendommen holder en gjennomgående god standard. Inneholder et romslig kjøkken, 3 soverom, bad, eget vaskerom og gjestetoalett. Utgang til flotte utearealer hvor man også har en overbygget uteplass, perfekt for lange sommerkvelder.
Hybelen har egen inngang. Inneholder stue med åpen kjøkkenløsning, bad og bod. Bod kan evt. bygges om til soverom. Det er vannbåren varme i hele huset.
Isolert anneks med innlagt strøm.
Stor garasje med lagringsloft.
Velkommen til en hyggelig visning!
Område
Legg til steder som er viktige for deg
På flyttefot? Tenk kjøp og salg samtidig.
Få din egen rådgiver gjennom hele kjøps- og salgsprosessen. Det starter med en verdivurdering.
Unngå doble boligrenter
Vi tilbyr gunstig forsikring.
Vurderer du utleie?
Få et tilbud fra Utleie KrogsveenHva koster lånet?
Sjekk estimert lånekostnadVil du varsles om lignende boliger?
Ved å lagre ditt boligsøk hos oss får du beskjed når vi har en bolig som ligner denne, før den legges ut på markedet!

