Vestre Sikthaugen 9
5 290 000 kr
121 m²
3 soverom
Solgt

Presenteres av
Henriette MuriPåkostet tomannsbolig, meget sentralt i Fyllingsdalen | Kjøkken fra 2023, bad fra 2025, moderne overflater!
Prisantydning
5 290 000 krOmkostninger
153 240 krTotalpris
5 443 240 kr
Pris
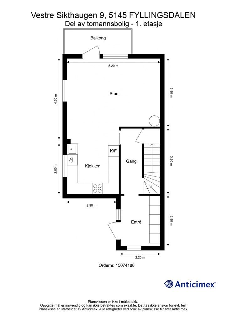
Bruksareal
133 m²BRA-I (internt bruksareal)
121 m²BRA-E (eksternt bruksareal)
12 m²TBA (terrasse-balkongareal)
5 m²
Areal
Etasje
3Byggeår
1957Soverom
3 soveromBad
2 badTomteareal
553 m² (eiet)Type
Halvpart vertikaldelt boligEierform
EietFasiliteter
Balkong/TerrasseEnergimerke
Oransje G
Nøkkelinfo
Unngå doble boligrenter
Vi tilbyr gunstig forsikring.
Vurderer du utleie?
Få et tilbud fra Utleie KrogsveenHva koster lånet?
Sjekk estimert lånekostnadBeskrivelse
Kort om eiendommen
Velkommen til Vestre Sikthaugen 9! En fin tomannsbolig med sentral beliggenhet og gode kollektive muligheter. Dette er en fin mulighet dersom man vil bo sentrumsnært men samtidig tilbaketrukket fra det urbane bylivet. Gangavstand til Oasen kjøpesenter som blant annet tilbyr dagligvarehandler, klesbutikker, restauranter, kafeer, treningssenter og mye mer.
Høydepunkter:
Bad i 2. etg. meget lekkert oppusset i 2025
Kjøkkeninnredning fra 2023
Alt elektrisk oppgradert i nyere tid
2 p-plasser under overbygg samt en oppstillingsplass på egen tomt
Fiber
Rør-i-rør
Busstopp like ved
Gangavstand til dagligvarebutikker, Oasen senter, bybanestopp, samt sykkeltunell til Minde
Flere fine turområder
Ca. 5 min med buss/bil fra Bergen sentrum
Varmepumpe og peisovn
Område
Legg til steder som er viktige for deg
På flyttefot? Tenk kjøp og salg samtidig.
Få din egen rådgiver gjennom hele kjøps- og salgsprosessen. Det starter med en verdivurdering.
Unngå doble boligrenter
Vi tilbyr gunstig forsikring.
Vurderer du utleie?
Få et tilbud fra Utleie KrogsveenHva koster lånet?
Sjekk estimert lånekostnadVil du varsles om lignende boliger?
Ved å lagre ditt boligsøk hos oss får du beskjed når vi har en bolig som ligner denne, før den legges ut på markedet!
På flyttefot? Slik gjør vi det enklere for deg
Skreddersydd flyttepakke
Vi fikser håndverkere, vask, pakking, lagring og transport, og legger ut for utgiftene underveis.
Hjelp med både kjøp og salg
Hos oss har du din egen rådgiver gjennom hele kjøps- og salgsprosessen.
Hjelp til finansiering
Vårt samarbeid med BN Bank sikrer deg rask og løsningsorientert hjelp, til konkurransedyktige betingelser.

