Seljeholtet 21E
9 900 000 kr
167 m²
4 soverom
Solgt

Familievennlig og attraktivt rekkehus med 4 soverom, stor markterrasse, hage og garasje m/elbillader – nær T-bane!
Prisantydning
9 900 000 krOmkostninger
268 490 krTotalpris
10 168 490 kr
Pris
Bruksareal
186 m²BRA-I (internt bruksareal)
167 m²BRA-E (eksternt bruksareal)
19 m²TBA (terrasse-balkongareal)
23 m²
Areal
Byggeår
1965Soverom
4 soveromBad
2 badTomteareal
2 416 m² (eiet)Type
RekkehusEierform
EietFasiliteter
Garasje/P-plass og Balkong/TerrasseEnergimerke
Oransje E
Nøkkelinfo
Unngå doble boligrenter
Vi tilbyr gunstig forsikring.
Vurderer du utleie?
Få et tilbud fra Utleie KrogsveenHva koster lånet?
Sjekk estimert lånekostnadBeskrivelse
Kort om eiendommen
Velkommen til Seljeholtet 21E!
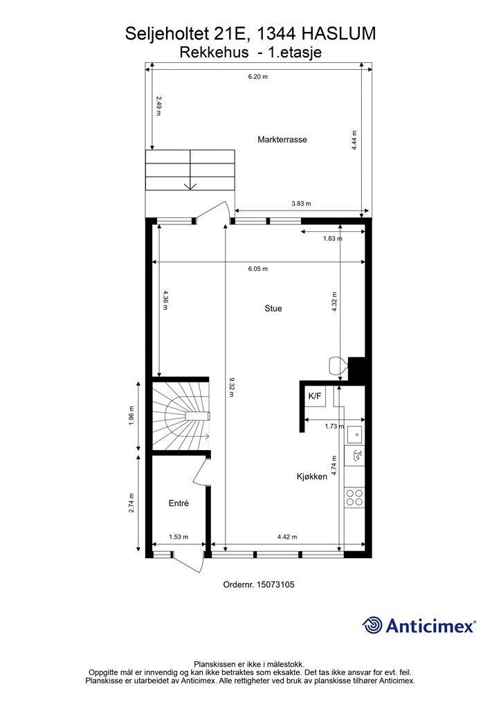
Et attraktivt og barnevennlig rekkehus med god planløsning og en fantastisk markterrasse med adkomst til hage. Boligen har fire soverom samlet på ett plan, lekkert kjøkken og delikat oppusset bad fra 2019. Vinduer i 1. og 2. etasje er nylig byttet, noe som gir lavere oppvarmingsbehov. Her bor du i et trygt og etablert boligområde med kort vei til skole, barnehage og T-bane.
Høydepunkter:
• Fire soverom på samme plan
• Lekkert kjøkken
• 2 bad, hvorav ett er nytt fra 2019
• Peis fra 2024
• Markterrasse på 23 kvm og hage
• God lagringsplass i 3 innvendige boder
• Garasje med elbillader + 2 p-plasser
• Trygg stikkvei foran huset – perfekt for lek!
• Gangavstand til skole, barnehage og T-bane
• Nymalt fasade (juli 2025).
Velkommen til visning!
Område
Legg til steder som er viktige for deg
På flyttefot? Tenk kjøp og salg samtidig.
Få din egen rådgiver gjennom hele kjøps- og salgsprosessen. Det starter med en verdivurdering.
Unngå doble boligrenter
Vi tilbyr gunstig forsikring.
Vurderer du utleie?
Få et tilbud fra Utleie KrogsveenHva koster lånet?
Sjekk estimert lånekostnadVil du varsles om lignende boliger?
Ved å lagre ditt boligsøk hos oss får du beskjed når vi har en bolig som ligner denne, før den legges ut på markedet!

