Lofstadåsen 15A
2 290 000 kr
50 m²
2 soverom
Solgt

Tromøy
Nyere selveierleilighet i 1. etasje med parkering i garasje! Vannbåren varme - 10 min. til byen - Opparbeidet uteareal
Prisantydning
2 290 000 krOmkostninger
68 290 krTotalpris
2 358 290 kr
Pris
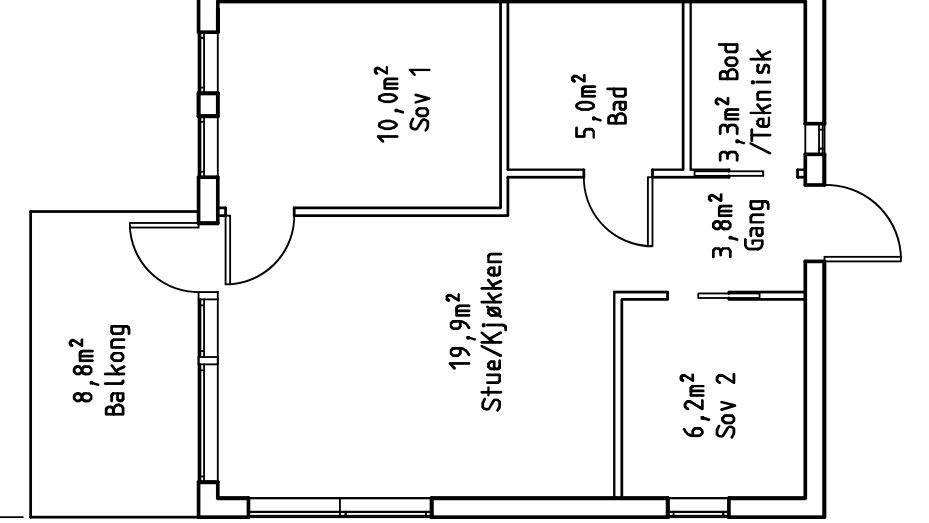
Bruksareal
68 m²BRA-I (internt bruksareal)
50 m²BRA-E (eksternt bruksareal)
18 m²TBA (terrasse-balkongareal)
8 m²
Areal
Etasje
1Byggeår
2023Soverom
2 soveromBad
1 badType
EierleilighetEierform
EierseksjonFellesutgifter
1 500 krEnergimerke
Rød C
Nøkkelinfo
Unngå doble boligrenter
Vi tilbyr gunstig forsikring.
Vurderer du utleie?
Få et tilbud fra Utleie KrogsveenHva koster lånet?
Sjekk estimert lånekostnadBeskrivelse
Kort om eiendommen
Trinnfri adkomst til nydelig leilighet fra 2023 på Lofstadåsen, Tromøy. Leiligheten har vannbåren varme i de fleste gulv og fremstår som meget innbydende. Leiligheten inneholder gang, stue/kjøkken, to soverom, bad/vaskerom og teknisk rom/bod. Det er en lun og fin terrasse på baksiden med lite innsyn, samt grøntarealer rundt. Det er asfaltert tun som krever lite vedlikehold. Tilhørende garasjeplass er tinglyst, fast plass med egen port og mulighet for elbillader (trekkerør klart til TKS-skap). Bygget ble malt utvendig i sommer.
Området er meget sentralt, ca. 5 min. til nærmeste matbutikk, gangavstand til bussholdeplass og ca. 10 minutter til Arendal sentrum. Det er også flotte turområder, kort vei til skole, badestrender og andre fine fasiliteter.
Område
Legg til steder som er viktige for deg
På flyttefot? Tenk kjøp og salg samtidig.
Få din egen rådgiver gjennom hele kjøps- og salgsprosessen. Det starter med en verdivurdering.
Unngå doble boligrenter
Vi tilbyr gunstig forsikring.
Vurderer du utleie?
Få et tilbud fra Utleie KrogsveenHva koster lånet?
Sjekk estimert lånekostnadVil du varsles om lignende boliger?
Ved å lagre ditt boligsøk hos oss får du beskjed når vi har en bolig som ligner denne, før den legges ut på markedet!

