Ruseløkkveien 49
6 000 000 kr
58 m²
1 soverom
Solgt

Presenteres av
Emilie LieVika/Frogner
Unik og lys toppleilighet sentralt i Vika! Inntil 4,59m takhøyde, idyllisk bakgård, attraktiv beliggenhet. Utleie mulig.
Prisantydning
6 000 000 krAndel fellesgjeld
1 565 krOmkostninger
161 040 krTotalpris
6 162 605 kr
Pris
Bruksareal
58 m²BRA-I (internt bruksareal)
58 m²TBA (terrasse-balkongareal)
10 m²
Areal
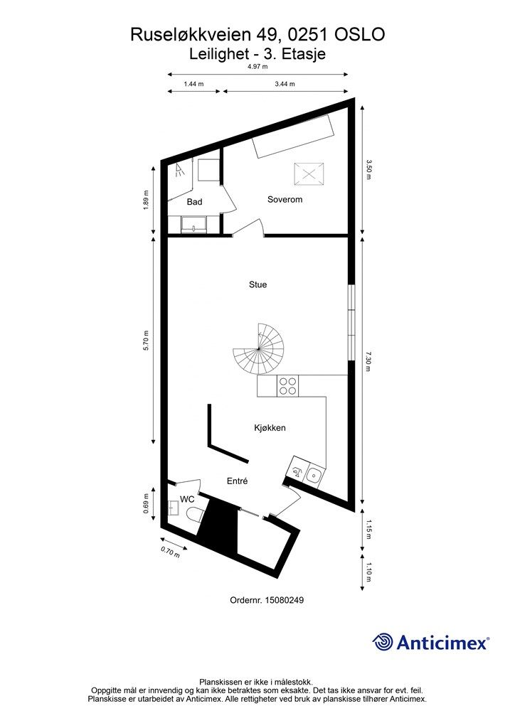
Etasje
3Byggeår
1860Soverom
1 soveromBad
1 badType
EierleilighetEierform
EierseksjonFellesutgifter
4 907 krEnergimerke
Oransje G
Nøkkelinfo
Unngå doble boligrenter
Vi tilbyr gunstig forsikring.
Vurderer du utleie?
Få et tilbud fra Utleie KrogsveenHva koster lånet?
Sjekk estimert lånekostnadDette liker selger best ved boligen
Det er midt i Oslo og helt stille. Jeg er fortsatt forundret over det. Det er en koselig bakgård hvor man har en hyggelig felles uteplass. Jeg elsker at jeg kan rusle ned til Aker brygge i morgenkåpe for å ta et tidlig morgenbad. Jeg syns det er fantastisk at man har plass til overnatting gjester og ellers bruke mesaninen både til å jobbe og å se tv/slappe av. Men det beste er takterrassen, den er så privat og så hyggelig. Både for morgen, dag og kveld. Peisen på terrassen forlenger kvelder og sesongen, det er virkelig hyggelig. Videre er det positivt at det er en toppleilighet over to plan, med generøs takhøyde på 4,57m i stue - i tillegg til en rekke andre positive kvaliteter som teglsteinsveggene, gulv i heltre på kjøkken, den unike vindeltrappen i stuen, den rolige bakgården og mer.
Beskrivelse
Kort om eiendommen
Velkommen til Ruseløkkveien 49!
Leiligheten ligger sentralt men rolig og tilbaketrukket til i Vika. Rett ved Aker Brygge, Slottsparken og Solli Plass, er dette en av byens absolutt mest populære beliggenheter. Boligen er unik, med nydelige kvaliteter som lys og åpen planløsning, peis, klassiske vinduer, lite innsyn og svært raus takhøyde.
Innhold: entré, stue/spisestue, soverom, bad, WC og kjøkken. Samt mesanin og privat takterrasse som ikke er byggemeldt, kjøper overtar risko, ansvar og kostnad for disse (se punkt ferdigattest).
Peis
Takhøyde inntil 4,59m
Rolig og sentralt
Idyllisk bakgård m sittegrupper
Nærhet til alt
Kort spasertur unna sjøbadet på Tjuvholmen
Velegnet også for utleie, pendling
Eier hatt 24 000 i utleieinntekt pr mnd
Velkommen
Område
Legg til steder som er viktige for deg
På flyttefot? Tenk kjøp og salg samtidig.
Få din egen rådgiver gjennom hele kjøps- og salgsprosessen. Det starter med en verdivurdering.
Unngå doble boligrenter
Vi tilbyr gunstig forsikring.
Vurderer du utleie?
Få et tilbud fra Utleie KrogsveenHva koster lånet?
Sjekk estimert lånekostnadVil du varsles om lignende boliger?
Ved å lagre ditt boligsøk hos oss får du beskjed når vi har en bolig som ligner denne, før den legges ut på markedet!
På flyttefot? Slik gjør vi det enklere for deg
Skreddersydd flyttepakke
Vi fikser håndverkere, vask, pakking, lagring og transport, og legger ut for utgiftene underveis.
Hjelp med både kjøp og salg
Hos oss har du din egen rådgiver gjennom hele kjøps- og salgsprosessen.
Hjelp til finansiering
Vårt samarbeid med BN Bank sikrer deg rask og løsningsorientert hjelp, til konkurransedyktige betingelser.

















































