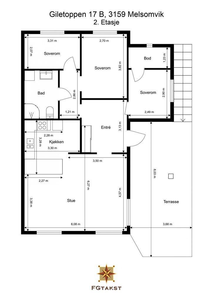
Giletoppen 17B
3 490 000 kr
83 m²
3 soverom
Solgt

Lekker halvpart av tomannsbolig! 3 soverom - stor overbygget veranda - gode solforhold - moderne innredet - parkering
Prisantydning
3 490 000 krOmkostninger
98 290 krTotalpris
3 588 290 kr
Pris
Bruksareal
88 m²BRA-I (internt bruksareal)
83 m²TBA (terrasse-balkongareal)
30 m²
Areal
Etasje
2Byggeår
2009Soverom
3 soveromBad
1 badType
Halvpart horisontaldelt boligEierform
EierseksjonFasiliteter
Balkong/TerrasseFellesutgifter
500 krEnergimerke
Rød C
Nøkkelinfo
Unngå doble boligrenter
Vi tilbyr gunstig forsikring.
Vurderer du utleie?
Få et tilbud fra Utleie KrogsveenHva koster lånet?
Sjekk estimert lånekostnadBeskrivelse
Kort om eiendommen
Velkommen til Giletoppen 17B!
En lys og lekker halvpart av horisontaldelt tomannsbolig med flott og moderne standard. Lys og pen stue i delvis åpen løsning mot kjøkkenet med god takhøyde som gjør rommene meget luftig. Stue har flere møbleringsmuligheter og kjøkkenet er stort med god plass til spisebord. Det er direkte utgang til syd/vestvendt og romslig veranda ved inngangspartiet som er delvis overbygget og har plass til flere møbelgrupper, her kan kveldssolen nytes i fine omgivelser.
Leiligheten ligger plassert i et barnevennlig og veletablert nabolag uten boplikt midt mellom Melsomvik og Vear. Kort vei til badestrand og båthavn, golfbane som nærmeste nabo samt kort vei til buss, jernbane og flyplass på Torp.
Velkommen til visning!
Område
Legg til steder som er viktige for deg
På flyttefot? Tenk kjøp og salg samtidig.
Få din egen rådgiver gjennom hele kjøps- og salgsprosessen. Det starter med en verdivurdering.
Unngå doble boligrenter
Vi tilbyr gunstig forsikring.
Vurderer du utleie?
Få et tilbud fra Utleie KrogsveenHva koster lånet?
Sjekk estimert lånekostnadVil du varsles om lignende boliger?
Ved å lagre ditt boligsøk hos oss får du beskjed når vi har en bolig som ligner denne, før den legges ut på markedet!

