Øvre Stokkavei 20B
5 200 000 kr
118 m²
2 soverom
Solgt

EIGANES
Fint rekkehus i attraktivt område på Eiganes. Solrik terrasse, 2 sov, bad, wc, 2 stuer, vaskerom, garasje.
Prisantydning
5 200 000 krOmkostninger
141 040 krTotalpris
5 341 040 kr
Pris
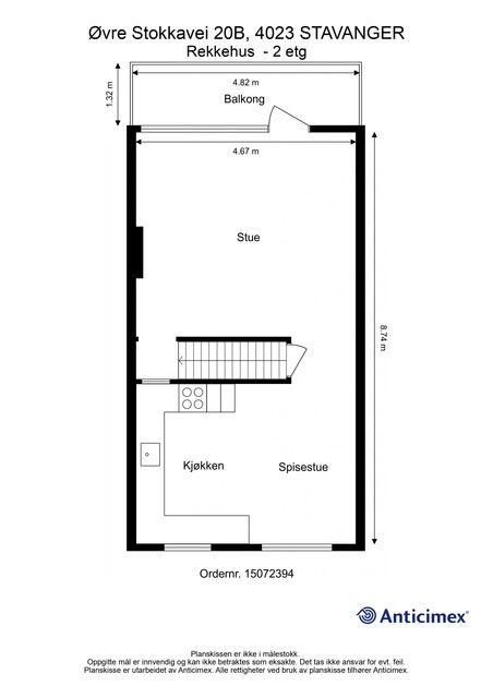
Bruksareal
136 m²BRA-I (internt bruksareal)
118 m²BRA-E (eksternt bruksareal)
18 m²TBA (terrasse-balkongareal)
50 m²
Areal
Byggeår
1958Soverom
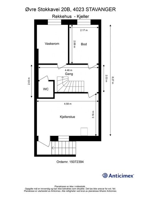
2 soveromBad
1 badType
RekkehusEierform
EierseksjonFasiliteter
Garasje/P-plass og Balkong/TerrasseEnergimerke
Rød F
Nøkkelinfo
Unngå doble boligrenter
Vi tilbyr gunstig forsikring.
Vurderer du utleie?
Få et tilbud fra Utleie KrogsveenHva koster lånet?
Sjekk estimert lånekostnadBeskrivelse
Kort om eiendommen
*Rekkehus med fin beliggenhet, stor terrasse med gode solforhold, god plass til hagemøbler og grill
*Tilbaketrukket beliggenhet på Eiganes, likevel sentralt med gangavstand til Stavanger sentrum
*Parkering i garasje med elbil-lader som medfølger
*Boligen har hovedsakelig parkett på gulv, tapet på vegger
*2 soverom og bad på samme plan
*Helfliset bad som var nytt i 2012
*Innredet kjeller med vaskerom, wc, kjellerstue og bod med god lagringsplass
*Stue med utgang til sørvendt balkong
*Fint kjøkken med flott utsikt mot Lille Stokkavann
*Vedovn
*Parkering i garasje
*Loft med lagringsplass
*Kort gåavstand til skoler, barnehager, dagligvarebutikker
*Gangavstand til turområder som Mosvannet , Lille Stokkavann og Store Stokkavannet
*Fiber fra Lyse
Område
Legg til steder som er viktige for deg
På flyttefot? Tenk kjøp og salg samtidig.
Få din egen rådgiver gjennom hele kjøps- og salgsprosessen. Det starter med en verdivurdering.
Unngå doble boligrenter
Vi tilbyr gunstig forsikring.
Vurderer du utleie?
Få et tilbud fra Utleie KrogsveenHva koster lånet?
Sjekk estimert lånekostnadVil du varsles om lignende boliger?
Ved å lagre ditt boligsøk hos oss får du beskjed når vi har en bolig som ligner denne, før den legges ut på markedet!

