Sætraveien 8
4 490 000 kr
147 m²
3 soverom
Komplett salgsoppgave

Sørumsand
Sjarmerende enebolig over tre plan med idyllisk beliggenhet og fantastiske uteplasser - Kledning og terrasse fra 2024!
Prisantydning
4 490 000 krOmkostninger
133 240 krTotalpris
4 623 240 kr
Pris
Bruksareal
184 m²BRA-I (internt bruksareal)
147 m²BRA-E (eksternt bruksareal)
37 m²TBA (terrasse-balkongareal)
100 m²
Areal
Etasje
3Byggeår
1947Soverom
3 soveromBad
2 badTomteareal
1 302 m² (eiet)Type
Enebolig - FrittliggendeEierform
EietFasiliteter
Garasje/P-plass og Balkong/TerrasseEnergimerke
Oransje G
Nøkkelinfo
Unngå doble boligrenter
Vi tilbyr gunstig forsikring.
Vurderer du utleie?
Få et tilbud fra Utleie KrogsveenHva koster lånet?
Sjekk estimert lånekostnadBeskrivelse
Kort om eiendommen
Velkommen til Sætraveien 8, en sjarmerende enebolig over to plan med idyllisk, landlig beliggenhet, kun fire minutter fra Sørumsand sentrum. Huset har de siste årene fått flere betydelige oppgraderinger, blant annet etterisolering, ny kledning, nyere vinduer, peisovn og varmepumpe. I tillegg kan du glede deg over en stor, ny terrasse og steinlagt gårdsplass. Eiendommen byr ellers på gode sol- og utsiktsforhold, samt umiddelbar nærhet til flotte tur- og rekreasjonsområder. I Sørumsand sentrum finner du alt du trenger i hverdagen – fra dagligvarebutikker og restauranter til treningssentre og idrettsanlegg. Flere høydepunkter:
- Garasje og elbillader
- Stor, inngjerdet hage
- Vindfang pusset opp i 2025
- Kjeller med god lagringsplass
- Kun 100 meter til bussholdeplass
Velkommen til visning
Innhold og byggemåte
Innhold og byggemåte
Eiendommen
Sætraveien 8, 1920 SØRUMSAND
Kommunenummer 3205, gårdsnummer 323, bruksnummer 74, ideell andel 1/1
Innhold
Totalt bruksareal BRA: 184 kvm (inkl frittstående garasje).
BRA-i:
Kjeller 46 kvm: Trappegang, bad, vaskerom og treningsrom.
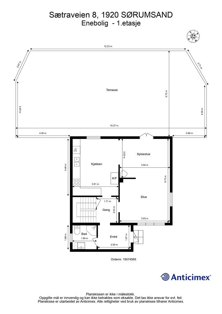
1. etasje 60 kvm: Entré, gang, bad, stue, spisestue og kjøkken.
2. etasje 41 kvm: Trappegang og tre soverom.
Åpent areal:
1. etasje 100 kvm: Terrasse.
BRA-e: Garasje:
1. etasje 37 kvm: Frittstående garasje.
Loftsetasjen har et totalt gulvareal (GUA) på 52 kvm, men grunnet lav takhøyde/skråtak er det kun 41 kvm av arealet som er måleverdig som bruksareal. Delen som har lav himlingshøyde (ALH) utgjør 11 kvm.
Vedlagte plantegninger er ikke målbare. De oppgitte arealer er hentet fra rapport med befaringsdato 20.08.2025 utført av Anticimex. Arealene er beregnet og rom er definert etter dagens faktiske bruk, uavhengig av hva som er godkjent av bygningsmyndighetene.
Standard
E N T R É
Boligen ønsker deg velkommen med et innbydende inngangsparti, hvor det er god plass til en sittegruppe – perfekt for å nyte morgenkaffen i rolige omgivelser. Videre kommer du inn i en romslig entré, som ble utvidet og oppgradert i 2025. Her er det rikelig med plass til å henge yttertøy og sette fra seg sko. Gulvet har praktiske fliser med gulvvarme.
K J Ø K K EN
Kjøkkenet har malte, profilerte fronter og laminert benkeplate. Veggene består av trepanel, malte panelplater og en mursteinsvegg mot stuen, som passer godt til boligens landlige stil. Rommet er ellers utstyrt med nedfelt oppvaskkum, komfyr med keramisk platetopp, oppvaskmaskin og frittstående kjøleskap med fryser. Alle hvitevarer på kjøkkenet medfølger. For øvrig rikelig med med både skap- og benkeplass.
S T U E
Stuen er romslig og har god plass til både sofagruppe og spisebord. En moderne peisovn gir ekstra varme på kjølige dager og fungerer som et godt supplement til varmepumpen på kjøkkenet. Store vindusflater gir rikelig med naturlig lys, og det er direkte utgang til en terrasse på ca. 100 kvm. Terrassen har god plass til utemøbler og større sammenkomster, og leder ned til en inngjerdet hage som kan lukkes helt dersom du setter inn porter – et trygt og fint område for både barn og husdyr.
B A D E R O M
I tilknytning til entréen ligger hovedbadet, som ble renovert i 2001. Badet har flislagt gulv med elektrisk gulvvarme, malte strievegger, heldekkende servant med underskap, dusjkabinett med glassdører og gulvmontert toalett. I kjelleren finnes et større baderom og et romslig vaskerom, begge av eldre dato. Rommene har flislagte gulv og malte murvegger.
S O V E R O M
Boligen har tre soverom, alle plassert i 2. etasje. I dagens planløsning ligger kontor/gjesterom i forlengelse av hovedsoverommet, men det er mulig å sette opp en lettvegg for å skille rommene ved behov. Alle soverommene har plass til seng og garderobeløsning, og hovedsoverommet har garderobe integrert i kneveggen.
K J E L L E R
Kjelleren inneholder, i tillegg til bad og vaskerom, en mellomgang og et stort rom som i dag brukes som treningsrom. Treningsrommet har flislagt gulv, malte murvegger og nytt vindu som tilfredsstiller krav til rømningsvei. Rommet kan innredes etter eget behov og eventuelt fungere som et ekstra soverom.
Løsøre og tilbehør
Vi viser til liste fra Norges Eiendomsmeglerforbund som gjelder fra 01.01.2020 angående løsøre og tilbehør.
Oppvarming
Boligen er elektrisk oppvarmet kombinert med vedfyring i stue og luft-til-luft varmepumpe på kjøkken. Varmekabler i gulv i entré/vindfang og på baderom i 1. etasje.
Dersom beboelsesrom ikke har vegg- eller fastmonterte varmekilder ved visning, følger dette heller ikke med.
Ferdigattest/brukstillatelse
Eiendommen har vært brukt til boligformål siden 1947.
Kommunen opplyser at det ikke foreligger ferdigattest, midlertidig brukstillatelse eller godkjente bygningstegninger for eiendommen. Det finnes av den grunn ikke dokumentasjon over eiendommens lovlighet.
Det foreligger ferdigattest på rehabilitering av skorstein datert 18.10.2005.
Det gjøres oppmerksom på at det ikke lenger utstedes ferdigattest på tiltak det er søkt om før 1998 jf. plan- og bygningsloven § 21-10. Kommunen vil ikke kreve ferdigattest for disse tiltakene og vil avvise eventuelle søknader. Bestemmelsen innebærer ikke at tiltak med manglende søknad blir lovlige, men at man ikke trenger å avslutte gamle byggesaker. Normalt sett kreves ferdigattest for alle søknadspliktige tiltak som gjøres etter plan- og bygningsloven.
Tinglyste heftelser og rettigheter
Eiendommen overdras fri for pengeheftelser.
Det er tinglyst følgende servitutter på eiendommen:
Dagboknr 2443, tinglyst 15.09.1952, type heftelse: Bestemmelse om vannledning.
Dagboknr 2649179, tinglyst 25.06.2020, type heftelse: Erklæring/avtale - bestemmelser om felles avløpspumpe.
Servituttene vil følge eiendommen. Kjøpers bank vil få prioritet etter ovennevnte heftelser og servitutter.
Eventuell adgang til utleie
Eiendommen har ikke separat utleieenhet. Det vil normalt være anledning til utleie av hele eiendommen eller enkeltrom, såfremt utleiearealet er bygningsmessig godkjent for varig opphold og har forsvarlige radonnivåer.
Diverse
Selger opplyser at det var observert mus i boligen før de skiftet kledning, men at de ikke har sett noen etter det ble skiftet og boligen ble etterisolert.
Videre har nåværende eier en avtale med nabo som går ut på at de betaler hele strømregningen for felles kloakkpumpe, mot at nabo vedlikeholder gresset og brøyter på vinteren.
Tilbud av produkter og tjenester fra våre samarbeidspartnere
VI er opptatt av verdiskapning, og har knyttet til oss samarbeidspartnere som skal sikre våre kunder de beste produkter og tjenester;
• Gjensidige leverer boligselgerforsikring og tilbyr bygningsforsikring
• Boligkjøperforsikring levers av Hiscox og med Sedgwick som skadebehandler, og er formidlet gjennom Gjensidige.
• BN bank tilbyr finansieringsløsninger
• Vår avdeling Krogsveen Pluss tilbyr flyttetjenester som utvask, visningsvask, lager, tømming og transport av flyttelass, i tillegg til å formidle kontakt med Flip for overflateoppussing.
• I forbindelse med overtagelse av eiendommen tilbyr Overo avtale om strøm, alarm og bredbånd.
• Krogsveen er, sammen med øvrige bransjeaktører, medeier i den digitale annonseringsplattformen Hjem.
Beliggenhet og tomteforhold
Beliggenhet og tomteforhold
Beliggenhet
Boligen ligger i et landlig og idyllisk område like utenfor Sørumsand sentrum (kun 4 minutter med bil). Området er kjent for sitt trygge miljø og gode naboskap, med høy score på opplevd trygghet og kvalitet på skoler. Sørumsand er spesielt anbefalt for familier med barn, etablerere og godt voksne, og det finnes et bredt tilbud av både offentlige og private tjenester i umiddelbar nærhet.
I Sørumsand sentrum finner du Sørumsand stasjon som har hyppige avganger med buss og tog. Fra Sørumsand går det tog på linje F1 og R14, som gir enkel tilgang til Oslo og andre sentrale knutepunkter. Reisetiden til Oslo Gardermoen er kun 29 minutter, noe som gjør det lettvint for reisende å komme til og fra flyplassen. Nærmeste bussholdeplass er Fossum Stasjon som ligger kun 100 menter fra boligen. Kollektivtilbudet på Sørumsand gjør området svært attraktivt for dem som ønsker enkel og effektiv transport i hverdagen.
I sentrum finner du et bredt utvalg av servicetilbud, blant annet dagligvarebutikker, treningssentre og Fokus kjøpesenter, som huser både vinmonopol, apotek og frisør. For badeglade anbefales Kuskerudnebben, et kommunalt fritidsbad ved Glomma. Her er det temperert vann, dusjanlegg, garderober og kiosk – et populært sommersted for både barn og voksne. Området byr videre på gode muligheter for trening og fritidsaktiviteter. I sentrum finner du treningssentrene Spenst, Trento og Mova, alle med moderne fasiliteter. For idrett og innendørsaktiviteter ligger både Bingsfosshallen, SIF-hallen og idrettsparken bare en kort sykkel- eller kjøretur unna. Flotte turmuligheter langs Glomma.
Adkomst
For veibeskrivelse se Google maps - det er enkelt å finne frem i kartet.
Det vil bli skiltet med Krogsveen visningsskilt ved fellesvisninger.
Barnehager, skoler og fritid
Camembert'n Kanvas-barnehage (1-5 år): 2.7 km
Sennerud Fus barnehage (0-5 år): 3.1 km
Skogkanten barnehage (0-5 år): 3.8 km
Sørumsand skole (1-7 kl.): 4 km
Sørum skole (1-7 kl.): 7 km
Blaker skole (1-7 kl.): 7.9 km
Bingsfoss ungdomsskole (8-10 kl.): 2.7 km
Sørumsand videregående skole: 3.2 km
Hvam videregående skole: 17.5 km
Informasjon om tilhørende skolekretser er hentet fra Prognosesenteret som dataleverandør, og tilhørigheten kan årlig endres av kommunen. Dersom skole- og barnehagetilbud er av betydning for kjøpet, ber vi om at det rettes en særskilt henvendelse til kommunen/bydelsadministrasjonen for oppdatert informasjon.
Beskrivelse av tomt
Eiertomt på 1 302 kvm. Tomten er opparbeidet med gressplen, hekk, prydbusker og diverse beplantning. Gårdsplass er opparbeidet med belegningsstein.
Tomten er ikke oppmålt i nyere tid og har derfor usikre grenser. Kjøper overtar risiko for et eventuelt avvik.
Parkering
Gode parkeringsmuligheter på egen steinlagt gårdsplass og i garasje. Det er montert elbillader utendørs.
Forøvrig gateparkering etter områdets bestemmelser.
Vei, vann og avløp
Eiendommen har adkomst via privat vei med felles vedlikeholdsansvar.
Eiendommen er tilknyttet privat vannverk (Blaker Vannverk). Eier er selv ansvarlig for private stikkledninger til boligen.
Regulerings-og arealplaner
Eiendommen ligger i et uregulert område, men er i kommuneplan datert avsatt til LNF (landbruks-, natur og friluftsområde).
Utsnitt av plan med tilhørende bestemmelser kan fås ved henvendelse til megler.
Økonomi
Økonomi
Kommunale utgifter
Kommunale avgifter var på 12.672,- i 2024. I dette inngår a-konto avløpsgebyr, fast gebyr avløp, renovasjon og feiing/tilsyn.
Videre er boligen tilknyttet Blaker vannverk hvor kostnad avhenger av antall personer i husstanden. Det betales et fast gebyr på 1.840,- samt 460,- per person. Nåværende eier betaler 2.760,- per år. Vanngebyret faktureres med en halvdel i mars og en halvdel i september.
Nåværende eier har et strømforbruk som tilsvarer ca. 8.400 kwh. pr. år.
Boligen har en årlig forsikringspremie på kr 17.000,- per år.
Boligen er tilknyttet Altibox som leverandør av kabel-tv og internett. Avgift på kr 1.000,- pr. mnd. Tv-tuner/dekoder medfølger.
Utgiftene er basert på nåværende eiers forbruk og avtaler.
Formuesverdi
Formuesverdi for 2023 var kr 1 113 122,- ifølge skatteetaten. Beløpet forutsetter at eier bor fast i boligen (primærbolig).
Ved eventuell øvrig bruk av eiendommen (f.eks. fritidsbolig, pendlerbolig, utleieobjekt) var formuesverdien for 2023 kr 4 452 486,-.
Formuesverdien justeres normalt årlig. Se skatteetaten.no for mer informasjon om fastsettelse av formuesverdien.
Omkostninger
4 490 000,00 Prisantydning
Omkostninger
112 250,00 Dokumentavgift til staten (2,5% av kjøpesum)
19 900,00 Gjensidige Boligkjøperpakke (valgfri)
545,00 Tinglysing panterettsdokument
545,00 Tinglysing skjøte
--------------------------------------------------------
133 240,00 Omkostninger totalt
--------------------------------------------------------
4 623 240,00 Totalpris inkl. omkostninger
--------------------------------------------------------
Tilbud om lånefinansiering
Megler formidler gjerne kontakt med rådgiver hos Trøgstad Sparebank. De har konkurransedyktige betingelser samt rask og løsningsorientert behandling av din lånesøknad.
Betalingsbetingelser
Kjøpesum inkludert omkostninger, samt pantedokument tilknyttet eventuelt lån, skal være disponibelt hos megler 2 virkedager før overtagelsen.
Annen viktig informasjon
Annen viktig informasjon
Eier
William Bratli-Westvang og Daniel Sand Westvang
Overtakelse
Etter nærmere avtale.
Boligselgerforsikring
Selger har i forbindelse med salget tegnet boligselgerforsikring levert av Gjensidige.
Boligselgerforsikringen dekker selgers ansvar etter avhendingsloven begrenset oppad til kr 14 millioner. Dersom kjøper oppdager forhold ved eiendommen som hen mener utgjør en mangel ved eiendommen, vil Gjensidige behandle reklamasjonen på vegne av selger. Forsikringsvilkår kan fås ved henvendelse til megler.
Vedlagt salgsoppgaven følger selgers egenerklæringsskjema og tilstandsrapport. Interessenter må sette seg inn i dokumentene før bud inngis.
Boligkjøperforsikring
Innen kontraktsmøtet må kjøper ta stilling til om det ønskes å bestille Boligkjøperpakken gjennom Gjensidige. I denne gunstige pakken er boligen ferdig forsikret og inkluderer rettshjelpsforsikring, også kalt Boligkjøperforsikring. Rettshjelpsforsikring gir trygghet og tilgang på profesjonell juridisk hjelp dersom det oppdages uventede feil eller mangler det første året etter overtagelse. Forsikringsselskapet behandler i så fall ethvert mangelskrav kjøper måtte ha overfor selger.
Boligkjøperpakken inkluderer bygningsforsikring for hus og hytte, innboforsikring, flytteforsikring og dobbel rentedekning - i situasjoner hvor kjøper ikke får solgt nåværende primærbolig.
Kjøper mottar ingen særskilt faktura for Boligkjøperpakken da kostnaden det første året legges til kjøpesummen for boligen. Det gjøres oppmerksom på Krogsveen mottar et honorar for denne formidlingen.
Produktark for Boligkjøperpakken ligger vedlagt i salgsoppgaven.
Dersom ikke boligkjøperpakke ønskes kan kun rettshjelpsforsikring, også kalt boligkjøperforsikring, tegnes særskilt via megler. Rettshjelpsforsikringen varer i 5 år fra overtagelse og leveres gjennom Gjensidige. Ta kontakt med megler for ytterligere informasjon.
Selskap og privatpersoner som driver med kjøp/salg/utvikling som ledd i egen næringsvirksomhet kan ikke tegne boligkjøperpakke eller rettshjelpsforsikring.
Budgivning
Forbrukerinformasjon om budgivning er vedlagt denne salgsoppgaven og er også på vår hjemmeside Krogsveen.no. Alle bud og budforhøyelser må inngis skriftlig. I tillegg må legitimasjon være fremlagt sammen med signatur fra budgiver.
Vi oppfordrer til å gi bud elektronisk via GI BUD-knappen på eiendommens hjemmeside på Krogsveen.no. Da vil samtlige vilkår bli oppfylt.
Eventuelle forhøyelser eller endringer av budet kan bekreftes pr SMS eller på e-post. Vi oppfordrer alltid til å kontakte megler pr. telefon i tillegg da forsinkelser i SMS og e-post kan forekomme.
For at budene skal kunne bli behandlet og videreformidlet skriftlig til alle involverte parter, må alle bud ha en tilstrekkelig lang akseptfrist, jf. eiendomsmeglingsforskriften § 6-3.
Selger må også skriftlig akseptere budet før aksept kan formidles til budgiver. Akseptfrist bør derfor være på minimum 30 minutter, og budforhøyelser må derfor skje i god tid før fristens utløp.
Bud i forbrukerforhold kan uansett ikke settes med kortere frist enn kl. 12.00 første virkedag etter siste annonserte visning. I tillegg kan ikke budet ha forbehold om at det skal holdes hemmelig ovenfor øvrige interessenter. Megler har iht lov om eiendomsmegling ikke anledning til å videreformidle disse budene, og de vil dermed heller ikke bli journalført.
Etter at eiendommen er solgt vil kjøper og selger få tilsendt budjournal. Øvrige budgivere kan få utlevert kopi av budjournalen i anonymisert form.
Hvitvaskingsreglene
I henhold til lov om hvitvasking og terrorfinansiering har megler plikt til å gjennomføre kontrolltiltak overfor kunder, herunder fullmektiger. Dette innebærer bl.a. å bekrefte kunders og reelle rettighetshaveres identitet på bakgrunn av fremvist gyldig legitimasjon eller på annen godkjent måte, samt å innhente opplysninger om kundeforholdets formål og tilsiktede art.
Dersom slike kundetiltak ikke kan gjennomføres, kan megler ikke etablere kundeforholdet eller utføre transaksjonen.
Hvis kjøper ikke bidrar til gjennomføring av kundekontrollen og dette fører til at transaksjonen blir forsinket eller ikke kan gjennomføres, vil dette ansees som mislighold av avtalen og gi selger rettigheter etter avhendingslova kapittel 5. I tilfeller der selger ikke bidrar til gjennomføring av løpende kundekontroll underveis i oppdraget, er det selger som misligholder sine forpliktelser etter avtalen og gi kjøper rettigheter etter avhendingslovens kapittel 4. Partene er selv ansvarlige for eventuelle kostnader og ansvar dette kan medføre. Eiendomsmegleren eller eiendomsmeglingsforetaket kan ikke holdes ansvarlig for de konsekvenser dette vil kunne få for partene eller andre som har interesser i eiendomshandelen.
Kjøper oppfordres til å innbetale kjøpesummen som ikke kommer fra låneinstitusjon i én samlet innbetaling fra egen konto i norsk bank. Megler har plikt til å melde fra til Økokrim om eiendomshandler som fremstår som mistenkelige. Melding sendes Økokrim uten at partene varsles.
Personopplysningsloven
I henhold til personopplysningsloven gjør vi oppmerksom på at interessenter kan bli registrert for videre oppfølging.
Lovanvendelse
Generelle bestemmelser
Salgsoppgaven er basert på de opplysningene selger har gitt til megler, den bygningssakyndiges tilstandsrapport, samt opplysninger innhentet fra kommunen, Kartverket og andre tilgjengelige kilder. Det er viktig at kjøper setter seg grundig inn i alle salgsdokumentene, herunder salgsoppgave, tilstandsrapport og selgers egenerklæring. Kjøper anses kjent med forhold som er tydelig beskrevet i salgsdokumentene, og slike forhold kan ikke påberopes som mangler. Dette gjelder uavhengig av om kjøper har lest dokumentene. Alle interessenter oppfordres til å undersøke eiendommen nøye, gjerne sammen med fagkyndig før bud inngis. Kjøper som velger å kjøpe usett kan ikke gjøre gjeldende som mangel noe han burde blitt kjent med ved undersøkelsen.
Dersom det er behov for avklaringer, anbefaler vi at interessenter rådfører seg med eiendomsmegler eller egne rådgivere før det legges inn bud.
En bolig som har blitt brukt i en viss tid, har vanligvis blitt utsatt for slitasje og skader kan ha oppstått. Slik bruksslitasje må kjøper regne med, og det kan avdekkes enkelte forhold etter overtakelse som nødvendiggjør utbedringer. Normal slitasje og skader som nødvendiggjør utbedring, er innenfor hva kjøper må forvente og vil ikke utgjøre en mangel.
Kjøper og selgers rettigheter og plikter reguleres av avtalen mellom partene, samt informasjonen som har vært tilgjengelig for kjøperen i forbindelse med handelen. Avtalen utfylles av avhendingsloven, og det gjelder ulike avtalevilkår avhengig av om kjøper er forbrukerkjøper eller ikke. Dette er nærmere beskrevet nedenfor.
På grunn av ulike avtalevilkår kan selger vurdere bud fra en som ikke er forbruker, ulikt fra en forbrukers bud. Dersom kjøper ikke er forbruker, er selger sitt mulige mangelsansvar begrenset fordi eiendommen selges "som den er". Selger kan ikke ta «som den er»- forbehold overfor en forbrukerkjøper. Selv et lavere bud fra en som ikke er forbruker kan foretrekkes fordi begrensningen i mulig mangelsansvar kan ha egenverdi for selger. Selger står fritt til å forkaste eller akseptere ethvert bud, og er for eksempel ikke forpliktet til å akseptere høyeste bud.
Budgiver skal i budskjema avgi egenerklæring om budgiver er forbruker eller næringsdrivende/ person som hovedsakelig handler som ledd i næringsvirksomhet. Budgivere får informasjon dersom andre bud er inngitt av en som ikke er forbruker.
Forbrukerkjøp - definisjon
Med forbrukerkjøp menes kjøp av eiendom når kjøperen er en fysisk person som ikke hovedsakelig handler som ledd i næringsvirksomhet.
Forbruker – avtalevilkår
Eiendommen har en mangel dersom den ikke er i samsvar med kravene som følger av avtalen, eller det foreligger brudd på bestemmelsene i avhendingsloven §§ 3-2 til 3-8. Hvis eiendommen ikke er i samsvar med det kjøperen må kunne forvente ut ifra alder, type og synlig tilstand, kan det være grunnlag for mangelskrav. Det samme gjelder hvis det er holdt tilbake eller gitt uriktige opplysninger om eiendommen. Dette gjelder likevel bare dersom man kan gå ut ifra at det virket inn på avtalen at opplysningen ikke ble gitt eller at mangelskravet ikke blir rettet i tide på en tydelig måte.
Boligen kan ha en mangel etter avhendingsloven § 3-3 andre ledd, dersom det er avvik mellom opplyst og faktisk innvendig areal, forutsatt at avviket er på 2% eller mer og minimum 1 kvm.
Ved beregning av et eventuelt prisavslag eller erstatning må kjøper selv dekke tap/kostnader opptil et beløp på kr 10 000 (egenandel).
Ikke-forbruker (næringsdrivende) – definisjon
Hvis kjøper er en juridisk person, eller en fysisk person som hovedsakelig handler som ledd i næringsvirksomhet, vil kjøpet ikke anses som et forbrukerkjøp.
Ikke-forbruker – avtalevilkår
Eiendommen har en mangel dersom den ikke er i samsvar med kravene som følger av avtalen.
Eiendommen selges «som den er», og selgers ansvar utover det konkret avtalte er da begrenset etter avhendingsloven § 3-9, første ledd andre setning.
Avhendingsloven § 3-3 andre ledd fravikes, og hvorvidt boligens arealsvikt utgjør en mangel vurderes etter avhendingsloven § 3-8.
Informasjon om kjøpers undersøkelsesplikt, herunder oppfordringen om å undersøke eiendommen nøye, gjelder også for kjøpere som ikke anses som forbrukere.
Det forutsettes at hjemmel overføres til kjøper. Hvis kjøper ikke ønsker hjemmelsoverføring av eiendommen, må det tas forbehold om dette i budet.
Meglers vederlag
Meglers vederlag betales av selger og er avtalt til:
Vederlag: kr. 60.000,-
Vederlag:
Kontroll av hjemmel og heftelser kr 2 900,-
Markedsføringspakke kr 27 400,-
Oppgjør kr 7 500,-
Tilrettelegging kr 17 000,-
Visninger 2.900,- pr stk (3 første gratis)
Utlegg:
Innhenting av offentlige opplysninger kr 1 117,-
Tinglysing sikring kr 545,-
Andre utgifter:
Foto ca. kr 6 000,-
Tilstandsrapport fra Anticimex kr 20 625,-
Opplysninger om oppdraget
Oppdragsnummer 60-0258/25
Eiendomsmegler Krogsveen AS, avd. Lillestrøm
Adolph Tidemands gate 38, 2000, LILLESTRØM
950 007 613
Oppdragets KR-kode KR60.25258
Dato
Sist oppdatert: 13. januar 2026 kl. 13:11
Dokumenter
Dokumenter
PDF – 1012 KB
PDF – 747 KB
PDF – 552 KB
PDF – 656 KB
PDF – 872 KB
PDF – 312 KB
PDF – 29 KB
PDF – 127 KB
PDF – 392 KB
Område
Legg til steder som er viktige for deg
Visning
Unngå doble boligrenter
Vi tilbyr gunstig forsikring.
Vurderer du utleie?
Få et tilbud fra Utleie KrogsveenHva koster lånet?
Sjekk estimert lånekostnadVil du varsles om lignende boliger?
Ved å lagre ditt boligsøk hos oss får du beskjed når vi har en bolig som ligner denne, før den legges ut på markedet!

