Fredsbergvegen 19
2 150 000 kr
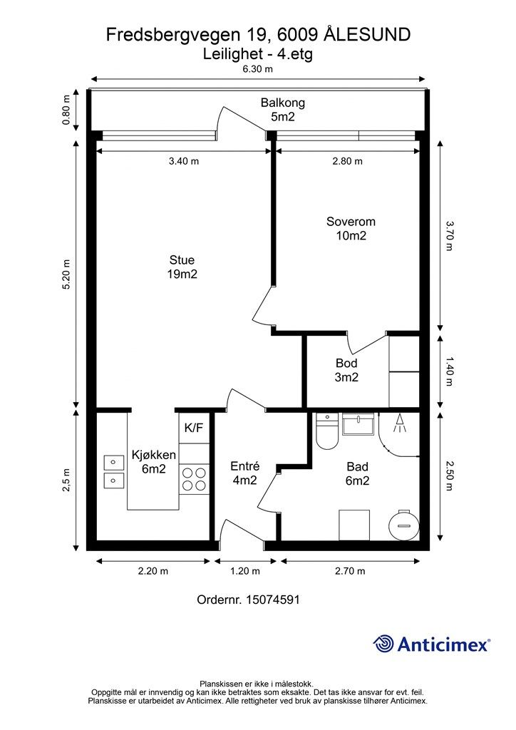
50 m²
1 soverom
Solgt

Larsgården
2-roms andelsleilighet | Balkong| P-plass i garasjeanlegg | Pent opparbeidet fellesareal
Prisantydning
2 150 000 krAndel fellesgjeld
373 417 krOmkostninger
11 040 krTotalpris
2 534 457 kr
Pris
Bruksareal
54 m²BRA-I (internt bruksareal)
50 m²BRA-E (eksternt bruksareal)
4 m²TBA (terrasse-balkongareal)
5 m²
Areal
Etasje
4Byggeår
1978Soverom
1 soveromBad
1 badType
AndelsleilighetEierform
AndelFasiliteter
Garasje/P-plass og Balkong/TerrasseFellesutgifter
4 392 krEnergimerke
Rød F
Nøkkelinfo
Unngå doble boligrenter
Vi tilbyr gunstig forsikring.
Vurderer du utleie?
Få et tilbud fra Utleie KrogsveenHva koster lånet?
Sjekk estimert lånekostnadBeskrivelse
Kort om eiendommen
Krogsveen Sunnmøre v/Eiendomsmegler Christian Nogva Aarseth har gleden av å presentere en 2-roms andelsleilighet i et godt drevet borettslag med flotte fellesarealer med parkmessig opparbeidelse, garasjeanlegg (mulighet for ladepunkt) og gapahuk til fri benyttelse av beboerne!. Leiligheten ligger i 4. etasje og inneholder: Entre, stue, kjøkken, bad, soverom og bod. Utgang til sydvendt balkong med flott utsikt. I tillegg disponerer leiligheten ekstern bod i 1. etasje. Leiligheten disponerer parkeringsplass i felles garasjeanlegg. I tilknytning til eiendommen er det opparbeidet en liten småbåthavn, med mulighet for leie av båtplass.
Nærmeste dagligvare ca. 500 m vest for leiligheten. Til bysentrum ca. 5 km og til Moa ca 7,5 km.
Område
Legg til steder som er viktige for deg
På flyttefot? Tenk kjøp og salg samtidig.
Få din egen rådgiver gjennom hele kjøps- og salgsprosessen. Det starter med en verdivurdering.
Unngå doble boligrenter
Vi tilbyr gunstig forsikring.
Vurderer du utleie?
Få et tilbud fra Utleie KrogsveenHva koster lånet?
Sjekk estimert lånekostnadVil du varsles om lignende boliger?
Ved å lagre ditt boligsøk hos oss får du beskjed når vi har en bolig som ligner denne, før den legges ut på markedet!

