Matrosgata 4
3 300 000 kr
51 m²
1 soverom
Komplett salgsoppgave

Sentum
Flott toppleilighet på Hvaltorvet med vestvendt balkong på 13 kvm! -soverom-garasjeplass -heis rett opp i 5. etg
Prisantydning
3 300 000 krOmkostninger
93 540 krTotalpris
3 393 540 kr
Pris
Bruksareal
59 m²BRA-I (internt bruksareal)
51 m²BRA-E (eksternt bruksareal)
8 m²TBA (terrasse-balkongareal)
13 m²
Areal
Etasje
5Byggeår
2009Soverom
1 soveromBad
1 badType
EierleilighetEierform
EierseksjonFasiliteter
Garasje/P-plass, Heis og Balkong/TerrasseFellesutgifter
4 394 kr
Nøkkelinfo
Unngå doble boligrenter
Vi tilbyr gunstig forsikring.
Vurderer du utleie?
Få et tilbud fra Utleie KrogsveenHva koster lånet?
Sjekk estimert lånekostnadBeskrivelse
Kort om eiendommen
Bo enkelt midt i sentrum eller perfekt for utleie. Denne muligheten kommer ikke ofte! Nå har du sjansen til å skaffe deg en leilighet på populære Hvaltorget med balkong mot vest og gode solforhold. Som beboer i Hvaltorvet kan du nyte privatlivets fred i din nye flotte leilighet, samtidig som du bare er en kort heistur unna byens pulserende liv. Alle sentrums øvrige fasiliteter, forretninger og kontorer ligger rett utenfor døren.
-Åpen stue og kjøkkenløsning
-Flislagt bad med varme i gulvet
-Romslig soverom med gode lagringsmuligheter
-Garasjeplass i kjeller – en sjelden luksus i sentrum
-Solrik balkong på 13 kvm
-Heis direkte fra garasjekjelleren
-Hyggelige fellesarealer
Her har man alle byens fasiliteter kun en heistur unna ytterdøren
Velkommen til Hvaltorvet og en flott mulighet
Innhold og byggemåte
Innhold og byggemåte
Eiendommen
Matrosgata 4, 3210 SANDEFJORD
Kommunenummer 3907, gårdsnummer 173, bruksnummer 92, seksjonsnummer 52, ideell andel 1/1
Innhold
Totalt bruksareal BRA: 59 kvm
BRA-i:
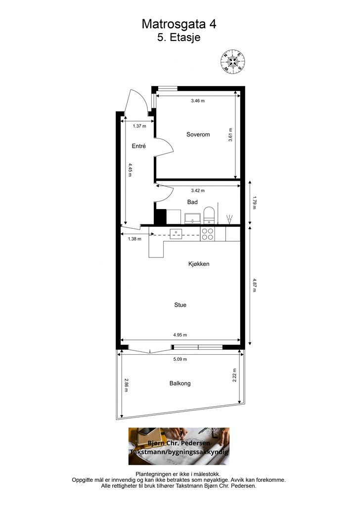
5. etasje 51 kvm: Entre, stue, kjøkken, bad, soverom
BRA-e:
Kjeller: 8 kvm: Bod i felles bodrom
Åpent areal:
5. etasje 13 kvm: Balkong
Boligen disponerer en bod samt en parkeringsplass i garasjekjelleren. Boden er tinglyst som en tilleggsdel til seksjonen.
Vedlagte plantegninger er ikke målbare. De oppgitte arealer er hentet fra rapport med befaringsdato 11.03.2026 utført av Takstmann Bjørn Chr. Pedersen.
Byggemåte
Selger har innhentet en tilstandsrapport av boligen/eiendommen. Av rapporten fremgår det at flere bygningsdeler har fått tilstandsgrad ikke undersøkt/ikke tilgjengelig for undersøkelse (TG IU), 2 (TG2) og/eller 3 (TG3). Rapporten beskriver også avvik på undersøkte bygningsdeler uten tilstandsgrad. Kjøper overtar ansvaret for de opplysninger som fremkommer av salgsdokumentasjonen, og kan ikke gjøre gjeldende som mangel noe som burde vært kjent eller som ikke kan anses å ha betydning for avtalen.
Bygningen er iht. tilstandsrapporten oppført på støpt betong mot grunn. Yttervegger i trekonstruksjoner og betong/mur. Etasjeskillere i betong, fasader med pusset mur og stående trekledning og flatt tak. Les for øvrig mer om byggemåte og den tekniske tilstanden i rapporten.
Det gjøres spesielt oppmerksom på leilighetens TG2: Balkong: Grønske- og algegroing er observert. Enkelte løse terrassebord. Det registreres fuktskader rundt vask/oppvaskmaskin på kjøkken. Varmtvannsberederen er ikke plassert i rom med sluk og mangler lekkasjesikring. Bad: Misfarging er observert på flisfuger. Elastiske flisfuger har stedvis manglende vedheft. Det er observert skader på enkelte flisfuger. Tettesjiktet har en alder som tilsier at restlevetiden er usikker. Rommets lekkasjesikkerhet kan derfor ikke verifiseres, eventuelt bør nytt tettesjikt etableres. Det er ikke etablert noen drensåpning for synliggjøring av eventuelle lekkasjer fra innebygget sisterne til klosettet. Det er observert fuktskade i området ved balkongdør. Enkelte innerdører har skader/slitasje. TG-IU: Det er ikke tilkomst til samleskap for rør-i-rør systemet på befaringsdagen grunnet plassering av vaskemaskin. For øvrig slitasje pga alder. Se utfyllende tekst i rapporten.
Tilstandsrapporten er inntatt i salgsoppgaven. Rapporten inneholder informasjon om avvikene og konsekvensen av disse. For avvik som er gitt TG3 har den bygningssakkyndige i tillegg gitt et anslag på hva det vil koste å utbedre disse avvikene. Ettersom kjøper regnes å være kjent med forhold som tydelig fremgår av tilstandsrapporten, oppfordres du til å sette deg grundig inn i rapporten i sin helhet.
Standard
Velkommen til Hvaltorvet og Matrosgata 4, leiligheten holder en gjennomgående god standard og er beliggende i byggets 5. etasje, med heisadkomst. Her bor man komfortabelt og lettvint midt i sentrum, med alt av byens servicetilbud rett utenfor døren.
Leiligheten har en romslig og moderne planløsning med åpen stue- og kjøkkenløsning som skaper en sosial og luftig atmosfære. De store vindusflatene i stue- og kjøkkenområdet gir rikelig med naturlig lys og bidrar til en lys og trivelig romfølelse gjennom hele dagen. Den store balkongen blir en forlengelse av stuen på de varmeste sommerdagene.
Badet er flislagt og fremstår som pent og funksjonelt med god plass til både vaskemaskin og tørketrommel. Planløsningen er gjennomtenkt og godt tilpasset både enslige og par som ønsker en moderne leilighet i sentrale omgivelser.
Eiendommen har flotte og velstelte fellesarealer som gir et representativt og godt førsteinntrykk, og heisen i bygget sørger for enkel adkomst.
Matrosgata 4 har en svært attraktiv beliggenhet midt i sentrum, med kort vei til butikker, kaféer, restauranter og offentlige servicetilbud. Dagligvarehandel, kollektivtransport og øvrige fasiliteter ligger innen få minutters gange, noe som gir en enkel og effektiv hverdag. Området byr også på gode muligheter for rekreasjon og byliv, med gangavstand til hyggelige møteplasser og sentrale knutepunkt.
Dette er en leilighet som kombinerer sentral beliggenhet, god standard og praktiske løsninger – perfekt for deg som ønsker å bo urbant og lettvint.
Oppvarming
Varme i gulvet på badet, ellers elektrisk oppvarming. Dersom beboelsesrom ikke har vegg- eller fastmonterte varmekilder ved visning, følger dette heller ikke med.
Ferdigattest/brukstillatelse
Det foreligger ferdigattest på leiligheten, datert 19.01.2010. Denne kan fås ved henvendelse til megler.
Tinglyste heftelser og rettigheter
Leiligheten overdras fri for pengeheftelser.
Sameiet har legalpant for krav mot sameieren som følger av sameieforholdet iht. eierseksjonsloven § 31. Pantet er begrenset oppad til 2G, (G = folketrygdens grunnbeløp).
I tillegg har sameiet tinglyst panterett som nevnt over.
Eventuell adgang til utleie
Leiligheten kan leies ut såfremt leiligheten har forsvarlige radonverdier. Leietaker må følge sameiets vedtekter og ordensregler på lik linje som eier.
Diverse
Leiligheten vil ikke bli ytterligere vasket før overtakelse om ikke dette blir avtalt. Selger har ikke bebodd eiendommen og har derfor ikke kunnskap om eiendommens tilstand. Kjøper må derfor kunne påregne at det kan være flere feil og mangler som normalt oppdages ved bruk av boligen, men som selger ikke har mulighet å vite.
Beliggenhet og tomteforhold
Beliggenhet og tomteforhold
Beliggenhet
Velkommen til Hvaltorvet og en sjelden mulighet. Som beboer i Hvaltorvet kan du nyte privatlivets fred i din nye flotte leilighet, samtidig som du bare er en kort heistur unna byens pulserende liv. Alle sentrums øvrige fasiliteter, forretninger og kontorer ligger rett utenfor døren. Byens grønne lunger, som blant annet Preståsen, ligger like øst for Hvaltorvet og er kjent for sin praktfulle utsikt over sentrum og Indre Havn. Byens sentrumspark, Badeparken, har store grønne arealer for lek og spill med barn og unge og ligger som nærmeste nabo til Hjertnes og Park Hotell. Her finner du Rådhus, bibliotek, kino og teater, samt hotellets fitnessenter, SPA og svømmebasseng som er tilgjengelig for allmenheten. Sandefjords idrett og sportsarena ligger i Bugårdsparken cirka 2 km. fra Hvaltorvet.
Byen vår er kjent som en av landets flotteste sommerbyer, mye pga. vår lange sjølinje, praktfulle skjærgård og vakre badestrender. Rett syd for Hvaltorvet, ca. 200 m. i luftlinje, finner du byens populære havn med flere restauranter og et yrende folkeliv. Er du glad i å reise kommer man enkelt til Strømstad og Sverige med Color Lines ferger som har flere daglige avganger. Sandefjords jernbane og busstasjon ligger under 500 m. fra Hvaltorvet, og vil man lenger ut i inn og utland har Sandefjord Lufthavn Torp mange muligheter. Alt er lagt til rette for at du skal kunne nyte livet og byen på Hvaltorget. By, vann og natur er alle i nærområdet -det pulserende liv kun en kort heistur unna.
Barnehager, skoler og fritid
Byskolen barneskole og Ranvik ungdomsskole. Dersom skole- og barnehagetilbud er av betydning for kjøpet, ber vi om at det rettes en særskilt henvendelse til kommunen for oppdatert informasjon.
Beskrivelse av tomt
Eiet tomt på 4.812 kvm som tilhører sameiet. Tomten er fellesareal på taket av kjøpesenteret i 3. etasje. Her er det opparbeidet flotte og nye arealer for beboerne, med plattinger, benker, busker, trær og blomster. Det er også monter lekeapparater og opparbeidet egen bocciabane.
Parkering
Parkeringsplass i felles garasjekjeller (nr.34) med elbillader, ellers gateparkering.
Vei, vann og avløp
Eiendommen har adkomst via kommunal vei.
Eiendommen er tilknyttet kommunalt ledningsnett via private stikkledninger. Eier er selv ansvarlig for private stikkledninger til boligen.
Regulerings-og arealplaner
Eiendommen er regulert til bolig, forretning, kontor, hotel (formål) i henhold til reguleringsplan Hvaltorvet datert 21.03.2003 med tilhørende reguleringsbestemmelser. Eiendommen er i kommuneplan datert 21.09.2023 avsatt til: flomfare, rød/gul støysone, sentrumsformål.
Utsnitt av plan med tilhørende bestemmelser kan fås ved henvendelse til megler.
Økonomi
Økonomi
Boligens kostnader
Fellesutgiftene er kr 4.394,- pr. mnd. og inkluderer: Forretningsfører, kommunale avgifter, Sandefjord Bredbånd, felles vedlikehold, felles strøm.
Fellesutgiftene justeres normalt en til to ganger årlig i forhold til sameiets faktiske utgifter.
Boligen er tilknyttet Sandefjord Bredbånd som leverandør av tv og internett. Standardpakke er inkludert i felleskostnadene.
-Felleskostnader drift: kr 2.916,-
-Sandefjord Bredbånd: kr 605,-
-Kommunale avgifter sats 2: kr 873,-
Utgiftene er basert på nåværende eiers forbruk. Kjøper må selv tegne innboforsikring.
Selger har ikke bebodd eiendommen og har således ikke kjennskap til øvrige løpende utgifter for eiendommen.
Formuesverdi
Formuesverdi for 2024 var kr 626.821,- ifølge selgers Skatteetaten. Beløpet forutsetter at eier bor fast i boligen (primærbolig).
Ved eventuell øvrig bruk av eiendommen (f.eks. fritidsbolig, pendlerbolig, utleieobjekt) var formuesverdien for 2024 kr 2.507.283,-
Fra 2026 har Stortinget vedtatt en oppdatert modell for beregning av formuesverdi for primærbolig, så avvik kan forekomme.
For mer informasjon se skatteetaten.no
Omkostninger
3 300 000,00 Prisantydning
Omkostninger
82 500,00 Dokumentavgift til staten (2,5% av kjøpesum)
9 950,00 Gjensidige Boligkjøperpakke* (valgfritt)
545,00 Tinglysing panterettsdokument
545,00 Tinglysing skjøte
--------------------------------------------------------
83 590,00 (Omkostninger totalt (uten Gjensidige Boligkjøperpakke))
93 540,00 Omkostninger totalt (med Gjensidige Boligkjøperpakke))
--------------------------------------------------------
3 383 590,00 Totalpris inkl. omkostninger
3 393 540,00 Totalpris inkl. omkostninger (med Gjensidige Boligkjøperpakke)
--------------------------------------------------------
Betalingsbetingelser
Kjøpesum inkludert omkostninger, samt pantedokument tilknyttet eventuelt lån, skal være disponibelt hos megler 2 virkedager før overtagelsen.
Annen viktig informasjon
Annen viktig informasjon
Eier
Kåre Henning Rustand
Informasjon om sameiet
Eiendommen er seksjonert, og leiligheten er tilknyttet Eierseksjonssameiet Hvaltorvet, med sameiebrøk 51/13789.
Sameiet består av 65 leiligheter og 1 næringsseksjoner.
Forretningsfører er Boligbyggelaget Usbl
Dyrehold er tillatt.
Foretatt påkostninger de senere år: I felles utendørs atrium: Arbeid med å skifte ut membraner, sluk og overvannsrør i perioden 2019 til 2023. KLP var prosjektleder. Det er gledelig at vi for vintersesongen 2024-25 ikke har registrert nevneverdige lekkasjer. Sameiet skal pusse opp heis sjaktene i bygget.
Vi gjør videre oppmerksom på at det iht. eierseksjonsloven ikke er anledning å erverve mer enn 2 seksjoner i sameiet, her teller også eierskap via. firma, nærstående og familie. Kjøper har risikoen for at overskjøting på denne bakgrunn kan nektes av Statens Kartverk. I så fall vil kjøper uansett være forpliktet til å gjennomføre handelen, og oppgjør til selger vil finne sted tross manglende overskjøting. Konferer med megler for mer informasjon.
Dokumenter for sameiet og kopi av seksjonsbegjæringen kan fås ved henvendelse til megler.
Overtakelse
Etter nærmere avtale.
Boligselgerforsikring
Selger har i forbindelse med salget tegnet boligselgerforsikring levert av Gjensidige.
Boligselgerforsikringen dekker selgers ansvar etter avhendingsloven begrenset oppad til kr 14 millioner. Dersom kjøper oppdager forhold ved eiendommen som hen mener utgjør en mangel ved eiendommen, vil Gjensidige behandle reklamasjonen på vegne av selger. Forsikringsvilkår kan fås ved henvendelse til megler.
Vedlagt salgsoppgaven følger selgers egenerklæringsskjema og tilstandsrapport. Interessenter må sette seg inn i dokumentene før bud inngis.
Boligkjøperforsikring
Innen kontraktsmøtet må kjøper ta stilling til om det ønskes å bestille Boligkjøperpakken gjennom Gjensidige. I denne gunstige pakken er boligen ferdig forsikret og inkluderer rettshjelpsforsikring, også kalt Boligkjøperforsikring. Rettshjelpsforsikring gir trygghet og tilgang på profesjonell juridisk hjelp dersom det oppdages uventede feil eller mangler det første året etter overtagelse. Forsikringsselskapet behandler i så fall ethvert mangelskrav kjøper måtte ha overfor selger.
Boligkjøperpakken inkluderer bygningsforsikring for hus og hytte, innboforsikring, flytteforsikring og dobbel rentedekning - i situasjoner hvor kjøper ikke får solgt nåværende primærbolig.
Kjøper mottar ingen særskilt faktura for Boligkjøperpakken da kostnaden det første året legges til kjøpesummen for boligen. Det gjøres oppmerksom på Krogsveen mottar et honorar for denne formidlingen.
Produktark for Boligkjøperpakken ligger vedlagt i salgsoppgaven.
Dersom ikke boligkjøperpakke ønskes kan kun rettshjelpsforsikring, også kalt boligkjøperforsikring, tegnes særskilt via megler. Rettshjelpsforsikringen varer i 5 år fra overtagelse og leveres gjennom Gjensidige. Ta kontakt med megler for ytterligere informasjon.
Selskap og privatpersoner som driver med kjøp/salg/utvikling som ledd i egen næringsvirksomhet kan ikke tegne boligkjøperpakke eller rettshjelpsforsikring.
Budgivning
Forbrukerinformasjon om budgivning er vedlagt denne salgsoppgaven og er også på vår hjemmeside Krogsveen.no. Alle bud og budforhøyelser må inngis skriftlig. I tillegg må legitimasjon være fremlagt sammen med signatur fra budgiver.
Vi oppfordrer til å gi bud elektronisk via GI BUD-knappen på eiendommens hjemmeside på Krogsveen.no. Da vil samtlige vilkår bli oppfylt.
Eventuelle forhøyelser eller endringer av budet kan bekreftes pr SMS eller på e-post. Vi oppfordrer alltid til å kontakte megler pr. telefon i tillegg da forsinkelser i SMS og e-post kan forekomme.
For at budene skal kunne bli behandlet og videreformidlet skriftlig til alle involverte parter, må alle bud ha en tilstrekkelig lang akseptfrist, jf. eiendomsmeglingsforskriften § 6-3.
Selger må også skriftlig akseptere budet før aksept kan formidles til budgiver. Akseptfrist bør derfor være på minimum 30 minutter, og budforhøyelser må derfor skje i god tid før fristens utløp.
Bud i forbrukerforhold kan uansett ikke settes med kortere frist enn kl. 12.00 første virkedag etter siste annonserte visning. I tillegg kan ikke budet ha forbehold om at det skal holdes hemmelig ovenfor øvrige interessenter. Megler har iht lov om eiendomsmegling ikke anledning til å videreformidle disse budene, og de vil dermed heller ikke bli journalført.
Etter at eiendommen er solgt vil kjøper og selger få tilsendt budjournal. Øvrige budgivere kan få utlevert kopi av budjournalen i anonymisert form.
Hvitvaskingsreglene
I henhold til lov om hvitvasking og terrorfinansiering har megler plikt til å gjennomføre kontrolltiltak overfor kunder, herunder fullmektiger. Dette innebærer bl.a. å bekrefte kunders og reelle rettighetshaveres identitet på bakgrunn av fremvist gyldig legitimasjon eller på annen godkjent måte, samt å innhente opplysninger om kundeforholdets formål og tilsiktede art.
Dersom slike kundetiltak ikke kan gjennomføres, kan megler ikke etablere kundeforholdet eller utføre transaksjonen.
Hvis kjøper ikke bidrar til gjennomføring av kundekontrollen og dette fører til at transaksjonen blir forsinket eller ikke kan gjennomføres, vil dette ansees som mislighold av avtalen og gi selger rettigheter etter avhendingslova kapittel 5. I tilfeller der selger ikke bidrar til gjennomføring av løpende kundekontroll underveis i oppdraget, er det selger som misligholder sine forpliktelser etter avtalen og gi kjøper rettigheter etter avhendingslovens kapittel 4. Partene er selv ansvarlige for eventuelle kostnader og ansvar dette kan medføre. Eiendomsmegleren eller eiendomsmeglingsforetaket kan ikke holdes ansvarlig for de konsekvenser dette vil kunne få for partene eller andre som har interesser i eiendomshandelen.
Kjøper oppfordres til å innbetale kjøpesummen som ikke kommer fra låneinstitusjon i én samlet innbetaling fra egen konto i norsk bank. Megler har plikt til å melde fra til Økokrim om eiendomshandler som fremstår som mistenkelige. Melding sendes Økokrim uten at partene varsles.
Personopplysningsloven
I henhold til personopplysningsloven gjør vi oppmerksom på at interessenter kan bli registrert for videre oppfølging.
Lovanvendelse
Generelle bestemmelser
Salgsoppgaven er basert på de opplysningene selger har gitt til megler, den bygningssakyndiges tilstandsrapport, samt opplysninger innhentet fra kommunen, Kartverket og andre tilgjengelige kilder. Det er viktig at kjøper setter seg grundig inn i alle salgsdokumentene, herunder salgsoppgave, tilstandsrapport og selgers egenerklæring. Kjøper anses kjent med forhold som er tydelig beskrevet i salgsdokumentene, og slike forhold kan ikke påberopes som mangler. Dette gjelder uavhengig av om kjøper har lest dokumentene. Alle interessenter oppfordres til å undersøke eiendommen nøye, gjerne sammen med fagkyndig før bud inngis. Kjøper som velger å kjøpe usett kan ikke gjøre gjeldende som mangel noe han burde blitt kjent med ved undersøkelsen.
Dersom det er behov for avklaringer, anbefaler vi at interessenter rådfører seg med eiendomsmegler eller egne rådgivere før det legges inn bud.
En bolig som har blitt brukt i en viss tid, har vanligvis blitt utsatt for slitasje og skader kan ha oppstått. Slik bruksslitasje må kjøper regne med, og det kan avdekkes enkelte forhold etter overtakelse som nødvendiggjør utbedringer. Normal slitasje og skader som nødvendiggjør utbedring, er innenfor hva kjøper må forvente og vil ikke utgjøre en mangel.
Kjøper og selgers rettigheter og plikter reguleres av avtalen mellom partene, samt informasjonen som har vært tilgjengelig for kjøperen i forbindelse med handelen. Avtalen utfylles av avhendingsloven, og det gjelder ulike avtalevilkår avhengig av om kjøper er forbrukerkjøper eller ikke. Dette er nærmere beskrevet nedenfor.
På grunn av ulike avtalevilkår kan selger vurdere bud fra en som ikke er forbruker, ulikt fra en forbrukers bud. Dersom kjøper ikke er forbruker, er selger sitt mulige mangelsansvar begrenset fordi eiendommen selges "som den er". Selger kan ikke ta «som den er»- forbehold overfor en forbrukerkjøper. Selv et lavere bud fra en som ikke er forbruker kan foretrekkes fordi begrensningen i mulig mangelsansvar kan ha egenverdi for selger. Selger står fritt til å forkaste eller akseptere ethvert bud, og er for eksempel ikke forpliktet til å akseptere høyeste bud.
Budgiver skal i budskjema avgi egenerklæring om budgiver er forbruker eller næringsdrivende/ person som hovedsakelig handler som ledd i næringsvirksomhet. Budgivere får informasjon dersom andre bud er inngitt av en som ikke er forbruker.
Forbrukerkjøp - definisjon
Med forbrukerkjøp menes kjøp av eiendom når kjøperen er en fysisk person som ikke hovedsakelig handler som ledd i næringsvirksomhet.
Forbruker – avtalevilkår
Eiendommen har en mangel dersom den ikke er i samsvar med kravene som følger av avtalen, eller det foreligger brudd på bestemmelsene i avhendingsloven §§ 3-2 til 3-8. Hvis eiendommen ikke er i samsvar med det kjøperen må kunne forvente ut ifra alder, type og synlig tilstand, kan det være grunnlag for mangelskrav. Det samme gjelder hvis det er holdt tilbake eller gitt uriktige opplysninger om eiendommen. Dette gjelder likevel bare dersom man kan gå ut ifra at det virket inn på avtalen at opplysningen ikke ble gitt eller at mangelskravet ikke blir rettet i tide på en tydelig måte.
Boligen kan ha en mangel etter avhendingsloven § 3-3 andre ledd, dersom det er avvik mellom opplyst og faktisk innvendig areal, forutsatt at avviket er på 2% eller mer og minimum 1 kvm.
Ved beregning av et eventuelt prisavslag eller erstatning må kjøper selv dekke tap/kostnader opptil et beløp på kr 10 000 (egenandel).
Ikke-forbruker (næringsdrivende) – definisjon
Hvis kjøper er en juridisk person, eller en fysisk person som hovedsakelig handler som ledd i næringsvirksomhet, vil kjøpet ikke anses som et forbrukerkjøp.
Ikke-forbruker – avtalevilkår
Eiendommen har en mangel dersom den ikke er i samsvar med kravene som følger av avtalen.
Eiendommen selges «som den er», og selgers ansvar utover det konkret avtalte er da begrenset etter avhendingsloven § 3-9, første ledd andre setning.
Avhendingsloven § 3-3 andre ledd fravikes, og hvorvidt boligens arealsvikt utgjør en mangel vurderes etter avhendingsloven § 3-8.
Informasjon om kjøpers undersøkelsesplikt, herunder oppfordringen om å undersøke eiendommen nøye, gjelder også for kjøpere som ikke anses som forbrukere.
Det forutsettes at hjemmel overføres til kjøper. Hvis kjøper ikke ønsker hjemmelsoverføring av eiendommen, må det tas forbehold om dette i budet.
Meglers vederlag
Meglers vederlag betales av selger og er avtalt til: 37.500,- Vederlag: Fotopakke: kr 5.500. Kontroll av hjemmel og heftelser kr 3.900. Markedsføringspakke kr 8.950. Oppgjør kr 8.900. Tilrettelegging kr 19.900. Visninger pr. stk 1.000,- pr. stk.
Utlegg: Eierskiftegebyr forretningsfører kr 6.725. Innhenting av informasjon forretningsfører USBL kr 5.138. Tinglysing sikring kr 545.
Vi er opptatt av verdiskapning, og har knyttet til oss samarbeidspartnere som skal sikre våre kunder de beste produkter og tjenester;
• I forbindelse med forberedelse av salget, innhenter vi informasjon om eiendommen hovedsakelig fra vår samarbeidspartner Amibita.
• Gjensidige leverer boligselgerforsikring og tilbyr bygningsforsikring
• Boligkjøperforsikring leveres av Hiscox og med Sedgwick som skadebehandler, og er formidlet gjennom Gjensidige.
• BN bank tilbyr finansieringsløsninger
• Vår avdeling Krogsveen Pluss tilbyr flyttetjenester som utvask, visningsvask, lager, tømming og transport av flyttelass, i tillegg til å formidle kontakt med Flip for overflateoppussing.
• I forbindelse med overtagelse av eiendommen tilbyr Overo avtale om strøm, alarm og bredbånd.
• Krogsveen er, sammen med øvrige bransjeaktører, medeier i Bomega AS som tilbyr den digitale annonseringsplattformen Hjem.
Opplysninger om oppdraget
Oppdragsnummer 22-0078/26
Eiendomsmegler Krogsveen AS, avd. Sandefjord
Jernbanealléen 13, 3210, SANDEFJORD
950 007 613
Oppdragets KR-kode KR22.2678
Dato
Sist oppdatert: 23. april 2026 kl. 21:10
Dokumenter
Dokumenter
PDF – 167 KB
PDF – 312 KB
PDF – 29 KB
PDF – 127 KB
PDF – 392 KB
Område
Legg til steder som er viktige for deg
Visning
Vi legger til rette for gode visninger med tid til alle. Kontakt megler på 41603938 eller via linken «visningspåmelding» for å avtale tidspunkt. Husk også å lese salgsoppgaven før visningen.
Lurer du på noe?
Unngå doble boligrenter
Vi tilbyr gunstig forsikring.
Vurderer du utleie?
Få et tilbud fra Utleie KrogsveenHva koster lånet?
Sjekk estimert lånekostnadVil du varsles om lignende boliger?
Ved å lagre ditt boligsøk hos oss får du beskjed når vi har en bolig som ligner denne, før den legges ut på markedet!

