Kirkeveien 60
7 200 000 kr
231 m²
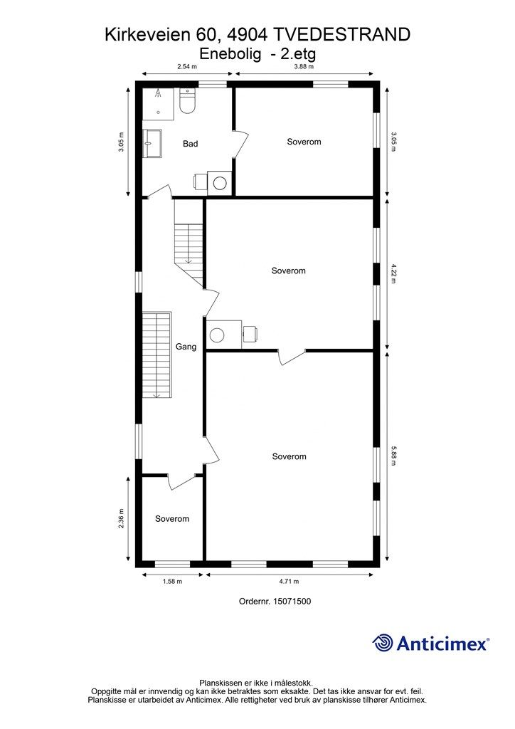
5 soverom
Solgt

Dypvåg Brygge
BUD MOTTATT! Eldre, romantisk feriested med sjøutsikt - Vakker hage og granittbrygge med båtplasser
Prisantydning
7 200 000 krOmkostninger
205 590 krTotalpris
7 405 590 kr
Pris
Bruksareal
301 m²BRA-I (internt bruksareal)
231 m²BRA-E (eksternt bruksareal)
70 m²
Areal
Etasje
3Byggeår
1700Soverom
5 soveromBad
1 badTomteareal
2 125 m² (festet)Type
Enebolig - FrittliggendeEierform
EietFasiliteter
Balkong/TerrasseEnergimerke
Oransje C
Nøkkelinfo
Unngå doble boligrenter
Vi tilbyr gunstig forsikring.
Vurderer du utleie?
Få et tilbud fra Utleie KrogsveenHva koster lånet?
Sjekk estimert lånekostnadBeskrivelse
Kort om eiendommen
Kirkeveien 60 var et tidligere posthus som i dag er et ferieparadis med nærhet til det beste av Sørlandet, som Lyngør, Sandøya og Tvedestrand. Båtplassene som medfølger er knapt 100 meter fra huset og ligger lunt til ved Dypvågstranda i tilknytning til en solid granittbrygge. Boligen har store rom med plass til mange gjester og hyggelige sammenkomster. Huset er fra 1700-1750-tallet og ble påbygget rundt 1880. Det er en staselig bolig med låve og hønsehus.
Her er det opparbeidet frukt-og rosehage med bl.a. stakittgjerde og steinmurer. Låven rommer både verksted og lagerplass/hobbyrom. Sola skinner på eiendommen fra grytidlig morgen til ca. kl. 19:30 midtsommers. Boligen er godt bevart og har mange eldre, klassiske detaljer fra sin opprinnelse. Det er ingen boplikt på eiendommen.
Område
Legg til steder som er viktige for deg
På flyttefot? Tenk kjøp og salg samtidig.
Få din egen rådgiver gjennom hele kjøps- og salgsprosessen. Det starter med en verdivurdering.
Unngå doble boligrenter
Vi tilbyr gunstig forsikring.
Vurderer du utleie?
Få et tilbud fra Utleie KrogsveenHva koster lånet?
Sjekk estimert lånekostnadVil du varsles om lignende boliger?
Ved å lagre ditt boligsøk hos oss får du beskjed når vi har en bolig som ligner denne, før den legges ut på markedet!

