Fredheimsvegen 8
5 990 000 kr
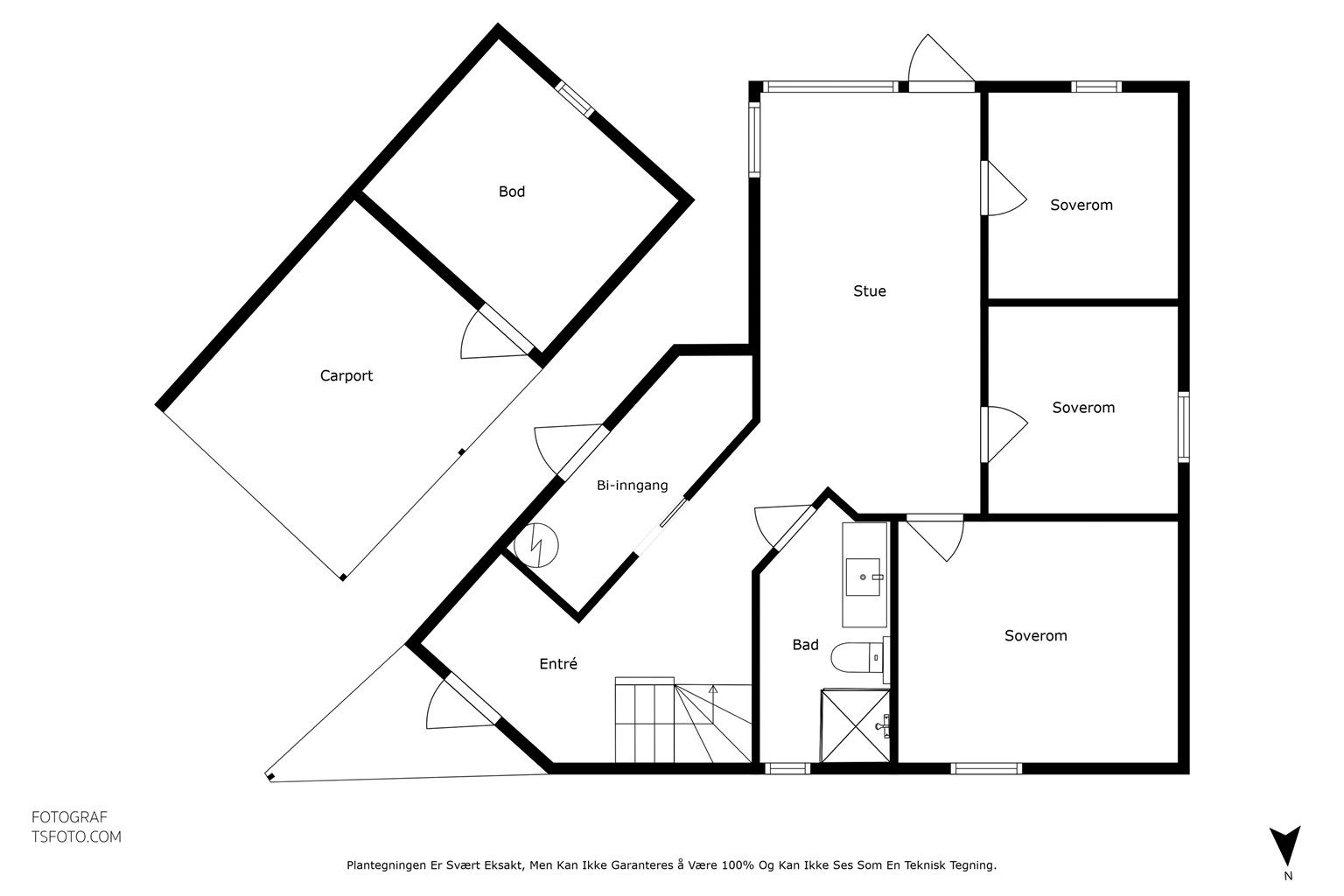
139 m²
4 soverom
Solgt

Klepp
Splitter ny og innflyttingsklar enebolig oppført i 2025 sentralt på Klepp! 4 soverom - 2 bad - carport - El-billader
Prisantydning
5 990 000 krOmkostninger
55 365 krTotalpris
6 045 365 kr
Pris
Bruksareal
148 m²BRA-I (internt bruksareal)
139 m²BRA-E (eksternt bruksareal)
9 m²
Areal
Byggeår
2025Soverom
4 soveromBad
2 badTomteareal
317 m² (eiet)Type
Enebolig - FrittliggendeEierform
EietFasiliteter
Balkong/TerrasseEnergimerke
Oransje B
Nøkkelinfo
Unngå doble boligrenter
Vi tilbyr gunstig forsikring.
Vurderer du utleie?
Få et tilbud fra Utleie KrogsveenHva koster lånet?
Sjekk estimert lånekostnadBeskrivelse
Kort om eiendommen
Flunkende ny enebolig oppført i 2025 i et meget sentralt område på Klepp. Boligen har 4 soverom, 2 stuer, 2 bad og carport med el-billader. Her er det bare å flytte rett inn uten å bekymre seg for slitasje og dårlig standard!
Kort forklart:
- 2 helflisede bad
- 2 stuer
- Matbod, innvendig bod og utvendig bod
- Lav dokumentavgift (Avgiftsgrunnlaget er kun tomteverdi)
- Kjekk terrasse med svært gode solforhold
- Carport med el-billader
- Norskprodusert kjøkken fra Sørlandskjøkkenet
- Smarthus fra Plejd
Område
Legg til steder som er viktige for deg
På flyttefot? Tenk kjøp og salg samtidig.
Få din egen rådgiver gjennom hele kjøps- og salgsprosessen. Det starter med en verdivurdering.
Unngå doble boligrenter
Vi tilbyr gunstig forsikring.
Vurderer du utleie?
Få et tilbud fra Utleie KrogsveenHva koster lånet?
Sjekk estimert lånekostnadVil du varsles om lignende boliger?
Ved å lagre ditt boligsøk hos oss får du beskjed når vi har en bolig som ligner denne, før den legges ut på markedet!

