Myraparkveien 1C
7 490 000 kr
136 m²
3 soverom
Solgt
SÆTRESKOGEN
Enebolig m/dobbel garasje - Beliggende høyt og usjenert - Gode solforhold - Rolig boligområde - Pent opparbeidet hage
Prisantydning
7 490 000 krOmkostninger
208 240 krTotalpris
7 698 240 kr
Pris
Bruksareal
179 m²BRA-I (internt bruksareal)
136 m²BRA-E (eksternt bruksareal)
43 m²TBA (terrasse-balkongareal)
48 m²
Areal
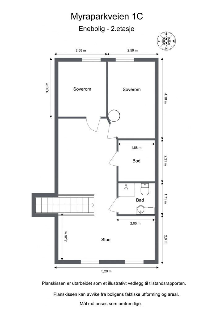
Etasje
2Byggeår
2012Soverom
3 soveromBad
2 badTomteareal
607 m² (eiet)Type
Enebolig - FrittliggendeEierform
EietFasiliteter
Garasje/P-plass og Balkong/TerrasseEnergimerke
Rød C
Nøkkelinfo
Unngå doble boligrenter
Vi tilbyr gunstig forsikring.
Vurderer du utleie?
Få et tilbud fra Utleie KrogsveenHva koster lånet?
Sjekk estimert lånekostnadBeskrivelse
Kort om eiendommen
Velkommen til Myraparkveien 1C! En innholdsrik og velholdt enebolig fra 2012 med flott hage, dobbel garasje, 2 bad, vaskerom, 3 soverom, stue og loftstue, åpen kjøkkenløsning, entré og god lagringsplass:
Høydepunkter:
-Boligen ligger høyt, luftig, usjenert, og med fantastiske solforhold
-Gjennomtenkt planløsning
-To bad og separat vaskerom
-Solrik markterrasse og lettstelt hage
-Motstrøms basseng som kan benyttes til svømming, roing og to spasoner m/ massasje
-Dobbel garasje m/elbillader og godt med biloppstillingsplass ved besøk
-Barnevennlig, stille og rolig villaområde
-Gangavstand til skole, barnehage, togstasjon, bussholdeplass, butikk, golfbane, fotballbane, lekeplass
-Gangavstand til marka(Nøstvedtmarka og Sørmarka) samt badeplass på Tussetjern
Her vil du trives!
Område
Legg til steder som er viktige for deg
På flyttefot? Tenk kjøp og salg samtidig.
Få din egen rådgiver gjennom hele kjøps- og salgsprosessen. Det starter med en verdivurdering.
Unngå doble boligrenter
Vi tilbyr gunstig forsikring.
Vurderer du utleie?
Få et tilbud fra Utleie KrogsveenHva koster lånet?
Sjekk estimert lånekostnadVil du varsles om lignende boliger?
Ved å lagre ditt boligsøk hos oss får du beskjed når vi har en bolig som ligner denne, før den legges ut på markedet!
På flyttefot? Slik gjør vi det enklere for deg
Skreddersydd flyttepakke
Vi fikser håndverkere, vask, pakking, lagring og transport, og legger ut for utgiftene underveis.
Hjelp med både kjøp og salg
Hos oss har du din egen rådgiver gjennom hele kjøps- og salgsprosessen.
Hjelp til finansiering
Vårt samarbeid med BN Bank sikrer deg rask og løsningsorientert hjelp, til konkurransedyktige betingelser.




