Ammerudveien 121F
7 500 000 kr
153 m²
4 soverom
Solgt

Ammerud/Breisjøgrenda
Idyllisk beliggende enderekkehus med stor hage - 4 sov - Garasje m/ elbil-lader - Meget barnevennlig - Sjelden mulighet!
Prisantydning
7 500 000 krOmkostninger
208 490 krTotalpris
7 708 490 kr
Pris
Bruksareal
171 m²BRA-I (internt bruksareal)
153 m²BRA-E (eksternt bruksareal)
18 m²TBA (terrasse-balkongareal)
50 m²
Areal
Etasje
1Byggeår
1983Soverom
4 soveromBad
1 badTomteareal
291 m² (eiet)Type
RekkehusEierform
EietFasiliteter
Garasje/P-plass og Balkong/TerrasseÅrlig velavgift
6 000 krEnergimerke
Rød F
Nøkkelinfo
Unngå doble boligrenter
Vi tilbyr gunstig forsikring.
Vurderer du utleie?
Få et tilbud fra Utleie KrogsveenHva koster lånet?
Sjekk estimert lånekostnadBeskrivelse
Kort om eiendommen
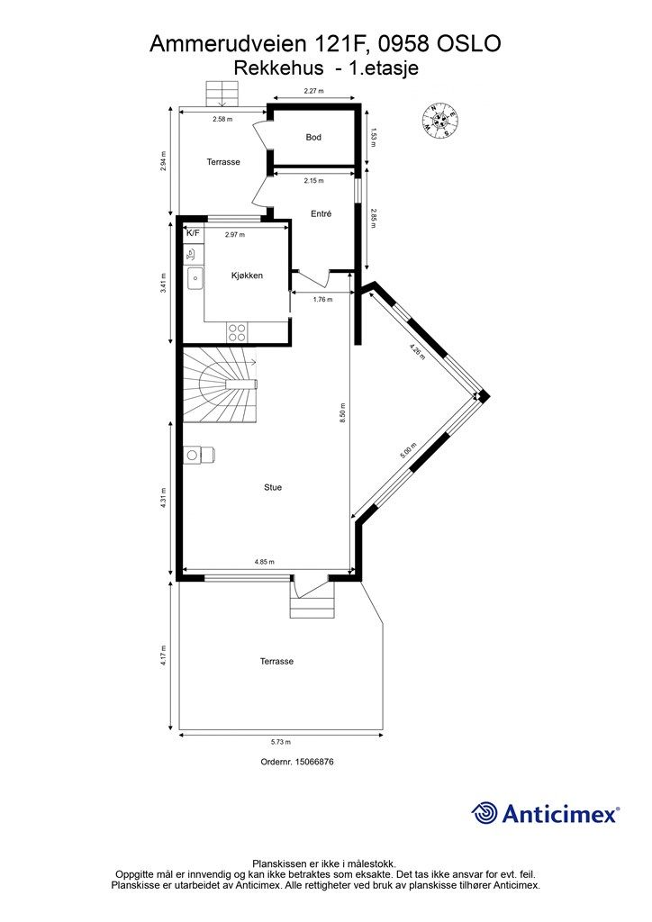
Krogsveen ved Remi Bangsund har gleden av å presentere Ammerudveien 121F - et romslig og særdeles flott beliggende enderekkehus med en stor, frodig og skjermet hage. Her får du romslig og praktisk entré, stor lys stue, romslig kjøkken, bad, to separat toalett, vaskerom med dusj og en stor kjellerstue, i tillegg til flere flotte markterrasser. Garasje med elbil-lader medfølger også. Boligen ligger i et skjermet boligfelt med kort vei til kollektivtransport og Lillomarka.
- Romslig enderekkehus med sjeldent god beliggenhet
- Tilbygg fra 2001
- Noe moderniseringsbehov
- Stor og frodig hage
- Flere markterrasser
- Garasje med elbil-lader
- Meget barnevennlig
- 4 soverom
- Peis
- God bodplass
Område
Legg til steder som er viktige for deg
På flyttefot? Tenk kjøp og salg samtidig.
Få din egen rådgiver gjennom hele kjøps- og salgsprosessen. Det starter med en verdivurdering.
Unngå doble boligrenter
Vi tilbyr gunstig forsikring.
Vurderer du utleie?
Få et tilbud fra Utleie KrogsveenHva koster lånet?
Sjekk estimert lånekostnadVil du varsles om lignende boliger?
Ved å lagre ditt boligsøk hos oss får du beskjed når vi har en bolig som ligner denne, før den legges ut på markedet!

