Byrudstuvegen 41A
4 200 000 kr
108 m²
3 soverom
Komplett salgsoppgave
Minnesund
Moderne enderekkehus oppført i 2020 | Carport m/opplegg til lader | Solrik terrasse og hage | 3 (4) soverom | Rolig område
Prisantydning
4 200 000 krAndel fellesgjeld
358 711 krOmkostninger
124 990 krTotalpris
4 683 701 kr
Pris
Bruksareal
116 m²BRA-I (internt bruksareal)
108 m²BRA-E (eksternt bruksareal)
8 m²TBA (terrasse-balkongareal)
27 m²
Areal
Byggeår
2020Soverom
3 soveromBad
1 badType
RekkehusEierform
EierseksjonFasiliteter
Balkong/TerrasseFellesutgifter
4 896 krEnergimerke
Rød A
Nøkkelinfo
Unngå doble boligrenter
Vi tilbyr gunstig forsikring.
Vurderer du utleie?
Få et tilbud fra Utleie KrogsveenHva koster lånet?
Sjekk estimert lånekostnadBeskrivelse
Kort om eiendommen
Velkommen til Byrudstuvegen 41A! Lekkert enderekkehus fra 2020 med landlig og barnevennlig beliggenhet.
Boligen fremstår moderne, og i nøytrale og tidløse farger. God planløsning med flott romfølelse i alle rom. Her kan man flytte rett inn!
Rekkehuset går over to plan og har mulighet for etablering av et fjerde soverom.
Eiendommen har nærhet til skiløyper, tur- og skogsområder, både sommer og vinter.
Minnesund fremstår som en perle ved sørenden av Mjøsa. Her finnes idylliske badeplasser, naturskjønne omgivelser, gode oppvekstsvilkår og mulighet for båtliv.
Med utsikt mot Mistberget, og turmål som Ninabben og Nabbvangen byr området på gode rekreasjonsmuligheter.
Stedet har ellers sentral beliggenhet med kort vei til E6, og kun 500 meter til bussholdeplass.
Vel møtt til visning!
Innhold og byggemåte
Innhold og byggemåte
Eiendommen
Byrudstuvegen 41A, 2092 MINNESUND
Kommunenummer 3240, gårdsnummer 209, bruksnummer 109, seksjonsnummer 1, ideell andel 1/1
Innhold
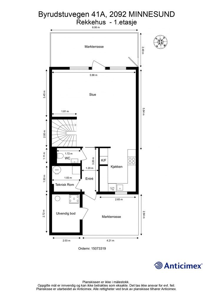
Totalt bruksareal BRA: 116 kvm
BRA-i:
1. etasje 54 kvm: Entré, toalettrom, teknisk rom, stue og kjøkken
2. etasje 54 kvm: Gang, bad og tre soverom
BRA-e:
6 kvm: Utvendig bod
Carportene er målt opp til ca. 13 kvm og 15 kvm
2 kvm: Utvendig bod ved carport
Åpent areal:
27 kvm: To markterrasser
Vedlagte plantegninger er ikke målbare. De oppgitte arealer er hentet fra rapport med befaringsdato 19.06.2025 utført av Anticimex v/André Nordli.
Byggemåte
Selger har fått utarbeidet en tilstandsrapport, dvs. en teknisk gjennomgang av boligen hvor eventuelle avvik, risiko for kjøper og prisoverslag for hva som bør gjøres av oppgradering, er skissert. Se særskilt TGIU (tilstandsgrad ikke undersøkt), samt TG2 og TG3 som viser hva som er boligens normale slitasje, alder og type, hva som er avvik fra dette og hva som bør/må utbedres. Rapporten og selgers egenerklæring er en del av salgsoppgaven og må leses nøye før bud inngis. Kjøper overtar ansvaret for de opplysninger som fremkommer av salgsdokumentasjonen, og kan ikke gjøre gjeldende som mangel noe som burde vært kjent eller som ikke kan anses å ha betydning for avtalen.
Bygningen er iht. tilstandsrapporten oppført i tre. Les for øvrig mer om byggemåte og den tekniske tilstanden i rapporten.
Det gjøres oppmerksom på at følgende er gitt TG2:
Bad:
- Overflater gulv: selger opplyser at han avventer respons med dato for utbedring fra utbyggers leverandør, tatt opp med utbygger
- Membran, tettesjikt og overgang til sluk: selger opplyser at dokumentasjon på dette avventes innsendt, tatt opp med utbygger
- Avløpsrør (ink. sluk): Utbedret 23.06.2025, ifølge selger
Fasader ink. kledning: likehold og eventuell reparasjon av utvendig kledning følges opp av sameiet, ifølge selger
Se utfyllende tekst i rapporten.
Kjøper overtar ansvar og risiko for dette.
Standard
Moderne rekkehus oppført i 2020 - Her kan du flytte rett inn!
Boligen har en elegant og stilren fasade, og store vindusflater som slipper inn naturlig lys og sørger for luftige og lyse rom.
Planløsningen er svært god og gir deg muligheten til å etablere et ekstra soverom i 2.etg.
Hele 1.etg. har deilig vannbåren varme i gulv som gir en jevn og lun oppvarming av boligen.
Det kan nevnes en stor, åpen kjøkkenløsning som sammen med stuen skaper et luftig og sosialt allrom.
Delikat kjøkken med store arbeidsflater og gode oppbevaringsmuligheter i skap og skuffer.
Fronter i hvit glatt utførelse og benkeplate av stein som er en slitesterk følgesvenn på kjøkkenet. Motstandsdyktig mot vann og søl, helt vedlikeholdsfri og praktisk talt umulig å slite ned.
Integrerte hvitevarer som stekeovn i høyskap, koketopp, kombiskap kjøl/frys og oppvaskmaskin medfølger.
Kjøper må forvente slitasje som følge alder og normal bruk.
Lekkasjestopper er montert under kjøkkeninnredning og komfyrvakt er montert over platetoppen.
Det delikate badet har overflater med hvite fliser på vegg og lys grå fliser på gulv.
Dusjvegger med klart herdet glass og dusjgarnityr med regnfallsdusj og hånddusj.
I tillegg er det satt inn et deilig badekar for litt ekstra hverdagsluksus.
Baderomsinnredning med servantskap med ettgreps blandebatteri, samt speil med integrert belysning.
Vegghengt toalett med skjult sisterne.
Det er i tillegg et praktisk gjestetoalett i 1.etg med tilkomst fra entrè.
Boligen har en stor utebod ved inngangspartiet, teknisk bod inne og en bod i tilknytning til carporten. Det er også et uinnredet kaldtloft med tilkomst fra soverom 3.
Opplegg for vaskemaskin, fordelerskap for vannbåren varme og stoppekraner, samt varmtvannsbereder på 194 liter er plassert i teknisk rom.
Ventilasjonsanlegg og sentralstøvsuger er plassert i utvendig bod.
Oppvarming
Boligen blir varmet opp vannbåren gulvvarme og elektrisitet.
Gulvvarme i hele 1.etg. og på bad 2.etg.
Dersom beboelsesrom ikke har vegg- eller fastmonterte varmekilder ved visning, følger dette heller ikke med.
Ferdigattest/brukstillatelse
Det foreligger ferdigattest på tre rekkehus med tre boenheter per rekke, og lekeplass og grønnstruktur G1 og G2 datert 03.06.2021.
Det foreligger tillatelse til endring av tidligere gitt tillatelse for oppføring av carporter datert 18.04.2024.
Disse kan fås ved henvendelse til megler.
Tinglyste heftelser og rettigheter
Utover andel fellesgjeld overdras leiligheten fri for pengeheftelser med unntak av:
Sameiet har legalpant for krav mot sameieren som følger av sameieforholdet iht. eierseksjonsloven § 31. Pantet er begrenset oppad til 2G, (G = folketrygdens grunnbeløp).
Det er tinglyst følgende servitutter på sameiets eiendom.
Dagboknr 2297, tinglyst 28.03.1971, type heftelse: Rett for kommunen til å anlegge og vedlikeholde elektriske kraftledninger m.m.
Dagboknr 2296, tinglyst 28.03.1972, type heftelse: Forbud mot næringsvirksomhet, samt rett for kommunen til å anlegge og vedlikeholde elektriske kraftledninger m.m.
Dagboknr 2298, tinglyst 28.03.1972, type heftelse: Rett for kommunen til å anlegge og vedlikeholde elektriske kraftledninger m.m.
Dagboknr 1280294, tinglyst 29.10.2019, type heftelse: Rettigheter og plikter ved oppføring, bygging, drift og vedlikehold av lavspennings kabelanlegg og høyspennings kabelanlegg (stedsevarig rett). Samt bestemmelse om bebyggelse, beplantning og adkomstrett
Servituttene vil følge eiendommen. Kjøpers bank vil få prioritet etter ovennevnte heftelser og servitutter.
Eventuell adgang til utleie
Boligen kan leies ut såfremt leiligheten har forsvarlige radonverdier. Leietaker må følge sameiets vedtekter og ordensregler på lik linje som eier.
Diverse
Vi er opptatt av verdiskapning, og har knyttet til oss samarbeidspartnere som skal sikre våre kunder de beste produkter og tjenester;
• Gjensidige leverer boligselgerforsikring og tilbyr bygningsforsikring
• Boligkjøperforsikring leveres av Hiscox og med Sedgwick som skadebehandler, og er formidlet gjennom Gjensidige.
• BN bank tilbyr finansieringsløsninger
• Vår avdeling Krogsveen Pluss tilbyr flyttetjenester som utvask, visningsvask, lager, tømming og transport av flyttelass, i tillegg til å formidle kontakt med Flip for overflateoppussing.
• I forbindelse med overtagelse av eiendommen tilbyr Overo avtale om strøm, alarm og bredbånd.
• Krogsveen er, sammen med øvrige bransjeaktører, medeier i den digitale annonseringsplattformen Hjem.
Beliggenhet og tomteforhold
Beliggenhet og tomteforhold
Beliggenhet
Eiendommen ligger i landlig boligområde, og det er ca 500 meter til Sandvoll bussholdeplass med linjene 443, 448, 449. Kun 10 min med bil til Eidsvoll togstasjon.
For den aktive familien er det kort vei til Nygårdsletta - gressbane, og for øvrig idrettshall, treningssenter og ridesenter m.m i nærliggende områder.
Mjøsa og Vorma ligger også i kort avstand fra eiendommen. Her er det gode muligheter for bading, fisking og bruk av båt.
Boligen har nærhet til Minnesund skistadion med oppkjørt lysløype og mulighet for organisert idrett eller aking og lek.
Ved Langset skole er det et flott idrettsanlegg fra 2015 som omfatter fotballbane med kunstgress, løpebane med kunstdekke, lengde- og høydegrop, samt BMX-bane for sykler.
Minnesund ligger ved sørenden av Mjøsa. Her finnes idylliske badeplasser, naturskjønne omgivelser, gode oppvekstsvilkår og mulighet for båtliv.
Mistberget, Ninabben og Nabbvangen er alle yndede turmål som byr på gode rekreasjonsmuligheter.
Stedets mest populære badeplass er Fløyta som er fylt på med sand. Stensbydammen kan også anbefales.
For de som ønsker varmere badevann har Råholt bad et godt tilbud for både mosjonister og barnefamilier.
Minnesund kan skilte med Mjøssamlingene - Mjøsas sjøfartsmuseum, og ved Byrud gård finner du Nord-Europas eneste smaragdgruve.
Minnesund har tilrettelagt idrettstilbud innen ski, fotball og bordtennis.
I sentrum finner du butikker og servicebedrifter. Stedet har ellers sentral beliggenhet med kort vei til E6. Med bil tar det ca. 15 min til Eidsvoll eller Råholt og ca 20-25 min til Oslo Lufthavn.
På Råholt finner du Amfi Eidsvoll med et rikt utvalg av butikker og servicetilbud. Eidsvoll kommune byr i tillegg på milevis med spennende skogsveier, skiløyper og sykkelstier.
Barnehager, skoler og fritid
Langset skole (1-7 kl.)
Ås skole (1-7 kl.)
Feiring skole (1-10 kl.)
Vilberg ungdomsskole (8-10 kl.)
Råholt ungdomsskole (8-10 kl.)
Eidsvoll videregående skole
Hoppensprett vgs Jessheim
Stensby barnehage (0-5 år)
Åsleia gårdsbarnehage (1-5 år)
Brensmork barnehage (1-5 år)
Informasjon om tilhørende skolekretser er hentet fra Prognosesenteret som dataleverandør, og tilhørigheten kan årlig endres av kommunen. Dersom skole- og barnehagetilbud er av betydning for kjøpet, ber vi om at det rettes en særskilt henvendelse til kommunen for oppdatert informasjon.
Beskrivelse av tomt
Eiertomt på 75 kvm. Boligen har eiet tomt opparbeidet med blant annet terrasser, plenarealer og diverse beplantning.
Parkering
Det medfølger 2 plasser i carport, med 1 bod
Elektrisk stikkontakt er under oppføring i carport ved bodsiden. Føringsrør er nedgravd og klart for kabelinstallasjon/terminering til boligens elektriske anlegg ved inngang
Det opplyses også at utelyset har egen elektrisk kurs tilknyttet boligen
Vei, vann og avløp
Eiendommen har adkomst via privat vei med felles vedlikeholdsansvar for Sameiet.
Eiendommen er tilknyttet kommunalt ledningsnett via private stikkledninger.
sameiet er ansvarlig for private stikkledninger til bygningen.
Regulerings-og arealplaner
Eiendommen er regulert til boligbebyggelse og lekeplass i henhold til detaljreguleringsplan Stenshol gnr. 209, bnr 109 datert 18.10.2016 med tilhørende reguleringsbestemmelser.
Utsnitt av plan med tilhørende bestemmelser kan fås ved henvendelse til megler.
Økonomi
Økonomi
Boligens kostnader
Fellesutgiftene er kr 4 896,- pr. mnd. og inkluderer: grunnpakke Telenor (TV og internett kr 611,-), felleskostnader (1.500) betjening andel fellesgjeld, forretningsførsel, bygningsforsikring, brøyting og drift og vedlikehold. llesutgiftene justres normalt en til to ganger årlig i forhold til sameiets faktiske utgifter. Det tas forbehold om at felleskostnadene kan justeres fortløpende pga rentejusteringer.
Felles lån for Carportene fordeles følgende:
- Renter kr 1 961,-
- Avdrag kr 824,-
Kommunale avgifter var kr 29 443,- for 2024. I dette inngikk gebyr for vann, avløp og renovasjon.
Det er installert vannmåler på eiendommen og kostnadene betales etter forbruk. Fjernavlesning benyttes ved forbruk av vann fra kommunen. Forbruk betales à konto basert på siste avlesning. Avregning foretas i forbindelse med neste forfall på kommunale avgifter.
Eiendomsskatten utgjør kr 3 880,- pr år.
Nåværende eier har et strømforbruk som tilsvarer ca. kr 22 500,- pr. år. / 15 000 kwh. pr. år.
Boligen er tilknyttet Telenor som leverandør av bredbånd og har grunnpakke inkl. i felleskostnader. Tv-tuner/dekoder overtas av kjøper.
Utgiftene er basert på nåværende eiers forbruk og avtaler.
Kjøper må selv tegne innboforsikring.
Formuesverdi
Formuesverdi for 2023 var kr 835 886,- ifølge skatteetaten. Beløpet forutsetter at eier bor fast i boligen (primærbolig).
Ved eventuell øvrig bruk av eiendommen (f.eks. fritidsbolig, pendlerbolig, utleieobjekt) var formuesverdien for 2023 kr 3 343 544,-.
Formuesverdien justeres normalt årlig. Se skatteetaten.no for mer informasjon om fastsettelse av formuesverdien.
Opplysninger om fellesgjeld
Sameiet har felleslån på carport. Hver enhet betaler andel i felleslån inkl i fellesutgifter.
Andel formue er kr 23 608,- pr. 31.12.2024
Andel fellesgjeld er kr 358 711,- pr. 25.06.2025
Total fellesgjeld for sameiet er kr 2 554 072,- pr. 25.06.2025 og lånevilkårene er:
Rentebetingelser: 7,2%
Første termin/første avdrag: 30.09.2024 ( siste termin 30.06.2044 )
Omkostninger
4 200 000,00 Prisantydning
358 711,00 Andel av fellesgjeld
--------------------------------------------------------
4 558 711,00 Pris inkl. fellesgjeld
Omkostninger
113 950,00 Dokumentavgift til staten (2,5% av kjøpesum)
545,00 Tinglysing panterettsdokument
545,00 Tinglysing skjøte
9 950,00 Tryg Boligkjøperpakke (valgfri)
--------------------------------------------------------
124 990,00 Omkostninger totalt
--------------------------------------------------------
4 683 701,00 Totalpris inkl. omkostninger
--------------------------------------------------------
Dersom sameiet har fellesgjeld, vil leilighetens andel av fellesgjelden komme i tillegg til kjøpesummen. Denne gjelden skal ikke innbetales i oppgjøret, men følger leiligheten.
Totalpris inkl. omkostninger forutsetter kjøp til prisantydning.
Det tas forbehold om endringer i avgifter og gebyrer.
Tilbud om lånefinansiering
Megler formidler gjerne kontakt med rådgiver hos Trøgstad Sparebank. De har konkurransedyktige betingelser samt rask og løsningsorientert behandling av din lånesøknad.
Betalingsbetingelser
Kjøpesum inkludert omkostninger, samt pantedokument tilknyttet eventuelt lån, skal være disponibelt hos megler 2 virkedager før overtagelsen.
Annen viktig informasjon
Annen viktig informasjon
Eier
Ria Ilag Macatangay Garcia og Enrique Sixto Juan Garcia
Informasjon om sameiet
Eiendommen er seksjonert, og leiligheten er tilknyttet Stenshol sameie, med sameiebrøk 1/9.
Sameiet består av 9 seksjoner.
Forretningsfører er USBL.
Dugnad (1x i året)
Gressklipping av fellesarealet og lekeplassen(1-2 ganger i året pr sesong)
Vi gjør videre oppmerksom på at det iht. eierseksjonsloven ikke er anledning å erverve mer enn 2 seksjoner i sameiet, her teller også eierskap via. firma, nærstående og familie. Kjøper har risikoen for at overskjøting på denne bakgrunn kan nektes av Statens Kartverk. I så fall vil kjøper uansett være forpliktet til å gjennomføre handelen, og oppgjør til selger vil finne sted tross manglende overskjøting.
Konferer med megler for mer informasjon.
Dokumenter for sameiet og kopi av seksjonsbegjæringen kan fås ved henvendelse til megler.
Overtakelse
Etter nærmere avtale.
Boligselgerforsikring
Selger har i forbindelse med salget tegnet boligselgerforsikring levert av Gjensidige.
Boligselgerforsikringen dekker selgers ansvar etter avhendingsloven begrenset oppad til kr 14 millioner. Dersom kjøper oppdager forhold ved eiendommen som hen mener utgjør en mangel ved eiendommen, vil Gjensidige behandle reklamasjonen på vegne av selger. Forsikringsvilkår kan fås ved henvendelse til megler.
Vedlagt salgsoppgaven følger selgers egenerklæringsskjema og tilstandsrapport. Interessenter må sette seg inn i dokumentene før bud inngis.
Boligkjøperforsikring
Innen kontraktsmøtet må kjøper ta stilling til om det ønskes å bestille Boligkjøperpakken gjennom Gjensidige. I denne gunstige pakken er boligen ferdig forsikret og inkluderer rettshjelpsforsikring, også kalt Boligkjøperforsikring. Rettshjelpsforsikring gir trygghet og tilgang på profesjonell juridisk hjelp dersom det oppdages uventede feil eller mangler det første året etter overtagelse. Forsikringsselskapet behandler i så fall ethvert mangelskrav kjøper måtte ha overfor selger.
Boligkjøperpakken inkluderer bygningsforsikring for hus og hytte, innboforsikring, flytteforsikring og dobbel rentedekning - i situasjoner hvor kjøper ikke får solgt nåværende primærbolig.
Kjøper mottar ingen særskilt faktura for Boligkjøperpakken da kostnaden det første året legges til kjøpesummen for boligen. Det gjøres oppmerksom på Krogsveen mottar et honorar for denne formidlingen.
Produktark for Boligkjøperpakken ligger vedlagt i salgsoppgaven.
Dersom ikke boligkjøperpakke ønskes kan kun rettshjelpsforsikring, også kalt boligkjøperforsikring, tegnes særskilt via megler. Rettshjelpsforsikringen varer i 5 år fra overtagelse og leveres gjennom Gjensidige. Ta kontakt med megler for ytterligere informasjon.
Selskap og privatpersoner som driver med kjøp/salg/utvikling som ledd i egen næringsvirksomhet kan ikke tegne boligkjøperpakke eller rettshjelpsforsikring.
Budgivning
Forbrukerinformasjon om budgivning er vedlagt denne salgsoppgaven og er også på vår hjemmeside www.krogsveen.no. Alle bud og budforhøyelser må inngis skriftlig. I tillegg må legitimasjon være fremlagt sammen med signatur fra budgiver.
Vi oppfordrer til å gi bud elektronisk via GI BUD-knappen på eiendommens hjemmeside på Krogsveen.no. Da vil samtlige vilkår bli oppfylt.
Eventuelle forhøyelser eller endringer av budet kan bekreftes pr SMS eller på e-post. Vi oppfordrer alltid til å kontakte megler pr. telefon i tillegg da forsinkelser i SMS og e-post kan forekomme.
For at budene skal kunne bli behandlet og videreformidlet skriftlig til alle involverte parter, må alle bud ha en tilstrekkelig lang akseptfrist, jf. eiendomsmeglingsforskriften § 6-3.
Selger må også skriftlig akseptere budet før aksept kan formidles til budgiver. Akseptfrist bør derfor være på minimum 30 minutter, og budforhøyelser må derfor skje i god tid før fristens utløp.
Bud i forbrukerforhold kan uansett ikke settes med kortere frist enn kl. 12.00 første virkedag etter siste annonserte visning.
Etter at eiendommen er solgt vil kjøper og selger få tilsendt budjournal. Øvrige budgivere kan få utlevert kopi av budjournalen i anonymisert form.
Hvitvaskingsreglene
I henhold til lov om hvitvasking og terrorfinansiering har megler plikt til å gjennomføre kontrolltiltak overfor kunder, herunder fullmektiger. Dette innebærer bl.a. å bekrefte kunders og reelle rettighetshaveres identitet på bakgrunn av fremvist gyldig legitimasjon eller på annen godkjent måte, samt å innhente opplysninger om kundeforholdets formål og tilsiktede art.
Dersom slike kundetiltak ikke kan gjennomføres, kan megler ikke etablere kundeforholdet eller utføre transaksjonen.
Hvis kjøper ikke bidrar til gjennomføring av kundekontrollen og dette fører til at transaksjonen blir forsinket eller ikke kan gjennomføres, vil dette ansees som mislighold av avtalen og gi selger rettigheter etter avhendingslova kapittel 5. I tilfeller der selger ikke bidrar til gjennomføring av løpende kundekontroll underveis i oppdraget, er det selger som misligholder sine forpliktelser etter avtalen og gi kjøper rettigheter etter avhendingslovens kapittel 4. Partene er selv ansvarlige for eventuelle kostnader og ansvar dette kan medføre. Eiendomsmegleren eller eiendomsmeglingsforetaket kan ikke holdes ansvarlig for de konsekvenser dette vil kunne få for partene eller andre som har interesser i eiendomshandelen.
Kjøper oppfordres til å innbetale kjøpesummen som ikke kommer fra låneinstitusjon i én samlet innbetaling fra egen konto i norsk bank. Megler har plikt til å melde fra til Økokrim om eiendomshandler som fremstår som mistenkelige. Melding sendes Økokrim uten at partene varsles.
Personopplysningsloven
I henhold til personopplysningsloven gjør vi oppmerksom på at interessenter kan bli registrert for videre oppfølging.
Lovanvendelse
Generelle bestemmelser
Salgsoppgaven er basert på de opplysningene selger har gitt til megler, den bygningssakyndiges tilstandsrapport, samt opplysninger innhentet fra kommunen, Kartverket og andre tilgjengelige kilder. Det er viktig at kjøper setter seg grundig inn i alle salgsdokumentene, herunder salgsoppgave, tilstandsrapport og selgers egenerklæring. Kjøper anses kjent med forhold som er tydelig beskrevet i salgsdokumentene, og slike forhold kan ikke påberopes som mangler. Dette gjelder uavhengig av om kjøper har lest dokumentene. Alle interessenter oppfordres til å undersøke eiendommen nøye, gjerne sammen med fagkyndig før bud inngis. Kjøper som velger å kjøpe usett kan ikke gjøre gjeldende som mangel noe han burde blitt kjent med ved undersøkelsen.
Dersom det er behov for avklaringer, anbefaler vi at interessenter rådfører seg med eiendomsmegler eller egne rådgivere før det legges inn bud.
En bolig som har blitt brukt i en viss tid, har vanligvis blitt utsatt for slitasje og skader kan ha oppstått. Slik bruksslitasje må kjøper regne med, og det kan avdekkes enkelte forhold etter overtakelse som nødvendiggjør utbedringer. Normal slitasje og skader som nødvendiggjør utbedring, er innenfor hva kjøper må forvente og vil ikke utgjøre en mangel.
Kjøper og selgers rettigheter og plikter reguleres av avtalen mellom partene, samt informasjonen som har vært tilgjengelig for kjøperen i forbindelse med handelen. Avtalen utfylles av avhendingsloven, og det gjelder ulike avtalevilkår avhengig av om kjøper er forbrukerkjøper eller ikke. Dette er nærmere beskrevet nedenfor.
På grunn av ulike avtalevilkår kan selger vurdere bud fra en som ikke er forbruker, ulikt fra en forbrukers bud. Dersom kjøper ikke er forbruker, er selger sitt mulige mangelsansvar begrenset fordi eiendommen selges "som den er". Selger kan ikke ta «som den er»- forbehold overfor en forbrukerkjøper. Selv et lavere bud fra en som ikke er forbruker kan foretrekkes fordi begrensningen i mulig mangelsansvar kan ha egenverdi for selger. Selger står fritt til å forkaste eller akseptere ethvert bud, og er for eksempel ikke forpliktet til å akseptere høyeste bud.
Budgiver skal i budskjema avgi egenerklæring om budgiver er forbruker eller næringsdrivende/ person som hovedsakelig handler som ledd i næringsvirksomhet. Budgivere får informasjon dersom andre bud er inngitt av en som ikke er forbruker.
Forbrukerkjøp - definisjon
Med forbrukerkjøp menes kjøp av eiendom når kjøperen er en fysisk person som ikke hovedsakelig handler som ledd i næringsvirksomhet.
Forbruker – avtalevilkår
Eiendommen har en mangel dersom den ikke er i samsvar med kravene som følger av avtalen, eller det foreligger brudd på bestemmelsene i avhendingsloven §§ 3-2 til 3-8. Hvis eiendommen ikke er i samsvar med det kjøperen må kunne forvente ut ifra alder, type og synlig tilstand, kan det være grunnlag for mangelskrav. Det samme gjelder hvis det er holdt tilbake eller gitt uriktige opplysninger om eiendommen. Dette gjelder likevel bare dersom man kan gå ut ifra at det virket inn på avtalen at opplysningen ikke ble gitt eller at mangelskravet ikke blir rettet i tide på en tydelig måte.
Boligen kan ha en mangel etter avhendingsloven § 3-3 andre ledd, dersom det er avvik mellom opplyst og faktisk innvendig areal, forutsatt at avviket er på 2% eller mer og minimum 1 kvm.
Ved beregning av et eventuelt prisavslag eller erstatning må kjøper selv dekke tap/kostnader opptil et beløp på kr 10 000 (egenandel).
Ikke-forbruker (næringsdrivende) – definisjon
Hvis kjøper er en juridisk person, eller en fysisk person som hovedsakelig handler som ledd i næringsvirksomhet, vil kjøpet ikke anses som et forbrukerkjøp.
Ikke-forbruker – avtalevilkår
Eiendommen har en mangel dersom den ikke er i samsvar med kravene som følger av avtalen.
Eiendommen selges «som den er», og selgers ansvar utover det konkret avtalte er da begrenset etter avhendingsloven § 3-9, første ledd andre setning.
Avhendingsloven § 3-3 andre ledd fravikes, og hvorvidt boligens arealsvikt utgjør en mangel vurderes etter avhendingsloven § 3-8.
Informasjon om kjøpers undersøkelsesplikt, herunder oppfordringen om å undersøke eiendommen nøye, gjelder også for kjøpere som ikke anses som forbrukere.
Det forutsettes at hjemmel overføres til kjøper. Hvis kjøper ikke ønsker hjemmelsoverføring av eiendommen, må det tas forbehold om dette i budet.
Meglers vederlag
Meglers vederlag betales av selger og er avtalt til:
Vederlag: kr 60 000,-
Vederlag
Foto Image Day kr 5 000,-
Kontroll av hjemmel og heftelser kr 2 900,-
Markedsføringspakke kr 27 400,-
Oppgjør kr 7 500,-
Tilrettelegging kr 17 000,-
Visninger pr stk / Overtagelse kr 4 000,-
Utlegg
Innhenting av offentlig opplysninger kr 3 000,-
Tinglysing sikring kr 545,-
Innhenting av dokumenter/servitutter fra grunnboken kr 260,- pr stk
Andre utgifter
Tilstandsrapport fra bygningssakkyndig kr 19 900,-
Opplysninger om oppdraget
Oppdragsnummer 60-0226/25
Eiendomsmegler Krogsveen AS, avd. Lillestrøm
Adolph Tidemands gate 38, 2000, LILLESTRØM
950 007 613
Oppdragets KR-kode KR60.25226
Dato
Sist oppdatert: 15. januar 2026 kl. 14:22
Dokumenter
Dokumenter
PDF – 375 KB
PDF – 688 KB
PDF – 1022 KB
PDF – 1017 KB
PDF – 82 KB
PDF – 394 KB
PDF – 1 MB
PDF – 938 KB
PDF – 243 KB
PDF – 312 KB
PDF – 29 KB
PDF – 127 KB
PDF – 392 KB
Område
Legg til steder som er viktige for deg
Visning
Det er ingen planlagte visninger. Meld deg på for å avtale en tid som passer.
Lurer du på noe?
Unngå doble boligrenter
Vi tilbyr gunstig forsikring.
Vurderer du utleie?
Få et tilbud fra Utleie KrogsveenHva koster lånet?
Sjekk estimert lånekostnadVil du varsles om lignende boliger?
Ved å lagre ditt boligsøk hos oss får du beskjed når vi har en bolig som ligner denne, før den legges ut på markedet!




