Solberg Østli 40
6 650 000 kr
231 m²
4 soverom
Komplett salgsoppgave
Skedsmokorset
Innholdsrik enebolig i usjenert og landlige omgivelser på Skedsmokorset | Stor og solrik tomt | 2 stuer | Dobbeltgarasje
Prisantydning
6 650 000 krOmkostninger
187 240 krTotalpris
6 837 240 kr
Pris
Bruksareal
292 m²BRA-I (internt bruksareal)
231 m²BRA-E (eksternt bruksareal)
61 m²TBA (terrasse-balkongareal)
31 m²
Areal
Etasje
2Byggeår
1969Soverom
4 soveromBad
1 badTomteareal
2 512 m² (eiet)Type
Enebolig - FrittliggendeEierform
EietEnergimerke
Oransje E
Nøkkelinfo
Unngå doble boligrenter
Vi tilbyr gunstig forsikring.
Vurderer du utleie?
Få et tilbud fra Utleie KrogsveenHva koster lånet?
Sjekk estimert lånekostnadBeskrivelse
Kort om eiendommen
Velkommen til Solberg Østli 40! Presenteres av Jørgen Gabrielsen v/Krogsveen avd. Skedsmokorset. Dette en stor og innholdsrik enebolig som ligger usjenert til. Boligen har en stor tomt med gode solforhold med god plass til både lek for barna og uteplasser for avslapping og hygge. I tillegg er det kort vei til skog og mark med rikelig med turmuligheter. Boligen går over to plan med 1. etasje og en loftsetasje noe som gir flere soner, både for sosiale og private settinger. En bolig verdt å se som tilbyr det beste fra begge verdener - roen på landet og bekvemmeligheten av byen.
Velkommen til visning!
Kort fortalt:
- Usjenert beliggenhet
- Solrik tomt på ca. 2,5 mål
- Landlig og rolig område
- Umiddelbar nærhet til skog og mark.
- Kort kjøretur til sentrumsnære områder
- Dobbelgarasje
Innhold og byggemåte
Innhold og byggemåte
Eiendommen
Solberg Østli 40, 2020 SKEDSMOKORSET
Kommunenummer 3205, gårdsnummer 49, bruksnummer 121, ideell andel 1/1
Innhold
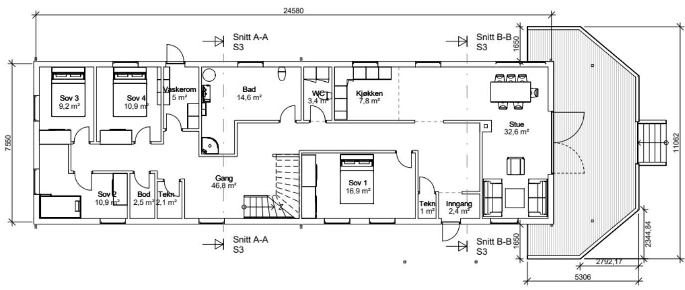
Totalt bruksareal BRA: 292 kvm
BRA-i:
Enebolig :
1. etasje 174 kvm: Vindfang, gang, stue/kjøkken, 4 soverom, bad, vaskerom, toalettrom, teknisk rom, bod, bod 2
2. etasje 57 kvm: Stue, soverom
BRA-e:
Garasje :
1. etasje 61 kvm: Garasje, Bod
Åpent areal:
Enebolig :
1. etasje 31 kvm: Terrasse
Takstmanns kommentar til arealoppmåling:
Det er i tillegg en overbygget støpt platting på ca. 11 kvm belagt med fliser og murte pussede levegger og elementpeis.
Det er også en vedbod med grusgulv på eiendommen, men denne er ikke målbar pga. lav takhøyde.
Arealet i denne boligen er vanskelig eller umulig å måle opp helt nøyaktig på grunn av utforming/innredning av rom/bygningskonstruksjoner med skråtak og skråvinkler.
Arealet er fastsatt omtrentlig og skjønnsmessig avvik kan forekomme. Om arealet skal måles helt nøyaktig anbefales det å innhente Romly AS eller lignende for å gjøre en laserscanning av boenheten.
Byggemåte
Selger har fått utarbeidet en tilstandsrapport, dvs. en teknisk gjennomgang av boligen hvor eventuelle avvik, risiko for kjøper og prisoverslag for hva som bør gjøres av oppgradering, er skissert. Se særskilt TGIU (tilstandsgrad ikke undersøkt), samt TG2 og TG3 som viser hva som er boligens normale slitasje, alder og type, hva som er avvik fra dette og hva som bør/må utbedres. Rapporten og selgers egenerklæring er en del av salgsoppgaven og må leses nøye før bud inngis. Kjøper overtar ansvaret for de opplysninger som fremkommer av salgsdokumentasjonen, og kan ikke gjøre gjeldende som mangel noe som burde vært kjent eller som ikke kan anses å ha betydning for avtalen.
Bygningen er iht. tilstandsrapporten oppført i tre. Les for øvrig mer om byggemåte og den tekniske tilstanden i rapporten. Enebolig oppført i 1969 som går over ett plan med loftsetasje, samt en krypkjeller med tilgang via luke i gulv. Krypkjelleren har lav takhøyde opp til stubbloft og er derfor svært begrenset besiktiget.
Følgende forhold har fått tilstandsgrad2 av takstmann:
Utvendig:
> Taktekking - Mer enn halvparten av forventet brukstid er passert på taktekkingen og på undertak.
> Nedløp og beslag - Det er ikke tilfredsstillende bortledning av vann fra taknedløp ved grunnmur. Det mangler snøfangere på hele eller deler av taket, men det var ikke krav om dette på byggemeldingstidspunktet. Mer enn halvparten av forventet brukstid er passert på renner/nedløp/beslag.
> Veggkonstruksjon - Det er ingen eller liten luftig i nedre kant av kledning mot grunnmur. Bordkledning går stedvis nesten helt ned i terreng. Det er ingen musesperre i nedre kant av konstruksjon. Det er værslitt/oppsprukket trevirke/trepaneler.
> Vinduer - Noe svertesopp på takvinduer samt noe utvendig mose. Noe rennemerker på innramming av takvinduer innvendig.
> Dører - Det er påvist utetthet/åpning mellom karm og dørkarm. Ytterdør må justeres.
Innvendig:
> Overflater - Det observerer bom under flere fliser på gulv i stue/kjøkken og gang. Det mangler stedvis noe fugemasse, pga samme årsak. Det er også diverse høydeforskjeller på fliser.
> Innvendige dører - Enkelte innvendige dører har en del slitasje.
Bad 1. etasje:
> Overflater vegger og himling - Det er vindu/dør med ikke fuktbestandige materialer i våtsonen.
> Overflater gulv - Det er påvist at høydeforskjell fra topp slukrift til gulv/synlig topp membran ved dørterskel er mindre enn 25 mm. Det er påvist avvik i fallforhold til sluk i forhold til krav i forskrift på byggetidspunktet.
> Sluk, membran og tettesjikt - Det er påvist mangelfull/feil utførelse rundt rørgjennomføringer e.l. som gir fare for fukt i konstruksjonen i våtsone. Mer enn halvparten av forventet brukstid er passert på membranløsningen.
> Sanitærutstyr og innredning - Det er ikke påvist tilfredsstillende løsning for å synliggjøre lekkasje fra innebygget sisterne.
> Ventilasjon på bad - Elektrisk avtrekksvifte bør monteres for å lukke avviket. Dårlig ventilasjon på et våtrom kan føre til alvorlige konsekvenser som fuktskader og muggvekst.
Vaskerom 1. etasje:
> Overflater vegger og himling - Det observeres et hakk i en flis.
> Overflater gulv - Det er påvist at høydeforskjell fra topp slukrist til gulv/synlig topp membran ved dørterskel er mindre enn 25 mm. Det observeres hakk i noen gulvfliser.
> Sluk, membran og tettesjikt - Mer enn halvparten av forventet brukstid er passert på membranløsningen.
> Ventilasjon - Rommet har kun naturlig ventilasjon
1. etasje stue og kjøkken:
> Overflater og innredning - Det er registrert tegn til mus i kjøkkenskap. Forekomst av mus i kjøkkeninnredning anses som et hygienisk avvik og kan medføre forurensning av oppbevaringsområder for mat og kjøkkenutstyr. Mus kan også forårsake skader på skapinnredning, rørføringer og eventuelle elektriske installasjoner i kjøkkenområdet. Tilstedeværelse av mus indikerer at det kan foreligge åpninger eller utettheter i tilstøtende bygningsdeler, eksempelvis ved rørgjennomføringer, gulv, vegger eller tilknytning mot krypkjeller eller yttervegg.
1. etasje toalettrom:
> Overflater og konstruksjon - Det er ikke påvist tilfredsstillende løsning for å synliggjøre lekkasje fra innebygget sisterne. Toalettrom har kun naturlig avtrekk fra rommet.
Tekniske installasjoner:
> Vannledninger - Mer enn halvparten av forventet brukstid er passert på innvendige vannledninger. Det mangler tettemuffer i enden av varerør på rør-i-rør-system. Rørkursene på rør-i-rør systemet på vannledninger er ikke merket.
> Avløpsrør - Mer enn halvparten av forventet brukstid er passert på innvendige avløpsrør.
> Ventilasjon - Det er påvist mangelfull ventilasjon på ett eller flere rom i boligen.
> Varmesentral - Mer enn halvparten av forventet brukstid på varmesentral er oppbrukt. Det observeres mye rust på flere koblinger i forbindelse med varmeanlegget på teknisk rom.
> Varmtvannstank - Det er påvist at varmtvannstank er over 20 år.
> Vannbåren varme - Mer enn halvparten av forventet brukstid er passert på anlegg for vannbåren varme.
Tomteforhold:
> Fuktsikring og drenering - Mer enn halvparten av forventet levetid på drenering er overskredet.
> Grunnmur og fundamenter - Ringmuren har sprekkdannelser og riss.
> Forstøtningsmurer - Det er påvist mindre sprekker og/eller skjevheter i muren.
Følgende forhold har fått tilstandsrgrad 3 av takstmann:
> Takkonstruksjon/loft - Det er begrenset/dårlig ventilering av takkonstruksjonen. Det er påvist fukt-/råteskader i takkonstruksjonen. Det er påvist fuktskjolder/skader i takkonstruksjonen. Det er registrert skader etter aktivitet av skadedyr. Kostnadsestimat: kr. 20 000 - 100 000,-.
> Etasjeskiller/ gulv mot grunn - Målt høydeforskjell på over 20 mm innenfor en lengde på 2 meter. Kostnadsestimat: Kr. 100 000 - 200 000,-.
> Pipe og ildsted - Det er påvist brennbart materiale nærmere enn 300 mm fra sotluke/feieluke. kostnadsestimat: Under kr. 20 000,-.
> Krypkjeller - Det er ikke adkomst til deler av krypkjelleren. Krypkjeller er kun vurdert i tilgjengelige deler. Krypkjeller regnes for å være en risikokonstruksjon som er utsatt for fukt- og råteskader i bunnsvill, trebjelkelaget og andre tilstøtende konstruksjoner, på grunn av fuktighet fra grunnen og kondensering ved temperaturforskjeller. Selv om det ikke er avdekket tegn på skader, betyr ikke dette nødvendigvis at det ikke foreligger skader i eller i forbindelse med krypkjelleren. Det er ikke tilfredsstillende ventilering av krypkjeller. Det er påvist skader på konstruksjoner i krypkjeller som er forårsaket av råte eller sopp. Det er stedvis påvist fuktnivå som tilsier at konstruksjonen kan ha fuktskader. Det er manglende fuktsperre på bakken. Det er ved fuktmåling i bunnsvill i krypkjeller registrert et fuktnivå på ca. 14,6 vektprosent. Treverk skal normalt ha under 15. Det observeres mye svertesopp i luke ned til krypkjeller og i stubbloft. Pga lav høyde mellom terreng og krypkjeller er fare for fuktskader høy. Det er registrert symptom på aktivitet fra mus. Det er påvist saltutslag på murvegger i krypkjeller. Kostnadsestimat: Kr. 200 000 - 500 000,-.
Sammendrag fra selgers egenerklæringsskjema:
Er det utført arbeid på det elektriske anlegget?
- Ja, det elektriske er oppgradert, usikker på årstall. Arbeidet ble utført av fagfolk.
Er det utført arbeid på utvendige eller innvendige avløpsrør eller vannrør?
- Ja, Avløpsrør fra bad/toalett når bolig ble tilknyttet offentlig vann og avløp. Arbeid utført av Rørprosjekt, industriveien 3, 2020 Skedsmokorset.
Fortell kort hva som ble gjort av faglærte.
- Avløpsrør og vannrør inn til grunnmur
Hvilket firma utførte jobben?
- Romerike maskin
Har det vært skadedyr i boligen eller andre bygninger på eiendommen?
- Har vært inntrenging av mus fra krypkjeller, det er gjort tiltak for å forhindre dette problem.
Har du andre opplysninger om boligen eller eiendommen utover det du har svart?
- Garasjen har et tilbygg i bakkant på 20 kvm som det ikke er søkt tillatelse for
Standard
E N T R É
Enebolig med et hyggelig, overbygget inngangsparti. Trappen opp til inngangspartiet er belagt med skifer og boligen har en ytterdør av teak med sidefelt med glass. Når du kommer inn blir du møtt med en romslig entré med flislagt gulv og god plass til å henge fra seg yttertøyet. I entréen er det plassert en vedfyrt peis som gir både varme og setter stemningen når man kommer inn i boligen. Videre er det plassbygd skyvedøresgarderobe med speil og ytterligere plass til skostativ, kommoder o.l.
K J ØK K E N
Kjøkkeninnredning med profilerte fronter og rikelig med skapplass . Laminert benkeplate som tilbyr mye arbeidsplass og vindusflater som slipper inn naturlig lys, samt downlights i tak som gir gode lysforhold under matlagingen. Oppvaskkum av stål med ett greps blandebatteri. Integrert koketopp, stekeovn og opplegg for oppvaskmaskin. Keramiske fliser mellom over og underskap. Det er kjøkkenventilator med avtrekk ut.
S T U E
Flislagt stue med god plass til langbordet hvor man kan samle familie og venner for hyggelig stunder. Midt i stuen er det plassert en lekker, flislagt peis som er påkoblet elementpipe. Stuen har også plass til sofakroken med TV-benken. Rommet har store vinduer og en terrassedør ut mot terrassen som er målt opp til ca. 31 kvm.
B A D
Boligen har et romslig bad med både innmurt hjørnebadekar og en større dusjsone. Badet har keramiske fliser på gulv og vegger med varme i gulvet. Baderomsinnredningen består av glatte fronter på benkeskap med dobbelt servant, vegghengt skap med speil og belysning og vegghengt håndkletørker. Ved siden av badekaret er det et vegghengt toalett og på vegg mot gang er det et felt med glassbyggerstein mot. Bak badekaret er det to innfelte speil i veggen. Dusjhjørnet har skyvedører. Innfelte speil i vegg. Taket har panel. Det er naturlig ventilering ut på vegg med tilluftspale under dør.
I 1.etasje er det også et toalettrom med vegghengt toalett og servant i innredningen. Toalettrommet har gulv og vegger med keramiske fliser.
V A S K E R O M
Praktisk vaskerom med egen utgang til baksiden av boligen. Rommet har keramiske fliser på gulv og vegg. Innredningen består av vegghengt skap med rikelig plass til oppbevaring, laminert benkeplate med nedfelt skyllekum av stål og opplegg for vaskemaskin. Taket er malt. Det er naturlig ventilering med tilluftspalte under dør. Hulltaking er foretatt, uten å påvise unormale forhold.
S O V E R O M
Boligen har fire gode soverom. Tre av soverommene ligger i enden av boligen hvorav alle er av god størrelse med plass til en god seng og tilhørende soveromsmøblement, garderobeskap og diverse. Hovedsoverommet ligger i nær adkomst fra entréen og har en meget god størrelse med flere innredningsmuligheter.
L O F T
I loftsetasjen er det en stue av meget god størrelse, godt belyst med downlights og vindusflater i taket som slipper inn rikelig med naturlig lys. Rommet kan fint benyttes som en stue/lekerom for barna eller som et bibliotek o.l. I tillegg er det et rom i etasjen som er brukt som et kontor.
Løsøre og tilbehør
Vi viser til liste fra Norges Eiendomsmeglerforbund som gjelder fra 01.01.2020 angående løsøre og tilbehør.
Vaskemaskin vil ikke medfølge eiendommen.
Alle fastmonterte hvitevarer vil medfølge eiendommen: Kokeplate, steinovn og oppvaskmaskin.
Oppvarming
Hele 1. etasje er oppvarmet med vannbåren gulvvarme med vann til vann varmepumpe plassert i teknisk rom. Boligen har en elementpipe som er flislagt i gang påkoblet peisovn i gangen og i stuen.
Dersom beboelsesrom ikke har vegg- eller fastmonterte varmekilder ved visning, følger dette heller ikke med.
Ferdigattest/brukstillatelse
Eiendommen har vært brukt til boligformål siden 1966.
Kommunen opplyser at det ikke foreligger ferdigattest eller midlertidig brukstillatelse for eiendommen. Det finnes av den grunn ikke dokumentasjon over eiendommens lovlighet.
Det foreligger ferdigattest for bruksendring fra fritidsbolig til enebolig med tilbygg til bolig datert 17.12.2025.
Ferdigattesten omfatter ikke tilbygget på garasjen. Tilbygget er ikke godkjent gjennom kommunen.
Det foreligger en approbert byggeanmeldelse på garasjen datert 19.08.1980. Dette er en godkjenning til oppføring av garasje. Videre foreligger det et byggetillatelseskort for garasjen datert 11.09.1980.
Kjøper overtar eiendommen slik den fremstår på visning med risiko og ansvaret for eventuelle pålegg fra kommunen og kostnader forbundet med dette.
Det gjøres oppmerksom på at det ikke lenger utstedes ferdigattest på tiltak det er søkt om før 1998 jf. plan- og bygningsloven § 21-10. Kommunen vil ikke kreve ferdigattest for disse tiltakene og vil avvise eventuelle søknader. Bestemmelsen innebærer ikke at tiltak med manglende søknad blir lovlige, men at man ikke trenger å avslutte gamle byggesaker. Normalt sett kreves ferdigattest for alle søknadspliktige tiltak som gjøres etter plan- og bygningsloven.
Tinglyste heftelser og rettigheter
Det er tinglyst følgende servitutter på eiendommen:
Dagboknr 143369, tinglyst 20.02.2012, type heftelse: Erklæring
Servitutten omhandler rett for eier av Gnr. 49, Bnr. 120 til å ta vann fra brønn på eiendom med Gnr. 49, Bnr. 121. Retten omfatter også nødvendige installasjoner i og ved brønnen, slik som ledninger, pumpe, kran mv. og andre innretninger som sikrer vanntilførselen til rettigheteshaver. Retten omfatter også ubegrensest adgang til området ved brønnen for eier av Gnr. 49, Bnr 120 til vedlikehold, ettersyn, reparasjoner mv.
Dagboknr 269092, tinglyst 22.03.2016, type heftelse: Erklæring
Servitutten sier at undertegnede eier av Gnr. 49, Bnr. 121 gir Skedsmo kommune tillatelse til å etablere og ha liggende ledningsnett for vann og avløp med tilhørende kummer på sin eiendom. Anlegget vil vises på Skedsmo kommunes database for vann og avløp. Ledningen vil følge en trase som er i eller i tilknytning til veien. Det utbetales et engangsvederlag på 5 000 kr for erklæringen.
Følgende servitutt er tinglyst på hovedbølet. Servitutten følger eiendommen:
Dagboknr 5237, tinglyst 29.12.1966, type erklæring: Målebrev
Servitutten bekrefter at undertegnede eiere og hjemmelshavere av Gnr. 41, Bnr. 1 og Gnr, 41. Bnr. 4 gir eiendommen "Trybo" parsell av Solberg, gnr. 49, Bnr 1 rett til kjørevei frem til offentlig vei over eiendommene som er tegnet opp i kart- og oppmålingsforretningen.
Dokumentet for følgende servitutter er håndskrevet og vanskelig å tyde, men hefter i eiendommen og er tinglyst på hovedbølet:
Elektriske kraftlinjer: Dokumentnr 900002, tinglyst 26.01.1939
Elektriske kraftlinjer: Dokumentnr 105107, tinglyst 25.09.1953
Kopi av dokumentet kan ås ved henvendelse til megler.
Servituttene vil følge eiendommen. Kjøpers bank vil få prioritet etter ovennevnte heftelser og servitutter.
Eventuell adgang til utleie
Eiendommen har ikke separat utleieenhet. Det vil normalt være anledning til utleie av hele eiendommen eller enkeltrom, såfremt utleiearealet er bygningsmessig godkjent for varig opphold og har forsvarlige radonnivåer.
Beliggenhet og tomteforhold
Beliggenhet og tomteforhold
Beliggenhet
Boligen ligger i landlige omgivelser mellom Skedsmokorset og Nittedal, innerst i en blindvei. Her ligger boligen usjenert til med marka i umiddelbar nærhet. Tæruddalen ligger rett ved inngangen til Romeriksåsen og kan by på flere flotte tur- og skiløyper samt badevann, gapahuk med bålplass og ringdalshytta.
Nærområdet byr på diverse aktivitetstilbud som volleyballbane, fotballbaner, rulleskibane, paddelhall med mer.
Ca 5 min kjøretur fra boligen ligger Skedsmokorset som har skedsmosenter med alle nødvendige servicetilbud samt flere klesbutikker, sportsbutikk, interiør apotek og vinmonopol. Skedsmokorset har også flere dagligvareforretninger som Kiwi, Meny, Coop Extra, rema 1000 og europris. Det er også flere aktivitetstilbud på Skedsmokorset med ishall, fotballbaner og flere treningssenter.
Det er ca 23 min med bil til Oslo og ca 10 min til Lillestrøm som har alt av bymessige fasiliteter. Det tar også ca 26 min med bil til Gardermoen.
Adkomst
Det vil bli skiltet med Krogsveen visningsskilt ved fellesvisninger.
Barnehager, skoler og fritid
Tæruddalen barnehage 2.8 km
Skolsegglia Fus barnehage 4.1 km
Romerike barnehage Solhaug 4.3 km
Brånås skole 4 km
Åsenhagen skole 4.5 km
Oks friskole 6.5 km
Romerike Steinerskole 7.5 km
Tæruddalen skole 3.3 km
Bjertnes videregående skole 9.8 km
Lillestrøm videregående skole 9.8 km
Informasjon om tilhørende skolekretser er hentet fra Prognosesenteret som dataleverandør, og tilhørigheten kan årlig endres av kommunen. Dersom skole- og barnehagetilbud er av betydning for kjøpet, ber vi om at det rettes en særskilt henvendelse til kommunen/bydelsadministrasjonen for oppdatert informasjon.
Beskrivelse av tomt
Eiertomt på 2 512 kvm. Tomten er opparbeidet med plen, prydbusker og ellers beplantning.
Parkering
Parkering på asfaltert gårdsplass, samt i dobbelgarasje. Det er mulighet for etablering av lader til elbil i garasjen.
Vei, vann og avløp
Eiendommen har adkomst via privat vei med felles vedlikeholdsansvar.
Eiendommen er tilknyttet kommunalt ledningsnett via private stikkledninger. Eier er selv ansvarlig for private stikkledninger til boligen.
Regulerings-og arealplaner
Eiendommen er regulert til boligbebyggelse i henhold til reguleringsplan for solbergområde: Langgata, Solberg Vestli, Solberg Østli, Ramstadveien og Ringdalsveien datert 07.02.2011 (sist endret 26.06.2020) med tilhørende reguleringsbestemmelser datert 07.02.2011.
Eiendommen er i kommuneplanen avsatt til boligbebyggelse - nåværende.
Området rundt boligfeltet er avsatt i kommuneplanen til LNFR (landbruks-, natur- og friluftsliv samt reindrift) - nåværende.
I følge kommuneplanen går det en faresone - høyspenningsledninger som strekker seg over naboeiendommen. Det er i tillegg i nærliggende område en båndleggingssone i kommuneplanen.
Utsnitt av plan med tilhørende bestemmelser kan fås ved henvendelse til megler.
Økonomi
Økonomi
Kommunale utgifter
Kommunale avgifter er kr 19 122,02,- for inneværende år. I dette inngår gebyr for vann, avløp, renovasjon og feiing/tilsyn.
A-konto for vann og avløp beregnes og faktureres etter faktisk forbruk.
Nåværende eier har et strømforbruk som tilsvarer ca. kr 42 000,- pr. år.
I selgers husstand har det bodd 1 menneske og det opplyses om at strømforbruket har vært ca 23 046 kwh for 2025.
Boligen har en årlig forsikringspremie på kr 15 000,-.
Utgiftene er basert på nåværende eiers forbruk og avtaler.
Det foreligger refusjonskrav fra kommunen for utarbeidelse av infrastruktur på området. Det foreløpige refusjonsfordelingen er på kr. 281 454,-. Kommunen opplyser at innbetalingen for denne eiendommen forfaller fem uker etter at endelig refusjonsvedtak er sendt ut. Beløpet kan deles opp og betales over inntil fem år i årlige terminer, med rentesats fastsatt av departementet. Kommunen arbeider nå med å ferdigstille endelig refusjonsvedtak for Solberg Østli, endelig vedtak er planlagt sendt ut innen første halvår 2026. Etter informasjon fra selger kan selger dekke refusjonskravet ved avtale. Det må legges inn som forbehold i bud.
Formuesverdi
Ved hjelp av skatteetatens boligkalkulator er boligens formuesverdi beregnet til kr. 1 637 602 for fjoråret når boligen benyttes som primærbolig.
Formuesverdien er en gitt prosent av den beregnede markedsverdien. Beregnet markedsverdi er basert på Statistisk sentralbyrå (SSB) sine opplysninger om omsatte boliger. I beregningen tas det hensyn til boligens beliggenhet, areal, byggeår og boligtype.
Det er eier av boligen som fastsetter formuesverdien, jf. skatteforvaltningsloven § 9-1 første ledd, men skattemyndighetene kan kontrollere at verdien er satt riktig.
Formuesverdi skal ikke overstige:
Primærbolig: 25 % av beregnet eller dokumentert markedsverdi opp til kr. 10 000 000, og deretter 70 % av den overskytende markedsverdi.
Sekundærbolig: 100 % av beregnet eller dokumentert markedsverdi.
Formuesverdier som overstiger disse grensene, kan kreves nedjustert av eier.
For mer informasjon se skatteetaten.no
Eiendomsskatt
Eiendomsskatten utgjør kr. 770,- pr år.
Omkostninger
6 650 000,00 Prisantydning
Omkostninger
166 250,00 Dokumentavgift til staten (2,5% av kjøpesum)
19 900,00 Gjensidige Boligkjøperpakke (valgfri)
545,00 Tinglysing panterettsdokument
545,00 Tinglysing skjøte
--------------------------------------------------------
187 240,00 Omkostninger totalt
--------------------------------------------------------
6 837 240,00 Totalpris inkl. omkostninger
--------------------------------------------------------
Totalpris inkl. omkostninger forutsetter kjøp til prisantydning.
Det tas forbehold om endringer i avgifter og gebyrer.
Betalingsbetingelser
Kjøpesum inkludert omkostninger, samt pantedokument tilknyttet eventuelt lån, skal være disponibelt hos megler 2 virkedager før overtagelsen.
Annen viktig informasjon
Annen viktig informasjon
Eier
Bjørn Arild Brox
Konsesjon
Da eiendommen er over 2 mål er den i utgangspunktet underlagt konsesjonslovgivning, og kjøper må ved kontrakt undertegne egenerklæring om konsesjonsfrihet. Denne erklæringen må godkjennes fra kommunen før eiendommen kan overskjøtes til kjøper.
Overtakelse
Etter nærmere avtale.
Boligselgerforsikring
Selger har i forbindelse med salget tegnet boligselgerforsikring levert av Gjensidige.
Boligselgerforsikringen dekker selgers ansvar etter avhendingsloven begrenset oppad til kr 14 millioner. Dersom kjøper oppdager forhold ved eiendommen som hen mener utgjør en mangel ved eiendommen, vil Gjensidige behandle reklamasjonen på vegne av selger. Forsikringsvilkår kan fås ved henvendelse til megler.
Vedlagt salgsoppgaven følger selgers egenerklæringsskjema og tilstandsrapport. Interessenter må sette seg inn i dokumentene før bud inngis.
Boligkjøperforsikring
Innen kontraktsmøtet må kjøper ta stilling til om det ønskes å bestille Boligkjøperpakken gjennom Gjensidige. I denne gunstige pakken er boligen ferdig forsikret og inkluderer rettshjelpsforsikring, også kalt Boligkjøperforsikring. Rettshjelpsforsikring gir trygghet og tilgang på profesjonell juridisk hjelp dersom det oppdages uventede feil eller mangler det første året etter overtagelse. Forsikringsselskapet behandler i så fall ethvert mangelskrav kjøper måtte ha overfor selger.
Boligkjøperpakken inkluderer bygningsforsikring for hus og hytte, innboforsikring, flytteforsikring og dobbel rentedekning - i situasjoner hvor kjøper ikke får solgt nåværende primærbolig.
Kjøper mottar ingen særskilt faktura for Boligkjøperpakken da kostnaden det første året legges til kjøpesummen for boligen. Det gjøres oppmerksom på Krogsveen mottar et honorar for denne formidlingen.
Produktark for Boligkjøperpakken ligger vedlagt i salgsoppgaven.
Dersom ikke boligkjøperpakke ønskes kan kun rettshjelpsforsikring, også kalt boligkjøperforsikring, tegnes særskilt via megler. Rettshjelpsforsikringen varer i 5 år fra overtagelse og leveres gjennom Gjensidige. Ta kontakt med megler for ytterligere informasjon.
Selskap og privatpersoner som driver med kjøp/salg/utvikling som ledd i egen næringsvirksomhet kan ikke tegne boligkjøperpakke eller rettshjelpsforsikring.
Budgivning
Forbrukerinformasjon om budgivning er vedlagt denne salgsoppgaven og er også på vår hjemmeside Krogsveen.no. Alle bud og budforhøyelser må inngis skriftlig. I tillegg må legitimasjon være fremlagt sammen med signatur fra budgiver.
Vi oppfordrer til å gi bud elektronisk via GI BUD-knappen på eiendommens hjemmeside på Krogsveen.no. Da vil samtlige vilkår bli oppfylt.
Eventuelle forhøyelser eller endringer av budet kan bekreftes pr SMS eller på e-post. Vi oppfordrer alltid til å kontakte megler pr. telefon i tillegg da forsinkelser i SMS og e-post kan forekomme.
For at budene skal kunne bli behandlet og videreformidlet skriftlig til alle involverte parter, må alle bud ha en tilstrekkelig lang akseptfrist, jf. eiendomsmeglingsforskriften § 6-3.
Selger må også skriftlig akseptere budet før aksept kan formidles til budgiver. Akseptfrist bør derfor være på minimum 30 minutter, og budforhøyelser må derfor skje i god tid før fristens utløp.
Bud i forbrukerforhold kan uansett ikke settes med kortere frist enn kl. 12.00 første virkedag etter siste annonserte visning. I tillegg kan ikke budet ha forbehold om at det skal holdes hemmelig ovenfor øvrige interessenter. Megler har iht lov om eiendomsmegling ikke anledning til å videreformidle disse budene, og de vil dermed heller ikke bli journalført.
Etter at eiendommen er solgt vil kjøper og selger få tilsendt budjournal. Øvrige budgivere kan få utlevert kopi av budjournalen i anonymisert form.
Hvitvaskingsreglene
I henhold til lov om hvitvasking og terrorfinansiering har megler plikt til å gjennomføre kontrolltiltak overfor kunder, herunder fullmektiger. Dette innebærer bl.a. å bekrefte kunders og reelle rettighetshaveres identitet på bakgrunn av fremvist gyldig legitimasjon eller på annen godkjent måte, samt å innhente opplysninger om kundeforholdets formål og tilsiktede art.
Dersom slike kundetiltak ikke kan gjennomføres, kan megler ikke etablere kundeforholdet eller utføre transaksjonen.
Hvis kjøper ikke bidrar til gjennomføring av kundekontrollen og dette fører til at transaksjonen blir forsinket eller ikke kan gjennomføres, vil dette ansees som mislighold av avtalen og gi selger rettigheter etter avhendingslova kapittel 5. I tilfeller der selger ikke bidrar til gjennomføring av løpende kundekontroll underveis i oppdraget, er det selger som misligholder sine forpliktelser etter avtalen og gi kjøper rettigheter etter avhendingslovens kapittel 4. Partene er selv ansvarlige for eventuelle kostnader og ansvar dette kan medføre. Eiendomsmegleren eller eiendomsmeglingsforetaket kan ikke holdes ansvarlig for de konsekvenser dette vil kunne få for partene eller andre som har interesser i eiendomshandelen.
Kjøper oppfordres til å innbetale kjøpesummen som ikke kommer fra låneinstitusjon i én samlet innbetaling fra egen konto i norsk bank. Megler har plikt til å melde fra til Økokrim om eiendomshandler som fremstår som mistenkelige. Melding sendes Økokrim uten at partene varsles.
Personopplysningsloven
I henhold til personopplysningsloven gjør vi oppmerksom på at interessenter kan bli registrert for videre oppfølging.
Lovanvendelse
Generelle bestemmelser
Salgsoppgaven er basert på de opplysningene selger har gitt til megler, den bygningssakyndiges tilstandsrapport, samt opplysninger innhentet fra kommunen, Kartverket og andre tilgjengelige kilder. Det er viktig at kjøper setter seg grundig inn i alle salgsdokumentene, herunder salgsoppgave, tilstandsrapport og selgers egenerklæring. Kjøper anses kjent med forhold som er tydelig beskrevet i salgsdokumentene, og slike forhold kan ikke påberopes som mangler. Dette gjelder uavhengig av om kjøper har lest dokumentene. Alle interessenter oppfordres til å undersøke eiendommen nøye, gjerne sammen med fagkyndig før bud inngis. Kjøper som velger å kjøpe usett kan ikke gjøre gjeldende som mangel noe han burde blitt kjent med ved undersøkelsen.
Dersom det er behov for avklaringer, anbefaler vi at interessenter rådfører seg med eiendomsmegler eller egne rådgivere før det legges inn bud.
En bolig som har blitt brukt i en viss tid, har vanligvis blitt utsatt for slitasje og skader kan ha oppstått. Slik bruksslitasje må kjøper regne med, og det kan avdekkes enkelte forhold etter overtakelse som nødvendiggjør utbedringer. Normal slitasje og skader som nødvendiggjør utbedring, er innenfor hva kjøper må forvente og vil ikke utgjøre en mangel.
Kjøper og selgers rettigheter og plikter reguleres av avtalen mellom partene, samt informasjonen som har vært tilgjengelig for kjøperen i forbindelse med handelen. Avtalen utfylles av avhendingsloven, og det gjelder ulike avtalevilkår avhengig av om kjøper er forbrukerkjøper eller ikke. Dette er nærmere beskrevet nedenfor.
På grunn av ulike avtalevilkår kan selger vurdere bud fra en som ikke er forbruker, ulikt fra en forbrukers bud. Dersom kjøper ikke er forbruker, er selger sitt mulige mangelsansvar begrenset fordi eiendommen selges "som den er". Selger kan ikke ta «som den er»- forbehold overfor en forbrukerkjøper. Selv et lavere bud fra en som ikke er forbruker kan foretrekkes fordi begrensningen i mulig mangelsansvar kan ha egenverdi for selger. Selger står fritt til å forkaste eller akseptere ethvert bud, og er for eksempel ikke forpliktet til å akseptere høyeste bud.
Budgiver skal i budskjema avgi egenerklæring om budgiver er forbruker eller næringsdrivende/ person som hovedsakelig handler som ledd i næringsvirksomhet. Budgivere får informasjon dersom andre bud er inngitt av en som ikke er forbruker.
Forbrukerkjøp - definisjon
Med forbrukerkjøp menes kjøp av eiendom når kjøperen er en fysisk person som ikke hovedsakelig handler som ledd i næringsvirksomhet.
Forbruker – avtalevilkår
Eiendommen har en mangel dersom den ikke er i samsvar med kravene som følger av avtalen, eller det foreligger brudd på bestemmelsene i avhendingsloven §§ 3-2 til 3-8. Hvis eiendommen ikke er i samsvar med det kjøperen må kunne forvente ut ifra alder, type og synlig tilstand, kan det være grunnlag for mangelskrav. Det samme gjelder hvis det er holdt tilbake eller gitt uriktige opplysninger om eiendommen. Dette gjelder likevel bare dersom man kan gå ut ifra at det virket inn på avtalen at opplysningen ikke ble gitt eller at mangelskravet ikke blir rettet i tide på en tydelig måte.
Boligen kan ha en mangel etter avhendingsloven § 3-3 andre ledd, dersom det er avvik mellom opplyst og faktisk innvendig areal, forutsatt at avviket er på 2% eller mer og minimum 1 kvm.
Ved beregning av et eventuelt prisavslag eller erstatning må kjøper selv dekke tap/kostnader opptil et beløp på kr 10 000 (egenandel).
Ikke-forbruker (næringsdrivende) – definisjon
Hvis kjøper er en juridisk person, eller en fysisk person som hovedsakelig handler som ledd i næringsvirksomhet, vil kjøpet ikke anses som et forbrukerkjøp.
Ikke-forbruker – avtalevilkår
Eiendommen har en mangel dersom den ikke er i samsvar med kravene som følger av avtalen.
Eiendommen selges «som den er», og selgers ansvar utover det konkret avtalte er da begrenset etter avhendingsloven § 3-9, første ledd andre setning.
Avhendingsloven § 3-3 andre ledd fravikes, og hvorvidt boligens arealsvikt utgjør en mangel vurderes etter avhendingsloven § 3-8.
Informasjon om kjøpers undersøkelsesplikt, herunder oppfordringen om å undersøke eiendommen nøye, gjelder også for kjøpere som ikke anses som forbrukere.
Det forutsettes at hjemmel overføres til kjøper. Hvis kjøper ikke ønsker hjemmelsoverføring av eiendommen, må det tas forbehold om dette i budet.
Meglers vederlag
Meglers vederlag betales av selger og er avtalt til:
Vederlag: 0,65 % av salgssummen inkl. eventuell fellesgjeld.
Vederlag:
Kontroll av hjemmel og heftelser kr 2 900,00
Markedsføringspakke kr 29 900,00
Oppgjør kr 7 500,00
Tilrettelegging kr 15 000,00
Visninger (Første visning gratis) kr 3 000
Utlegg:
Innhenting av offentlig opplysninger kr 5 460,00
Tinglysing sikring kr 500,00
Andre utgifter:
Foto kr 4 500,00
Opplysninger om oppdraget
Oppdragsnummer 59-0002/26
Eiendomsmegler Krogsveen AS, avd. Skedsmokorset
Furuholtet 1, 2020, SKEDSMOKORSET
950 007 613
Oppdragets KR-kode KR59.262
Dato
Sist oppdatert: 22. april 2026 kl. 15:16
Dokumenter
Dokumenter
PDF – 8 MB
PDF – 944 KB
PDF – 143 KB
PDF – 312 KB
PDF – 29 KB
PDF – 127 KB
PDF – 392 KB
Område
Legg til steder som er viktige for deg
Visning
Det er ingen planlagte visninger. Meld deg på for å avtale en tid som passer.
Lurer du på noe?
Unngå doble boligrenter
Vi tilbyr gunstig forsikring.
Vurderer du utleie?
Få et tilbud fra Utleie KrogsveenHva koster lånet?
Sjekk estimert lånekostnadVil du varsles om lignende boliger?
Ved å lagre ditt boligsøk hos oss får du beskjed når vi har en bolig som ligner denne, før den legges ut på markedet!




