Skolsegglia 67C
4 790 000 kr
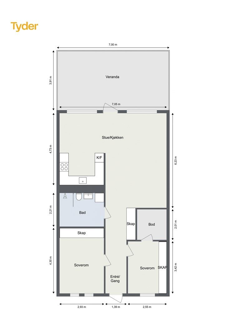
90 m²
2 soverom
Solgt
Brånåsen
Lekker 3r leilighet på Brånåsen | Vestvendt veranda på 27 kvm og nydelig utsikt | Gode turmuligheter | Garasjeplass
Prisantydning
4 790 000 krAndel fellesgjeld
66 280 krOmkostninger
132 440 krTotalpris
4 988 720 kr
Pris
Bruksareal
98 m²BRA-I (internt bruksareal)
90 m²BRA-E (eksternt bruksareal)
8 m²TBA (terrasse-balkongareal)
27 m²
Areal
Etasje
1Byggeår
2006Soverom
2 soveromBad
1 badType
EierleilighetEierform
EierseksjonFellesutgifter
5 029 krEnergimerke
Rød D
Nøkkelinfo
Unngå doble boligrenter
Vi tilbyr gunstig forsikring.
Vurderer du utleie?
Få et tilbud fra Utleie KrogsveenHva koster lånet?
Sjekk estimert lånekostnadBeskrivelse
Kort om eiendommen
Velkommen til Skolsegglia 67C! Presenteres av Jørgen Gabrielsen v/Krogsveen avd. Skedsmokorset. Dette er en pen 3-roms leilighet i første etasje med nydelig utsikt fra en vestvendt Veranda på målt opp til ca. 27 kvm. Leiligheten fremstår moderne med slette vegger, malt i 2025 foruten boden, et pent kjøkken i delvis åpen løsning med stuen og en planløsning som gir rom av gode størrelser. Skolsegglia ligger attraktivt til på Brånåsen med kort vei til både skoler og barnehager. Et rolig område med lite gjennomgangstrafikk på tunet. En leilighet som virkelig er verdt å se. Velkommen til visning!
Kort fortalt:
- Vestvendt veranda på ca. 27 kvm
- Garasjeplass med lader til el-bil
- Moderne overflater fra 2025
- Kjøkken fra 2020
- Kort vei til skoler og barnehager
- Gode turmuligheter
Område
Legg til steder som er viktige for deg
På flyttefot? Tenk kjøp og salg samtidig.
Få din egen rådgiver gjennom hele kjøps- og salgsprosessen. Det starter med en verdivurdering.
Unngå doble boligrenter
Vi tilbyr gunstig forsikring.
Vurderer du utleie?
Få et tilbud fra Utleie KrogsveenHva koster lånet?
Sjekk estimert lånekostnadVil du varsles om lignende boliger?
Ved å lagre ditt boligsøk hos oss får du beskjed når vi har en bolig som ligner denne, før den legges ut på markedet!




