Røyrmyr 14
2 450 000 kr
70 m²
2 soverom
Solgt

Bliksåsen
BUD MOTTATT! Flott halvpart av tomannsbolig med hage, terrasser, carport og gode solforhold!
Prisantydning
2 450 000 krOmkostninger
82 150 krTotalpris
2 532 150 kr
Pris
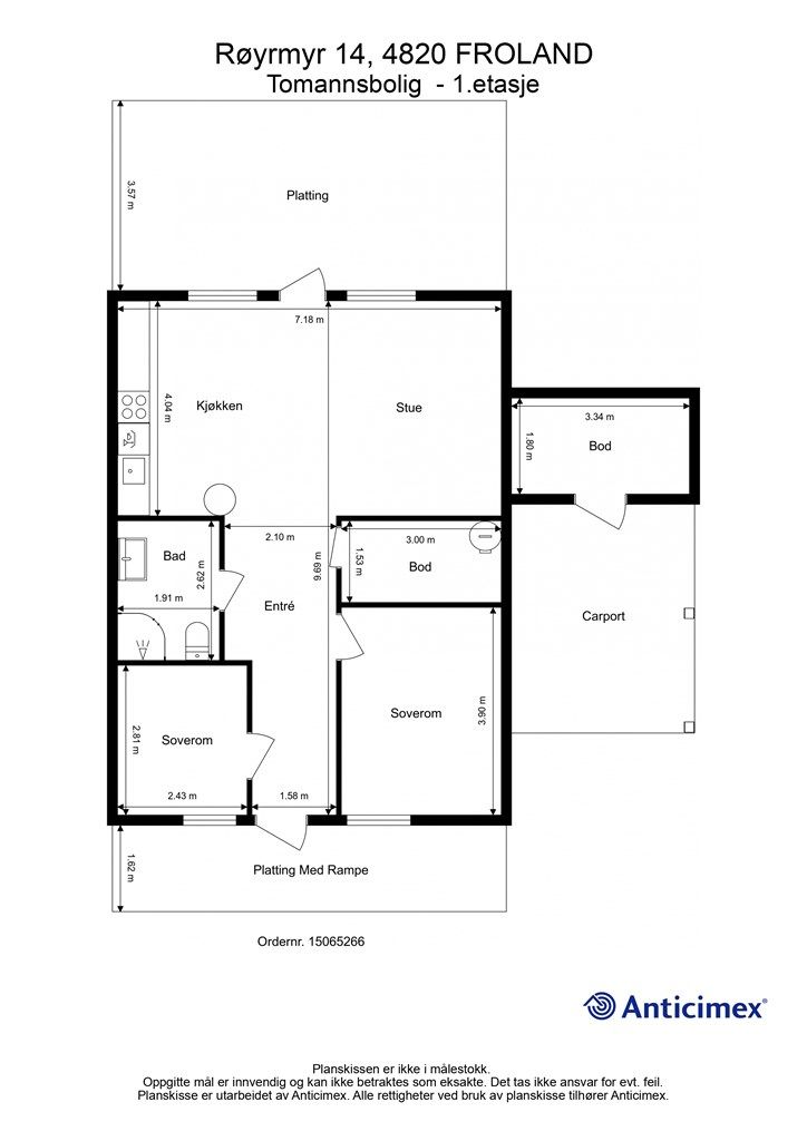
Bruksareal
77 m²BRA-I (internt bruksareal)
70 m²BRA-E (eksternt bruksareal)
7 m²TBA (terrasse-balkongareal)
38 m²
Areal
Etasje
1Byggeår
2015Soverom
2 soveromBad
1 badType
Halvpart vertikaldelt boligEierform
EierseksjonFasiliteter
Balkong/TerrasseEnergimerke
Oransje C
Nøkkelinfo
Unngå doble boligrenter
Vi tilbyr gunstig forsikring.
Vurderer du utleie?
Få et tilbud fra Utleie KrogsveenHva koster lånet?
Sjekk estimert lånekostnadBeskrivelse
Kort om eiendommen
Røyrmyr 14 er en fin, vertikaldelt bolig med god plass til flere biler utenfor. Eiendommen har sol fra tidlig morgen til ca. kl. 21:00 midtsommers. Det er kort vei til turstier, sentrum, bussholdeplass og barnehage blant annet. På Bliksåsen er det med andre ord meget sentralt å bo, med alle fasiliteteter i nærheten. Boligen inneholder entré, to soverom, bod, bad, stue og kjøkken. Det tilhører også en romslig carport med uisolert bod. Boligen har varmekabler i gulv på bad og i entré, det er også montert peisovn i stuen. Det tar knapt 5 minutter i bil til skole, idrettsanlegg, badestrand med mer. Det er et rolig og etablert nabolag, ca. 17 minutter fra Arendal sentrum.
Område
Legg til steder som er viktige for deg
På flyttefot? Tenk kjøp og salg samtidig.
Få din egen rådgiver gjennom hele kjøps- og salgsprosessen. Det starter med en verdivurdering.
Unngå doble boligrenter
Vi tilbyr gunstig forsikring.
Vurderer du utleie?
Få et tilbud fra Utleie KrogsveenHva koster lånet?
Sjekk estimert lånekostnadVil du varsles om lignende boliger?
Ved å lagre ditt boligsøk hos oss får du beskjed når vi har en bolig som ligner denne, før den legges ut på markedet!

