Bølerskogen 50
9 300 000 kr
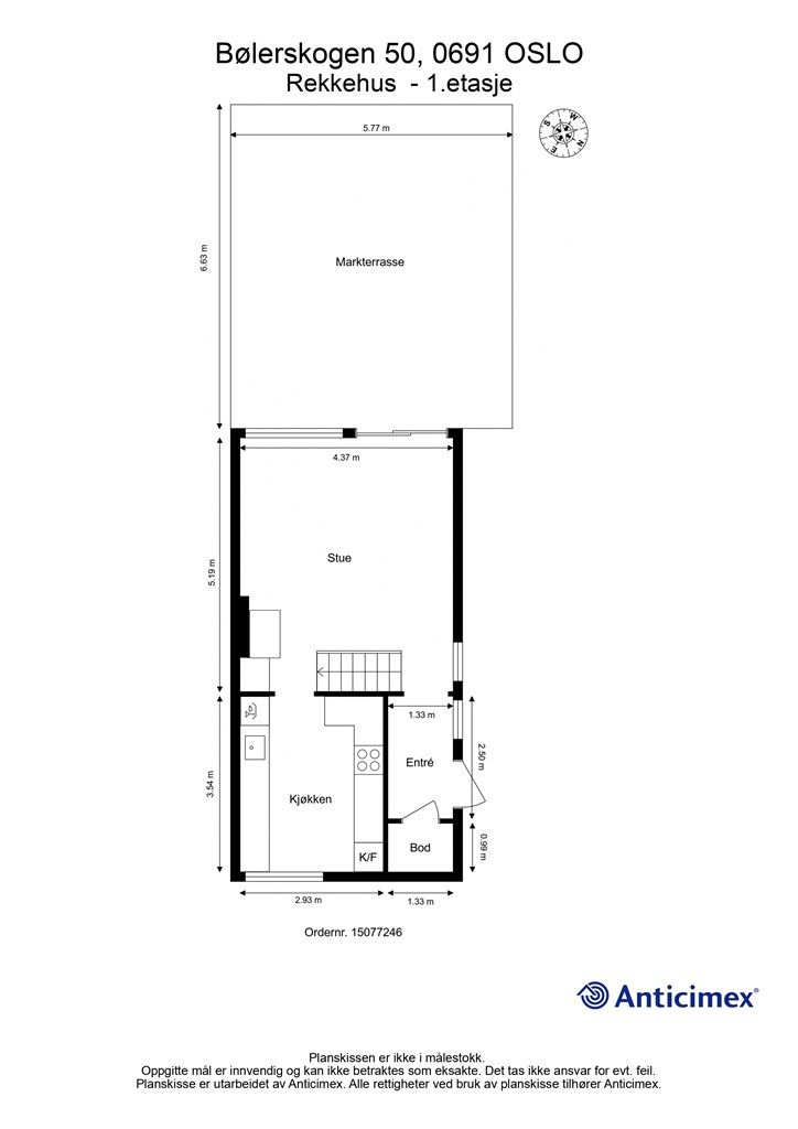
99 m²
3 soverom
Solgt
Nøklevann/Bøler
Arealeffektivt og stilig enderekkehus o/3 plan|Solrik markterr. (38 kvm) |Bad 2012 |Vaskerom/WC 2018|Peis |Rett v/marka|
Prisantydning
9 300 000 krAndel fellesgjeld
7 075 krOmkostninger
19 252 krTotalpris
9 326 327 kr
Pris
Bruksareal
105 m²BRA-I (internt bruksareal)
99 m²BRA-E (eksternt bruksareal)
6 m²TBA (terrasse-balkongareal)
38 m²
Areal
Byggeår
1958Soverom
3 soveromBad
2 badType
RekkehusEierform
AndelFasiliteter
Balkong/TerrasseFellesutgifter
5 005 krEnergimerke
Rød E
Nøkkelinfo
Unngå doble boligrenter
Vi tilbyr gunstig forsikring.
Vurderer du utleie?
Få et tilbud fra Utleie KrogsveenHva koster lånet?
Sjekk estimert lånekostnadDette liker selger best ved boligen
Meget arealeffektiv, hyggelig og sosialt tun med lekeplass (som kan ses fra kjøkkenvindu), koselig kjøkken.
Beskrivelse
Kort om eiendommen
Er du på jakt etter skogens ro, markas gleder, frisk luft, hyggelig naboer eller kort vei til skolen eller barnehagen?
Da kan kanskje dette enderekkehuset over tre plan i et av Bølers mest populære borettslag, være noe for deg?
- Arealeffektiv og velholdt rekkehus m/ smarte arkitekttegnede løsninger m/ bl.a. ekstra tv-krok/gjesteovernattingsplass, skyvedører etc
- Lekker peisovn fra 2017
- Nyetablert vaskerom/WC i 2018 i kjeller
- Kjellerstue ikke omsøkt/godkjent til varig opphold
- Moderne og lunt kjøkken (2012) m/ nye fronter i 2023
- Bad/WC 2.etg - pusset opp i 2012
- Lagringsloft + 2 disp. kjellerboder
- Å bo så nærme marka er en fryd for både store, små og firbente
- Kort vei til nærbutikk, Bøler Senter, Haraløkka idrettsanlegg, EVO, Bøler Bad, - Deichman, T-bane og nattbuss
Område
Legg til steder som er viktige for deg
På flyttefot? Tenk kjøp og salg samtidig.
Få din egen rådgiver gjennom hele kjøps- og salgsprosessen. Det starter med en verdivurdering.
Unngå doble boligrenter
Vi tilbyr gunstig forsikring.
Vurderer du utleie?
Få et tilbud fra Utleie KrogsveenHva koster lånet?
Sjekk estimert lånekostnadVil du varsles om lignende boliger?
Ved å lagre ditt boligsøk hos oss får du beskjed når vi har en bolig som ligner denne, før den legges ut på markedet!




