Rekdalsveien 66
5 990 000 kr
125 m²
5 soverom
Komplett salgsoppgave

Pen halvpart tomannsbolig, 5 soverom, nydelig vestvendt utsikt, solrikt, hage, parkering foran huset og dobbelgarasje.
Prisantydning
5 990 000 krOmkostninger
170 740 krTotalpris
6 160 740 kr
Pris
Bruksareal
170 m²BRA-I (internt bruksareal)
125 m²BRA-E (eksternt bruksareal)
45 m²TBA (terrasse-balkongareal)
21 m²
Areal
Byggeår
1969Soverom
5 soveromBad
1 badTomteareal
664 m² (eiet)Type
Halvpart vertikaldelt boligEierform
EietFasiliteter
Garasje/P-plass og Balkong/TerrasseEnergimerke
Oransje G
Nøkkelinfo
Unngå doble boligrenter
Vi tilbyr gunstig forsikring.
Vurderer du utleie?
Få et tilbud fra Utleie KrogsveenHva koster lånet?
Sjekk estimert lånekostnadBeskrivelse
Kort om eiendommen
Innhold og byggemåte
Innhold og byggemåte
Eiendommen
Rekdalsveien 66, 5151 STRAUMSGREND
Kommunenummer 4601, gårdsnummer 21, bruksnummer 891, ideell andel 1/1
Innhold
Totalt bruksareal BRA: 170 kvm
BRA-i:
Del av tomannsbolig:
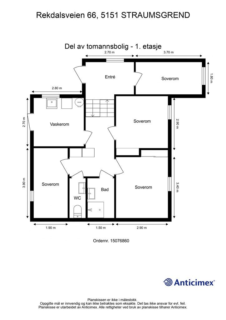
1. etasje 68 kvm: Entre, gang, 4 soverom, wc, bad og vaskerom.
2. etasje 57 kvm: Soverom, kjøkken, stue og spisestue.
BRA-e:
Del av tomannsbolig:
1. etasje 45 kvm: Garasje med bod samt bod under tilbygg.
Åpent areal:
Del av tomannsbolig:
1. etasje 21 kvm: Balkong.
Vedlagte plantegninger er ikke målbare. De oppgitte arealer er hentet fra rapport med befaringsdato 29.10.2025 utført av Anticimex AS Bergen. Arealene er beregnet og rom er definert etter dagens faktiske bruk, uavhengig av hva som er godkjent av bygningsmyndighetene.
Se mer under punkt om ferdigattest.
Byggemåte
Selger har fått utarbeidet en tilstandsrapport, dvs. en teknisk gjennomgang av boligen hvor eventuelle avvik, risiko for kjøper og prisoverslag for hva som bør gjøres av oppgradering, er skissert. Se særskilt TGIU (tilstandsgrad ikke undersøkt), samt TG2 og TG3 som viser hva som er boligens normale slitasje, alder og type, hva som er avvik fra dette og hva som bør/må utbedres. Rapporten og selgers egenerklæring er en del av salgsoppgaven og må leses nøye før bud inngis. Kjøper overtar ansvaret for de opplysninger som fremkommer av salgsdokumentasjonen, og kan ikke gjøre gjeldende som mangel noe som burde vært kjent eller som ikke kan anses å ha betydning for avtalen.
Bygningen er iht. tilstandsrapporten oppført i 1969. Grunnmur av betong. Fundamentert på ukjent byggegrunn. Bygget er oppført med støpt gulv mot grunn. Yttervegger av
trekonstruksjoner. Fasaden er kledd med liggende trekledning. Etasjeskillere av trekonstruksjoner. Saltak i trekonstruksjoner (ikke besiktiget).
Yttertak er utvendig tekket med takstein. Boligen har entrédører med glassfelt og elektrisk kodelås. Vinduer og balkongdør med karmer av tre, og tolags
glass.
Les for øvrig mer om byggemåte og den tekniske tilstanden i rapporten.
Det gjøres spesielt oppmerksom på følgende punkter som har fått TG2:
Våtrom - Bad:
- Vannrør
- Overflater vegger
- Fukt i tilliggende konstruksjoner
Våtrom - Vaskerom:
- Helhetsvurdering
Kjøkken - 2. etasje:
- Vannrør
- Overflater gulv
Toalettrom (ikke våtrom) - 1. etasje:
- Vannrør
Øvrige rom - 1. etasje:
- Overflater gulv
Øvrige rom - 2. etasje:
- Ventilasjon
- Overflater gulv
Loft - uinnredet/råloft:
- Overflater vegger/undertak
Innvendige trapper:
- Trappen har ikke håndløper på begge sider
Etasjeskiller - 2. etasje:
- Skjevhetsmåling
Tekniske anlegg, VVS anlegg:
- Vannrør
- Avløpsrør
Radon:
-Det er ikke foretatt radonmåling i boligen
Elektrisk anlegg:
- Forenklet vurdering av det elektriske anlegget
Yttertak:
- Konstruksjon
- Inspeksjonsmulighet
- Beslag, renner, nedløp og snøfangere
Grunnmur, fundamenter:
- Grunnmur
Drenering:
- Fuktsikring av grunnmur
- Bortledning av takvann
- Alder
Forstøtningsmurer
Stikkledninger og tanker:
- Vann- og avløpsledninger (ink. stikkledninger)
Se supplerende tekst i tilstandsrapporten om boligen. Kjøper overtar ansvar og risiko for dette.
Løsøre og tilbehør
Vi viser til liste fra Norges Eiendomsmeglerforbund som gjelder fra 01.01.2020 angående løsøre og tilbehør.
Oppvarming
Varmepumpe i entré, peis i stue og gang i 1. etasje, gulvvarme på bad, vaskerom, ett soverom og inngangsparti.
Dersom beboelsesrom ikke har vegg- eller fastmonterte varmekilder ved visning, følger dette heller ikke med.
Ferdigattest/brukstillatelse
D.et foreligger ikke ferdigattest på eiendommen, men midlertidig brukstillatelse ble gitt 29.05.1969. Tillatelsen er gitt på følgende vilkår:
1. Resterende arbeid på adkomststi.
2. Rekkverk på adkomsttrapp.
3. Resterende oppfylling, planering og bearbeiding av terreng rundt og inntil bygget.
4. Taknedløp må føres ned i terreng og slik at takvannet ledes ut og vekk fra bygget.
5. Blindkjeller under vindfang må ventileres og taket (i samme) isoleres og underkles. Dessuten må det mellom blindkjeller og trapp/gang oppsettes isolert vegg med innsatt inspeksjonsluke.
6. Innsetting av ventilrister i blindkjelleren.
7.Oljetank montert på altan bør innebygges og isoleres.
8. Trerrister på altan.
9. Forskriftsmessig gulv på baderom.
10. Gulvbelegg på soverom i underetasjen.
11.Resterende mur- og pussarbeid rundt dør til vaskerom.
12. Boder som ikke har ventil eller vindu til det fri må tilfredsstillende ventileres. I bod hvor feieluken er plassert må det ikke lagres lett Garasje med bod samt bod under tilbygg.
13. Resterende gulvlister i gang og soverom i underetasje.
14. Platen under ildsted i stue må festes til gulv.
15. Jernplate på loftsgulv under feieluke.
16. Hus-nr. skilt.
17. Ferdigmelding fra komm. ing. for vann- og kloakkanlegg.
I følge selger er punktene: 1,2,3,4,8,14 og 15 ikke relevante,. Punktene 7,9,10,11,12 og 13 skal være ok. Punktene 5 og 6 er selger usikker på da de ikke har i utgangspunktet vært i blindkjelleren.
Kjøper overtar ansvaret for dette.
Det gjøres oppmerksom på at kjøkkenet og soverommet er byttet plassering på i 1. etasje(overetasje), ikke søknadspliktig.
Tilbygget er byggemeldt og godkjent av kommunen 3.12.1976 og 7.12.1976, men det foreligger ikke ferdigattest på dette.
Det er mottatt stemplede tegninger på altanen fra kommunen 9.2.1989.
Utvidelse av altan er byggemeldt og godkjent 27.12.2021 .
Kjøper overtar alt ansvar, kostnad og risiko for dette videre.
Det gjøres oppmerksom på at det ikke lenger utstedes ferdigattest på tiltak det er søkt om før 1998 jf. plan- og bygningsloven § 21-10. Kommunen vil ikke kreve ferdigattest for disse tiltakene og vil avvise eventuelle søknader. Bestemmelsen innebærer ikke at tiltak med manglende søknad blir lovlige, men at man ikke trenger å avslutte gamle byggesaker. Normalt sett kreves ferdigattest for alle søknadspliktige tiltak som gjøres etter plan- og bygningsloven.
Tinglyste heftelser og rettigheter
Eiendommen overdras fri for pengeheftelser.
Det er tinglyst følgende servitutter på eiendommen:
Dagboknr 308134, tinglyst 07.12.1967, type heftelse: Erklæring/avtale. Bestemmelsen gjelder: Kjøpekontrakt med tilhørende rettigheter.
Dagboknr 300855, tinglyst 04.02.1970, type heftelse: Erklæring/avtale. Bestemmelsen gjelder: Avtale med Husbanken om bla. vedlikehold og gjensidig rett mellom Rekdalsveien 66 og 68 til å føre vann- og kloakkledninger over hverandres eiendom, samt gjensidig veirett frem til hverandres respektive eiendommer.
Dagboknr 301849, tinglyst 10.03.1971, type heftelse: Erklæring/avtale. Bestemmelsen gjelder: Solidarisk ansvar med de øvrige eierne av fellesledningene for tilsyn og vedlikehold av disse, samt for hydroforanlegget på gnr. 22 bnr. 5.
Dagboknr 730565, tinglyst 30.09.2009, type heftelse: Bestemmelse om bebyggelse. Bestemmelsen gjelder: Gjensidig avtale angående bygging på respektive tomter mellom Rekdalsveien 58 og 66.
Servituttene vil følge eiendommen. Kjøpers bank vil få prioritet etter ovennevnte heftelser og servitutter.
Eiendommen har tinglyst veirett på Rekdalsveien 70, gnr. 21 bnr. 897. Rettigheten er tinglyst på Rekdalsveien 70 gnr. 21 bnr. 897, dagboknr 8308, tinglyst 10.03.1975
Eiendommen har tinglyst diverse byggerettigheter på Rekdalsveien 58, Gnr. 21 Bnr. 885. Rettigheten er tinglyst på Rekdalsveien 58, Gnr. 21 Bnr. 885, dagboknr 730565, tinglyst 30.09.2009
Eventuell adgang til utleie
Eiendommen har ikke separat utleieenhet. Det vil normalt være anledning til utleie av hele eiendommen eller enkeltrom, såfremt utleiearealet er bygningsmessig godkjent for varig opphold og har forsvarlige radonnivåer.
Diverse
Tilbud av produkter og tjenester fra våre samarbeidspartnere
Vi er opptatt av verdiskapning, og har knyttet til oss samarbeidspartnere som skal sikre våre kunder de beste produkter og tjenester;
• Gjensidige leverer boligselgerforsikring og tilbyr bygningsforsikring
• Boligkjøperforsikring leveres av Hiscox og med Sedgwick som skadebehandler, og er formidlet gjennom Gjensidige.
• BN bank tilbyr finansieringsløsninger
• Vår avdeling Krogsveen Pluss tilbyr flyttetjenester som utvask, visningsvask, lager, tømming og transport av flyttelass, i tillegg til å formidle kontakt med Flip for overflateoppussing.
• I forbindelse med overtagelse av eiendommen tilbyr Overo avtale om strøm, alarm og bredbånd.
• Krogsveen er, sammen med øvrige bransjeaktører, medeier i den digitale annonseringsplattformen Hjem som eies av Bomega AS.
Beliggenhet og tomteforhold
Beliggenhet og tomteforhold
Beliggenhet
Området har en rolig og landlig beliggenhet på et høydedrag ovenfor Sælenvannet. Bebyggelsen består hovedsakelig av eneboliger og tomannsboliger i et etablert boligområde. Det er gode kollektivforbindelser med busstopp langs Sælenveien, samt på Bønes-siden med gangadkomst. Det er kolletivtransport ved Ortuvannet som ligger kun tre-fem minutters gange fra huset.
Daglige servicetilbud nås enkelt, med omtrent 3 km til Oasen kjøpesenter og rundt 9 km til Bergen sentrum. I tillegg er det kort kjørevei til arbeidsområdene på Sandsli og Kokstad. Oasen kjøpesenter har alt du trenger i hverdagen, som matbutikker, apotek, vinmonopol, Sats, klesbutikker, bank, resturanter (bla. nyåpnede Egon) og en rekke andre servicetilbud.
Bønes Senter er bare en kort spasertur unna for dine daglige innkjøp, og det er regelmessige bussavganger. Oasen kjøpesenter tilbyr lokalbefolkningen et bredt utvalg av fasiliteter, inkludert dagligvarebutikker, vinmonopol, et utvalg av spisesteder og et toppmoderne treningssenter.
For de som elsker å være ute i naturen, ligger Sælevannet med bondemarken rett rundt hjørnet, et fantastisk sted for avslappende turer eller energiske joggeturer. Ved Ortuvannet finner du også en fotballbane, lekeplass og en populær park. For de mer eventyrlystne, er Løvstakken, Damsgårdsfjellet og Kanadaskogen perfekte for lengre turer og utforsking av naturen.
Området er også barnevennlig, med flere skoler og barnehager i nærheten. Ved Ortuvannet finner du den nye, moderne svømmehallen i Fyllingsdalen, som inkluderer et oppvarmet treningsbasseng som er populært blant både barn og voksne.
Bergen Racketsenter ligger bare et steinkast unna, med nydelige utendørs tennisbaner, samt innendørs padel, tennis, squash, badminton, pickleball og bordtennis baner. Her ligger også Sporty treningssenter.
I tillegg finnes det fotballbaner, en innendørshall og tennisbaner ved Varden Amfi.
Adkomst
Veibeskrivelse Se Google maps - det er enkelt å finne frem i kartet.
Det vil bli skiltet med Krogsveen visningsskilt ved fellesvisninger.
Barnehager, skoler og fritid
Barnehager:
Straumsgrend barnehage
Senterhagen barnehage
Lyshovden Oppveksttun barnehage
Skoler:
Fjellsdalen skole
Montessoriskolen i Bergen
Lyshovden Oppveksttun
Ortun skole
Fyllingsdalen videregående skole
Sandsli videregående skole
Dersom skole- og barnehagetilbud er av betydning for kjøpet, ber vi om at det rettes en særskilt henvendelse til kommunen for oppdatert informasjon.
Beskrivelse av tomt
Tomt opparbeidet med asfalterte veier, belegningsstein, diverse beplantninger, plenarealer, diverse støttemurer, og biloppstillingsplasser. Frittstående dobbel garasje med bod.
Parkering
Dobbel garasje, samt flere biloppstillingsplasser på egen tomt. El- bil lader ved husvegg.
Vei, vann og avløp
Eiendommen har adkomst via privat vei med felles vedlikeholdsansvar.
Eiendommen er tilknyttet kommunalt ledningsnett via private stikkledninger. Eier er selv ansvarlig for private stikkledninger til boligen.
Regulerings-og arealplaner
Eiendommen ligger i et uregulert område, men er i kommuneplan datert 19.06.2019 avsatt til: Bebyggelse og anlegg.
Utsnitt av plan med tilhørende bestemmelser kan fås ved henvendelse til megler.
Økonomi
Økonomi
Kommunale utgifter
Kommunale avgifter er kr 17 852,- for inneværende år. I dette inngår gebyr for eiendomsskatt, vann, avløp og renovasjon.
Nåværende eier har et strømforbruk som tilsvarer ca. kr 25000,- pr. år.
Boligen har en årlig forsikringspremie på kr 8.000,-.
Boligen er tilknyttet Altiboks (Bergen fiber). Tv-tuner/dekoder medfølger ikke.
Det er også lagt opp eget fibernett fra Telenor.
Utgiftene er basert på nåværende eiers forbruk og avtaler.
Formuesverdi
Formuesverdi for 2023 var kr 1 099 265,- ifølge skatteetaten. Beløpet forutsetter at eier bor fast i boligen (primærbolig).
Ved eventuell øvrig bruk av eiendommen (f.eks. fritidsbolig, pendlerbolig, utleieobjekt) var formuesverdien for 2023 kr 4 397 060,-.
Formuesverdien justeres normalt årlig. Se skatteetaten.no for mer informasjon om fastsettelse av formuesverdien.
Omkostninger
5 990 000,00 Prisantydning
Omkostninger
149 750,00 Dokumentavgift til staten (2,5% av kjøpesum)
19 900,00 Gjensidige Boligkjøperpakke (valgfri)
545,00 Tinglysing panterettsdokument
545,00 Tinglysing skjøte
--------------------------------------------------------
170 740,00 Omkostninger totalt
--------------------------------------------------------
6 160 740,00 Totalpris inkl. omkostninger
--------------------------------------------------------
Totalpris inkl. omkostninger forutsetter kjøp til prisantydning.
Det tas forbehold om endringer i avgifter og gebyrer.
Tilbud om lånefinansiering
Megler formidler gjerne kontakt med rådgiver hos vår samarbeidspartner BN Bank. De har konkurransedyktige betingelser samt rask og løsningsorientert behandling av din lånesøknad. Krogsveen mottar et honorar dersom lån opprettes.
Betalingsbetingelser
Kjøpesum inkludert omkostninger, samt pantedokument tilknyttet eventuelt lån, skal være disponibelt hos megler 2 virkedager før overtagelsen.
Annen viktig informasjon
Annen viktig informasjon
Eier
Hilde Lægreid Loodtz og Danckert Loodtz
Overtakelse
Etter nærmere avtale.
Boligselgerforsikring
Selger har i forbindelse med salget tegnet boligselgerforsikring levert av Gjensidige.
Boligselgerforsikringen dekker selgers ansvar etter avhendingsloven begrenset oppad til kr 14 millioner. Dersom kjøper oppdager forhold ved eiendommen som hen mener utgjør en mangel ved eiendommen, vil Gjensidige behandle reklamasjonen på vegne av selger. Forsikringsvilkår kan fås ved henvendelse til megler.
Vedlagt salgsoppgaven følger selgers egenerklæringsskjema og tilstandsrapport. Interessenter må sette seg inn i dokumentene før bud inngis.
Boligkjøperforsikring
Innen kontraktsmøtet må kjøper ta stilling til om det ønskes å bestille Boligkjøperpakken gjennom Gjensidige. I denne gunstige pakken er boligen ferdig forsikret og inkluderer rettshjelpsforsikring, også kalt Boligkjøperforsikring. Rettshjelpsforsikring gir trygghet og tilgang på profesjonell juridisk hjelp dersom det oppdages uventede feil eller mangler det første året etter overtagelse. Forsikringsselskapet behandler i så fall ethvert mangelskrav kjøper måtte ha overfor selger.
Boligkjøperpakken inkluderer bygningsforsikring for hus og hytte, innboforsikring, flytteforsikring og dobbel rentedekning - i situasjoner hvor kjøper ikke får solgt nåværende primærbolig.
Kjøper mottar ingen særskilt faktura for Boligkjøperpakken da kostnaden det første året legges til kjøpesummen for boligen. Det gjøres oppmerksom på Krogsveen mottar et honorar for denne formidlingen.
Produktark for Boligkjøperpakken ligger vedlagt i salgsoppgaven.
Dersom ikke boligkjøperpakke ønskes kan kun rettshjelpsforsikring, også kalt boligkjøperforsikring, tegnes særskilt via megler. Rettshjelpsforsikringen varer i 5 år fra overtagelse og leveres gjennom Gjensidige. Ta kontakt med megler for ytterligere informasjon.
Selskap og privatpersoner som driver med kjøp/salg/utvikling som ledd i egen næringsvirksomhet kan ikke tegne boligkjøperpakke eller rettshjelpsforsikring.
Budgivning
Forbrukerinformasjon om budgivning er vedlagt denne salgsoppgaven og er også på vår hjemmeside Krogsveen.no. Alle bud og budforhøyelser må inngis skriftlig. I tillegg må legitimasjon være fremlagt sammen med signatur fra budgiver.
Vi oppfordrer til å gi bud elektronisk via GI BUD-knappen på eiendommens hjemmeside på Krogsveen.no. Da vil samtlige vilkår bli oppfylt.
Eventuelle forhøyelser eller endringer av budet kan bekreftes pr SMS eller på e-post. Vi oppfordrer alltid til å kontakte megler pr. telefon i tillegg da forsinkelser i SMS og e-post kan forekomme.
For at budene skal kunne bli behandlet og videreformidlet skriftlig til alle involverte parter, må alle bud ha en tilstrekkelig lang akseptfrist, jf. eiendomsmeglingsforskriften § 6-3.
Selger må også skriftlig akseptere budet før aksept kan formidles til budgiver. Akseptfrist bør derfor være på minimum 30 minutter, og budforhøyelser må derfor skje i god tid før fristens utløp.
Bud i forbrukerforhold kan uansett ikke settes med kortere frist enn kl. 12.00 første virkedag etter siste annonserte visning. I tillegg kan ikke budet ha forbehold om at det skal holdes hemmelig ovenfor øvrige interessenter. Megler har iht lov om eiendomsmegling ikke anledning til å videreformidle disse budene, og de vil dermed heller ikke bli journalført.
Etter at eiendommen er solgt vil kjøper og selger få tilsendt budjournal. Øvrige budgivere kan få utlevert kopi av budjournalen i anonymisert form.
Hvitvaskingsreglene
I henhold til lov om hvitvasking og terrorfinansiering har megler plikt til å gjennomføre kontrolltiltak overfor kunder, herunder fullmektiger. Dette innebærer bl.a. å bekrefte kunders og reelle rettighetshaveres identitet på bakgrunn av fremvist gyldig legitimasjon eller på annen godkjent måte, samt å innhente opplysninger om kundeforholdets formål og tilsiktede art.
Dersom slike kundetiltak ikke kan gjennomføres, kan megler ikke etablere kundeforholdet eller utføre transaksjonen.
Hvis kjøper ikke bidrar til gjennomføring av kundekontrollen og dette fører til at transaksjonen blir forsinket eller ikke kan gjennomføres, vil dette ansees som mislighold av avtalen og gi selger rettigheter etter avhendingslova kapittel 5. I tilfeller der selger ikke bidrar til gjennomføring av løpende kundekontroll underveis i oppdraget, er det selger som misligholder sine forpliktelser etter avtalen og gi kjøper rettigheter etter avhendingslovens kapittel 4. Partene er selv ansvarlige for eventuelle kostnader og ansvar dette kan medføre. Eiendomsmegleren eller eiendomsmeglingsforetaket kan ikke holdes ansvarlig for de konsekvenser dette vil kunne få for partene eller andre som har interesser i eiendomshandelen.
Kjøper oppfordres til å innbetale kjøpesummen som ikke kommer fra låneinstitusjon i én samlet innbetaling fra egen konto i norsk bank. Megler har plikt til å melde fra til Økokrim om eiendomshandler som fremstår som mistenkelige. Melding sendes Økokrim uten at partene varsles.
Personopplysningsloven
I henhold til personopplysningsloven gjør vi oppmerksom på at interessenter kan bli registrert for videre oppfølging.
Lovanvendelse
Generelle bestemmelser
Salgsoppgaven er basert på de opplysningene selger har gitt til megler, den bygningssakyndiges tilstandsrapport, samt opplysninger innhentet fra kommunen, Kartverket og andre tilgjengelige kilder. Det er viktig at kjøper setter seg grundig inn i alle salgsdokumentene, herunder salgsoppgave, tilstandsrapport og selgers egenerklæring. Kjøper anses kjent med forhold som er tydelig beskrevet i salgsdokumentene, og slike forhold kan ikke påberopes som mangler. Dette gjelder uavhengig av om kjøper har lest dokumentene. Alle interessenter oppfordres til å undersøke eiendommen nøye, gjerne sammen med fagkyndig før bud inngis. Kjøper som velger å kjøpe usett kan ikke gjøre gjeldende som mangel noe han burde blitt kjent med ved undersøkelsen.
Dersom det er behov for avklaringer, anbefaler vi at interessenter rådfører seg med eiendomsmegler eller egne rådgivere før det legges inn bud.
En bolig som har blitt brukt i en viss tid, har vanligvis blitt utsatt for slitasje og skader kan ha oppstått. Slik bruksslitasje må kjøper regne med, og det kan avdekkes enkelte forhold etter overtakelse som nødvendiggjør utbedringer. Normal slitasje og skader som nødvendiggjør utbedring, er innenfor hva kjøper må forvente og vil ikke utgjøre en mangel.
Kjøper og selgers rettigheter og plikter reguleres av avtalen mellom partene, samt informasjonen som har vært tilgjengelig for kjøperen i forbindelse med handelen. Avtalen utfylles av avhendingsloven, og det gjelder ulike avtalevilkår avhengig av om kjøper er forbrukerkjøper eller ikke. Dette er nærmere beskrevet nedenfor.
På grunn av ulike avtalevilkår kan selger vurdere bud fra en som ikke er forbruker, ulikt fra en forbrukers bud. Dersom kjøper ikke er forbruker, er selger sitt mulige mangelsansvar begrenset fordi eiendommen selges "som den er". Selger kan ikke ta «som den er»- forbehold overfor en forbrukerkjøper. Selv et lavere bud fra en som ikke er forbruker kan foretrekkes fordi begrensningen i mulig mangelsansvar kan ha egenverdi for selger. Selger står fritt til å forkaste eller akseptere ethvert bud, og er for eksempel ikke forpliktet til å akseptere høyeste bud.
Budgiver skal i budskjema avgi egenerklæring om budgiver er forbruker eller næringsdrivende/ person som hovedsakelig handler som ledd i næringsvirksomhet. Budgivere får informasjon dersom andre bud er inngitt av en som ikke er forbruker.
Forbrukerkjøp - definisjon
Med forbrukerkjøp menes kjøp av eiendom når kjøperen er en fysisk person som ikke hovedsakelig handler som ledd i næringsvirksomhet.
Forbruker – avtalevilkår
Eiendommen har en mangel dersom den ikke er i samsvar med kravene som følger av avtalen, eller det foreligger brudd på bestemmelsene i avhendingsloven §§ 3-2 til 3-8. Hvis eiendommen ikke er i samsvar med det kjøperen må kunne forvente ut ifra alder, type og synlig tilstand, kan det være grunnlag for mangelskrav. Det samme gjelder hvis det er holdt tilbake eller gitt uriktige opplysninger om eiendommen. Dette gjelder likevel bare dersom man kan gå ut ifra at det virket inn på avtalen at opplysningen ikke ble gitt eller at mangelskravet ikke blir rettet i tide på en tydelig måte.
Boligen kan ha en mangel etter avhendingsloven § 3-3 andre ledd, dersom det er avvik mellom opplyst og faktisk innvendig areal, forutsatt at avviket er på 2% eller mer og minimum 1 kvm.
Ved beregning av et eventuelt prisavslag eller erstatning må kjøper selv dekke tap/kostnader opptil et beløp på kr 10 000 (egenandel).
Ikke-forbruker (næringsdrivende) – definisjon
Hvis kjøper er en juridisk person, eller en fysisk person som hovedsakelig handler som ledd i næringsvirksomhet, vil kjøpet ikke anses som et forbrukerkjøp.
Ikke-forbruker – avtalevilkår
Eiendommen har en mangel dersom den ikke er i samsvar med kravene som følger av avtalen.
Eiendommen selges «som den er», og selgers ansvar utover det konkret avtalte er da begrenset etter avhendingsloven § 3-9, første ledd andre setning.
Avhendingsloven § 3-3 andre ledd fravikes, og hvorvidt boligens arealsvikt utgjør en mangel vurderes etter avhendingsloven § 3-8.
Informasjon om kjøpers undersøkelsesplikt, herunder oppfordringen om å undersøke eiendommen nøye, gjelder også for kjøpere som ikke anses som forbrukere.
Det forutsettes at hjemmel overføres til kjøper. Hvis kjøper ikke ønsker hjemmelsoverføring av eiendommen, må det tas forbehold om dette i budet.
Meglers vederlag
Meglers vederlag betales av selger og er avtalt til:
Vederlag: 1,00 % av salgssummen inkl. eventuell fellesgjeld.
Vederlag:
Fotopakke inkl rådgivning stylist kr 7 900,00
Kontroll av hjemmel og heftelser kr 2 900,00
Markedsføringspakke kr 20 900,00
Oppgjør kr 7 500,00
Tilrettelegging kr 17 000,00
Visninger engangsgebyr kr 1 900,00
Utlegg:
Innhenting av offentlig opplysninger Bergen (selveier) kr 3 600,00
Tinglysing sikring kr 545,00
Andre utgifter:
AX tilstandsrapport rekkehus/tomannsbolig kr 17 500,00
Boligselgerforsikring Gjensidige Eiet - regnes av prisantydning kr 34 202,90
Vi er opptatt av verdiskapning, og har knyttet til oss samarbeidspartnere som skal sikre våre kunder de beste produkter og tjenester;
• I forbindelse med forberedelse av salget, innhenter vi informasjon om eiendommen hovedsakelig fra vår samarbeidspartner Amibita.
• Gjensidige leverer boligselgerforsikring og tilbyr bygningsforsikring
• Boligkjøperforsikring leveres av Hiscox og med Sedgwick som skadebehandler, og er formidlet gjennom Gjensidige.
• BN bank tilbyr finansieringsløsninger
• Vår avdeling Krogsveen Pluss tilbyr flyttetjenester som utvask, visningsvask, lager, tømming og transport av flyttelass, i tillegg til å formidle kontakt med Flip for overflateoppussing.
• I forbindelse med overtagelse av eiendommen tilbyr Overo avtale om strøm, alarm og bredbånd.
• Krogsveen er, sammen med øvrige bransjeaktører, medeier i den digitale annonseringsplattformen Hjem som eies av Bomega AS.
Opplysninger om oppdraget
Oppdragsnummer 70-0122/25
Eiendomsmegler Krogsveen AS, avd. Fyllingsdalen
Folke Bernadottesvei 44-46, 5147, FYLLINGSDALEN
950 007 613
Oppdragets KR-kode KR70.25122
Dato
Sist oppdatert: 16. januar 2026 kl. 15:11
Dokumenter
Dokumenter
PDF – 745 KB
PDF – 1017 KB
PDF – 312 KB
PDF – 29 KB
PDF – 127 KB
PDF – 392 KB
Område
Legg til steder som er viktige for deg
Visning
Unngå doble boligrenter
Vi tilbyr gunstig forsikring.
Vurderer du utleie?
Få et tilbud fra Utleie KrogsveenHva koster lånet?
Sjekk estimert lånekostnadVil du varsles om lignende boliger?
Ved å lagre ditt boligsøk hos oss får du beskjed når vi har en bolig som ligner denne, før den legges ut på markedet!

