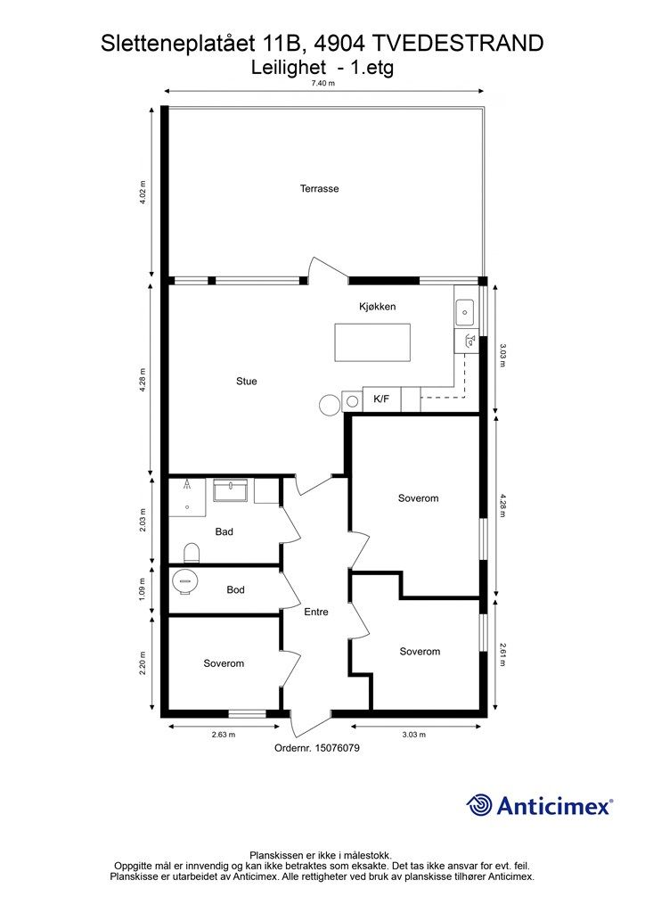
Sletteneplatået 11B
2 650 000 kr
75 m²
3 soverom
Solgt

Tiltalende og praktisk leilighet i 1. etasje med tre soverom og stor terrasse og hage!
Prisantydning
2 650 000 krOmkostninger
77 290 krTotalpris
2 727 290 kr
Pris
Bruksareal
80 m²BRA-I (internt bruksareal)
75 m²BRA-E (eksternt bruksareal)
5 m²TBA (terrasse-balkongareal)
39 m²
Areal
Etasje
1Byggeår
2021Soverom
3 soveromBad
1 badType
EierleilighetEierform
EierseksjonFasiliteter
Balkong/TerrasseFellesutgifter
750 krEnergimerke
Oransje B
Nøkkelinfo
Unngå doble boligrenter
Vi tilbyr gunstig forsikring.
Vurderer du utleie?
Få et tilbud fra Utleie KrogsveenHva koster lånet?
Sjekk estimert lånekostnadBeskrivelse
Kort om eiendommen
Lekker leilighet i firmemannsbolig med tre soverom, stue, kjøkken, bad/vaskerom og bod/teknisk rom. Det er opparbeidet et stort uteareal til eget bruk i front av leiligheten med inngjerdet plen, hage og terrasse. Leiligheten er påkostet med moderne kjøkken inkludert kjøkkenøy, komfyrvakt, vannvakt og hvitevarer. Det er spotter i taket, peisovn og lyse flater blant annet. Sletteneplatået ligger fint til med flere biloppstillingsplasser på fellesdelen av tomten. Innlagt fiber. Det er slitesterk laminat på gulv og god standard på hele leiligheten. Det er kort vei til turområder, badeplass og ca. 1,5 km på snarvei til sentrum.
Område
Legg til steder som er viktige for deg
På flyttefot? Tenk kjøp og salg samtidig.
Få din egen rådgiver gjennom hele kjøps- og salgsprosessen. Det starter med en verdivurdering.
Unngå doble boligrenter
Vi tilbyr gunstig forsikring.
Vurderer du utleie?
Få et tilbud fra Utleie KrogsveenHva koster lånet?
Sjekk estimert lånekostnadVil du varsles om lignende boliger?
Ved å lagre ditt boligsøk hos oss får du beskjed når vi har en bolig som ligner denne, før den legges ut på markedet!

