Torvgata 27B
12 800 000 kr
252 m²
5 soverom
Solgt

Volla / Lillestrøm
Sjelden mulighet! Sentrumsnær, oppgradert og innholdsrik familiebolig m/fl. uteplasser, 5 soverom og garasje.
Prisantydning
12 800 000 krOmkostninger
340 990 krTotalpris
13 140 990 kr
Pris
Bruksareal
365 m²BRA-I (internt bruksareal)
252 m²BRA-E (eksternt bruksareal)
113 m²TBA (terrasse-balkongareal)
105 m²
Areal
Etasje
3Byggeår
1917Soverom
5 soveromBad
2 badTomteareal
597 m² (eiet)Type
Enebolig - FrittliggendeEierform
EietFasiliteter
Garasje/P-plass og Balkong/TerrasseEnergimerke
Oransje G
Nøkkelinfo
Unngå doble boligrenter
Vi tilbyr gunstig forsikring.
Vurderer du utleie?
Få et tilbud fra Utleie KrogsveenHva koster lånet?
Sjekk estimert lånekostnadBeskrivelse
Kort om eiendommen
Nå har du sjansen til å sikre deg en romslig og moderne enebolig i et av Lillestrøms mest populære og barnevennlige områder. Boligen har blitt modernisert og oppgrader de siste årene. Her får du god plass, en skjermet beliggenhet og kort vei til skoler, barnehager og servicetilbud.
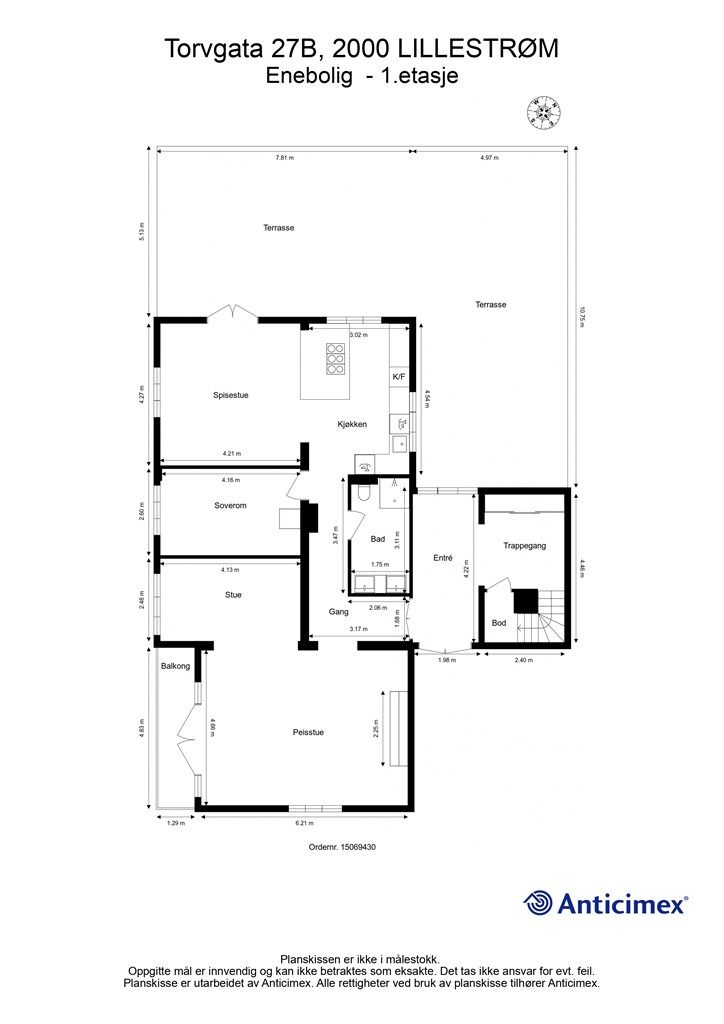
• Fem store soverom – fire av dem samlet i 2. etasje
• To stuer og et stort, åpent kjøkken med spiseplass – perfekt for både hverdag og hyggelige sammenkomster med familie/venner
• To bad og eget vaskerom
• Stor markterrasse på hele 93 m² med gode solforhold og ulike soner – ideell for grilling, lek og avslapning
• Fasaden ble modernisert i 2013/2014 med etterisolering, ny kledning og utskifting av vinduer. Samtidig ble det bygget ny garasje, nytt inngangsparti og platting
• God lagringsplass i kjeller og loft
Område
Legg til steder som er viktige for deg
På flyttefot? Tenk kjøp og salg samtidig.
Få din egen rådgiver gjennom hele kjøps- og salgsprosessen. Det starter med en verdivurdering.
Unngå doble boligrenter
Vi tilbyr gunstig forsikring.
Vurderer du utleie?
Få et tilbud fra Utleie KrogsveenHva koster lånet?
Sjekk estimert lånekostnadVil du varsles om lignende boliger?
Ved å lagre ditt boligsøk hos oss får du beskjed når vi har en bolig som ligner denne, før den legges ut på markedet!

