Asaveien 1
6 800 000 kr
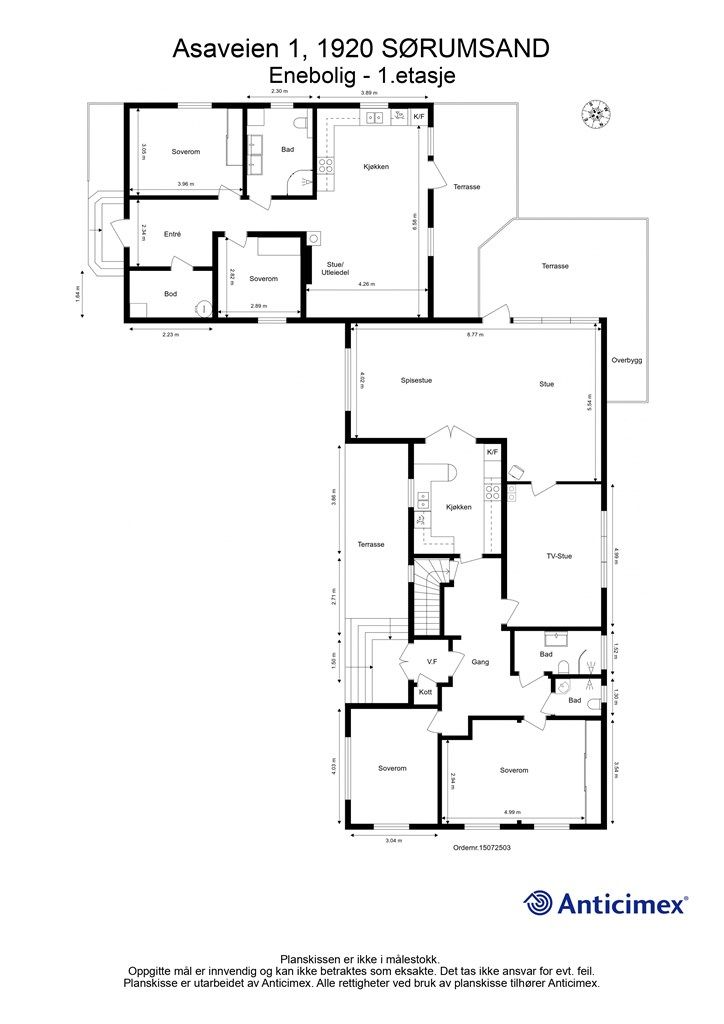
329 m²
4 soverom
Solgt
Sørumsand
Attraktiv generasjonsbolig med utleiedel | garasje og gode solforhold | kort vei til skole og barnehage
Prisantydning
6 800 000 krOmkostninger
190 990 krTotalpris
6 990 990 kr
Pris
Bruksareal
329 m²BRA-I (internt bruksareal)
329 m²TBA (terrasse-balkongareal)
80 m²
Areal
Etasje
2Byggeår
1966Soverom
4 soveromBad
3 badTomteareal
1 297 m² (eiet)Type
Enebolig - FrittliggendeEierform
EietEnergimerke
Grønn G
Nøkkelinfo
Unngå doble boligrenter
Vi tilbyr gunstig forsikring.
Vurderer du utleie?
Få et tilbud fra Utleie KrogsveenHva koster lånet?
Sjekk estimert lånekostnadBeskrivelse
Kort om eiendommen
Eiendomsmegler Krogsveen v/ Silje Frankplads ønsker velkommen til Asaveien 1.
Boligen fremstår som godt vedlikeholdt og familievennlig, med en egen utleiedel som gir gode muligheter for ekstra inntekt. Her får du gode solforhold, garasje og et velstelt uteområde. Eiendommen ligger i et trivelig nabolag med nærhet til skole, barnehage og gode kollektivforbindelser.
Høydepunkter:
Garasje
Gode solforhold
Godt vedlikeholdt
Utleiedel
Familievennlig
Velholdt
Nærhet til skole og barnehage
Kollektiv nærhet
Velkommen på visning. Velkommen hjem!
Område
Legg til steder som er viktige for deg
På flyttefot? Tenk kjøp og salg samtidig.
Få din egen rådgiver gjennom hele kjøps- og salgsprosessen. Det starter med en verdivurdering.
Unngå doble boligrenter
Vi tilbyr gunstig forsikring.
Vurderer du utleie?
Få et tilbud fra Utleie KrogsveenHva koster lånet?
Sjekk estimert lånekostnadVil du varsles om lignende boliger?
Ved å lagre ditt boligsøk hos oss får du beskjed når vi har en bolig som ligner denne, før den legges ut på markedet!
På flyttefot? Slik gjør vi det enklere for deg
Skreddersydd flyttepakke
Vi fikser håndverkere, vask, pakking, lagring og transport, og legger ut for utgiftene underveis.
Hjelp med både kjøp og salg
Hos oss har du din egen rådgiver gjennom hele kjøps- og salgsprosessen.
Hjelp til finansiering
Vårt samarbeid med BN Bank sikrer deg rask og løsningsorientert hjelp, til konkurransedyktige betingelser.




